賃貸マンション
プライムメゾン浅草橋の賃貸物件情報(1K/7階)
| 家賃 | 管理費等 | 敷金 | 礼金 | 間取り | 専有面積 |
|---|---|---|---|---|---|
| 12.5万円 | 1万円 | 12.5万円 | 12.5万円 | 1K | 25.11m2 |
入居決定でお祝い金最大100,000円
- 保証金
- -
- 償却・敷引
- -
- 築年数
- 築10年
- 所在階
- 7階
- 向き
- 北西
Point
室内見学承ります・お客様のご都合に合わせてオンラインまたはお近くの店舗でご提案可・初期費用分割払い可・クレジットカード利用可・引越業者割引・初期費用のお見積や入居日のご相談もお気軽にお問合せください
提供:(株)リライフ門前仲町店(SUUMO経由)

詳細情報 プライムメゾン浅草橋
物件紹介
プライムメゾン浅草橋は都営浅草線浅草橋駅から徒歩5分にあり、駅近で通勤通学に便利なマンションです。
このお部屋は2階以上に位置しているので、通行人や周囲の住人からの視線が気になりにくく、防犯面でも安心。建物のエントランスはオートロックがついており、インターホンにはTVモニタもついているため、相手の顔を確認してから来客対応することができます。
フローリングのお部屋なのでお掃除もラクラク。室内には人気のウォークインクローゼットがありますので、たくさんの荷物も効率的に収納ができます。キッチンはシステムキッチン仕様になっていますので、お料理好きの方にもぴったり。バス・トイレは別なので、のんびりお風呂タイムも楽しめるでしょう。また、雨の日でも浴室乾燥機を使えば、お洗濯も問題ありません。
通信設備面では、インターネットが無料で使えるので、月々の出費を抑えられるのも魅力です。また、BSアンテナ・CSアンテナがありCATVにも対応しているので、おうち時間も充実するでしょう(別途工事、BS・CS・CATVの契約料等が必要な場合あり)。
建物にはエレベーターがついているので、重い荷物があっても安心。共用部には宅配ボックスが設定されているので、不在の時にも荷物を受け取ることができます。
このお部屋は2階以上に位置しているので、通行人や周囲の住人からの視線が気になりにくく、防犯面でも安心。建物のエントランスはオートロックがついており、インターホンにはTVモニタもついているため、相手の顔を確認してから来客対応することができます。
フローリングのお部屋なのでお掃除もラクラク。室内には人気のウォークインクローゼットがありますので、たくさんの荷物も効率的に収納ができます。キッチンはシステムキッチン仕様になっていますので、お料理好きの方にもぴったり。バス・トイレは別なので、のんびりお風呂タイムも楽しめるでしょう。また、雨の日でも浴室乾燥機を使えば、お洗濯も問題ありません。
通信設備面では、インターネットが無料で使えるので、月々の出費を抑えられるのも魅力です。また、BSアンテナ・CSアンテナがありCATVにも対応しているので、おうち時間も充実するでしょう(別途工事、BS・CS・CATVの契約料等が必要な場合あり)。
建物にはエレベーターがついているので、重い荷物があっても安心。共用部には宅配ボックスが設定されているので、不在の時にも荷物を受け取ることができます。
お金・契約の情報
※「-」と表示されているものは、実際は料金が発生するものもございます。詳細はお問い合わせください。
| 家賃 | 12.5万円 | 管理費・共益費 | 1万円 |
|---|---|---|---|
| 敷金 | 12.5万円 | 礼金 | 12.5万円 |
| 入居決定でお祝い金最大100,000円 | |||
| 保証金 | - | 償却・敷引 | - |
| 住宅保険料 | - | 更新料 | - |
| 保証会社利用 | 必須 | 保証会社名 | - |
| 保証会社費用 | - | 保証会社備考 | 保証会社利用必 詳細はお問い合わせください。 |
| 契約形態 | - | 契約期間 | - |
| 入居・引渡期間 | 相談 | 現況 | - |
| 契約備考 | 当物件は「住まいのリライフ」で取り扱っております。リライフは首都圏24店舗のネットワークで豊富な物件情報をお客様へご提供します。当物件に類似した未公開物件なども合わせてご提案可能です。お気軽にお問合せください。違約金有:短期解約違約金有。契約開始日より1年未満で賃料1ヶ月分。 合計2.75万円(内訳:鍵交換代金2.75万円) 1K 事務所利用不可 損保【要】 バストイレ別、バルコニー、エアコン、ガスコンロ対応、クロゼット、フローリング、TVインターホン、浴室乾燥機、オートロック、室内洗濯置、シューズボックス、システムキッチン、追焚機能浴室、温水洗浄便座、脱衣所、エレベーター、洗面所独立、2口コンロ、駐輪場、宅配ボックス、CATV、光ファイバー、BS・CS、防犯カメラ、全居室収納、分譲賃貸、オートバス、ウォークインクロゼット、保証人不要、バイク置場、全居室フローリング、2沿線利用可、ディンプルキー、ネット使用料不要、エアコン全室、ダブルロックキー、24時間換気システム、3駅以上利用可、24時間ゴミ出し可、敷地内ごみ置き場、平面駐車場、都市ガス、玄関収納、保証会社利用可、初期費用カード決済可 | ||
部屋の情報
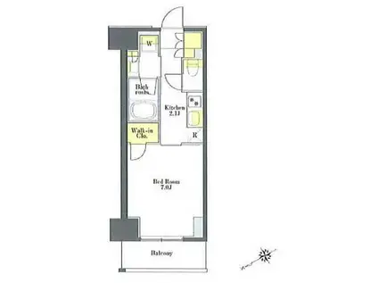
| 間取り | 1K | 専有面積 | 25.11m2 |
|---|---|---|---|
| 所在階 / 向き | 7階 / 北西 | バルコニー面積 | - |
| 水道 / ガス | - | ||
| 設備 | バス・トイレ別、2階以上、オートロック、テレビドアホン、宅配ボックス、浴室乾燥機、ウォークインクローゼット、追い焚き、インターネット対応、システムキッチン、エアコン、エレベーター、温水洗浄便座、バルコニー、フローリング、洗髪洗面化粧台、2口コンロ、コンロ:ガス、CATV、CSアンテナ、BSアンテナ、インターネット使用料無料、洗濯機:室内 | ||
| 当社物件ID | 21921595 | ||
建物の情報
| 建物名 | プライムメゾン浅草橋 | ||
|---|---|---|---|
| 所在地 | 東京都台東区柳橋 | ||
| 交通 | 都営浅草線 浅草橋駅 徒歩5分 都営浅草線 蔵前駅 徒歩6分 JR総武線快速 馬喰町駅 徒歩10分 | ||
| 階数 | 13階建 | 総戸数 | 64戸 |
| 築年月 | 2016年10月 / 築10年 | エレベーター | あり |
| 駐車場 | 空有 47300円 | バイク置き場 | あり |
| 駐輪場 | あり | 管理人/管理会社 | - |
| 周辺環境 | その他 リコス 柳橋2丁目店(スーパー)まで111m その他 まいばすけっと 浅草橋駅北店(スーパー)まで325m その他 ファミリーマート浅草橋三丁目店(コンビニ)まで220m その他 セブンイレブン 台東浅草橋3丁目東店(コンビニ)まで245m その他 ドラッグセイムス 蔵前3丁目店(ドラッグストア)まで506m その他 ポニークリーニング柳橋店(その他)まで336m | ||
| 建物種別 | マンション | 建物構造 | RC(鉄筋コンクリート) |
この部屋の取扱い不動産会社
| 会社名 | (株)リライフ蒲田店(SUUMO経由) | ||
|---|---|---|---|
| 所在地 | 東京都大田区蒲田5-18-1 ザ・シティ蒲田6階 | 交通 | - |
| 営業時間 | 10:00~20:00 | 定休日 | なし |
| 免許番号 | 国土交通大臣10792 | 取引態様 | 仲介 |
| 不動産会社管理番号 | 100455522519 | 当社管理番号 | 89 |
| 所属団体 | (公社)東京都宅地建物取引業協会会員 | ||
| 公正取引協議会 | (公社)首都圏不動産公正取引協議会加盟 | ||
| 取扱い物件情報 | 物件詳細へ | ||
※各種情報と現状に差異がある場合は、現状優先となります。問い合わせをすることで、より詳しい条件、情報を確認する事ができます。
提供:(株)リライフ蒲田店(SUUMO経由)
この物件が気になったら掲載期限まであと10日
プライムメゾン浅草橋に条件(家賃・エリア)が近い物件一覧
| 写真 | 家賃 管理費等 | 敷金 礼金 | 間取り 専有面積 | 築年数 | 最寄り駅 所在地 | キープ | 詳細 |
|---|---|---|---|---|---|---|---|
マンション J.GRAN COURT 浅草(1DK/10階) | |||||||
![]() | 14万円 1万円 | 14万円 なし | 1DK 26.26m2 | 築3年 | つくばエクスプレス 浅草駅(つくばEXP) 徒歩7分 東京地下鉄銀座線 浅草駅(東武・都営・メトロ) 徒歩8分 東京都浅草線 浅草駅(東武・都営・メトロ) 徒歩8分 東京都台東区浅草3丁目 | 詳細を見る | |
マンション NIDO南千住(1LDK/6階) | |||||||
![]() | 14.3万円 1.5万円 | なし なし | 1LDK 35.95m2 | 築3年 | 常磐線 南千住駅 徒歩7分 東京地下鉄日比谷線 南千住駅 徒歩8分 東京都荒川区南千住7丁目 | 詳細を見る | |
マンション リブリ・曳舟(1LDK/3階) | |||||||
![]() | 12.8万円 3,000円 | なし 19.2万円 | 1LDK 32.04m2 | 築1年 | 東武伊勢崎・大師線 曳舟駅 徒歩13分 東武伊勢崎・大師線 東向島駅 徒歩13分 京成電鉄押上線 京成曳舟駅 徒歩16分 東京都墨田区堤通1丁目 | 詳細を見る | |
マンション ラグゼナ平井ノース(1LDK/3階) | |||||||
![]() | 20万円 1万円 | なし なし | 1LDK 48.24m2 | 築1年 | 東武鉄道亀戸線 東あずま駅 徒歩11分 東武鉄道亀戸線 小村井駅 徒歩14分 東京都墨田区立花6丁目 | 詳細を見る | |
マンション シーズンフラッツ押上サウス(1LDK/5階) | |||||||
![]() | 17.7万円 1.5万円 | なし なし | 1LDK 41.88m2 | 築4年 | 東京地下鉄半蔵門線 押上駅 徒歩4分 総武・中央緩行線 錦糸町駅 徒歩14分 東京都墨田区業平4丁目 | 詳細を見る | |
マンション レジディア大手町北(1K/4階) | |||||||
![]() | 16.6万円 1.5万円 | なし なし | 1K 25.02m2 | 築7年 | 山手線 神田駅(東京) 徒歩5分 東京地下鉄丸ノ内線 大手町駅(東京) 徒歩7分 東京地下鉄銀座線 神田駅(東京) 徒歩7分 東京都千代田区内神田1丁目 | 詳細を見る | |
マンション クロスレジデンス神田神保町(1DK/11階) | |||||||
![]() | 16万円 1.2万円 | 16万円 16万円 | 1DK 25.16m2 | 築2年 | 東京地下鉄半蔵門線 神保町駅 徒歩1分 東京地下鉄丸ノ内線 淡路町駅 徒歩8分 東京地下鉄東西線 九段下駅 徒歩9分 東京都千代田区神田神保町1丁目 | 詳細を見る | |
マンション ONE ROOF FLAT TSUKISHIMA(1K/2階) | |||||||
![]() | 12.9万円 1.5万円 | 12.9万円 12.9万円 | 1K 25.02m2 | 築11年 | 東京地下鉄有楽町線 月島駅 徒歩4分 東京都大江戸線 月島駅 徒歩4分 東京都大江戸線 勝どき駅 徒歩6分 東京都中央区月島4丁目 | 詳細を見る | |








