賃貸マンション
芝浦アイランド ブルームタワーの賃貸物件情報(2LDK/31階)
| 家賃 | 管理費等 | 敷金 | 礼金 | 間取り | 専有面積 |
|---|---|---|---|---|---|
| 56万円 | なし | 112万円 | 112万円 | 2LDK | 85.39m2 |
入居決定でお祝い金最大100,000円
- 保証金
- -
- 償却・敷引
- -
- 築年数
- 築18年
- 所在階
- 31階
- 向き
- 南東
Point
三井不動産レジデンシャルリース管理物件保証会社利用必須再契約相談可(再契約料:新賃料の1ヶ月相当)ペット不可フロア駐車場:詳細・空状況お問合せください。2026年5月頃‐2028年2月末迄大
提供:三井の賃貸レジデントファースト(株)プレミアムデスク(SUUMO経由)

詳細情報 芝浦アイランド ブルームタワー
物件紹介
芝浦アイランド ブルームタワーはJR山手線田町駅から徒歩9分にあり、駅近で通勤通学に便利なマンションです。
このお部屋は2階以上に位置しているので、通行人や周囲の住人からの視線が気になりにくく、防犯面でも安心。建物のエントランスはオートロックがついており、インターホンにはTVモニタもついているため、相手の顔を確認してから来客対応することができます。
こちらは楽器相談が可能な物件。楽器演奏をお考えの方はぜひ相談してみてください。人気の南向きのお部屋。角部屋でもあるため、周囲の居住者の生活音も気になりにくい場所です。室内にはウォークインクローゼットがありますので、たくさんの荷物も効率的に収納ができます。キッチンはシステムキッチン仕様になっていますので、お料理好きの方にもぴったり。バス・トイレは別なので、のんびりお風呂タイムも楽しめるでしょう。また、雨の日でも浴室乾燥機を使えば、お洗濯も問題ありません。
通信設備面ではBSアンテナ・CSアンテナがあり、CATVにも対応しているので、おうち時間も充実するでしょう(別途工事、契約料が必要な場合あり)。
床暖房があり、冬も足元から暖かく快適に過ごすことができます。建物にはエレベーターがついているので、重い荷物があっても安心。共用部には宅配ボックスが設定されているので、不在の時にも荷物を受け取ることができます。
このお部屋は2階以上に位置しているので、通行人や周囲の住人からの視線が気になりにくく、防犯面でも安心。建物のエントランスはオートロックがついており、インターホンにはTVモニタもついているため、相手の顔を確認してから来客対応することができます。
こちらは楽器相談が可能な物件。楽器演奏をお考えの方はぜひ相談してみてください。人気の南向きのお部屋。角部屋でもあるため、周囲の居住者の生活音も気になりにくい場所です。室内にはウォークインクローゼットがありますので、たくさんの荷物も効率的に収納ができます。キッチンはシステムキッチン仕様になっていますので、お料理好きの方にもぴったり。バス・トイレは別なので、のんびりお風呂タイムも楽しめるでしょう。また、雨の日でも浴室乾燥機を使えば、お洗濯も問題ありません。
通信設備面ではBSアンテナ・CSアンテナがあり、CATVにも対応しているので、おうち時間も充実するでしょう(別途工事、契約料が必要な場合あり)。
床暖房があり、冬も足元から暖かく快適に過ごすことができます。建物にはエレベーターがついているので、重い荷物があっても安心。共用部には宅配ボックスが設定されているので、不在の時にも荷物を受け取ることができます。
お金・契約の情報
※「-」と表示されているものは、実際は料金が発生するものもございます。詳細はお問い合わせください。
| 家賃 | 56万円 | 管理費・共益費 | なし |
|---|---|---|---|
| 敷金 | 112万円 | 礼金 | 112万円 |
| 入居決定でお祝い金最大100,000円 | |||
| 保証金 | - | 償却・敷引 | - |
| 住宅保険料 | - | 更新料 | - |
| 保証会社利用 | 必須 | 保証会社名 | - |
| 保証会社費用 | - | 保証会社備考 | 保証会社利用必 初回保証料:賃料等総額50% |
| 契約形態 | 定期借家 | 契約期間 | 2年 |
| 入居・引渡期間 | 相談 | 現況 | - |
| 入居可能条件 | 楽器相談 | ||
| 契約備考 | 東京都浅草線三田駅徒歩11分 2LDK 楽器相談/事務所利用不可 定期借家24ヶ月 損保【要】 バストイレ別、バルコニー、ガスコンロ対応、クロゼット、TVインターホン、浴室乾燥機、オートロック、室内洗濯置、シューズボックス、システムキッチン、追焚機能浴室、角住戸、温水洗浄便座、脱衣所、洗面所独立、駐輪場、宅配ボックス、CATV、2面採光、BS・CS、3口以上コンロ、防犯カメラ、24時間有人管理、オートバス、グリル付、全居室洋室、ウォークインクロゼット、バイク置場、カードキー、2面バルコニー、エアコン2台、敷金2ヶ月、床暖房、食器洗乾燥機、保証金不要、楽器相談、フロントサービス、エレベーター2基、3駅以上利用可、3沿線以上利用可、駅徒歩10分以内、タワー型マンション、高層階、敷地内ごみ置き場、専有面積25坪以上、東南向き、LDK25畳以上、礼金2ヶ月 | ||
部屋の情報
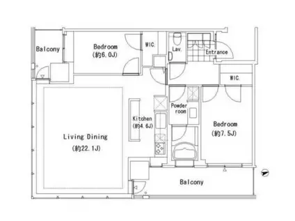
| 間取り | 2LDK | 専有面積 | 85.39m2 |
|---|---|---|---|
| 所在階 / 向き | 31階 / 南東 | バルコニー面積 | - |
| 水道 / ガス | - | ||
| 設備 | バス・トイレ別、2階以上、オートロック、テレビドアホン、宅配ボックス、浴室乾燥機、ウォークインクローゼット、追い焚き、システムキッチン、エアコン、エレベーター、温水洗浄便座、南向き、角部屋、バルコニー、洗髪洗面化粧台、タワーマンション、床暖房、2口コンロ、コンロ:ガス、CATV、CSアンテナ、BSアンテナ、洗濯機:室内 | ||
| 当社物件ID | 6780616 | ||
建物の情報
| 建物名 | 芝浦アイランド ブルームタワー | ||
|---|---|---|---|
| 所在地 | 東京都港区芝浦 | ||
| 交通 | JR山手線 田町駅(東京) 徒歩9分 JR京浜東北線 田町駅(東京) 徒歩9分 都営三田線 三田駅(東京) 徒歩11分 | ||
| 階数 | 48階建 | 総戸数 | - |
| 築年月 | 2008年09月 / 築18年 | エレベーター | あり |
| 駐車場 | 空有 39600円 | バイク置き場 | あり |
| 駐輪場 | あり | 管理人/管理会社 | - |
| 建物種別 | マンション | 建物構造 | RC(鉄筋コンクリート) |
この部屋の取扱い不動産会社
| 会社名 | 三井の賃貸レジデントファースト(株)プレミアムデスク(SUUMO経由) | ||
|---|---|---|---|
| 所在地 | 東京都港区赤坂8-4-14 青山タワープレイス | 交通 | - |
| 営業時間 | 9:30~18:00 | 定休日 | 水曜日 |
| 免許番号 | 東京都知事96482 | 取引態様 | 仲介 |
| 不動産会社管理番号 | 100493279485 | 当社管理番号 | 89 |
| 所属団体 | (一社)不動産流通経営協会会員 | ||
| 公正取引協議会 | (公社)首都圏不動産公正取引協議会加盟 | ||
| 取扱い物件情報 | 物件詳細へ | ||
※各種情報と現状に差異がある場合は、現状優先となります。問い合わせをすることで、より詳しい条件、情報を確認する事ができます。
提供:三井の賃貸レジデントファースト(株)プレミアムデスク(SUUMO経由)
この物件が気になったら掲載期限まであと12日
芝浦アイランド ブルームタワーに条件(家賃・エリア)が近い物件一覧
| 写真 | 家賃 管理費等 | 敷金 礼金 | 間取り 専有面積 | 築年数 | 最寄り駅 所在地 | キープ | 詳細 |
|---|---|---|---|---|---|---|---|
マンション 恵比寿ガーデンテラス弐番館(1LDK/10階) | |||||||
![]() | 48.5万円 なし | 97万円 48.5万円 | 1LDK 63.79m2 | 築32年 | JR山手線 恵比寿駅 徒歩10分 JR山手線 目黒駅 徒歩15分 東京都渋谷区恵比寿 | 詳細を見る | |
マンション HF白金高輪レジデンス(3LDK/6階) | |||||||
![]() | 51.7万円 1.5万円 | 51.7万円 51.7万円 | 3LDK 85.86m2 | 築21年 | 東京地下鉄南北線 白金高輪駅 徒歩2分 東京都港区高輪1丁目 | 詳細を見る | |
マンション THE TOKYO TOWERS SEA TOWER(3LDK/47階) | |||||||
![]() | 52万円 なし | 104万円 52万円 | 3LDK 93.88m2 | 築19年 | 都営大江戸線 勝どき駅 徒歩8分 都営大江戸線 築地市場駅 徒歩23分 新交通ゆりかもめ 竹芝駅 徒歩38分 東京都中央区勝どき | 詳細を見る | |
マンション シティタワー銀座東(3LDK/9階) | |||||||
![]() | 46万円 1.5万円 | 46万円 46万円 | 3LDK 77.94m2 | 築8年 | JR京葉線 八丁堀駅(東京) 徒歩5分 東京メトロ有楽町線 新富町駅(東京) 徒歩11分 東京メトロ日比谷線 築地駅 徒歩13分 東京都中央区湊 | 詳細を見る | |
マンション 平河町森タワーレジデンス(1LDK/22階) | |||||||
![]() | 70万円 なし | 210万円 70万円 | 1LDK 76.75m2 | 築17年 | 東京メトロ半蔵門線 永田町駅 徒歩2分 東京メトロ丸ノ内線 赤坂見附駅 徒歩6分 東京メトロ有楽町線 麹町駅 徒歩10分 東京都千代田区平河町 | 詳細を見る | |
マンション 代官山BLESS 代官山ブレス(2LDK/2階) | |||||||
![]() | 38.3万円 なし | 38.3万円 38.3万円 | 2LDK 84.22m2 | 築16年 | 東急東横線 代官山駅 徒歩9分 JR山手線 渋谷駅 徒歩12分 JR山手線 恵比寿駅 徒歩14分 東京都渋谷区猿楽町 | 詳細を見る | |
マンション パークタワー勝どき サウス棟(1LDK/44階) | |||||||
![]() | 39.9万円 なし | 39.9万円 79.8万円 | 1LDK 57.01m2 | 築3年 | 都営大江戸線 勝どき駅 徒歩2分 東京メトロ有楽町線 月島駅 徒歩14分 都営大江戸線 築地市場駅 徒歩23分 東京都中央区勝どき | 詳細を見る | |








