賃貸アパート
ファミーユ東中野の賃貸物件情報(1K/2階)
| 家賃 | 管理費等 | 敷金 | 礼金 | 間取り | 専有面積 |
|---|---|---|---|---|---|
| 6.7万円 | 2,000円 | なし | なし | 1K | 29.99m2 |
入居決定でお祝い金最大100,000円
- 保証金
- -
- 償却・敷引
- -
- 築年数
- 築52年
- 所在階
- 2階
- 向き
- 南東
Point
まずはお問い合わせ!
不動産会社は街のプロ、あなたに合った物件がきっと見つかります。
提供:ERA(株)ノグチ不動産(SUUMO経由)

詳細情報 ファミーユ東中野
物件紹介
ファミーユ東中野はJR中央線東中野駅から徒歩9分にあり、駅近で通勤通学に便利なアパートです。
このお部屋は2階以上に位置しているので、通行人や周囲の住人からの視線が気になりにくく、防犯面でも安心です。
人気の南向きのお部屋。角部屋でもあるため、周囲の居住者の生活音も気になりにくい場所です。バス・トイレ別の仕様で、のんびりお風呂タイムも楽しめます。また、浴室乾燥機を使えば、雨の日でもお洗濯は問題ありません。
通信設備面ではCATVに対応しているので、おうち時間も充実するでしょう(別途工事、契約料が必要な場合あり)。
このお部屋は2階以上に位置しているので、通行人や周囲の住人からの視線が気になりにくく、防犯面でも安心です。
人気の南向きのお部屋。角部屋でもあるため、周囲の居住者の生活音も気になりにくい場所です。バス・トイレ別の仕様で、のんびりお風呂タイムも楽しめます。また、浴室乾燥機を使えば、雨の日でもお洗濯は問題ありません。
通信設備面ではCATVに対応しているので、おうち時間も充実するでしょう(別途工事、契約料が必要な場合あり)。
お金・契約の情報
※「-」と表示されているものは、実際は料金が発生するものもございます。詳細はお問い合わせください。
| 家賃 | 6.7万円 | 管理費・共益費 | 2,000円 |
|---|---|---|---|
| 敷金 | なし | 礼金 | なし |
| 入居決定でお祝い金最大100,000円 | |||
| 保証金 | - | 償却・敷引 | - |
| 住宅保険料 | - | 更新料 | - |
| 保証会社利用 | 必須 | 保証会社名 | 日本賃貸保証 |
| 保証会社費用 | - | 保証会社備考 | 日本賃貸保証利用必 またはエルズサポート利用、初回賃貸保証料:月額合計額50% |
| 契約形態 | - | 契約期間 | - |
| 入居・引渡期間 | 相談 | 現況 | - |
| 契約備考 | 女性単身者限定 合計4.18万円(内訳:退居時ハウスクリーニング費用) 鍵交換費用16500円 1K 女性限定/単身者限定/子供不可/事務所利用不可/ルームシェア不可 損保【1.9万円2年】 バストイレ別、エアコン、ガスコンロ対応、浴室乾燥機、室内洗濯置、南向き、角住戸、温水洗浄便座、洗面所独立、2口コンロ、押入、CATV、2面採光、全居室洋室、東南角住戸、3方角住戸、駅徒歩10分以内、都市ガス、敷金・礼金不要、保証会社利用可、通風良好 | ||
部屋の情報
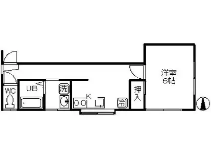
| 間取り | 1K | 専有面積 | 29.99m2 |
|---|---|---|---|
| 所在階 / 向き | 2階 / 南東 | バルコニー面積 | - |
| 水道 / ガス | - | ||
| 設備 | バス・トイレ別、2階以上、浴室乾燥機、エアコン、温水洗浄便座、南向き、角部屋、洗髪洗面化粧台、2口コンロ、コンロ:ガス、CATV、洗濯機:室内 | ||
| 当社物件ID | 160531576 | ||
建物の情報
| 建物名 | ファミーユ東中野 | ||
|---|---|---|---|
| 所在地 | 東京都中野区東中野 | ||
| 交通 | JR中央線 東中野駅 徒歩9分 JR中央線 中野駅(東京) 徒歩15分 東京メトロ丸ノ内線 中野坂上駅 徒歩18分 | ||
| 階数 | 2階建 | 総戸数 | - |
| 築年月 | 1975年02月 / 築52年 | エレベーター | - |
| 駐車場 | なし | バイク置き場 | - |
| 駐輪場 | - | 管理人/管理会社 | - |
| 周辺環境 | その他 マルマンストア中野店(スーパー)まで589m その他 業務スーパー東中野店(スーパー)まで635m その他 ライフ東中野店(スーパー)まで768m その他 ファミリーマート紀伊国屋中野一丁目店(コンビニ)まで76m その他 セブンイレブン中野6丁目店(コンビニ)まで588m その他 島忠中野店(ホームセンター)まで535m | ||
| 建物種別 | アパート | 建物構造 | 木造 |
この部屋の取扱い不動産会社
| 会社名 | ERA(株)ノグチ不動産(SUUMO経由) | ||
|---|---|---|---|
| 所在地 | 東京都杉並区高円寺南4-27-4 | 交通 | - |
| 営業時間 | AM9:00~PM6:00 | 定休日 | 水曜日、第2木曜日 |
| 免許番号 | 東京都知事44548 | 取引態様 | 仲介 |
| 不動産会社管理番号 | 100492664388 | 当社管理番号 | 89 |
| 所属団体 | (公社)東京都宅地建物取引業協会会員 | ||
| 公正取引協議会 | (公社)首都圏不動産公正取引協議会加盟 | ||
| 取扱い物件情報 | 物件詳細へ | ||
※各種情報と現状に差異がある場合は、現状優先となります。問い合わせをすることで、より詳しい条件、情報を確認する事ができます。
提供:ERA(株)ノグチ不動産(SUUMO経由)
この物件が気になったら掲載期限まであと11日
ファミーユ東中野に条件(家賃・エリア)が近い物件一覧
| 写真 | 家賃 管理費等 | 敷金 礼金 | 間取り 専有面積 | 築年数 | 最寄り駅 所在地 | キープ | 詳細 |
|---|---|---|---|---|---|---|---|
アパート スタジオ明泉(ワンルーム/4階) | |||||||
![]() | 9万円 5,000円 | なし 9万円 | ワンルーム 16.72m2 | 築25年 | JR中央線 信濃町駅 徒歩2分 東京メトロ丸ノ内線 四谷三丁目駅 徒歩12分 JR中央線 千駄ケ谷駅 徒歩13分 東京都新宿区南元町 | 詳細を見る | |
マンション 白樺マンション(1DK/5階) | |||||||
![]() | 9.5万円 なし | なし 9.5万円 | 1DK 26.78m2 | 築56年 | 東京メトロ副都心線 要町駅 徒歩5分 西武池袋線 椎名町駅 徒歩7分 東京メトロ副都心線 千川駅 徒歩15分 東京都豊島区千早 | 詳細を見る | |
マンション YM椎名町 椎名町ハイム(ワンルーム/3階) | |||||||
![]() | 7.7万円 1万円 | 7.7万円 7.7万円 | ワンルーム 19m2 | 築38年 | 西武池袋線 椎名町駅 徒歩3分 東京メトロ有楽町線 要町駅 徒歩14分 都営大江戸線 落合南長崎駅 徒歩18分 東京都豊島区長崎 | 詳細を見る | |
マンション メゾン・ホワイト(ワンルーム/3階) | |||||||
![]() | 10.3万円 2,000円 | 10.3万円 10.3万円 | ワンルーム 41.8m2 | 築38年 | JR中央線 荻窪駅 徒歩15分 京王井の頭線 高井戸駅 徒歩19分 京王井の頭線 富士見ケ丘駅 徒歩27分 東京都杉並区荻窪 | 詳細を見る | |
マンション コーポロングワン(1K/2階) | |||||||
![]() | 6万円 5,000円 | なし なし | 1K 20.02m2 | 築36年 | 京王線 笹塚駅 徒歩9分 東京メトロ丸ノ内線 方南町駅 徒歩14分 京王新線 幡ケ谷駅 徒歩15分 東京都中野区南台 | 詳細を見る | |
マンション メイクスデザイン池袋パークサイド(1K/2階) | |||||||
![]() | 10.3万円 1.2万円 | 10.3万円 10.3万円 | 1K 25.76m2 | 築9年 | 東武東上線 北池袋駅 徒歩7分 JR山手線 池袋駅 徒歩13分 JR埼京線 池袋駅 徒歩13分 東京都豊島区池袋本町 | 詳細を見る | |
アパート LALA FLAT(ワンルーム/2階) | |||||||
![]() | 7.1万円 4,000円 | なし 7.1万円 | ワンルーム 10.92m2 | 築10年 | 東武東上線 北池袋駅 徒歩10分 東武東上線 下板橋駅 徒歩12分 JR山手線 池袋駅 徒歩18分 東京都豊島区池袋本町 | 詳細を見る | |
マンション ZESTY東新宿 ゼスティ東新宿(1K/4階) | |||||||
![]() | 10.4万円 1.5万円 | なし 10.4万円 | 1K 20.48m2 | 築20年 | 都営大江戸線 東新宿駅 徒歩9分 東京メトロ丸ノ内線 新宿御苑前駅 徒歩10分 JR山手線 新宿駅 徒歩17分 東京都新宿区新宿 | 詳細を見る | |









