賃貸マンション
エスセナーリオ等々力の賃貸物件情報(1LDK/3階)
| 家賃 | 管理費等 | 敷金 | 礼金 | 間取り | 専有面積 |
|---|---|---|---|---|---|
| 17.5万円 | 1.2万円 | 17.5万円 | 17.5万円 | 1LDK | 41.59m2 |
入居決定でお祝い金最大100,000円
- 保証金
- -
- 償却・敷引
- -
- 築年数
- 築6年
- 所在階
- 3階
- 向き
- 南
Point
東急大井町線「等々力駅」徒歩4分。三面採光の明るい南東向き1LDKで、リビングは開放感のある造りが魅力です。光がしっかり入るため在宅ワークにもぴったり。デザイン性と暮らしやすさを両立した住まいです。
提供:(株)アルファーマネジメント&パートナーズ(SUUMO経由)

詳細情報 エスセナーリオ等々力
物件紹介
エスセナーリオ等々力は東急大井町線等々力駅から徒歩4分にあり、駅近で通勤通学に便利なマンションです。
このお部屋は2階以上に位置しているので、通行人や周囲の住人からの視線が気になりにくく、防犯面でも安心。建物のエントランスはオートロックがついており、インターホンにはTVモニタもついているため、相手の顔を確認してから来客対応することができます。
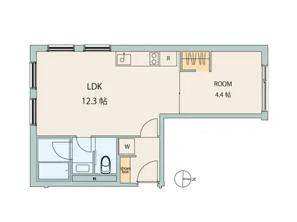
おしゃれなデザイナーズ物件!人気の南向き・フローリングのお部屋。角部屋でもあるため、周囲の居住者の生活音も気になりにくい場所です。室内にはウォークインクローゼットがありますので、たくさんの荷物も効率的に収納ができます。キッチンはシステムキッチン仕様になっていますので、お料理好きの方にもぴったり。バス・トイレは別なので、のんびりお風呂タイムも楽しめるでしょう。また、雨の日でも浴室乾燥機を使えば、お洗濯も問題ありません。
通信設備面では、インターネット接続が可能です。また、BSアンテナ・CSアンテナもありますので、おうち時間も充実するでしょう(別途工事、契約料が必要な場合あり)。
共用部には宅配ボックスが設定されているので、不在の時にも荷物を受け取ることができます。
このお部屋は2階以上に位置しているので、通行人や周囲の住人からの視線が気になりにくく、防犯面でも安心。建物のエントランスはオートロックがついており、インターホンにはTVモニタもついているため、相手の顔を確認してから来客対応することができます。
おしゃれなデザイナーズ物件!人気の南向き・フローリングのお部屋。角部屋でもあるため、周囲の居住者の生活音も気になりにくい場所です。室内にはウォークインクローゼットがありますので、たくさんの荷物も効率的に収納ができます。キッチンはシステムキッチン仕様になっていますので、お料理好きの方にもぴったり。バス・トイレは別なので、のんびりお風呂タイムも楽しめるでしょう。また、雨の日でも浴室乾燥機を使えば、お洗濯も問題ありません。
通信設備面では、インターネット接続が可能です。また、BSアンテナ・CSアンテナもありますので、おうち時間も充実するでしょう(別途工事、契約料が必要な場合あり)。
共用部には宅配ボックスが設定されているので、不在の時にも荷物を受け取ることができます。
お金・契約の情報
※「-」と表示されているものは、実際は料金が発生するものもございます。詳細はお問い合わせください。
| 家賃 | 17.5万円 | 管理費・共益費 | 1.2万円 |
|---|---|---|---|
| 敷金 | 17.5万円 | 礼金 | 17.5万円 |
| 入居決定でお祝い金最大100,000円 | |||
| 保証金 | - | 償却・敷引 | - |
| 住宅保険料 | - | 更新料 | - |
| 保証会社利用 | 必須 | 保証会社名 | - |
| 保証会社費用 | - | 保証会社備考 | 保証会社利用必 エポスカード株式会社 初回保証料:家賃総額50% 月額保証料:家賃総額1% |
| 契約形態 | - | 契約期間 | - |
| 入居・引渡期間 | 即時 | 現況 | - |
| 契約備考 | 巡回管理 合計1.65万円(内訳:24時間安心サポート) 1LDK 二人入居可/事務所利用不可 損保【2万円2年】 バストイレ別、エアコン、フローリング、TVインターホン、浴室乾燥機、オートロック、室内洗濯置、陽当り良好、シューズボックス、システムキッチン、南向き、追焚機能浴室、角住戸、温水洗浄便座、脱衣所、洗面所独立、洗面化粧台、2口コンロ、宅配ボックス、光ファイバー、即入居可、BS・CS、IHクッキングヒーター、照明付、ウォークインクロゼット、保証人不要、東南角住戸、南西角住戸、全居室フローリング、デザイナーズ、3面採光、ディンプルキー、眺望良好、ダブルロックキー、外壁コンクリート、複層ガラス、南面リビング、駅徒歩5分以内、敷地内ごみ置き場、当社管理物件、LDK12畳以上、都市ガス、タンクレストイレ、全室照明付、通風良好 | ||
部屋の情報
| 間取り | 1LDK | 専有面積 | 41.59m2 |
|---|---|---|---|
| 所在階 / 向き | 3階 / 南 | バルコニー面積 | - |
| 水道 / ガス | - | ||
| 設備 | バス・トイレ別、2階以上、オートロック、テレビドアホン、宅配ボックス、浴室乾燥機、ウォークインクローゼット、追い焚き、インターネット対応、システムキッチン、エアコン、温水洗浄便座、南向き、角部屋、フローリング、洗髪洗面化粧台、2口コンロ、コンロ:IH、デザイナーズ、CSアンテナ、BSアンテナ、洗濯機:室内 | ||
| 当社物件ID | 44252578 | ||
建物の情報
| 建物名 | エスセナーリオ等々力 | ||
|---|---|---|---|
| 所在地 | 東京都世田谷区等々力 | ||
| 交通 | 東急大井町線 等々力駅 徒歩4分 東急田園都市線 二子玉川駅 徒歩32分 東急東横線 自由が丘駅(東京) 徒歩32分 | ||
| 階数 | 4階建 | 総戸数 | - |
| 築年月 | 2020年08月 / 築6年 | エレベーター | - |
| 駐車場 | なし | バイク置き場 | - |
| 駐輪場 | - | 管理人/管理会社 | - |
| 周辺環境 | その他 ローソン・スリーエフ等々力二丁目店(コンビニ)まで241m その他 トモズ等々力南口店(ドラッグストア)まで349m その他 医療法人平成博愛会世田谷記念病院(病院)まで1188m その他 世田谷等々力郵便局(郵便局)まで443m その他 ワークマンプラス等々力店(ショッピングセンター)まで425m その他 成城石井等々力店(スーパー)まで234m | ||
| 建物種別 | マンション | 建物構造 | RC(鉄筋コンクリート) |
この部屋の取扱い不動産会社
| 会社名 | (株)アルファーマネジメント&パートナーズ(SUUMO経由) | ||
|---|---|---|---|
| 所在地 | 東京都港区三田1-4-28 三田国際ビル5階 | 交通 | - |
| 営業時間 | 9:00~18:00 | 定休日 | 日曜・祝日(GW・年末年始) |
| 免許番号 | 東京都知事86104 | 取引態様 | 仲介 |
| 不動産会社管理番号 | 100490241909 | 当社管理番号 | 89 |
| 所属団体 | (公社)全日本不動産協会東京都本部会員 | ||
| 公正取引協議会 | (公社)首都圏不動産公正取引協議会加盟 | ||
| 取扱い物件情報 | 物件詳細へ | ||
※各種情報と現状に差異がある場合は、現状優先となります。問い合わせをすることで、より詳しい条件、情報を確認する事ができます。
提供:(株)アルファーマネジメント&パートナーズ(SUUMO経由)
この物件が気になったら掲載期限まであと9日
エスセナーリオ等々力に条件(家賃・エリア)が近い物件一覧
| 写真 | 家賃 管理費等 | 敷金 礼金 | 間取り 専有面積 | 築年数 | 最寄り駅 所在地 | キープ | 詳細 |
|---|---|---|---|---|---|---|---|
マンション ミレニアムハイム(1LDK/4階) | |||||||
![]() | 14.9万円 5,000円 | 14.9万円 14.9万円 | 1LDK 43.36m2 | 築26年 | 京浜東北・根岸線 蒲田駅 徒歩18分 京浜急行電鉄本線 大森町駅 徒歩18分 東京都大田区中央8丁目 | 詳細を見る | |
アパート SEED SAVE PETIRASU BREEZE(1LDK/3階) | |||||||
![]() | 10.7万円 1万円 | 21.4万円 10.7万円 | 1LDK 30.55m2 | 築1年 | 東京モノレール羽田 昭和島駅 徒歩12分 京浜急行電鉄本線 大森町駅 徒歩18分 東京都大田区大森東5丁目 | 詳細を見る | |
アパート フォレスタ世田谷(2LDK/2階) | |||||||
![]() | 16.9万円 1,000円 | 16.9万円 16.9万円 | 2LDK 47.7m2 | 築55年 | 東急池上線 雪が谷大塚駅 徒歩6分 東急東横線 田園調布駅 徒歩16分 東急目黒線 多摩川駅 徒歩16分 東京都世田谷区東玉川 | 詳細を見る | |
マンション 京浜急行電鉄本線 梅屋敷駅(東京) 徒歩4分 築37年(3LDK/2階) | |||||||
![]() | 19.3万円 7,000円 | 19.3万円 19.3万円 | 3LDK 84.68m2 | 築37年 | 京浜急行電鉄本線 梅屋敷駅(東京) 徒歩4分 京浜急行電鉄本線 大森町駅 徒歩12分 東京都大田区大森西6丁目 | 詳細を見る | |
マンション サンライズマンション(2LDK/2階) | |||||||
![]() | 16.5万円 3,000円 | 12.7万円 なし | 2LDK 55.31m2 | 築26年 | 京急本線 梅屋敷駅(東京) 徒歩13分 京急本線 大森町駅 徒歩14分 東京モノレール 昭和島駅 徒歩16分 東京都大田区大森南 | 詳細を見る | |
マンション サンビルディス(2DK/3階) | |||||||
![]() | 13.1万円 3,000円 | 13.1万円 なし | 2DK 40.5m2 | 築47年 | 東急多摩川線 武蔵新田駅 徒歩3分 東急多摩川線 下丸子駅 徒歩6分 東京都大田区下丸子1丁目 | 詳細を見る | |
マンション メイゾン茨田(1LDK/2階) | |||||||
![]() | 12万円 3,000円 | 12万円 12万円 | 1LDK 42.9m2 | 築58年 | 東京モノレール 昭和島駅 徒歩10分 京急本線 大森町駅 徒歩17分 東京都大田区大森東 | 詳細を見る | |
マンション BLANCHE(1LDK/1階) | |||||||
![]() | 12.4万円 3,000円 | 12.4万円 なし | 1LDK 34.23m2 | 築10年 | 東急池上線 久が原駅 徒歩2分 東急池上線 御嶽山駅 徒歩8分 東京都大田区東嶺町 | 詳細を見る | |









