賃貸マンション
A-STANDARD芝浦 エースタンダード芝浦の賃貸物件情報(1K/3階)
| 家賃 | 管理費等 | 敷金 | 礼金 | 間取り | 専有面積 |
|---|---|---|---|---|---|
| 13万円 | 8,000円 | 13万円 | 13万円 | 1K | 25.5m2 |
入居決定でお祝い金最大100,000円
- 保証金
- -
- 償却・敷引
- -
- 築年数
- 築10年
- 所在階
- 3階
- 向き
- -
Point
★システムキッチン・2口ガスコンロ★温水洗浄便座★室内洗濯機置場★エアコン★フローリング★クローゼット★TVモニター付インターホン★オートロック★駐輪場★詳細はお気軽にお問い合わせください!★
提供:(株)ユウキ・ホーム麻布十番サテライト店(SUUMO経由)

詳細情報 A-STANDARD芝浦 エースタンダード芝浦
物件紹介
A-STANDARD芝浦 エースタンダード芝浦は新交通ゆりかもめ芝浦ふ頭駅から徒歩4分にあり、駅近で通勤通学に便利なマンションです。
このお部屋は2階以上に位置しているので、通行人や周囲の住人からの視線が気になりにくく、防犯面でも安心。建物のエントランスはオートロックがついており、インターホンにはTVモニタもついているため、相手の顔を確認してから来客対応することができます。
フローリングのお部屋なのでお掃除もラクラク。キッチンはシステムキッチン仕様になっていますので、お料理好きの方にもぴったり。バス・トイレは別なので、のんびりお風呂タイムも楽しめるでしょう。また、雨の日でも浴室乾燥機を使えば、お洗濯も問題ありません。
通信設備面では、インターネットが無料で使えるので、月々の出費を抑えられるのも魅力です(別途工事等が必要な場合あり)。
建物にはエレベーターがついているので、重い荷物があっても安心。共用部には宅配ボックスが設定されているので、不在の時にも荷物を受け取ることができます。
このお部屋は2階以上に位置しているので、通行人や周囲の住人からの視線が気になりにくく、防犯面でも安心。建物のエントランスはオートロックがついており、インターホンにはTVモニタもついているため、相手の顔を確認してから来客対応することができます。
フローリングのお部屋なのでお掃除もラクラク。キッチンはシステムキッチン仕様になっていますので、お料理好きの方にもぴったり。バス・トイレは別なので、のんびりお風呂タイムも楽しめるでしょう。また、雨の日でも浴室乾燥機を使えば、お洗濯も問題ありません。
通信設備面では、インターネットが無料で使えるので、月々の出費を抑えられるのも魅力です(別途工事等が必要な場合あり)。
建物にはエレベーターがついているので、重い荷物があっても安心。共用部には宅配ボックスが設定されているので、不在の時にも荷物を受け取ることができます。
お金・契約の情報
※「-」と表示されているものは、実際は料金が発生するものもございます。詳細はお問い合わせください。
| 家賃 | 13万円 | 管理費・共益費 | 8,000円 |
|---|---|---|---|
| 敷金 | 13万円 | 礼金 | 13万円 |
| 入居決定でお祝い金最大100,000円 | |||
| 保証金 | - | 償却・敷引 | - |
| 住宅保険料 | - | 更新料 | - |
| 保証会社利用 | 必須 | 保証会社名 | - |
| 保証会社費用 | - | 保証会社備考 | 保証会社利用必 初回保証料:賃料等の50% 詳細はお問い合わせください。 |
| 契約形態 | - | 契約期間 | - |
| 入居・引渡期間 | 相談 | 現況 | - |
| 契約備考 | 巡回管理/短期解約違約金有※詳細はお問い合わせください 駐輪場・バイク置場:※詳細はお問い合わせください 退去時ハウスクリーニング:借主負担 合計1.65万円(内訳:鍵交換代1.65万円) 1K 単身者可 普通借家2年 損保【要】 バストイレ別、バルコニー、エアコン、ガスコンロ対応、クロゼット、フローリング、TVインターホン、浴室乾燥機、オートロック、室内洗濯置、シューズボックス、システムキッチン、温水洗浄便座、エレベーター、洗面化粧台、2口コンロ、駐輪場、宅配ボックス、防犯カメラ、保証人不要、バイク置場、2沿線利用可、ディンプルキー、ネット使用料不要、ダブルロックキー、2駅利用可、3駅以上利用可、3沿線以上利用可、駅徒歩5分以内、駅徒歩10分以内、敷地内ごみ置き場、都市ガス、シューズWIC、保証会社利用可 | ||
部屋の情報
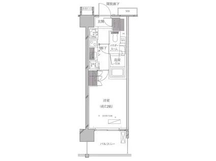
| 間取り | 1K | 専有面積 | 25.5m2 |
|---|---|---|---|
| 所在階 / 向き | 3階 / - | バルコニー面積 | - |
| 水道 / ガス | - | ||
| 設備 | バス・トイレ別、2階以上、オートロック、テレビドアホン、宅配ボックス、浴室乾燥機、インターネット対応、システムキッチン、エアコン、エレベーター、温水洗浄便座、バルコニー、フローリング、2口コンロ、コンロ:ガス、インターネット使用料無料、洗濯機:室内 | ||
| 当社物件ID | 148370839 | ||
建物の情報
| 建物名 | A-STANDARD芝浦 エースタンダード芝浦 | ||
|---|---|---|---|
| 所在地 | 東京都港区海岸 | ||
| 交通 | 新交通ゆりかもめ 芝浦ふ頭駅 徒歩4分 JR山手線 田町駅(東京) 徒歩12分 都営三田線 三田駅(東京) 徒歩16分 | ||
| 階数 | 12階建 | 総戸数 | - |
| 築年月 | 2017年01月 / 築10年 | エレベーター | あり |
| 駐車場 | なし | バイク置き場 | あり |
| 駐輪場 | あり | 管理人/管理会社 | - |
| 周辺環境 | その他 ファミリーマート 海岸三丁目店(コンビニ)まで65m その他 まいばすけっと 海岸3丁目店(スーパー)まで119m その他 田町芝浦ファミリー薬局(ドラッグストア)まで649m | ||
| 建物種別 | マンション | 建物構造 | RC(鉄筋コンクリート) |
この部屋の取扱い不動産会社
| 会社名 | そらうみリアルエステート(株)賃貸事業本部(SUUMO経由) | ||
|---|---|---|---|
| 所在地 | 東京都港区麻布十番1-11-16 SHビル1階 | 交通 | - |
| 営業時間 | 午前9時30分~午後9時30分 | 定休日 | 無休 |
| 免許番号 | 東京都知事94395 | 取引態様 | 仲介 |
| 不動産会社管理番号 | 100481627846 | 当社管理番号 | 89 |
| 所属団体 | (公社)東京都宅地建物取引業協会会員 | ||
| 公正取引協議会 | (公社)首都圏不動産公正取引協議会加盟 | ||
| 取扱い物件情報 | 物件詳細へ | ||
※各種情報と現状に差異がある場合は、現状優先となります。問い合わせをすることで、より詳しい条件、情報を確認する事ができます。
提供:そらうみリアルエステート(株)賃貸事業本部(SUUMO経由)
この物件が気になったら掲載期限まであと11日
A-STANDARD芝浦 エースタンダード芝浦に条件(家賃・エリア)が近い物件一覧
| 写真 | 家賃 管理費等 | 敷金 礼金 | 間取り 専有面積 | 築年数 | 最寄り駅 所在地 | キープ | 詳細 |
|---|---|---|---|---|---|---|---|
マンション パークホームズ千代田淡路町(1K/4階) | |||||||
![]() | 15万円 なし | 15万円 15万円 | 1K 25.35m2 | 築8年 | 東京地下鉄丸ノ内線 淡路町駅 徒歩3分 東京地下鉄銀座線 神田駅(東京) 徒歩3分 山手線 神田駅(東京) 徒歩5分 東京都千代田区神田須田町1丁目 | 詳細を見る | |
マンション ブラウ戸越銀座スカイ(1K/3階) | |||||||
![]() | 11.2万円 1万円 | 11.2万円 11.2万円 | 1K 20.58m2 | 築5年 | 東急池上線 戸越銀座駅 徒歩5分 都営浅草線 戸越駅 徒歩7分 東急池上線 荏原中延駅 徒歩12分 東京都品川区平塚 | 詳細を見る | |
マンション パークキューブ神田(1K/10階) | |||||||
![]() | 15.3万円 1万円 | 15.3万円 15.3万円 | 1K 30.7m2 | 築21年 | 東京都新宿線 岩本町駅 徒歩3分 中央本線 神田駅(東京) 徒歩3分 山手線 秋葉原駅 徒歩6分 東京都千代田区神田須田町2丁目 | 詳細を見る | |
マンション ARKMARK水天宮前II(1DK/4階) | |||||||
![]() | 13.4万円 1.5万円 | なし なし | 1DK 25.56m2 | 築5年 | 東京メトロ半蔵門線 水天宮前駅 徒歩7分 都営大江戸線 門前仲町駅 徒歩10分 都営大江戸線 清澄白河駅 徒歩13分 東京都江東区佐賀 | 詳細を見る | |
マンション プチトリアノン(1K/1階) | |||||||
![]() | 7.8万円 3,000円 | 7.8万円 なし | 1K 21.55m2 | 築25年 | JR横須賀線 西大井駅 徒歩12分 JR京浜東北線 大森駅(東京) 徒歩16分 都営浅草線 馬込駅 徒歩20分 東京都品川区西大井 | 詳細を見る | |
マンション GENOVIA 大崎 SKYGARDEN(1K/4階) | |||||||
![]() | 11.4万円 1.5万円 | なし 11.4万円 | 1K 20.83m2 | 築5年 | 都営浅草線 戸越駅 徒歩10分 東急大井町線 下神明駅 徒歩10分 東急池上線 戸越銀座駅 徒歩11分 東京都品川区豊町 | 詳細を見る | |
マンション 品川シーサイドビュータワー2(1LDK/19階) | |||||||
![]() | 18.7万円 1.6万円 | なし 37.4万円 | 1LDK 53.13m2 | 築23年 | 東京臨海高速鉄道 品川シーサイド駅 徒歩3分 京浜急行電鉄本線 青物横丁駅 徒歩10分 京浜東北・根岸線 大井町駅 徒歩17分 東京都品川区東品川4丁目 | 詳細を見る | |
マンション 品川中延ステーションレジデンス(1K/4階) | |||||||
![]() | 8.5万円 6,000円 | 8.5万円 8.5万円 | 1K 19.71m2 | 築35年 | 都営浅草線 中延駅 徒歩1分 東急大井町線 中延駅 徒歩2分 東急大井町線 荏原町駅 徒歩10分 東京都品川区豊町 | 詳細を見る | |








