賃貸マンション
GENOVIA赤羽の賃貸物件情報(1DK/2階)
| 家賃 | 管理費等 | 敷金 | 礼金 | 間取り | 専有面積 |
|---|---|---|---|---|---|
| 10.4万円 | 1万円 | なし | なし | 1DK | 25.17m2 |
入居決定でお祝い金最大100,000円
- 保証金
- -
- 償却・敷引
- -
- 築年数
- 築2年
- 所在階
- 2階
- 向き
- 北
Point
業界歴3年以上のベテランスタッフが多く在籍しており「経験」を生かした接客が自慢です!他社では取扱いのない「弊社専任物件」も多数有!お客様のご条件をしっかりとヒアリングしベストな物件をご紹介いたします!
提供:(株)ハウスマ巣鴨店(SUUMO経由)

詳細情報 GENOVIA赤羽
物件紹介
GENOVIA赤羽は東京メトロ南北線赤羽岩淵駅から徒歩8分にあり、駅近で通勤通学に便利なマンションです。
このお部屋は2階以上に位置しているので、通行人や周囲の住人からの視線が気になりにくく、防犯面でも安心。建物のエントランスはオートロックがついており、インターホンにはTVモニタもついているため、相手の顔を確認してから来客対応することができます。
人気の角部屋で周囲の居住者の生活音も気になりにくく、また、フローリングのお部屋なのでお掃除もラクラク。キッチンはシステムキッチン仕様になっていますので、お料理好きの方にもぴったり。バス・トイレは別なので、のんびりお風呂タイムも楽しめるでしょう。また、雨の日でも浴室乾燥機を使えば、お洗濯も問題ありません。
通信設備面では、インターネットが無料で使えるので、月々の出費を抑えられるのも魅力です。また、BSアンテナ・CSアンテナもありますので、おうち時間も充実するでしょう(別途工事、BS・CSの契約料等が必要な場合あり)。
建物にはエレベーターがついているので、重い荷物があっても安心。共用部には宅配ボックスが設定されているので、不在の時にも荷物を受け取ることができます。また、ペット飼育の相談ができますので、あなたの大切な家族の一員も快適に暮らせるか、ぜひ確認してみてください。
このお部屋は2階以上に位置しているので、通行人や周囲の住人からの視線が気になりにくく、防犯面でも安心。建物のエントランスはオートロックがついており、インターホンにはTVモニタもついているため、相手の顔を確認してから来客対応することができます。
人気の角部屋で周囲の居住者の生活音も気になりにくく、また、フローリングのお部屋なのでお掃除もラクラク。キッチンはシステムキッチン仕様になっていますので、お料理好きの方にもぴったり。バス・トイレは別なので、のんびりお風呂タイムも楽しめるでしょう。また、雨の日でも浴室乾燥機を使えば、お洗濯も問題ありません。
通信設備面では、インターネットが無料で使えるので、月々の出費を抑えられるのも魅力です。また、BSアンテナ・CSアンテナもありますので、おうち時間も充実するでしょう(別途工事、BS・CSの契約料等が必要な場合あり)。
建物にはエレベーターがついているので、重い荷物があっても安心。共用部には宅配ボックスが設定されているので、不在の時にも荷物を受け取ることができます。また、ペット飼育の相談ができますので、あなたの大切な家族の一員も快適に暮らせるか、ぜひ確認してみてください。
お金・契約の情報
※「-」と表示されているものは、実際は料金が発生するものもございます。詳細はお問い合わせください。
| 家賃 | 10.4万円 | 管理費・共益費 | 1万円 |
|---|---|---|---|
| 敷金 | なし | 礼金 | なし |
| 入居決定でお祝い金最大100,000円 | |||
| 保証金 | - | 償却・敷引 | - |
| 住宅保険料 | - | 更新料 | - |
| 保証会社利用 | 必須 | 保証会社名 | - |
| 保証会社費用 | - | 保証会社備考 | 保証会社利用必 ルームバンクインシュア 一番手「RBI」初回保証料:50%(ペット飼育時100%) 外国籍:100%+外国籍サポート年間10,800円 (※審査により変更有・要確認) 外国籍家賃:クレカQR決 |
| 契約形態 | - | 契約期間 | - |
| 入居・引渡期間 | - | 現況 | - |
| 入居可能条件 | ペット相談 | ||
| 契約備考 | 東京メトロ南北線志茂駅徒歩23分/「初めての一人暮らし」や「初めての同棲」「初めてのルームシェア」など「初めて賃貸物件」をお探しのお客様は是非、株式会社ハウスマにお任せ下さい。賃貸物件や賃貸借契約のことを一から丁寧にご説明させていただきます。また、「オンライン内見」や「オンライン契約」にも対応しておりますので遠方からのお引越しや忙しくて見学出来ないお客様もお気軽にお申し付けください!スタッフ全員でお探しさせていただきます 合計3.85万円(内訳:契約事務手数料:11000円/鍵交換代:27500円) 更新料新賃料(ヶ月):1.00ヶ月 1DK 単身者可/二人入居可/ペット相談 普通借家2年 損保【要】 バストイレ別、バルコニー、エアコン、ガスコンロ対応、クロゼット、フローリング、シャワー付洗面台、TVインターホン、浴室乾燥機、オートロック、室内洗濯置、陽当り良好、シューズボックス、システムキッチン、角住戸、温水洗浄便座、脱衣所、エレベーター、洗面所独立、2口コンロ、駐輪場、宅配ボックス、礼金不要、2面採光、BS・CS、敷金不要、防犯カメラ、ペット相談、全居室収納、保証人不要、単身者相談、二人入居相談、バイク置場、全居室フローリング、ディンプルキー、ネット専用回線、ネット使用料不要、眺望良好、ダブルロックキー、保証金不要、24時間換気システム、複層ガラス、クロゼット2ヶ所、24時間ゴミ出し可、敷地内ごみ置き場、都市ガス、玄関収納、敷金・礼金不要、IT重説対応物件、初期費用カード決済可、通風良好 入居日:'26年3月下旬 | ||
部屋の情報
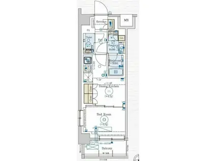
| 間取り | 1DK | 専有面積 | 25.17m2 |
|---|---|---|---|
| 所在階 / 向き | 2階 / 北 | バルコニー面積 | - |
| 水道 / ガス | - | ||
| 設備 | バス・トイレ別、2階以上、オートロック、テレビドアホン、宅配ボックス、浴室乾燥機、インターネット対応、システムキッチン、エアコン、エレベーター、温水洗浄便座、角部屋、バルコニー、フローリング、洗髪洗面化粧台、2口コンロ、コンロ:ガス、CSアンテナ、BSアンテナ、インターネット使用料無料、洗濯機:室内 | ||
| 当社物件ID | 157351380 | ||
建物の情報
| 建物名 | GENOVIA赤羽 | ||
|---|---|---|---|
| 所在地 | 東京都北区赤羽北 | ||
| 交通 | 東京メトロ南北線 赤羽岩淵駅 徒歩8分 JR埼京線 北赤羽駅 徒歩16分 JR埼京線 赤羽駅 徒歩17分 | ||
| 階数 | 7階建 | 総戸数 | - |
| 築年月 | 2024年03月 / 築2年 | エレベーター | あり |
| 駐車場 | 近隣 100m28500円 | バイク置き場 | あり |
| 駐輪場 | あり | 管理人/管理会社 | - |
| 周辺環境 | その他 miniピアゴ赤羽北3丁目店(スーパー)まで80m その他 ファミリーマート小豆沢二丁目店(コンビニ)まで710m その他 どらっぐぱぱす小豆沢店(ドラッグストア)まで400m その他 ミスタードーナツセブンタウン小豆沢ショップ(飲食店)まで1240m その他 板橋志村郵便局(郵便局)まで1300m その他 志村警察署(警察署・交番)まで1290m | ||
| 建物種別 | マンション | 建物構造 | RC(鉄筋コンクリート) |
この部屋の取扱い不動産会社
| 会社名 | (株)ハウスマ巣鴨店(SUUMO経由) | ||
|---|---|---|---|
| 所在地 | 東京都豊島区巣鴨1-11-4 スカイタワーアネックス3階 | 交通 | - |
| 営業時間 | 9:30~18:00 | 定休日 | 毎週水曜日及び第一火曜日 |
| 免許番号 | 東京都知事97207 | 取引態様 | 仲介 |
| 不動産会社管理番号 | 100489384876 | 当社管理番号 | 89 |
| 所属団体 | (公社)東京都宅地建物取引業協会会員 | ||
| 公正取引協議会 | (公社)首都圏不動産公正取引協議会加盟 | ||
| 取扱い物件情報 | 物件詳細へ | ||
※各種情報と現状に差異がある場合は、現状優先となります。問い合わせをすることで、より詳しい条件、情報を確認する事ができます。
提供:(株)ハウスマ巣鴨店(SUUMO経由)
この物件が気になったら掲載期限まであと11日
GENOVIA赤羽に条件(家賃・エリア)が近い物件一覧
| 写真 | 家賃 管理費等 | 敷金 礼金 | 間取り 専有面積 | 築年数 | 最寄り駅 所在地 | キープ | 詳細 |
|---|---|---|---|---|---|---|---|
マンション ロアール御茶ノ水順天堂大学前(1K/9階) | |||||||
![]() | 11.4万円 1.1万円 | なし 11.4万円 | 1K 20.49m2 | 築24年 | 東京メトロ丸ノ内線 本郷三丁目駅 徒歩5分 都営三田線 水道橋駅 徒歩8分 JR中央線 御茶ノ水駅 徒歩9分 東京都文京区本郷 | 詳細を見る | |
マンション ノーブルガーデン駒込(ワンルーム/4階) | |||||||
![]() | 11.5万円 6,000円 | 11.5万円 11.5万円 | ワンルーム 32.25m2 | 築19年 | JR山手線 駒込駅 徒歩4分 都営三田線 千石駅 徒歩10分 JR山手線 巣鴨駅 徒歩14分 東京都豊島区駒込 | 詳細を見る | |
マンション エスコート東大前(1K/6階) | |||||||
![]() | 11.5万円 1.1万円 | なし 11.5万円 | 1K 19.38m2 | 築26年 | 東京メトロ南北線 本駒込駅 徒歩2分 都営三田線 白山駅(東京) 徒歩4分 東京メトロ千代田線 千駄木駅 徒歩12分 東京都文京区向丘 | 詳細を見る | |
マンション ARCOBALENO HASUNEⅠ(1DK/2階) | |||||||
![]() | 9.85万円 1.5万円 | なし 4.925万円 | 1DK 25.95m2 | 築1年 | 東京都三田線 蓮根駅 徒歩10分 埼京線 浮間舟渡駅 徒歩18分 東京都板橋区東坂下2丁目 | 詳細を見る | |
アパート パラッツォ ビアンカ(2LDK/2階) | |||||||
![]() | 11.95万円 4,100円 | なし 17.93万円 | 2LDK 54.61m2 | 新築 | 東武伊勢崎線 谷塚駅 徒歩30分 つくばエクスプレス 六町駅 徒歩32分 東武伊勢崎線 竹ノ塚駅 徒歩35分 東京都足立区花畑 | 詳細を見る | |
マンション ALTERNA東池袋(2K/7階) | |||||||
![]() | 15.3万円 1万円 | なし なし | 2K 25.74m2 | 築4年 | 都電荒川線 都電雑司ケ谷駅 徒歩4分 東京メトロ有楽町線 東池袋駅 徒歩5分 都電荒川線 東池袋四丁目駅 徒歩7分 東京都豊島区南池袋 | 詳細を見る | |
アパート レオパレスレガーロ中十条(1K/2階) | |||||||
![]() | 8.1万円 5,500円 | なし 8.1万円 | 1K 20.28m2 | 築19年 | JR京浜東北線 東十条駅 徒歩11分 JR埼京線 十条駅(東京) 徒歩18分 JR京浜東北線 赤羽駅 徒歩18分 東京都北区中十条 | 詳細を見る | |
アパート アンジュール小豆沢(1LDK/1階) | |||||||
![]() | 14.2万円 6,000円 | なし なし | 1LDK 42.21m2 | 築4年 | 都営三田線 志村坂上駅 徒歩9分 都営三田線 本蓮沼駅 徒歩9分 JR京浜東北線 赤羽駅 徒歩27分 東京都板橋区小豆沢 | 詳細を見る | |









