賃貸アパート
エイトピュア汐見台の賃貸物件情報(1LDK/2階)
| 家賃 | 管理費等 | 敷金 | 礼金 | 間取り | 専有面積 |
|---|---|---|---|---|---|
| 11万円 | 4,000円 | 22万円 | 11万円 | 1LDK | 46.37m2 |
入居決定でお祝い金最大100,000円
- 保証金
- -
- 償却・敷引
- -
- 築年数
- 築1年
- 所在階
- 2階
- 向き
- -
Point
モニタ付オートロック完備、1LDKタイプの新築物件です。収納スペース/室内洗濯機置場/浴室乾燥機等の設備あり。
提供:ユーミーらいふ茅ヶ崎店(株)ユーミーネット湘南(SUUMO経由)

詳細情報 エイトピュア汐見台
物件紹介
エイトピュア汐見台は湘南新宿ライン高海辻堂駅から徒歩23分にあるアパートです。
このお部屋は2階以上に位置しているので、通行人や周囲の住人からの視線が気になりにくく、防犯面でも安心。建物のエントランスはオートロックがついており、インターホンにはTVモニタもついているため、相手の顔を確認してから来客対応することができます。
人気の角部屋で周囲の居住者の生活音も気になりにくく、また、フローリングのお部屋なのでお掃除もラクラク。キッチンはシステムキッチン仕様になっていますので、お料理好きの方にもぴったり。バス・トイレは別なので、のんびりお風呂タイムも楽しめるでしょう。また、雨の日でも浴室乾燥機を使えば、お洗濯も問題ありません。
通信設備面では、インターネット接続が可能です。また、CATVにも対応しているので、おうち時間も充実するでしょう(別途工事、契約料が必要な場合あり)。
共用部には宅配ボックスが設定されているので、不在の時にも荷物を受け取ることができます。
このお部屋は2階以上に位置しているので、通行人や周囲の住人からの視線が気になりにくく、防犯面でも安心。建物のエントランスはオートロックがついており、インターホンにはTVモニタもついているため、相手の顔を確認してから来客対応することができます。
人気の角部屋で周囲の居住者の生活音も気になりにくく、また、フローリングのお部屋なのでお掃除もラクラク。キッチンはシステムキッチン仕様になっていますので、お料理好きの方にもぴったり。バス・トイレは別なので、のんびりお風呂タイムも楽しめるでしょう。また、雨の日でも浴室乾燥機を使えば、お洗濯も問題ありません。
通信設備面では、インターネット接続が可能です。また、CATVにも対応しているので、おうち時間も充実するでしょう(別途工事、契約料が必要な場合あり)。
共用部には宅配ボックスが設定されているので、不在の時にも荷物を受け取ることができます。
お金・契約の情報
※「-」と表示されているものは、実際は料金が発生するものもございます。詳細はお問い合わせください。
| 家賃 | 11万円 | 管理費・共益費 | 4,000円 |
|---|---|---|---|
| 敷金 | 22万円 | 礼金 | 11万円 |
| 入居決定でお祝い金最大100,000円 | |||
| 保証金 | - | 償却・敷引 | - |
| 住宅保険料 | - | 更新料 | - |
| 保証会社利用 | 必須 | 保証会社名 | - |
| 保証会社費用 | - | 保証会社備考 | 保証会社利用必 エルズサポート株式会社 初回保証料:賃料等総額の50% 以後年間継続保証料:12,000円/年、引落手数料:毎月440円 |
| 契約形態 | - | 契約期間 | - |
| 入居・引渡期間 | 即時 | 現況 | - |
| 契約備考 | コンシェルジェ241100円/月 1LDK 二人入居可 普通借家2年 損保【2万円2年】 バストイレ別、バルコニー、クロゼット、フローリング、TVインターホン、浴室乾燥機、オートロック、室内洗濯置、シューズボックス、システムキッチン、追焚機能浴室、温水洗浄便座、脱衣所、洗面所独立、洗面化粧台、駐輪場、宅配ボックス、CATV、即入居可、2面採光、最上階、3口以上コンロ、対面式キッチン、全居室収納、オートバス、全居室フローリング、2沿線利用可、浄水器、敷金2ヶ月、保証金不要、浴室に窓、雨戸、築2年以内、複層ガラス、3駅以上利用可、上階無し、LDK12畳以上、都市ガス、洗面所に窓、洗面所にドア、ワイドバルコニー、シャッター、シューズWIC、礼金1ヶ月、IT重説対応物件、初期費用カード決済可 | ||
部屋の情報
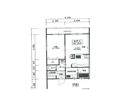
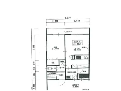
| 間取り | 1LDK | 専有面積 | 46.37m2 |
|---|---|---|---|
| 所在階 / 向き | 2階 / - | バルコニー面積 | - |
| 水道 / ガス | - | ||
| 設備 | バス・トイレ別、2階以上、オートロック、テレビドアホン、宅配ボックス、浴室乾燥機、追い焚き、システムキッチン、温水洗浄便座、バルコニー、フローリング、洗髪洗面化粧台、2口コンロ、CATV、洗濯機:室内 | ||
| 当社物件ID | 160204097 | ||
建物の情報
| 建物名 | エイトピュア汐見台 | ||
|---|---|---|---|
| 所在地 | 神奈川県茅ヶ崎市汐見台 | ||
| 交通 | 湘南新宿ライン高海 辻堂駅 徒歩23分 湘南新宿ライン高海 茅ケ崎駅 徒歩45分 小田急江ノ島線 鵠沼海岸駅 徒歩46分 | ||
| 階数 | 2階建 | 総戸数 | 6戸 |
| 築年月 | 2026年02月 / 築1年 | エレベーター | - |
| 駐車場 | 空有 10000円 | バイク置き場 | - |
| 駐輪場 | あり | 管理人/管理会社 | - |
| 周辺環境 | その他 クリエイトエス・ディー茅ヶ崎常盤町店(ドラッグストア)まで573m その他 セブンイレブン 茅ヶ崎浜竹4丁目店(コンビニ)まで653m その他 マルエツ なぎさモール辻堂店(スーパー)まで537m その他 OK(オーケー) 辻堂店(スーパー)まで910m その他 SUPER MARKET FUJI(スーパーマーケットフジ)(スーパー)まで1321m その他 ミニストップ 茅ケ崎美住町店(コンビニ)まで1766m | ||
| 建物種別 | アパート | 建物構造 | 木造 |
この部屋の取扱い不動産会社
| 会社名 | ユーミーらいふ藤沢店(株)ユーミーネット湘南(SUUMO経由) | ||
|---|---|---|---|
| 所在地 | 神奈川県藤沢市藤沢 556竹井ビル1F | 交通 | - |
| 営業時間 | 9:30~18:00 | 定休日 | 水曜日(1月~3月は無休) |
| 免許番号 | 神奈川県知事32294 | 取引態様 | 仲介 |
| 不動産会社管理番号 | 100492392495 | 当社管理番号 | 89 |
| 所属団体 | (公社)神奈川県宅地建物取引業協会会員 | ||
| 公正取引協議会 | (公社)首都圏不動産公正取引協議会加盟 | ||
| 取扱い物件情報 | 物件詳細へ | ||
※各種情報と現状に差異がある場合は、現状優先となります。問い合わせをすることで、より詳しい条件、情報を確認する事ができます。
提供:ユーミーらいふ藤沢店(株)ユーミーネット湘南(SUUMO経由)
この物件が気になったら掲載期限まであと11日
エイトピュア汐見台に条件(家賃・エリア)が近い物件一覧
| 写真 | 家賃 管理費等 | 敷金 礼金 | 間取り 専有面積 | 築年数 | 最寄り駅 所在地 | キープ | 詳細 |
|---|---|---|---|---|---|---|---|
アパート グレイスコートII(2LDK/2階) | |||||||
![]() | 7.3万円 3,500円 | なし 14.6万円 | 2LDK 54.38m2 | 築13年 | JR相模線 倉見駅 徒歩13分 神奈川県高座郡寒川町倉見 | 詳細を見る | |
アパート SHONAN-SO(2K/1階) | |||||||
![]() | 8.5万円 1,000円 | 8.5万円 8.5万円 | 2K 29m2 | 築55年 | JR東海道本線 茅ケ崎駅 徒歩5分 JR相模線 茅ケ崎駅 徒歩5分 JR相模線 北茅ケ崎駅 徒歩20分 神奈川県茅ヶ崎市新栄町 | 詳細を見る | |
アパート ヴィラソラーレ湘南III(2LDK/1階) | |||||||
![]() | 11.3万円 6,000円 | なし 11.3万円 | 2LDK 58.75m2 | 築14年 | 神奈川県藤沢市村岡東 | 詳細を見る | |
アパート カルニュ(2LDK/2階) | |||||||
![]() | 16万円 5,000円 | なし 32万円 | 2LDK 49.6m2 | 新築 | JR東海道本線 辻堂駅 徒歩9分 神奈川県藤沢市辻堂新町 | 詳細を見る | |
マンション シーライト湘南(2LDK/5階) | |||||||
![]() | 10万円 7,000円 | なし 10万円 | 2LDK 55.44m2 | 築38年 | 小田急江ノ島線 湘南台駅 徒歩1分 小田急江ノ島線 六会日大前駅 徒歩20分 ブルーライン 立場駅 徒歩56分 神奈川県藤沢市湘南台 | 詳細を見る | |
マンション へーベルメゾン湘南本町(1LDK/1階) | |||||||
![]() | 11.3万円 7,000円 | 11.3万円 22.6万円 | 1LDK 48.15m2 | 築3年 | 小田急江ノ島線 藤沢本町駅 徒歩7分 江ノ島電鉄線 藤沢駅 徒歩17分 小田急江ノ島線 本鵠沼駅 徒歩25分 神奈川県藤沢市本町 | 詳細を見る | |
アパート シーテラス(1LDK/2階) | |||||||
![]() | 9.8万円 6,000円 | なし 19.6万円 | 1LDK 36.25m2 | 築10年 | JR東海道本線 辻堂駅 徒歩2分 神奈川県茅ヶ崎市浜竹 | 詳細を見る | |







