賃貸マンション
ビレッジハウス一宮タワー2号棟の賃貸物件情報(3DK/2階)
| 家賃 | 管理費等 | 敷金 | 礼金 | 間取り | 専有面積 |
|---|---|---|---|---|---|
| 5.12万円 | なし | なし | なし | 3DK | 56.61m2 |
入居決定でお祝い金最大100,000円
- 保証金
- -
- 償却・敷引
- -
- 築年数
- 築55年
- 所在階
- 2階
- 向き
- 南
Point
まずはお問い合わせ!
不動産会社は街のプロ、あなたに合った物件がきっと見つかります。
提供:ビレッジハウス住まい相談センター

詳細情報 ビレッジハウス一宮タワー2号棟
物件紹介
ビレッジハウス一宮タワー2号棟は名鉄尾西線奥町駅から徒歩36分にあるマンションです。
このお部屋は2階以上に位置しているので、通行人や周囲の住人からの視線が気になりにくく、防犯面でも安心です。
人気の南向きのお部屋。角部屋でもあるため、周囲の居住者の生活音も気になりにくい場所です。バス・トイレ別の仕様で、のんびりお風呂タイムも楽しめます。
通信設備面では、インターネット接続が可能です(別途工事、契約料が必要な場合あり)。
ペット飼育の相談ができますので、あなたの大切な家族の一員も快適に暮らせるか、ぜひ確認してみてください。
このお部屋は2階以上に位置しているので、通行人や周囲の住人からの視線が気になりにくく、防犯面でも安心です。
人気の南向きのお部屋。角部屋でもあるため、周囲の居住者の生活音も気になりにくい場所です。バス・トイレ別の仕様で、のんびりお風呂タイムも楽しめます。
通信設備面では、インターネット接続が可能です(別途工事、契約料が必要な場合あり)。
ペット飼育の相談ができますので、あなたの大切な家族の一員も快適に暮らせるか、ぜひ確認してみてください。
お金・契約の情報
※「-」と表示されているものは、実際は料金が発生するものもございます。詳細はお問い合わせください。
| 家賃 | 5.12万円 | 管理費・共益費 | なし |
|---|---|---|---|
| 敷金 | なし | 礼金 | なし |
| フリーレント | 1ヶ月 | ||
| 入居決定でお祝い金最大100,000円 | |||
| 保証金 | - | 償却・敷引 | - |
| 住宅保険料 | 1万円(2年) | 更新料 | - |
| 保証会社利用 | - | 保証会社名 | - |
| 保証会社費用 | - | 保証会社備考 | - |
| 契約形態 | - | 契約期間 | - |
| 入居・引渡期間 | - | 現況 | 空室 |
| 入居可能条件 | 2人入居可、高齢者相談、学生可、ペット相談 | ||
| 契約備考 | 契約種類:普通契約、24時間緊急対応、ウォシュレット、ウォームレット | ||
部屋の情報
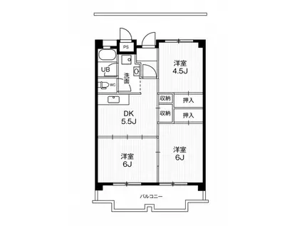
| 間取り | 3DK | 専有面積 | 56.61m2 |
|---|---|---|---|
| 所在階 / 向き | 2階 / 南 | バルコニー面積 | - |
| 水道 / ガス | - | ||
| 設備 | バス・トイレ別、追い焚き、光ファイバー対応、エアコン、角部屋、バルコニー、2口コンロ、給湯、洗濯機:室内 | ||
| 当社物件ID | 160339168 | ||
建物の情報
| 建物名 | ビレッジハウス一宮タワー2号棟 | ||
|---|---|---|---|
| 所在地 | 愛知県一宮市起44-1 | ||
| 交通 | 名鉄尾西線 奥町駅 徒歩36分 名鉄尾西線 開明駅 徒歩47分 名鉄尾西線 西一宮駅 徒歩57分 | ||
| 階数 | 4階建 | 総戸数 | - |
| 築年月 | 1971年03月 / 築55年 | エレベーター | - |
| 駐車場 | 空有 3,960円/月 円 | バイク置き場 | - |
| 駐輪場 | - | 管理人/管理会社 | 日勤 |
| 建物種別 | マンション | 建物構造 | SRC(鉄骨鉄筋コンクリート) |
この部屋の取扱い不動産会社
| 会社名 | ビレッジハウス住まい相談センター | ||
|---|---|---|---|
| 所在地 | 愛知県名古屋市中区大須4-10-32 上前津KDビル5階 | 交通 | 名城線「上前津駅」徒歩3分 |
| 営業時間 | 平日:9:00-18:30/土日祝:9:00-18:00 | 定休日 | 年中無休(年末年始を除く) |
| 免許番号 | 東京都知事(2)第100758号 | 取引態様 | 貸主 |
| 不動産会社管理番号 | 00013693658 | 当社管理番号 | 459 |
| 所属団体 | 公益社団法人東京都宅地建物取引業協会会員 日本賃貸住宅管理協会会員 | ||
| 取扱い物件情報 | 物件詳細へ | ||
※各種情報と現状に差異がある場合は、現状優先となります。問い合わせをすることで、より詳しい条件、情報を確認する事ができます。
提供:ビレッジハウス住まい相談センター
この物件が気になったら掲載期限まであと12日
ビレッジハウス一宮タワー2号棟に条件(家賃・エリア)が近い物件一覧
| 写真 | 家賃 管理費等 | 敷金 礼金 | 間取り 専有面積 | 築年数 | 最寄り駅 所在地 | キープ | 詳細 |
|---|---|---|---|---|---|---|---|
アパート エバーグリーン(ワンルーム/2階) | |||||||
![]() | 3.3万円 2,000円 | なし なし | ワンルーム 20m2 | 築36年 | 名鉄犬山線 岩倉駅(愛知) 徒歩7分 愛知県岩倉市本町門前 | 詳細を見る | |
アパート ルミエール高根(2LDK/1階) | |||||||
![]() | 5.5万円 4,000円 | なし なし | 2LDK 65.57m2 | 築30年 | 名鉄犬山線 江南駅(愛知) 徒歩18分 名鉄犬山線 布袋駅 徒歩28分 名鉄犬山線 柏森駅 徒歩33分 愛知県江南市今市場町高根 | 詳細を見る | |
アパート フォルッシュ ドライ II(2LDK/2階) | |||||||
![]() | 5.9万円 2,600円 | なし 6.9万円 | 2LDK 58.75m2 | 築17年 | 愛知県一宮市千秋町浅野羽根ハシノミ | 詳細を見る | |
アパート LA・LA(1LDK/3階) | |||||||
![]() | 7.1万円 4,000円 | なし 7.1万円 | 1LDK 40.44m2 | 築1年 | 名鉄犬山線 布袋駅 徒歩8分 愛知県江南市布袋町西 | 詳細を見る | |
アパート レオパレスラ・フォーレ一宮Ⅲ(1K/2階) | |||||||
![]() | 3.5万円 5,000円 | なし 3.5万円 | 1K 22.35m2 | 築22年 | 愛知県一宮市西島町3丁目 | 詳細を見る | |
マンション メゾン旭(3DK/3階) | |||||||
![]() | 4.8万円 3,000円 | なし なし | 3DK 58.32m2 | 築38年 | 愛知県一宮市平島1丁目 | 詳細を見る | |
マンション メゾンブランシュ(ワンルーム/2階) | |||||||
![]() | 3.3万円 6,000円 | なし なし | ワンルーム 17.49m2 | 築37年 | 名鉄名古屋本線 国府宮駅 徒歩12分 名鉄名古屋本線 奥田駅 徒歩35分 愛知県稲沢市稲沢町前田 | 詳細を見る | |
マンション マーベラス栄和 B棟(3LDK/1階) | |||||||
![]() | 6.7万円 3,000円 | なし なし | 3LDK 71.2m2 | 築28年 | JR東海交通事業城北線 比良駅(愛知) 徒歩26分 名鉄犬山線 西春駅 徒歩30分 名鉄犬山線 上小田井駅 徒歩31分 愛知県北名古屋市二子栄和 | 詳細を見る | |









