賃貸マンション
ザ・シティタワー大手前センチュリーの賃貸物件情報(2LDK/3階)
| 家賃 | 管理費等 | 敷金 | 礼金 | 間取り | 専有面積 |
|---|---|---|---|---|---|
| 16万円 | 2万円 | なし | 48万円 | 2LDK | 60.5m2 |
入居決定でお祝い金最大100,000円
- 保証金
- -
- 償却・敷引
- -
- 築年数
- 築25年
- 所在階
- 3階
- 向き
- 南
Point
天満橋駅近く、住環境良好好立地の分譲賃貸マンション!設備充実。スーパーすぐで買い物便利。
提供:アスモ不動産(株)天満橋店(SUUMO経由)

詳細情報 ザ・シティタワー大手前センチュリー
物件紹介
ザ・シティタワー大手前センチュリーは地下鉄谷町線天満橋駅から徒歩3分にあり、駅近で通勤通学に便利なマンションです。
このお部屋は2階以上に位置しているので、通行人や周囲の住人からの視線が気になりにくく、防犯面でも安心。建物のエントランスはオートロックがついており、インターホンにはTVモニタもついているため、相手の顔を確認してから来客対応することができます。
人気の南向き・フローリングのお部屋。室内にはウォークインクローゼットがありますので、たくさんの荷物も効率的に収納ができます。キッチンはシステムキッチン仕様になっていますので、お料理好きの方にもぴったり。バス・トイレは別なので、のんびりお風呂タイムも楽しめるでしょう。また、雨の日でも浴室乾燥機を使えば、お洗濯も問題ありません。
通信設備面では、インターネット接続が可能です。また、BSアンテナ・CSアンテナがありCATVにも対応しているので、おうち時間も充実するでしょう(別途工事、契約料が必要な場合あり)。
床暖房があり、冬も足元から暖かく快適に過ごすことができます。建物にはエレベーターがついているので、重い荷物があっても安心。共用部には宅配ボックスが設定されているので、不在の時にも荷物を受け取ることができます。
このお部屋は2階以上に位置しているので、通行人や周囲の住人からの視線が気になりにくく、防犯面でも安心。建物のエントランスはオートロックがついており、インターホンにはTVモニタもついているため、相手の顔を確認してから来客対応することができます。
人気の南向き・フローリングのお部屋。室内にはウォークインクローゼットがありますので、たくさんの荷物も効率的に収納ができます。キッチンはシステムキッチン仕様になっていますので、お料理好きの方にもぴったり。バス・トイレは別なので、のんびりお風呂タイムも楽しめるでしょう。また、雨の日でも浴室乾燥機を使えば、お洗濯も問題ありません。
通信設備面では、インターネット接続が可能です。また、BSアンテナ・CSアンテナがありCATVにも対応しているので、おうち時間も充実するでしょう(別途工事、契約料が必要な場合あり)。
床暖房があり、冬も足元から暖かく快適に過ごすことができます。建物にはエレベーターがついているので、重い荷物があっても安心。共用部には宅配ボックスが設定されているので、不在の時にも荷物を受け取ることができます。
お金・契約の情報
※「-」と表示されているものは、実際は料金が発生するものもございます。詳細はお問い合わせください。
| 家賃 | 16万円 | 管理費・共益費 | 2万円 |
|---|---|---|---|
| 敷金 | なし | 礼金 | 48万円 |
| 入居決定でお祝い金最大100,000円 | |||
| 保証金 | - | 償却・敷引 | - |
| 住宅保険料 | - | 更新料 | - |
| 保証会社利用 | 必須 | 保証会社名 | - |
| 保証会社費用 | - | 保証会社備考 | 保証会社利用必 保証料:賃料の60% Knet 更新保証料12000円/年毎 |
| 契約形態 | 定期借家 | 契約期間 | 5年 |
| 入居・引渡期間 | 即時 | 現況 | - |
| 契約備考 | 大阪市堺筋線/北浜駅徒歩11分/通勤管理/天満橋駅近く、住環境良好好立地の分譲賃貸マンション!設備充実。スーパーすぐで買い物便利。 鍵交換代28600円/駐輪場料金300円 2LDK 事務所利用不可 定期借家5年 損保【2.6万円2年】 バストイレ別、バルコニー、ガスコンロ対応、クロゼット、フローリング、TVインターホン、浴室乾燥機、オートロック、室内洗濯置、陽当り良好、シューズボックス、システムキッチン、南向き、追焚機能浴室、温水洗浄便座、脱衣所、エレベーター、洗面所独立、洗面化粧台、駐輪場、宅配ボックス、光ファイバー、即入居可、3口以上コンロ、防犯カメラ、独立型キッチン、分譲賃貸、グリル付、全居室洋室、ウォークインクロゼット、ディンプルキー、床暖房、食器洗乾燥機、オーブンレンジ、南面リビング、3駅以上利用可、3沿線以上利用可、駅徒歩5分以内、24時間ゴミ出し可、敷地内ごみ置き場、LDK12畳以上、ガラストップコンロ、都市ガス、洗面所にドア、三面鏡付洗面化粧台、南面バルコニー、通風良好 | ||
部屋の情報
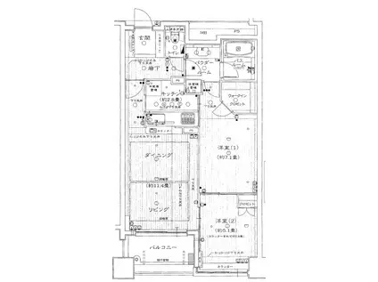
| 間取り | 2LDK | 専有面積 | 60.5m2 |
|---|---|---|---|
| 所在階 / 向き | 3階 / 南 | バルコニー面積 | 6m2 |
| 水道 / ガス | - | ||
| 設備 | バス・トイレ別、2階以上、オートロック、テレビドアホン、宅配ボックス、浴室乾燥機、ウォークインクローゼット、追い焚き、インターネット対応、システムキッチン、エレベーター、温水洗浄便座、南向き、バルコニー、フローリング、洗髪洗面化粧台、床暖房、2口コンロ、コンロ:ガス、洗濯機:室内 | ||
| 当社物件ID | 160159084 | ||
建物の情報
| 建物名 | ザ・シティタワー大手前センチュリー | ||
|---|---|---|---|
| 所在地 | 大阪府大阪市中央区船越町 | ||
| 交通 | 地下鉄谷町線 天満橋駅 徒歩3分 京阪本線 天満橋駅 徒歩4分 地下鉄中央線 谷町四丁目駅 徒歩7分 | ||
| 階数 | 14階建 | 総戸数 | - |
| 築年月 | 2001年03月 / 築25年 | エレベーター | あり |
| 駐車場 | 空有 27000円 | バイク置き場 | - |
| 駐輪場 | あり | 管理人/管理会社 | - |
| 周辺環境 | その他 ライフ天神橋店(スーパー)まで509m その他 ファミリーマート内平野町店(コンビニ)まで118m その他 京阪シティモール(ショッピングセンター)まで552m その他 コーヨー内本町店(スーパー)まで692m その他 コクミンドラッグ京阪天満橋駅店(ドラッグストア)まで545m その他 大阪高麗橋郵便局(郵便局)まで367m | ||
| 建物種別 | マンション | 建物構造 | RC(鉄筋コンクリート) |
この部屋の取扱い不動産会社
| 会社名 | センチュリー21(株)ライフエステート谷町六丁目店(SUUMO経由) | ||
|---|---|---|---|
| 所在地 | 大阪府大阪市中央区谷町5-6-3 | 交通 | - |
| 営業時間 | 9時~20時 | 定休日 | 無休 |
| 免許番号 | 大阪府知事53007 | 取引態様 | 仲介 |
| 不動産会社管理番号 | 100481320100 | 当社管理番号 | 89 |
| 所属団体 | (公社)全日本不動産協会大阪府本部会員 | ||
| 公正取引協議会 | (公社)近畿地区不動産公正取引協議会加盟 | ||
| 取扱い物件情報 | 物件詳細へ | ||
※各種情報と現状に差異がある場合は、現状優先となります。問い合わせをすることで、より詳しい条件、情報を確認する事ができます。
提供:センチュリー21(株)ライフエステート谷町六丁目店(SUUMO経由)
この物件が気になったら掲載期限まであと10日
ザ・シティタワー大手前センチュリーに条件(家賃・エリア)が近い物件一覧
| 写真 | 家賃 管理費等 | 敷金 礼金 | 間取り 専有面積 | 築年数 | 最寄り駅 所在地 | キープ | 詳細 |
|---|---|---|---|---|---|---|---|
アパート ORCHIDEA大鳥(2LDK/2階) | |||||||
![]() | 13.2万円 7,500円 | 5万円 20万円 | 2LDK 62.18m2 | 築1年 | 阪和線 鳳駅 徒歩11分 阪和線 津久野駅 徒歩17分 南海電鉄南海本線 浜寺公園駅 徒歩20分 大阪府堺市西区鳳北町4丁 | 詳細を見る | |
マンション プレサンス江坂ベルフィーヌ(1LDK/6階) | |||||||
| 10.2万円 1.1万円 | なし 10.2万円 | 1LDK 30.08m2 | 築4年 | 北大阪急行南北線 江坂駅 徒歩11分 阪急電鉄千里線 関大前駅 徒歩12分 北大阪急行南北線 緑地公園駅 徒歩13分 大阪府吹田市垂水町1丁目57-16 | 詳細を見る | ||
一戸建て 大阪市長堀鶴見緑地 門真南駅 徒歩17分 築27年(4LDK) | |||||||
![]() | 12万円 なし | 24万円 24万円 | 4LDK 92.34m2 | 築27年 | 大阪市長堀鶴見緑地 門真南駅 徒歩17分 京阪電気鉄道京阪線 古川橋駅 徒歩25分 京阪電気鉄道京阪線 門真市駅 徒歩34分 大阪府門真市北島町 | 詳細を見る | |
マンション VEINZ SUITA(2LDK/4階) | |||||||
| 15.4万円 8,000円 | なし 30.8万円 | 2LDK 54.86m2 | 新築 | 東海道本線 吹田駅(JR) 徒歩6分 阪急電鉄千里線 吹田駅(阪急) 徒歩14分 阪急電鉄京都線 相川駅 徒歩20分 大阪府吹田市片山町1丁目13-5 | 詳細を見る | ||
マンション エスリードレジデンス江坂垂水町(1DK/3階) | |||||||
| 10.3万円 1万円 | なし 9.7万円 | 1DK 30.19m2 | 築4年 | 大阪市御堂筋線 江坂駅 徒歩9分 阪急電鉄千里線 豊津駅(大阪) 徒歩10分 阪急電鉄千里線 関大前駅 徒歩19分 大阪府吹田市垂水町3丁目10-35 | 詳細を見る | ||
アパート LUCES(1LDK/1階) | |||||||
![]() | 9.75万円 4,100円 | なし 12万円 | 1LDK 47m2 | 築1年 | 阪和線 津久野駅 徒歩9分 阪和線 鳳駅 徒歩16分 阪和線 上野芝駅 徒歩24分 大阪府堺市西区下田町 | 詳細を見る | |
アパート 南海電鉄泉北線 深井駅 徒歩21分 築1年(2LDK/2階) | |||||||
![]() | 10.6万円 7,000円 | なし 15.9万円 | 2LDK 56.93m2 | 築1年 | 南海電鉄泉北線 深井駅 徒歩21分 大阪府堺市中区八田南之町 | 詳細を見る | |
マンション S-RESIDENCE天満橋AR(1LDK/5階) | |||||||
| 11.25万円 2万円 | なし なし | 1LDK 31.7m2 | 築1年 | JR東西線 大阪天満宮駅 徒歩6分 京阪電気鉄道京阪線 天満橋駅 徒歩7分 大阪市谷町線 天満橋駅 徒歩8分 大阪府大阪市北区天満1丁目21-8 | 詳細を見る | ||




