賃貸マンション
マウロア碑文谷の賃貸物件情報(2LDK/1階)
| 家賃 | 管理費等 | 敷金 | 礼金 | 間取り | 専有面積 |
|---|---|---|---|---|---|
| 35.6万円 | 1.6万円 | 35.6万円 | 35.6万円 | 2LDK | 70.25m2 |
入居決定でお祝い金最大100,000円
- 保証金
- -
- 償却・敷引
- -
- 築年数
- 新築
- 所在階
- 1階
- 向き
- 南
Point
閑静な住宅地にそびえる瀟洒な物件♪5月完成予定の新築物件♪豊富な施設で人気の学芸大学エリア♪ZEH対応♪省エネ設備で光熱費削減♪敷地内駐車場も募集中(要別途契約)♪便利な24時間ゴミステーションあり♪
提供:(株)ファニーホーム下高井戸店(SUUMO経由)

詳細情報 マウロア碑文谷
物件紹介
マウロア碑文谷は東急東横線学芸大学駅から徒歩9分にあり、駅近で通勤通学に便利なマンションです。
建物のエントランスはオートロックがついており、インターホンにはTVモニタもついているため、相手の顔を確認してから来客対応することができます。
人気の南向き・フローリングのお部屋。角部屋でもあるため、周囲の居住者の生活音も気になりにくい場所です。キッチンはシステムキッチン仕様になっていますので、お料理好きの方にもぴったり。バス・トイレは別なので、のんびりお風呂タイムも楽しめるでしょう。また、雨の日でも浴室乾燥機を使えば、お洗濯も問題ありません。
通信設備面では、インターネットが無料で使えるので、月々の出費を抑えられるのも魅力です。また、BSアンテナもありますので、おうち時間も充実するでしょう(別途工事、BSの契約料等が必要な場合あり)。
床暖房があり、冬も足元から暖かく快適に過ごすことができます。建物にはエレベーターがついているので、重い荷物があっても安心。共用部には宅配ボックスが設定されているので、不在の時にも荷物を受け取ることができます。また、ペット飼育の相談ができますので、あなたの大切な家族の一員も快適に暮らせるか、ぜひ確認してみてください。
建物のエントランスはオートロックがついており、インターホンにはTVモニタもついているため、相手の顔を確認してから来客対応することができます。
人気の南向き・フローリングのお部屋。角部屋でもあるため、周囲の居住者の生活音も気になりにくい場所です。キッチンはシステムキッチン仕様になっていますので、お料理好きの方にもぴったり。バス・トイレは別なので、のんびりお風呂タイムも楽しめるでしょう。また、雨の日でも浴室乾燥機を使えば、お洗濯も問題ありません。
通信設備面では、インターネットが無料で使えるので、月々の出費を抑えられるのも魅力です。また、BSアンテナもありますので、おうち時間も充実するでしょう(別途工事、BSの契約料等が必要な場合あり)。
床暖房があり、冬も足元から暖かく快適に過ごすことができます。建物にはエレベーターがついているので、重い荷物があっても安心。共用部には宅配ボックスが設定されているので、不在の時にも荷物を受け取ることができます。また、ペット飼育の相談ができますので、あなたの大切な家族の一員も快適に暮らせるか、ぜひ確認してみてください。
お金・契約の情報
※「-」と表示されているものは、実際は料金が発生するものもございます。詳細はお問い合わせください。
| 家賃 | 35.6万円 | 管理費・共益費 | 1.6万円 |
|---|---|---|---|
| 敷金 | 35.6万円 | 礼金 | 35.6万円 |
| 入居決定でお祝い金最大100,000円 | |||
| 保証金 | - | 償却・敷引 | - |
| 住宅保険料 | - | 更新料 | - |
| 保証会社利用 | 必須 | 保証会社名 | - |
| 保証会社費用 | - | 保証会社備考 | 保証会社利用必 初回保証料:賃料総額の50% 継続保証料:20000円/2年 |
| 契約形態 | - | 契約期間 | - |
| 入居・引渡期間 | - | 現況 | - |
| 入居可能条件 | ペット相談 | ||
| 契約備考 | 太陽光発電による売電あり♪エレベーターや宅配ボックス付き♪リビングには床暖房付きで冬も暖かく過ごせます♪省エネルギー性能表示(BELS)におけるZEHMの評価取得物件(2025年12月17日に認証取得)※太陽光発電の開始時期は設備認定完了次第となる為、入居可能日に必ずしも太陽光発電が開始されているとは限りませんのでご注意ください。退去時、ルームクリーニング費用85800円(税込)。※犬不可 合計1.8万円(内訳:マイコンシェルクラブ1.8万円) 更新料 新賃料1.00ヶ月分 2LDK 二人入居可/子供可/ペット相談 普通借家2年 損保【1.84万円2年】 バストイレ別、エアコン、クロゼット、フローリング、TVインターホン、浴室乾燥機、オートロック、室内洗濯置、シューズボックス、システムキッチン、南向き、追焚機能浴室、角住戸、温水洗浄便座、エレベーター、洗面所独立、駐輪場、宅配ボックス、2面採光、3口以上コンロ、対面式キッチン、防犯カメラ、ペット相談、IHクッキングヒーター、保証人不要、防犯シャッター、全居室フローリング、ネット使用料不要、テラス、床暖房、食器洗乾燥機、エアコン全室、床下収納、耐火構造、耐震構造、太陽光発電システム、24時間ゴミ出し可、敷地内ごみ置き場、都市ガス、BS 入居日:'26年5月上旬 | ||
部屋の情報
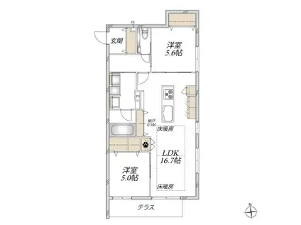
| 間取り | 2LDK | 専有面積 | 70.25m2 |
|---|---|---|---|
| 所在階 / 向き | 1階 / 南 | バルコニー面積 | - |
| 水道 / ガス | - | ||
| 設備 | バス・トイレ別、オートロック、テレビドアホン、宅配ボックス、浴室乾燥機、追い焚き、インターネット対応、システムキッチン、エアコン、エレベーター、温水洗浄便座、南向き、角部屋、フローリング、床下収納、洗髪洗面化粧台、床暖房、2口コンロ、コンロ:IH、BSアンテナ、インターネット使用料無料、洗濯機:室内 | ||
| 当社物件ID | 160519901 | ||
建物の情報
| 建物名 | マウロア碑文谷 | ||
|---|---|---|---|
| 所在地 | 東京都目黒区碑文谷 | ||
| 交通 | 東急東横線 学芸大学駅 徒歩9分 東急東横線 都立大学駅 徒歩17分 東急東横線 祐天寺駅 徒歩24分 | ||
| 階数 | 3階建 | 総戸数 | - |
| 築年月 | 2026年05月 / 新築 | エレベーター | あり |
| 駐車場 | 空有 33000円 | バイク置き場 | - |
| 駐輪場 | あり | 管理人/管理会社 | - |
| 周辺環境 | その他 目黒区立鷹番小学校(小学校)まで1156m その他 目黒区立目黒中央中学校(中学校)まで1939m その他 トキワ松学園中学校高等学校(中学校)まで666m その他 碑文谷公園(公園)まで353m その他 オオゼキ 碑文谷店(スーパー)まで643m その他 イオンスタイル碑文谷(スーパー)まで638m | ||
| 建物種別 | マンション | 建物構造 | 気泡コン |
この部屋の取扱い不動産会社
| 会社名 | (株)ファニーホーム下高井戸店(SUUMO経由) | ||
|---|---|---|---|
| 所在地 | 東京都世田谷区松原3-42-2 2階 | 交通 | - |
| 営業時間 | 10:00~18:30(時間外の対応ご相談下さい) | 定休日 | GW・お盆、年末年始 |
| 免許番号 | 東京都知事103922 | 取引態様 | 仲介 |
| 不動産会社管理番号 | 100492716521 | 当社管理番号 | 89 |
| 取扱い物件情報 | 物件詳細へ | ||
※各種情報と現状に差異がある場合は、現状優先となります。問い合わせをすることで、より詳しい条件、情報を確認する事ができます。
提供:(株)ファニーホーム下高井戸店(SUUMO経由)
この物件が気になったら掲載期限まであと12日
マウロア碑文谷に条件(家賃・エリア)が近い物件一覧
| 写真 | 家賃 管理費等 | 敷金 礼金 | 間取り 専有面積 | 築年数 | 最寄り駅 所在地 | キープ | 詳細 |
|---|---|---|---|---|---|---|---|
マンション ドミナーレサクマ(1LDK/1階) | |||||||
![]() | 29万円 なし | 29万円 29万円 | 1LDK 50m2 | 築36年 | 京王電鉄井の頭線 駒場東大前駅 徒歩3分 東急田園都市線 池尻大橋駅 徒歩11分 東京都目黒区駒場1丁目 | 詳細を見る | |
マンション 目黒ポイント(ワンルーム/1階) | |||||||
![]() | 23万円 なし | 46万円 なし | ワンルーム 36.07m2 | 築20年 | 東急目黒線 不動前駅 徒歩9分 都営三田線 目黒駅 徒歩11分 JR山手線 五反田駅 徒歩17分 東京都目黒区下目黒 | 詳細を見る | |
マンション エルファーロ三軒茶屋2(2LDK/4階) | |||||||
![]() | 25万円 1.5万円 | なし なし | 2LDK 47.3m2 | 築3年 | 東急田園都市線 三軒茶屋駅 徒歩2分 東京都世田谷区三軒茶屋1丁目 | 詳細を見る | |
マンション FULLEA代々木 フレア代々木(2LDK/4階) | |||||||
![]() | 35.5万円 1.5万円 | 35.5万円 なし | 2LDK 52.39m2 | 築1年 | 小田急線 南新宿駅 徒歩1分 JR山手線 代々木駅 徒歩4分 東京メトロ副都心線 北参道駅 徒歩13分 東京都渋谷区代々木 | 詳細を見る | |
マンション レジディア渋谷(1LDK/10階) | |||||||
![]() | 21.8万円 2万円 | 21.8万円 21.8万円 | 1LDK 33.59m2 | 築20年 | JR山手線 渋谷駅 徒歩7分 東京メトロ千代田線 代々木公園駅 徒歩11分 京王井の頭線 神泉駅 徒歩11分 東京都渋谷区宇田川町 | 詳細を見る | |
マンション 代官山プラザ(1LDK/5階) | |||||||
![]() | 34.2万円 なし | 68.4万円 68.4万円 | 1LDK 56.18m2 | 築21年 | 東急東横線 代官山駅 徒歩2分 東京メトロ日比谷線 中目黒駅 徒歩10分 JR山手線 恵比寿駅 徒歩11分 東京都渋谷区猿楽町 | 詳細を見る | |
マンション LIVEFLAT千種ウエスト(1LDK/3階) | |||||||
![]() | 8.6万円 1万円 | なし なし | 1LDK 28.35m2 | 築1年 | 名古屋市東山線 新栄町駅(愛知) 徒歩7分 名古屋市東山線 千種駅 徒歩12分 愛知県名古屋市中区新栄2丁目 | 詳細を見る | |
マンション パレソレイユ上北沢(2SLDK/3階) | |||||||
![]() | 23.4万円 4,000円 | 23.4万円 23.4万円 | 2SLDK 70.77m2 | 築25年 | 京王電鉄京王線 上北沢駅 徒歩3分 東京都世田谷区上北沢5丁目 | 詳細を見る | |




/105x80-f1-q70-wp1)




/105x80-f1-q70-wp1)