賃貸アパート
イーストハイツの賃貸物件情報(2DK/2階)
| 家賃 | 管理費等 | 敷金 | 礼金 | 間取り | 専有面積 |
|---|---|---|---|---|---|
| 5.7万円 | 1,000円 | 11.4万円 | 5.7万円 | 2DK | 40m2 |
入居決定でお祝い金最大100,000円
- 保証金
- -
- 償却・敷引
- -
- 築年数
- 築33年
- 所在階
- 2階
- 向き
- 東
Point
当物件は初期費用分割払い可(クレジットカード決済も可)/お客様のご希望に合わせた方法(店頭、オンライン等)で物件をご提案いたします。初期費用のお見積りや入居希望日のご相談もお気軽にお問い合わせください
提供:アエラス川口店 (株)アエラス.FR(SUUMO経由)

詳細情報 イーストハイツ
物件紹介
イーストハイツはJR京浜東北線大宮駅から徒歩13分にあるアパートです。
このお部屋は2階以上に位置しているので、通行人や周囲の住人からの視線が気になりにくく、防犯面でも安心です。
通信設備面では、インターネット接続が可能です。また、CATVにも対応しているので、おうち時間も充実するでしょう(別途工事、契約料が必要な場合あり)。
このお部屋は2階以上に位置しているので、通行人や周囲の住人からの視線が気になりにくく、防犯面でも安心です。
通信設備面では、インターネット接続が可能です。また、CATVにも対応しているので、おうち時間も充実するでしょう(別途工事、契約料が必要な場合あり)。
お金・契約の情報
※「-」と表示されているものは、実際は料金が発生するものもございます。詳細はお問い合わせください。
| 家賃 | 5.7万円 | 管理費・共益費 | 1,000円 |
|---|---|---|---|
| 敷金 | 11.4万円 | 礼金 | 5.7万円 |
| 入居決定でお祝い金最大100,000円 | |||
| 保証金 | - | 償却・敷引 | - |
| 住宅保険料 | - | 更新料 | - |
| 保証会社利用 | 必須 | 保証会社名 | - |
| 保証会社費用 | - | 保証会社備考 | 保証会社利用必 初回:賃料等の50%、以降1年ごとに更新保証料:10,000円 |
| 契約形態 | - | 契約期間 | - |
| 入居・引渡期間 | 相談 | 現況 | - |
| 契約備考 | さいたま市立大宮東中学校まで452m/ゆりかご第二保育園まで130m/保険等加入 2年間 21500円/更新事務手数料賃料の27.5%(消費税込)/CATVでBSCS視聴可(CATVBS別途契約要有償)/室内清掃費用借主負担駐輪場代借主負担(使用時) 合計1.65万円(内訳:カギ交換費用16500円) 2DK 二人入居可/子供可 普通借家2年 損保【要】 バルコニー、ガスコンロ対応、室内洗濯置、駐輪場、CATV、光ファイバー、二人入居相談、2沿線利用可、敷金2ヶ月、保証金不要、3駅以上利用可、プロパンガス、高速ネット対応、礼金1ヶ月、初期費用カード決済可 | ||
部屋の情報
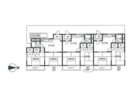
| 間取り | 2DK | 専有面積 | 40m2 |
|---|---|---|---|
| 所在階 / 向き | 2階 / 東 | バルコニー面積 | - |
| 水道 / ガス | - | ||
| 設備 | 2階以上、インターネット対応、バルコニー、コンロ:ガス、CATV、洗濯機:室内 | ||
| 当社物件ID | 33240559 | ||
建物の情報
| 建物名 | イーストハイツ | ||
|---|---|---|---|
| 所在地 | 埼玉県さいたま市大宮区東町 | ||
| 交通 | JR京浜東北線 大宮駅(埼玉) 徒歩13分 JR京浜東北線 さいたま新都心駅 徒歩20分 東武野田線 北大宮駅 徒歩26分 | ||
| 階数 | 2階建 | 総戸数 | - |
| 築年月 | 1993年11月 / 築33年 | エレベーター | - |
| 駐車場 | 近隣 347m28600円 | バイク置き場 | - |
| 駐輪場 | あり | 管理人/管理会社 | - |
| 周辺環境 | その他 大宮門街(ショッピングセンター)まで872m その他 マルエツ 天沼店(スーパー)まで211m その他 ファミリーマート大宮浅間町店(コンビニ)まで153m その他 ドラッグセイムス 吉敷店(ドラッグストア)まで767m その他 ノジマ大宮タカシマヤ店(ホームセンター)まで923m その他 魚屋路大宮東町店(飲食店)まで309m | ||
| 建物種別 | アパート | 建物構造 | 木造 |
この部屋の取扱い不動産会社
| 会社名 | アエラス川口店 (株)アエラス.FR(SUUMO経由) | ||
|---|---|---|---|
| 所在地 | 埼玉県川口市栄町3-8-4 イソベビル 2階 | 交通 | - |
| 営業時間 | 10:00~19:00(時間外対応出来る場合有り) | 定休日 | 年中無休(年末年始などを除く) |
| 免許番号 | 国土交通大臣10206 | 取引態様 | 仲介 |
| 不動産会社管理番号 | 100490467112 | 当社管理番号 | 89 |
| 所属団体 | (公社)全日本不動産協会埼玉県本部会員 | ||
| 公正取引協議会 | (公社)首都圏不動産公正取引協議会加盟 | ||
| 取扱い物件情報 | 物件詳細へ | ||
※各種情報と現状に差異がある場合は、現状優先となります。問い合わせをすることで、より詳しい条件、情報を確認する事ができます。
提供:アエラス川口店 (株)アエラス.FR(SUUMO経由)
この物件が気になったら掲載期限まであと10日
イーストハイツに条件(家賃・エリア)が近い物件一覧
| 写真 | 家賃 管理費等 | 敷金 礼金 | 間取り 専有面積 | 築年数 | 最寄り駅 所在地 | キープ | 詳細 |
|---|---|---|---|---|---|---|---|
アパート エスポワールHIRAN0(2DK/1階) | |||||||
![]() | 6.4万円 2,000円 | 6.4万円 なし | 2DK 46.7m2 | 築34年 | 埼玉新都市交通伊奈線 鉄道博物館駅 徒歩20分 JR川越線 日進駅(埼玉) 徒歩27分 埼玉県さいたま市大宮区三橋 | 詳細を見る | |
アパート カーサグレイスI(2DK/1階) | |||||||
![]() | 7万円 2,000円 | 7万円 7万円 | 2DK 40.13m2 | 築40年 | JR埼京線 北与野駅 徒歩7分 JR埼京線 与野本町駅 徒歩9分 JR京浜東北線 さいたま新都心駅 徒歩15分 埼玉県さいたま市中央区 | 詳細を見る | |
マンション アンセラジオ新越谷(ワンルーム/5階) | |||||||
![]() | 7.4万円 6,000円 | 7.4万円 なし | ワンルーム 20.52m2 | 築20年 | JR武蔵野線 南越谷駅 徒歩4分 東武伊勢崎線 新越谷駅 徒歩5分 東武伊勢崎線 蒲生駅 徒歩12分 埼玉県越谷市南越谷 | 詳細を見る | |
マンション SAKURA BUILDING(1K/5階) | |||||||
![]() | 8.5万円 1万円 | なし 8.5万円 | 1K 30.19m2 | 築17年 | 東武伊勢崎・大師線 新越谷駅 徒歩2分 武蔵野線 南越谷駅 徒歩4分 埼玉県越谷市南越谷4丁目 | 詳細を見る | |
アパート ビクトリアハイツ(2K/2階) | |||||||
![]() | 7万円 3,000円 | 7万円 7万円 | 2K 36.78m2 | 築33年 | 埼玉高速鉄道 川口元郷駅 徒歩20分 埼玉高速鉄道 南鳩ケ谷駅 徒歩36分 JR京浜東北線 川口駅 徒歩38分 埼玉県川口市東領家 | 詳細を見る | |
アパート FELIZ里(ワンルーム/1階) | |||||||
![]() | 5.7万円 3,000円 | なし なし | ワンルーム 24.89m2 | 築10年 | 埼玉高速鉄道 鳩ケ谷駅 徒歩8分 埼玉高速鉄道 南鳩ケ谷駅 徒歩18分 埼玉高速鉄道 新井宿駅 徒歩27分 埼玉県川口市大字里 | 詳細を見る | |
アパート シスターハウス(2K/2階) | |||||||
![]() | 5.7万円 なし | 5.7万円 なし | 2K 30m2 | 築51年 | 京浜東北・根岸線 川口駅 徒歩20分 埼玉県川口市飯原町 | 詳細を見る | |








