賃貸マンション
パークキューブ西ヶ原ステージの賃貸物件情報(1LDK/3階)
| 家賃 | 管理費等 | 敷金 | 礼金 | 間取り | 専有面積 |
|---|---|---|---|---|---|
| 16.6万円 | 1万円 | 16.6万円 | 16.6万円 | 1LDK | 40.17m2 |
入居決定でお祝い金最大100,000円
- 保証金
- -
- 償却・敷引
- -
- 築年数
- 築17年
- 所在階
- 3階
- 向き
- 北東
Point
室内見学承ります・お客様のご都合に合わせてオンラインまたはお近くの店舗でご提案可・初期費用分割払い可・クレジットカード利用可・引越業者割引・初期費用のお見積や入居日のご相談もお気軽にお問合せください
提供:(株)リライフ錦糸町店(SUUMO経由)

詳細情報 パークキューブ西ヶ原ステージ
物件紹介
パークキューブ西ヶ原ステージは都営三田線西巣鴨駅から徒歩9分にあり、駅近で通勤通学に便利なマンションです。
このお部屋は2階以上に位置しているので、通行人や周囲の住人からの視線が気になりにくく、防犯面でも安心。建物のエントランスはオートロックがついており、インターホンにはTVモニタもついているため、相手の顔を確認してから来客対応することができます。
こちらは楽器相談が可能な物件。楽器演奏をお考えの方はぜひ相談してみてください。フローリングのお部屋なのでお掃除もラクラク。キッチンはシステムキッチン仕様になっていますので、お料理好きの方にもぴったり。バス・トイレは別なので、のんびりお風呂タイムも楽しめるでしょう。また、雨の日でも浴室乾燥機を使えば、お洗濯も問題ありません。
通信設備面では、インターネットが無料で使えるので、月々の出費を抑えられるのも魅力です。また、BSアンテナ・CSアンテナがありCATVにも対応しているので、おうち時間も充実するでしょう(別途工事、BS・CS・CATVの契約料等が必要な場合あり)。
床暖房があり、冬も足元から暖かく快適に過ごすことができます。建物にはエレベーターがついているので、重い荷物があっても安心。共用部には宅配ボックスが設定されているので、不在の時にも荷物を受け取ることができます。また、ペット飼育の相談ができますので、あなたの大切な家族の一員も快適に暮らせるか、ぜひ確認してみてください。
このお部屋は2階以上に位置しているので、通行人や周囲の住人からの視線が気になりにくく、防犯面でも安心。建物のエントランスはオートロックがついており、インターホンにはTVモニタもついているため、相手の顔を確認してから来客対応することができます。
こちらは楽器相談が可能な物件。楽器演奏をお考えの方はぜひ相談してみてください。フローリングのお部屋なのでお掃除もラクラク。キッチンはシステムキッチン仕様になっていますので、お料理好きの方にもぴったり。バス・トイレは別なので、のんびりお風呂タイムも楽しめるでしょう。また、雨の日でも浴室乾燥機を使えば、お洗濯も問題ありません。
通信設備面では、インターネットが無料で使えるので、月々の出費を抑えられるのも魅力です。また、BSアンテナ・CSアンテナがありCATVにも対応しているので、おうち時間も充実するでしょう(別途工事、BS・CS・CATVの契約料等が必要な場合あり)。
床暖房があり、冬も足元から暖かく快適に過ごすことができます。建物にはエレベーターがついているので、重い荷物があっても安心。共用部には宅配ボックスが設定されているので、不在の時にも荷物を受け取ることができます。また、ペット飼育の相談ができますので、あなたの大切な家族の一員も快適に暮らせるか、ぜひ確認してみてください。
お金・契約の情報
※「-」と表示されているものは、実際は料金が発生するものもございます。詳細はお問い合わせください。
| 家賃 | 16.6万円 | 管理費・共益費 | 1万円 |
|---|---|---|---|
| 敷金 | 16.6万円 | 礼金 | 16.6万円 |
| 入居決定でお祝い金最大100,000円 | |||
| 保証金 | - | 償却・敷引 | - |
| 住宅保険料 | - | 更新料 | - |
| 保証会社利用 | 必須 | 保証会社名 | - |
| 保証会社費用 | - | 保証会社備考 | 保証会社利用必 初回:月額総賃料の50%~ |
| 契約形態 | 定期借家 | 契約期間 | 2年 |
| 入居・引渡期間 | - | 現況 | - |
| 入居可能条件 | ペット相談 | ||
| 契約備考 | 通勤管理/当物件はオンラインまたはお近くの店舗でご相談お申込を承ります。リライフは首都圏23店舗のネットワークで豊富な物件情報をご提供いたします。当物件に類似した未公開物件のご提案も可能です。お気軽にお問い合わせください。違約金有:短期解約時有り 合計2.17万円(内訳:鍵交換代金1.65万円町会費(2年分)(初回のみ)0.3万円駐輪ステッカー代(初回のみ)0.22万円) 口座振替事務手数料(月額)0.022万円 1LDK 二人入居可/ペット相談 定期借家2年 損保【2万円2年】 バストイレ別、バルコニー、エアコン、ガスコンロ対応、クロゼット、フローリング、シャワー付洗面台、TVインターホン、浴室乾燥機、オートロック、室内洗濯置、シューズボックス、システムキッチン、追焚機能浴室、温水洗浄便座、脱衣所、エレベーター、洗面所独立、2口コンロ、駐輪場、宅配ボックス、CATV、光ファイバー、BS・CS、対面式キッチン、防犯カメラ、ペット相談、オートバス、グリル付、保証人不要、二人入居相談、全居室フローリング、ディンプルキー、床暖房、ダブルロックキー、24時間換気システム、フロントサービス、エレベーター2基、3駅以上利用可、3沿線以上利用可、24時間ゴミ出し可、敷地内ごみ置き場、日勤管理、都市ガス、玄関収納、保証会社利用可、初期費用カード決済可 敷金積み増し【ペット飼育の場合敷金1ヶ月(総額)】 入居日:'26年5月中旬 | ||
部屋の情報
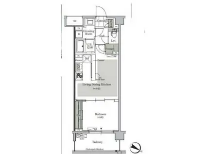
| 間取り | 1LDK | 専有面積 | 40.17m2 |
|---|---|---|---|
| 所在階 / 向き | 3階 / 北東 | バルコニー面積 | - |
| 水道 / ガス | - | ||
| 設備 | バス・トイレ別、2階以上、オートロック、テレビドアホン、宅配ボックス、浴室乾燥機、追い焚き、インターネット対応、システムキッチン、エアコン、エレベーター、温水洗浄便座、バルコニー、フローリング、洗髪洗面化粧台、床暖房、2口コンロ、コンロ:ガス、CATV、CSアンテナ、BSアンテナ、洗濯機:室内 | ||
| 当社物件ID | 15891934 | ||
建物の情報
| 建物名 | パークキューブ西ヶ原ステージ | ||
|---|---|---|---|
| 所在地 | 東京都北区西ケ原 | ||
| 交通 | 都営三田線 西巣鴨駅 徒歩9分 東京メトロ南北線 西ケ原駅 徒歩12分 JR京浜東北線 王子駅 徒歩17分 | ||
| 階数 | 地下2地上14階建 | 総戸数 | - |
| 築年月 | 2009年12月 / 築17年 | エレベーター | あり |
| 駐車場 | なし | バイク置き場 | - |
| 駐輪場 | あり | 管理人/管理会社 | - |
| 周辺環境 | その他 まいばすけっと 巣鴨5丁目店(スーパー)まで540m その他 肉のハナマサ 滝野川店(スーパー)まで752m その他 セブンイレブン 北区西ヶ原4丁目店(コンビニ)まで182m その他 ファミリーマート西ヶ原四丁目店(コンビニ)まで322m その他 くすりの福太郎庚申塚店(ドラッグストア)まで858m その他 ポニークリーニング 西巣鴨店(その他)まで693m | ||
| 建物種別 | マンション | 建物構造 | RC(鉄筋コンクリート) |
この部屋の取扱い不動産会社
| 会社名 | (株)リライフ錦糸町店(SUUMO経由) | ||
|---|---|---|---|
| 所在地 | 東京都墨田区錦糸3-3-1 第一ハセガワビル5階 | 交通 | - |
| 営業時間 | 10:00~20:00 | 定休日 | なし |
| 免許番号 | 国土交通大臣10792 | 取引態様 | 仲介 |
| 不動産会社管理番号 | 100493814540 | 当社管理番号 | 89 |
| 所属団体 | (公社)東京都宅地建物取引業協会会員 | ||
| 公正取引協議会 | (公社)首都圏不動産公正取引協議会加盟 | ||
| 取扱い物件情報 | 物件詳細へ | ||
※各種情報と現状に差異がある場合は、現状優先となります。問い合わせをすることで、より詳しい条件、情報を確認する事ができます。
提供:(株)リライフ錦糸町店(SUUMO経由)
この物件が気になったら掲載期限まであと11日
パークキューブ西ヶ原ステージに条件(家賃・エリア)が近い物件一覧
| 写真 | 家賃 管理費等 | 敷金 礼金 | 間取り 専有面積 | 築年数 | 最寄り駅 所在地 | キープ | 詳細 |
|---|---|---|---|---|---|---|---|
マンション WILLDO大塚(1DK/3階) | |||||||
![]() | 12.2万円 8,000円 | なし なし | 1DK 34.77m2 | 築33年 | 都電荒川線 巣鴨新田駅 徒歩7分 JR山手線 巣鴨駅 徒歩8分 東京メトロ丸ノ内線 新大塚駅 徒歩14分 東京都豊島区北大塚 | 詳細を見る | |
マンション SERENITY COURT 東新町(2LDK/3階) | |||||||
![]() | 17.7万円 2.9万円 | 35.4万円 17.7万円 | 2LDK 54.46m2 | 築1年 | 東武東上線 ときわ台駅(東京) 徒歩11分 東武東上線 上板橋駅 徒歩13分 西武有楽町線 小竹向原駅 徒歩26分 東京都板橋区東新町 | 詳細を見る | |
マンション ARCOBALENO HASUNE I(2LDK/4階) | |||||||
![]() | 19.7万円 2万円 | なし 19.7万円 | 2LDK 56m2 | 築1年 | 都営三田線 蓮根駅 徒歩10分 都営三田線 志村三丁目駅 徒歩15分 JR埼京線 浮間舟渡駅 徒歩18分 東京都板橋区東坂下 | 詳細を見る | |
マンション ARKMARK池袋本町(1DK/1階) | |||||||
![]() | 12.15万円 1.5万円 | なし なし | 1DK 26.82m2 | 築1年 | 東武東上線 北池袋駅 徒歩7分 JR埼京線 板橋駅 徒歩14分 都営三田線 新板橋駅 徒歩15分 東京都豊島区池袋本町 | 詳細を見る | |
マンション ベルデ堺東(1K/1階) | |||||||
![]() | 4.1万円 6,950円 | なし なし | 1K 21.9m2 | 築29年 | 南海高野線 堺東駅 徒歩10分 阪堺電気軌道阪堺線 妙国寺前駅 徒歩11分 南海高野線 浅香山駅 徒歩12分 大阪府堺市堺区北庄町 | 詳細を見る | |
マンション レジディア文京音羽II(1LDK/7階) | |||||||
![]() | 21万円 2万円 | 21万円 21万円 | 1LDK 44.24m2 | 築19年 | 東京メトロ有楽町線 護国寺駅 徒歩1分 東京メトロ丸ノ内線 新大塚駅 徒歩8分 東京メトロ丸ノ内線 茗荷谷駅 徒歩11分 東京都文京区大塚 | 詳細を見る | |
マンション リコラータ(1LDK/2階) | |||||||
![]() | 17万円 1.1万円 | なし 34万円 | 1LDK 42.82m2 | 築1年 | 東京メトロ有楽町線 千川駅 徒歩5分 東京メトロ副都心線 千川駅 徒歩5分 西武有楽町線 小竹向原駅 徒歩11分 東京都板橋区向原 | 詳細を見る | |
マンション メゾン ド ソレイユ(1K/4階) | |||||||
![]() | 11.5万円 1.2万円 | なし 11.5万円 | 1K 26.37m2 | 築12年 | 都営三田線 板橋区役所前駅 徒歩14分 都営三田線 本蓮沼駅 徒歩14分 東京都板橋区大和町 | 詳細を見る | |









