賃貸マンション
プライムメゾン中目黒の賃貸物件情報(1K/11階)
| 家賃 | 管理費等 | 敷金 | 礼金 | 間取り | 専有面積 |
|---|---|---|---|---|---|
| 15.8万円 | 1万円 | 15.8万円 | なし | 1K | 25.88m2 |
入居決定でお祝い金最大100,000円
- 保証金
- -
- 償却・敷引
- -
- 築年数
- 築7年
- 所在階
- 11階
- 向き
- 北東
Point
【積水ハウスの賃貸住宅】中目黒にあるプライムメゾンシリーズ。2口ガスコンロのキッチンや収納力のあるクローゼット、独立洗面台など設備充実の1K。24時間ゴミ出し可能。
提供:(株)アクセス・リアルティー(SUUMO経由)

詳細情報 プライムメゾン中目黒
物件紹介
プライムメゾン中目黒は東急東横線中目黒駅から徒歩13分にあるマンションです。
このお部屋は2階以上に位置しているので、通行人や周囲の住人からの視線が気になりにくく、防犯面でも安心。建物のエントランスはオートロックがついており、インターホンにはTVモニタもついているため、相手の顔を確認してから来客対応することができます。
フローリングのお部屋なのでお掃除もラクラク。室内には人気のウォークインクローゼットがありますので、たくさんの荷物も効率的に収納ができます。キッチンはシステムキッチン仕様になっていますので、お料理好きの方にもぴったり。バス・トイレは別なので、のんびりお風呂タイムも楽しめるでしょう。また、雨の日でも浴室乾燥機を使えば、お洗濯も問題ありません。
通信設備面では、インターネットが無料で使えるので、月々の出費を抑えられるのも魅力です。また、BSアンテナ・CSアンテナがありCATVにも対応しているので、おうち時間も充実するでしょう(別途工事、BS・CS・CATVの契約料等が必要な場合あり)。
建物にはエレベーターがついているので、重い荷物があっても安心。共用部には宅配ボックスが設定されているので、不在の時にも荷物を受け取ることができます。また、ペット飼育の相談ができますので、あなたの大切な家族の一員も快適に暮らせるか、ぜひ確認してみてください。
このお部屋は2階以上に位置しているので、通行人や周囲の住人からの視線が気になりにくく、防犯面でも安心。建物のエントランスはオートロックがついており、インターホンにはTVモニタもついているため、相手の顔を確認してから来客対応することができます。
フローリングのお部屋なのでお掃除もラクラク。室内には人気のウォークインクローゼットがありますので、たくさんの荷物も効率的に収納ができます。キッチンはシステムキッチン仕様になっていますので、お料理好きの方にもぴったり。バス・トイレは別なので、のんびりお風呂タイムも楽しめるでしょう。また、雨の日でも浴室乾燥機を使えば、お洗濯も問題ありません。
通信設備面では、インターネットが無料で使えるので、月々の出費を抑えられるのも魅力です。また、BSアンテナ・CSアンテナがありCATVにも対応しているので、おうち時間も充実するでしょう(別途工事、BS・CS・CATVの契約料等が必要な場合あり)。
建物にはエレベーターがついているので、重い荷物があっても安心。共用部には宅配ボックスが設定されているので、不在の時にも荷物を受け取ることができます。また、ペット飼育の相談ができますので、あなたの大切な家族の一員も快適に暮らせるか、ぜひ確認してみてください。
お金・契約の情報
※「-」と表示されているものは、実際は料金が発生するものもございます。詳細はお問い合わせください。
| 家賃 | 15.8万円 | 管理費・共益費 | 1万円 |
|---|---|---|---|
| 敷金 | 15.8万円 | 礼金 | なし |
| 入居決定でお祝い金最大100,000円 | |||
| 保証金 | - | 償却・敷引 | - |
| 住宅保険料 | - | 更新料 | - |
| 保証会社利用 | 必須 | 保証会社名 | - |
| 保証会社費用 | - | 保証会社備考 | 保証会社利用必 【初回事務手数料】33000円(税込)【月額保証料】家賃・共益費等 合計の2% |
| 契約形態 | - | 契約期間 | - |
| 入居・引渡期間 | 相談 | 現況 | - |
| 入居可能条件 | ペット相談 | ||
| 契約備考 | 都営三田線目黒駅徒歩17分/巡回管理/※パノラマ写真は同タイプ参考写真/保証会社利用必須/火災保険加入必須/24時間サポート有/短期解約違約金有/事務所使用不可/楽器禁止/民泊・シェアハウス利用禁止/ペット相談(小型犬または猫1匹のみ・敷金1ヶ月積増)/解約予告2カ月前【初期費用は当社HPなら5秒で計算!「アクセス・リアルティー」で検索】プライムメゾン中目黒 合計3.63万円(内訳:鍵交換代 36300円税込) 室内クリーニング費用 55000円/退去時 更新料 1ヶ月 1K ペット相談/ルームシェア不可 普通借家2年 損保【1.78万円2年】 バストイレ別、バルコニー、エアコン、ガスコンロ対応、フローリング、TVインターホン、浴室乾燥機、オートロック、室内洗濯置、シューズボックス、システムキッチン、温水洗浄便座、脱衣所、エレベーター、洗面所独立、洗面化粧台、2口コンロ、駐輪場、宅配ボックス、CATV、光ファイバー、礼金不要、BS・CS、防犯カメラ、ペット相談、全居室洋室、ウォークインクロゼット、保証人不要、仲介手数料不要、敷金1ヶ月、バイク置場、全居室フローリング、CS、駅まで平坦、ネット使用料不要、眺望良好、ダブルロックキー、24時間換気システム、複層ガラス、エレベーター2基、3駅以上利用可、3沿線以上利用可、24時間ゴミ出し可、敷地内ごみ置き場、都市ガス、洗面所にドア、玄関収納、ダウンライト、BS、高速ネット対応 敷金積み増し【ペット飼育の場合敷金2ヶ月(総額)】 | ||
部屋の情報
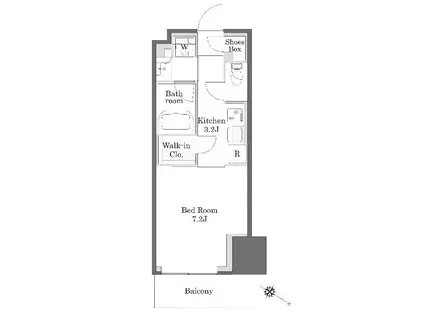
| 間取り | 1K | 専有面積 | 25.88m2 |
|---|---|---|---|
| 所在階 / 向き | 11階 / 北東 | バルコニー面積 | - |
| 水道 / ガス | - | ||
| 設備 | バス・トイレ別、2階以上、オートロック、テレビドアホン、宅配ボックス、浴室乾燥機、ウォークインクローゼット、インターネット対応、システムキッチン、エアコン、エレベーター、温水洗浄便座、バルコニー、フローリング、洗髪洗面化粧台、2口コンロ、コンロ:ガス、CATV、CSアンテナ、BSアンテナ、インターネット使用料無料、洗濯機:室内 | ||
| 当社物件ID | 39409819 | ||
建物の情報
| 建物名 | プライムメゾン中目黒 | ||
|---|---|---|---|
| 所在地 | 東京都目黒区中目黒 | ||
| 交通 | 東急東横線 中目黒駅 徒歩13分 JR山手線 目黒駅 徒歩17分 東京メトロ南北線 目黒駅 徒歩17分 | ||
| 階数 | 14階建 | 総戸数 | 156戸 |
| 築年月 | 2019年12月 / 築7年 | エレベーター | あり |
| 駐車場 | 空有 49500円 | バイク置き場 | あり |
| 駐輪場 | あり | 管理人/管理会社 | - |
| 周辺環境 | その他 マルエツプチ中目黒四丁目店(スーパー)まで0m その他 ローソン目黒二丁目店(コンビニ)まで219m その他 国家公務員共済組合連合会東京共済病院(病院)まで712m その他 清水台東急ストア(スーパー)まで1044m その他 目黒三郵便局(郵便局)まで210m その他 目黒区民センター公園(公園)まで555m | ||
| 建物種別 | マンション | 建物構造 | RC(鉄筋コンクリート) |
この部屋の取扱い不動産会社
| 会社名 | (株)アクセス・リアルティー(SUUMO経由) | ||
|---|---|---|---|
| 所在地 | 東京都渋谷区千駄ヶ谷1-20-1 パークアベニュー5階 | 交通 | - |
| 営業時間 | 平日10時~17時半/土日祝10時~17時 | 定休日 | 年末年始/GW/夏期休暇を除く |
| 免許番号 | 東京都知事55712 | 取引態様 | 仲介 |
| 不動産会社管理番号 | 100491468436 | 当社管理番号 | 89 |
| 所属団体 | (公社)東京都宅地建物取引業協会会員 | ||
| 公正取引協議会 | (公社)首都圏不動産公正取引協議会加盟 | ||
| 取扱い物件情報 | 物件詳細へ | ||
※各種情報と現状に差異がある場合は、現状優先となります。問い合わせをすることで、より詳しい条件、情報を確認する事ができます。
提供:(株)アクセス・リアルティー(SUUMO経由)
この物件が気になったら掲載期限まであと11日
プライムメゾン中目黒に条件(家賃・エリア)が近い物件一覧
| 写真 | 家賃 管理費等 | 敷金 礼金 | 間取り 専有面積 | 築年数 | 最寄り駅 所在地 | キープ | 詳細 |
|---|---|---|---|---|---|---|---|
アパート フォレスタ世田谷(2LDK/2階) | |||||||
![]() | 17.4万円 1,000円 | 17.4万円 なし | 2LDK 47.7m2 | 築55年 | 東急池上線 雪が谷大塚駅 徒歩6分 東急東横線 田園調布駅 徒歩16分 東急目黒線 多摩川駅 徒歩16分 東京都世田谷区東玉川 | 詳細を見る | |
マンション ロサルバ大森(2DK/4階) | |||||||
![]() | 15.6万円 7,000円 | 15.6万円 31.2万円 | 2DK 50.48m2 | 築23年 | 京浜急行電鉄本線 大森町駅 徒歩8分 京浜急行電鉄本線 梅屋敷駅(東京) 徒歩8分 東京都大田区大森西3丁目 | 詳細を見る | |
マンション シェモア加瀬(2K/3階) | |||||||
![]() | 10.2万円 4,000円 | 10.2万円 なし | 2K 34m2 | 築22年 | 京急本線 梅屋敷駅(東京) 徒歩5分 京急本線 大森町駅 徒歩10分 京急本線 京急蒲田駅 徒歩18分 東京都大田区大森中 | 詳細を見る | |
タウンハウス 大田菜園長屋(2LDK) | |||||||
![]() | 15.9万円 5,000円 | 15.9万円 7.95万円 | 2LDK 52.17m2 | 築10年 | 京浜急行電鉄本線 雑色駅 徒歩8分 京浜急行電鉄本線 六郷土手駅 徒歩13分 東京都大田区東六郷3丁目 | 詳細を見る | |
一戸建て 京浜急行電鉄本線 大森町駅 徒歩14分 築23年(3LDK) | |||||||
![]() | 20万円 なし | 20万円 20万円 | 3LDK 71.86m2 | 築23年 | 京浜急行電鉄本線 大森町駅 徒歩14分 京浜急行電鉄本線 梅屋敷駅(東京) 徒歩16分 東京都大田区大森東4丁目 | 詳細を見る | |
マンション メゾンドボナール(1DK/4階) | |||||||
![]() | 12万円 3,000円 | 12万円 なし | 1DK 32.48m2 | 築29年 | 京浜東北・根岸線 蒲田駅 徒歩10分 京浜急行電鉄本線 京急蒲田駅 徒歩10分 東京都大田区蒲田3丁目 | 詳細を見る | |
アパート SEED SAVE PETIRASU BREEZE(1LDK/3階) | |||||||
![]() | 11.5万円 1万円 | 23万円 11.5万円 | 1LDK 35.83m2 | 新築 | 東京モノレール羽田 昭和島駅 徒歩12分 京浜急行電鉄本線 大森町駅 徒歩18分 東京都大田区大森東5丁目 | 詳細を見る | |








