賃貸アパート
エクセレントガーデンヒルズの賃貸物件情報(1LDK/3階)
| 家賃 | 管理費等 | 敷金 | 礼金 | 間取り | 専有面積 |
|---|---|---|---|---|---|
| 8.6万円 | 8,500円 | なし | 9.6万円 | 1LDK | 44.87m2 |
入居決定でお祝い金最大100,000円
- 保証金
- -
- 償却・敷引
- -
- 築年数
- 築2年
- 所在階
- 3階
- 向き
- -
Point
ピタットハウス垂水店ではインターネット掲載物件は他社掲載分を含めエリア問わずご紹介可能です。何社も不動産会社を回る手間なくお部屋探しができます!
提供:ピタットハウス垂水店(株)ライブデザイン兵庫(SUUMO経由)

詳細情報 エクセレントガーデンヒルズ
物件紹介
エクセレントガーデンヒルズは山陽電鉄本線山陽塩屋駅から徒歩34分にあるアパートです。
このお部屋は2階以上に位置しているので、通行人や周囲の住人からの視線が気になりにくく、防犯面でも安心。建物のエントランスはオートロックがついており、インターホンにはTVモニタもついているため、相手の顔を確認してから来客対応することができます。
フローリングのお部屋なのでお掃除もラクラク。室内には人気のウォークインクローゼットがありますので、たくさんの荷物も効率的に収納ができます。キッチンはシステムキッチン仕様になっていますので、お料理好きの方にもぴったり。バス・トイレは別なので、のんびりお風呂タイムも楽しめるでしょう。また、雨の日でも浴室乾燥機を使えば、お洗濯も問題ありません。
通信設備面では、インターネットが無料で使えるので、月々の出費を抑えられるのも魅力です。また、BSアンテナ・CSアンテナがありCATVにも対応しているので、おうち時間も充実するでしょう(別途工事、BS・CS・CATVの契約料等が必要な場合あり)。
建物にはエレベーターがついているので、重い荷物があっても安心。共用部には宅配ボックスが設定されているので、不在の時にも荷物を受け取ることができます。また、ペット飼育の相談ができますので、あなたの大切な家族の一員も快適に暮らせるか、ぜひ確認してみてください。
このお部屋は2階以上に位置しているので、通行人や周囲の住人からの視線が気になりにくく、防犯面でも安心。建物のエントランスはオートロックがついており、インターホンにはTVモニタもついているため、相手の顔を確認してから来客対応することができます。
フローリングのお部屋なのでお掃除もラクラク。室内には人気のウォークインクローゼットがありますので、たくさんの荷物も効率的に収納ができます。キッチンはシステムキッチン仕様になっていますので、お料理好きの方にもぴったり。バス・トイレは別なので、のんびりお風呂タイムも楽しめるでしょう。また、雨の日でも浴室乾燥機を使えば、お洗濯も問題ありません。
通信設備面では、インターネットが無料で使えるので、月々の出費を抑えられるのも魅力です。また、BSアンテナ・CSアンテナがありCATVにも対応しているので、おうち時間も充実するでしょう(別途工事、BS・CS・CATVの契約料等が必要な場合あり)。
建物にはエレベーターがついているので、重い荷物があっても安心。共用部には宅配ボックスが設定されているので、不在の時にも荷物を受け取ることができます。また、ペット飼育の相談ができますので、あなたの大切な家族の一員も快適に暮らせるか、ぜひ確認してみてください。
お金・契約の情報
※「-」と表示されているものは、実際は料金が発生するものもございます。詳細はお問い合わせください。
| 家賃 | 8.6万円 | 管理費・共益費 | 8,500円 |
|---|---|---|---|
| 敷金 | なし | 礼金 | 9.6万円 |
| 入居決定でお祝い金最大100,000円 | |||
| 保証金 | - | 償却・敷引 | - |
| 住宅保険料 | - | 更新料 | - |
| 保証会社利用 | 必須 | 保証会社名 | - |
| 保証会社費用 | - | 保証会社備考 | 保証会社利用必 LDG 初回50% 月1.2%手数料 10,000円/1年更新 |
| 契約形態 | - | 契約期間 | - |
| 入居・引渡期間 | 即時 | 現況 | - |
| 入居可能条件 | ペット相談 | ||
| 契約備考 | 物件情報ページをご覧いただき誠にありがとうございます!インターネットで募集中の物件は全て弊社でご紹介可能です!もちろんまとめてご案内も可能です!また、他社様でご紹介されている物件も弊社でご紹介の場合、様々な交渉が可能な物件も多数ございます。お問い合わせは【TEL:】までお電話ください!※当日のご内見予約も可能!是非、ピタットハウス垂水店へお越しください! 合計2.2万円(内訳:鍵交換代22000円) 1LDK 単身者可/二人入居可/ペット相談 普通借家2年 損保【要】 バストイレ別、バルコニー、エアコン、クロゼット、フローリング、TVインターホン、浴室乾燥機、オートロック、室内洗濯置、陽当り良好、シューズボックス、システムキッチン、追焚機能浴室、温水洗浄便座、脱衣所、エレベーター、洗面所独立、洗面化粧台、駐輪場、宅配ボックス、CATV、即入居可、閑静な住宅地、最上階、BS・CS、敷金不要、3口以上コンロ、対面式キッチン、防犯カメラ、ペット相談、グリル付、ウォークインクロゼット、保証人不要、CATVインターネット、バイク置場、全居室フローリング、2沿線利用可、ディンプルキー、ネット専用回線、ネット使用料不要、眺望良好、築2年以内、24時間換気システム、ペット専用設備、大型車庫、3駅以上利用可、上階無し、敷地内ごみ置き場、駐車並列2台、駐車並列3台、都市ガス、洗面所にドア、IT重説対応物件、初期費用カード決済可、通風良好 | ||
部屋の情報
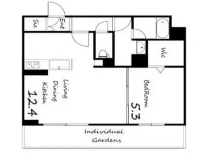
| 間取り | 1LDK | 専有面積 | 44.87m2 |
|---|---|---|---|
| 所在階 / 向き | 3階 / - | バルコニー面積 | - |
| 水道 / ガス | - | ||
| 設備 | バス・トイレ別、2階以上、オートロック、テレビドアホン、宅配ボックス、浴室乾燥機、ウォークインクローゼット、追い焚き、インターネット対応、システムキッチン、エアコン、エレベーター、温水洗浄便座、バルコニー、フローリング、洗髪洗面化粧台、2口コンロ、CATV、CSアンテナ、BSアンテナ、インターネット使用料無料、洗濯機:室内 | ||
| 当社物件ID | 160435613 | ||
建物の情報
| 建物名 | エクセレントガーデンヒルズ | ||
|---|---|---|---|
| 所在地 | 兵庫県神戸市垂水区桃山台 | ||
| 交通 | 山陽電鉄本線 山陽塩屋駅 徒歩34分 JR山陽本線 塩屋駅(兵庫) 徒歩34分 山陽電鉄本線 滝の茶屋駅 徒歩35分 | ||
| 階数 | 3階建 | 総戸数 | - |
| 築年月 | 2024年10月 / 築2年 | エレベーター | あり |
| 駐車場 | 空有 9900円 | バイク置き場 | あり |
| 駐輪場 | あり | 管理人/管理会社 | - |
| 周辺環境 | その他 ローソン 垂水桃山台二丁目店(コンビニ)まで152m その他 ファミリーマート 垂水桃山台店(コンビニ)まで319m その他 セブンイレブン 神戸ジェームス山店(コンビニ)まで622m その他 イオン ジェームス山店(スーパー)まで921m その他 TSUTAYA ジェームス山店(ショッピングセンター)まで1147m その他 ザ・ダイソー ケーズデンキジェームス山店(スーパー)まで1106m | ||
| 建物種別 | アパート | 建物構造 | 鉄骨造 |
この部屋の取扱い不動産会社
| 会社名 | ピタットハウス垂水店(株)ライブデザイン兵庫(SUUMO経由) | ||
|---|---|---|---|
| 所在地 | 兵庫県神戸市垂水区宮本町 3-13 1階 | 交通 | - |
| 営業時間 | 09:00~18:00 | 定休日 | - |
| 免許番号 | 兵庫県知事12246 | 取引態様 | 仲介 |
| 不動産会社管理番号 | 100489374615 | 当社管理番号 | 89 |
| 所属団体 | (公社)全日本不動産協会兵庫県本部会員 | ||
| 公正取引協議会 | (公社)近畿地区不動産公正取引協議会加盟 | ||
| 取扱い物件情報 | 物件詳細へ | ||
※各種情報と現状に差異がある場合は、現状優先となります。問い合わせをすることで、より詳しい条件、情報を確認する事ができます。
提供:ピタットハウス垂水店(株)ライブデザイン兵庫(SUUMO経由)
この物件が気になったら掲載期限まであと10日
エクセレントガーデンヒルズに条件(家賃・エリア)が近い物件一覧
| 写真 | 家賃 管理費等 | 敷金 礼金 | 間取り 専有面積 | 築年数 | 最寄り駅 所在地 | キープ | 詳細 |
|---|---|---|---|---|---|---|---|
アパート フレール天文(2DK/2階) | |||||||
![]() | 6.4万円 なし | 2万円 なし | 2DK 42.5m2 | 築34年 | 山陽電鉄本線 人丸前駅 徒歩3分 山陽電鉄本線 大蔵谷駅 徒歩10分 JR山陽本線 明石駅 徒歩12分 兵庫県明石市天文町 | 詳細を見る | |
アパート D-ROOM明石オーシャンビューハイツA(1LDK/1階) | |||||||
![]() | 8.9万円 6,500円 | 2万円 18万円 | 1LDK 40.9m2 | 築4年 | JR山陽本線 西明石駅 徒歩12分 山陽電鉄本線 藤江駅 徒歩17分 山陽電鉄本線 中八木駅 徒歩30分 兵庫県明石市東藤江 | 詳細を見る | |
マンション 山陽電気鉄道本線 林崎松江海岸駅 徒歩3分 築29年(2LDK/2階) | |||||||
![]() | 8.6万円 6,000円 | なし 20万円 | 2LDK 67.12m2 | 築29年 | 山陽電気鉄道本線 林崎松江海岸駅 徒歩3分 山陽電気鉄道本線 西新町駅 徒歩23分 山陽本線 西明石駅 徒歩30分 兵庫県明石市林崎町3丁目 | 詳細を見る | |
アパート トレーフル 緑が丘(1LDK/1階) | |||||||
![]() | 7.1万円 5,500円 | 2万円 10万円 | 1LDK 35.31m2 | 築9年 | 神戸電鉄粟生線 広野ゴルフ場前駅 徒歩12分 神戸電鉄粟生線 緑が丘駅(兵庫) 徒歩15分 神戸電鉄粟生線 志染駅 徒歩30分 兵庫県三木市緑が丘町西 | 詳細を見る | |
マンション 神戸電鉄公園都市線 ウッディタウン中央駅 徒歩8分 築37年(3LDK/5階) | |||||||
![]() | 5.84万円 4,100円 | 11.68万円 なし | 3LDK 73m2 | 築37年 | 神戸電鉄公園都市線 ウッディタウン中央駅 徒歩8分 兵庫県三田市あかしあ台3丁目 | 詳細を見る | |
アパート ジーメゾン大久保アスピダ(1LDK/2階) | |||||||
![]() | 7万円 5,000円 | なし なし | 1LDK 32.43m2 | 築1年 | 山陽本線 大久保駅(兵庫) 徒歩11分 山陽電気鉄道本線 江井ケ島駅 徒歩21分 山陽電気鉄道本線 中八木駅 徒歩29分 兵庫県明石市大久保町大窪 | 詳細を見る | |
アパート グランドールⅡ(1LDK/1階) | |||||||
![]() | 7.5万円 3,000円 | なし 7.5万円 | 1LDK 44.2m2 | 新築 | 神戸電鉄粟生線 広野ゴルフ場前駅 徒歩10分 神戸電鉄粟生線 志染駅 徒歩19分 兵庫県三木市志染町東自由が丘1丁目 | 詳細を見る | |
アパート ヒカルサ稲美天満Ⅰ(1LDK/1階) | |||||||
![]() | 7.35万円 3,900円 | なし 7.35万円 | 1LDK 44.7m2 | 新築 | 兵庫県加古郡稲美町六分一 | 詳細を見る | |









