賃貸マンション
ルーブル武蔵小杉伍番館の賃貸物件情報(1K/7階)
| 家賃 | 管理費等 | 敷金 | 礼金 | 間取り | 専有面積 |
|---|---|---|---|---|---|
| 9.98万円 | 1.02万円 | なし | 9.98万円 | 1K | 25.81m2 |
入居決定でお祝い金最大100,000円
- 保証金
- -
- 償却・敷引
- -
- 築年数
- 築8年
- 所在階
- 7階
- 向き
- 北
Point
《創業30年・東急沿線中心に10店舗・宅建保有率80%超》経験×エリア×スキルが強みの不動産会社です!【未公開情報多数】【初期費用分割払い可能】様々な角度からご提案致します★お気軽にお問合せください★
提供:Balleggs (株)バレッグス本店(学芸大学店)(SUUMO経由)

詳細情報 ルーブル武蔵小杉伍番館
物件紹介
ルーブル武蔵小杉伍番館はJR南武線平間駅から徒歩12分にあるマンションです。
このお部屋は2階以上に位置しているので、通行人や周囲の住人からの視線が気になりにくく、防犯面でも安心。建物のエントランスはオートロックがついており、インターホンにはTVモニタもついているため、相手の顔を確認してから来客対応することができます。
フローリングのお部屋なのでお掃除もラクラク。キッチンはシステムキッチン仕様になっていますので、お料理好きの方にもぴったり。バス・トイレは別なので、のんびりお風呂タイムも楽しめるでしょう。また、雨の日でも浴室乾燥機を使えば、お洗濯も問題ありません。
通信設備面では、インターネット接続が可能です。また、BSアンテナ・CSアンテナもありますので、おうち時間も充実するでしょう(別途工事、契約料が必要な場合あり)。
建物にはエレベーターがついているので、重い荷物があっても安心。共用部には宅配ボックスが設定されているので、不在の時にも荷物を受け取ることができます。
このお部屋は2階以上に位置しているので、通行人や周囲の住人からの視線が気になりにくく、防犯面でも安心。建物のエントランスはオートロックがついており、インターホンにはTVモニタもついているため、相手の顔を確認してから来客対応することができます。
フローリングのお部屋なのでお掃除もラクラク。キッチンはシステムキッチン仕様になっていますので、お料理好きの方にもぴったり。バス・トイレは別なので、のんびりお風呂タイムも楽しめるでしょう。また、雨の日でも浴室乾燥機を使えば、お洗濯も問題ありません。
通信設備面では、インターネット接続が可能です。また、BSアンテナ・CSアンテナもありますので、おうち時間も充実するでしょう(別途工事、契約料が必要な場合あり)。
建物にはエレベーターがついているので、重い荷物があっても安心。共用部には宅配ボックスが設定されているので、不在の時にも荷物を受け取ることができます。
お金・契約の情報
※「-」と表示されているものは、実際は料金が発生するものもございます。詳細はお問い合わせください。
| 家賃 | 9.98万円 | 管理費・共益費 | 1.02万円 |
|---|---|---|---|
| 敷金 | なし | 礼金 | 9.98万円 |
| 入居決定でお祝い金最大100,000円 | |||
| 保証金 | - | 償却・敷引 | - |
| 住宅保険料 | - | 更新料 | - |
| 保証会社利用 | 必須 | 保証会社名 | - |
| 保証会社費用 | - | 保証会社備考 | 保証会社利用必 初回保証料30%(家賃+管理費)年間保証料10,000円 ※学生初回保証料9,000円(学生契約可能) |
| 契約形態 | - | 契約期間 | - |
| 入居・引渡期間 | - | 現況 | - |
| 契約備考 | 合計10.25万円(内訳:鍵交換費用27500円/TFDクラブ20000円/ルームクリーニング費用(退去時)55000円) 1K 普通借家2年 損保【1.8万円2年】 バストイレ別、エアコン、ガスコンロ対応、クロゼット、フローリング、TVインターホン、浴室乾燥機、オートロック、室内洗濯置、システムキッチン、温水洗浄便座、エレベーター、洗面所独立、2口コンロ、駐輪場、宅配ボックス、光ファイバー、BS・CS、敷金不要、防犯カメラ、照明付、24時間緊急通報システム、ディンプルキー、ダブルロックキー、保証金不要、2駅利用可、3沿線以上利用可、24時間ゴミ出し可、礼金1ヶ月 入居日:'26年2月下旬 | ||
部屋の情報
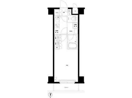
| 間取り | 1K | 専有面積 | 25.81m2 |
|---|---|---|---|
| 所在階 / 向き | 7階 / 北 | バルコニー面積 | - |
| 水道 / ガス | - | ||
| 設備 | バス・トイレ別、2階以上、オートロック、テレビドアホン、宅配ボックス、浴室乾燥機、インターネット対応、システムキッチン、エアコン、エレベーター、温水洗浄便座、フローリング、洗髪洗面化粧台、2口コンロ、コンロ:ガス、CSアンテナ、BSアンテナ、洗濯機:室内 | ||
| 当社物件ID | 160137295 | ||
建物の情報
| 建物名 | ルーブル武蔵小杉伍番館 | ||
|---|---|---|---|
| 所在地 | 神奈川県川崎市中原区市ノ坪 | ||
| 交通 | JR南武線 平間駅 徒歩12分 JR横須賀線 武蔵小杉駅 徒歩13分 東急東横線 武蔵小杉駅 徒歩15分 | ||
| 階数 | 7階建 | 総戸数 | - |
| 築年月 | 2018年09月 / 築8年 | エレベーター | あり |
| 駐車場 | なし | バイク置き場 | - |
| 駐輪場 | あり | 管理人/管理会社 | - |
| 周辺環境 | その他 JR武蔵小杉駅(その他)まで1344m | ||
| 建物種別 | マンション | 建物構造 | RC(鉄筋コンクリート) |
この部屋の取扱い不動産会社
| 会社名 | Balleggs (株)バレッグス本店(学芸大学店)(SUUMO経由) | ||
|---|---|---|---|
| 所在地 | 東京都目黒区鷹番2-5-21 | 交通 | - |
| 営業時間 | 10時~18時(電話受付は12時~13時以外) | 定休日 | 毎週火・水曜日、お盆・年末年始 |
| 免許番号 | 東京都知事62730 | 取引態様 | 仲介 |
| 不動産会社管理番号 | 100480701985 | 当社管理番号 | 89 |
| 所属団体 | (公社)東京都宅地建物取引業協会会員 | ||
| 公正取引協議会 | (公社)首都圏不動産公正取引協議会加盟 | ||
| 取扱い物件情報 | 物件詳細へ | ||
※各種情報と現状に差異がある場合は、現状優先となります。問い合わせをすることで、より詳しい条件、情報を確認する事ができます。
提供:Balleggs (株)バレッグス本店(学芸大学店)(SUUMO経由)
この物件が気になったら掲載期限まであと11日
ルーブル武蔵小杉伍番館に条件(家賃・エリア)が近い物件一覧
| 写真 | 家賃 管理費等 | 敷金 礼金 | 間取り 専有面積 | 築年数 | 最寄り駅 所在地 | キープ | 詳細 |
|---|---|---|---|---|---|---|---|
アパート クールヴェール・B(2LDK/1階) | |||||||
![]() | 10.1万円 6,000円 | なし 20.2万円 | 2LDK 54.61m2 | 築12年 | 相鉄本線 三ツ境駅 徒歩13分 相鉄本線 希望ケ丘駅 徒歩16分 相鉄本線 瀬谷駅 徒歩37分 神奈川県横浜市瀬谷区三ツ境 | 詳細を見る | |
アパート レオパレスKAZUKⅠⅡ(1K/2階) | |||||||
![]() | 8.3万円 5,500円 | なし 8.3万円 | 1K 19.87m2 | 築17年 | 横浜線 鴨居駅 徒歩21分 神奈川県横浜市神奈川区菅田町 | 詳細を見る | |
アパート ジュネスピアB(2LDK/2階) | |||||||
![]() | 12万円 4,000円 | なし 12万円 | 2LDK 53.22m2 | 築14年 | ブルーライン 中川駅(神奈川) 徒歩7分 ブルーライン センター北駅 徒歩20分 神奈川県横浜市都筑区牛久保 | 詳細を見る | |
マンション コーポ清川(1DK/4階) | |||||||
![]() | 6.5万円 3,000円 | 6.5万円 6.5万円 | 1DK 26.41m2 | 築48年 | 京急本線 日ノ出町駅 徒歩5分 ブルーライン 伊勢佐木長者町駅 徒歩9分 JR京浜東北線 関内駅 徒歩15分 神奈川県横浜市中区末吉町 | 詳細を見る | |
アパート サンクレスト(1K/2階) | |||||||
![]() | 7.2万円 3,000円 | なし なし | 1K 24.18m2 | 築18年 | 京急本線 鶴見市場駅 徒歩13分 JR京浜東北線 鶴見駅 徒歩20分 神奈川県横浜市鶴見区平安町 | 詳細を見る | |
アパート MAESTRO (1LDK/3階) | |||||||
![]() | 13.5万円 6,000円 | 13.5万円 27万円 | 1LDK 36.96m2 | 築1年 | 相鉄本線 上星川駅 徒歩7分 相鉄本線 和田町駅 徒歩10分 相鉄本線 星川駅(神奈川) 徒歩21分 神奈川県横浜市保土ケ谷区坂本町 | 詳細を見る | |
マンション ソルレバンテ(1K/3階) | |||||||
![]() | 12.5万円 8,000円 | 12.5万円 12.5万円 | 1K 28.12m2 | 築5年 | 東急東横線 菊名駅 徒歩2分 東急東横線 妙蓮寺駅 徒歩19分 JR横浜線 新横浜駅 徒歩21分 神奈川県横浜市港北区錦が丘 | 詳細を見る | |
マンション パークアクシス横濱高島町(ワンルーム/6階) | |||||||
![]() | 10.8万円 1万円 | 10.8万円 なし | ワンルーム 22.84m2 | 築4年 | 京急本線 戸部駅 徒歩4分 JR京浜東北線 桜木町駅 徒歩16分 JR根岸線 横浜駅 徒歩17分 神奈川県横浜市西区戸部本町 | 詳細を見る | |








