賃貸マンション
エルファーロ大塚Ⅳの賃貸物件情報(2DK/3階)
| 家賃 | 管理費等 | 敷金 | 礼金 | 間取り | 専有面積 |
|---|---|---|---|---|---|
| 16.3万円 | 1.5万円 | なし | なし | 2DK | 38.23m2 |
入居決定でお祝い金最大100,000円
Point
まずはお問い合わせ!
不動産会社は街のプロ、あなたに合った物件がきっと見つかります。
提供:アパマンショップ御茶ノ水店

詳細情報 エルファーロ大塚Ⅳ
物件紹介
エルファーロ大塚Ⅳは都電荒川線巣鴨新田駅から徒歩8分にあり、駅近で通勤通学に便利なマンションです。
このお部屋は2階以上に位置しているので通行人や周囲の住人からの視線が気になりにくく、建物のエントランスはオートロックがついているので防犯性が高くなっています。
人気の南向きのお部屋。また、フローリングなのでお掃除もラクラク。キッチンはシステムキッチン仕様になっていますので、お料理好きの方にもぴったり。バス・トイレは別なので、のんびりお風呂タイムも楽しめるでしょう。また、雨の日でも浴室乾燥機を使えば、お洗濯も問題ありません。
通信設備面では、インターネットが無料で使えるので、月々の出費を抑えられるのも魅力です(別途工事等が必要な場合あり)。
共用部には宅配ボックスが設定されているので、不在の時にも荷物を受け取ることができます。
コンビニまで徒歩5分の場所にあり、日用品や食料品のお買い物にも便利です。
このお部屋は2階以上に位置しているので通行人や周囲の住人からの視線が気になりにくく、建物のエントランスはオートロックがついているので防犯性が高くなっています。
人気の南向きのお部屋。また、フローリングなのでお掃除もラクラク。キッチンはシステムキッチン仕様になっていますので、お料理好きの方にもぴったり。バス・トイレは別なので、のんびりお風呂タイムも楽しめるでしょう。また、雨の日でも浴室乾燥機を使えば、お洗濯も問題ありません。
通信設備面では、インターネットが無料で使えるので、月々の出費を抑えられるのも魅力です(別途工事等が必要な場合あり)。
共用部には宅配ボックスが設定されているので、不在の時にも荷物を受け取ることができます。
コンビニまで徒歩5分の場所にあり、日用品や食料品のお買い物にも便利です。
お金・契約の情報
※「-」と表示されているものは、実際は料金が発生するものもございます。詳細はお問い合わせください。
| 家賃 | 16.3万円 | 管理費・共益費 | 1.5万円 |
|---|---|---|---|
| 敷金 | なし | 礼金 | なし |
| 入居決定でお祝い金最大100,000円 | |||
| 保証金 | - | 償却・敷引 | - |
| 住宅保険料 | 1円 | 更新料 | - |
| その他費用 | プレミアデスク(2年/税込):1.65万円、93500円: | ||
| 保証会社利用 | 必須 | 保証会社名 | エポスカード |
| 保証会社費用 | - | 保証会社備考 | ※エポス ルームIDからの審査になります。 【ルームID】月額総賃料の50%/月次保証料、月額総賃料の1.5%/1年毎10,000円 【アーク賃貸保証】月額総賃料の40%/次年度以降10,000円 |
| 契約形態 | - | 契約期間 | 2年 |
| 入居・引渡期間 | 相談 | 現況 | - |
| 入居可能条件 | 事務所不可、楽器不可、ペット不可 | ||
| 契約備考 | 鍵交換費用:38500 その他設備/条件:室内洗濯機置き場、独立洗面台、クローゼット、シューズボックス | ||
部屋の情報
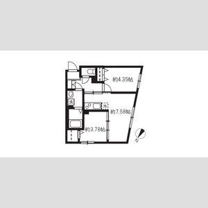
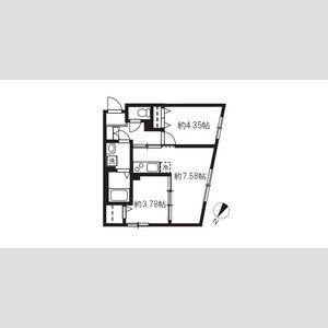
| 間取り | 2DK | 専有面積 | 38.23m2 |
|---|---|---|---|
| 所在階 / 向き | 3階 / 南西 | バルコニー面積 | - |
| 水道 / ガス | 水道【公営】、ガス【都市】 | ||
| 設備 | バス・トイレ別、オートロック、宅配ボックス、浴室乾燥機、インターネット対応、システムキッチン、エアコン、温水洗浄便座、フローリング、2口コンロ、コンロ:ガス、インターネット使用料無料、シャワー、給湯 | ||
| 当社物件ID | 132284202 | ||
建物の情報
| 建物名 | エルファーロ大塚Ⅳ | ||
|---|---|---|---|
| 所在地 | 東京都豊島区上池袋1丁目 | ||
| 交通 | 山手線 大塚駅(東京) 徒歩10分 山手線 池袋駅 徒歩14分 | ||
| 階数 | 5階建 | 総戸数 | 14戸 |
| 築年月 | 2023年05月 / 築3年 | エレベーター | - |
| 駐車場 | なし 無 | バイク置き場 | - |
| 駐輪場 | - | 管理人/管理会社 | - |
| 周辺環境 | コンビニ 徒歩5分(387m) 販売店 徒歩6分(448m) その他 ドラッグストア その他 公園 その他 銀行 その他 * | ||
| 建物種別 | マンション | 建物構造 | RC(鉄筋コンクリート) |
この部屋の取扱い不動産会社
| 会社名 | ハウスコム東東京株式会社 高田馬場店 | ||
|---|---|---|---|
| 所在地 | 東京都新宿区17-18マルシメビル1階 | 交通 | - |
| 営業時間 | 10:00~18:00 | 定休日 | 水曜定休 |
| 免許番号 | 東京都知事(1)第108283号 | 取引態様 | 仲介 |
| 不動産会社管理番号 | HC5-4365789-0303-0227 | 当社管理番号 | 468 |
| 所属団体 | 、 | ||
| 取扱い物件情報 | 物件詳細へ | ||
※各種情報と現状に差異がある場合は、現状優先となります。問い合わせをすることで、より詳しい条件、情報を確認する事ができます。
提供:ハウスコム東東京株式会社 高田馬場店
この物件が気になったら掲載期限まであと4日
エルファーロ大塚Ⅳに条件(家賃・エリア)が近い物件一覧
| 写真 | 家賃 管理費等 | 敷金 礼金 | 間取り 専有面積 | 築年数 | 最寄り駅 所在地 | キープ | 詳細 |
|---|---|---|---|---|---|---|---|
マンション モンレーヴ本駒込(1K/2階) | |||||||
![]() | 12万円 5,000円 | 12万円 12万円 | 1K 29.17m2 | 新築 | 山手線 駒込駅 徒歩8分 東京都三田線 千石駅 徒歩10分 東京地下鉄南北線 本駒込駅 徒歩12分 東京都文京区本駒込5丁目 | 詳細を見る | |
マンション アジールコート後楽園(1DK/2階) | |||||||
![]() | 15.1万円 1万円 | 15.1万円 なし | 1DK 27.6m2 | 築1年 | 東京都三田線 春日駅(東京) 徒歩7分 東京地下鉄丸ノ内線 後楽園駅 徒歩10分 東京都文京区白山1丁目 | 詳細を見る | |
マンション ジェノヴィア新大塚(1DK/2階) | |||||||
![]() | 13.9万円 1.5万円 | なし なし | 1DK 29.56m2 | 築5年 | 東京地下鉄丸ノ内線 新大塚駅 徒歩9分 東京地下鉄丸ノ内線 茗荷谷駅 徒歩10分 東京地下鉄有楽町線 護国寺駅 徒歩12分 東京都文京区大塚4丁目 | 詳細を見る | |
マンション ZOOM飯田橋(ワンルーム/4階) | |||||||
![]() | 14.9万円 9,000円 | 14.9万円 なし | ワンルーム 25.44m2 | 築13年 | 東京都大江戸線 飯田橋駅 徒歩9分 総武・中央緩行線 飯田橋駅 徒歩10分 東京地下鉄丸ノ内線 後楽園駅 徒歩10分 東京都文京区水道1丁目 | 詳細を見る | |
マンション SILVER WOOD KASUGA(1DK/2階) | |||||||
![]() | 12.5万円 1万円 | 12.5万円 25万円 | 1DK 25.79m2 | 築3年 | 東京地下鉄丸ノ内線 後楽園駅 徒歩10分 東京都大江戸線 春日駅(東京) 徒歩10分 東京都文京区春日2丁目 | 詳細を見る | |
マンション アルテシモ ルーナ(1LDK/8階) | |||||||
![]() | 17.5万円 2万円 | なし 17.5万円 | 1LDK 40.52m2 | 築8年 | 東京地下鉄有楽町線 護国寺駅 徒歩4分 東京地下鉄丸ノ内線 新大塚駅 徒歩8分 東京地下鉄丸ノ内線 茗荷谷駅 徒歩10分 東京都文京区大塚2丁目 | 詳細を見る | |
マンション プライマル小石川(1DK/7階) | |||||||
![]() | 14.7万円 1万円 | 14.7万円 なし | 1DK 31.26m2 | 築20年 | 東京都大江戸線 飯田橋駅 徒歩9分 総武・中央緩行線 飯田橋駅 徒歩9分 東京地下鉄丸ノ内線 後楽園駅 徒歩11分 東京都文京区水道1丁目 | 詳細を見る | |
マンション LA MAISON DE KAKEGAWA(1K/4階) | |||||||
![]() | 11.3万円 5,000円 | 11.3万円 11.3万円 | 1K 31.18m2 | 築19年 | 東京都三田線 千石駅 徒歩2分 山手線 巣鴨駅 徒歩10分 東京地下鉄南北線 本駒込駅 徒歩17分 東京都文京区千石4丁目 | 詳細を見る | |








