賃貸マンション
カーサスプレンディッド虎ノ門エストの賃貸物件情報(1K/7階)
| 家賃 | 管理費等 | 敷金 | 礼金 | 間取り | 専有面積 |
|---|---|---|---|---|---|
| 12.5万円 | 1.2万円 | なし | なし | 1K | 22.8m2 |
入居決定でお祝い金最大100,000円
Point
【業界新システム】正直不動産公式副読本掲載の話題沸騰店舗☆
提供:(株)DoDoNPA新橋店(SUUMO経由)

詳細情報 カーサスプレンディッド虎ノ門エスト
物件紹介
カーサスプレンディッド虎ノ門エストは都営三田線御成門駅から徒歩2分にあり、駅近で通勤通学に便利なマンションです。
このお部屋は2階以上に位置しているので、通行人や周囲の住人からの視線が気になりにくく、防犯面でも安心。建物のエントランスはオートロックがついており、インターホンにはTVモニタもついているため、相手の顔を確認してから来客対応することができます。
フローリングのお部屋なのでお掃除もラクラク。キッチンはシステムキッチン仕様になっていますので、お料理好きの方にもぴったり。バス・トイレは別なので、のんびりお風呂タイムも楽しめるでしょう。また、雨の日でも浴室乾燥機を使えば、お洗濯も問題ありません。
通信設備面では、インターネット接続が可能です。また、BSアンテナ・CSアンテナがありCATVにも対応しているので、おうち時間も充実するでしょう(別途工事、契約料が必要な場合あり)。
建物にはエレベーターがついているので、重い荷物があっても安心。共用部には宅配ボックスが設定されているので、不在の時にも荷物を受け取ることができます。
このお部屋は2階以上に位置しているので、通行人や周囲の住人からの視線が気になりにくく、防犯面でも安心。建物のエントランスはオートロックがついており、インターホンにはTVモニタもついているため、相手の顔を確認してから来客対応することができます。
フローリングのお部屋なのでお掃除もラクラク。キッチンはシステムキッチン仕様になっていますので、お料理好きの方にもぴったり。バス・トイレは別なので、のんびりお風呂タイムも楽しめるでしょう。また、雨の日でも浴室乾燥機を使えば、お洗濯も問題ありません。
通信設備面では、インターネット接続が可能です。また、BSアンテナ・CSアンテナがありCATVにも対応しているので、おうち時間も充実するでしょう(別途工事、契約料が必要な場合あり)。
建物にはエレベーターがついているので、重い荷物があっても安心。共用部には宅配ボックスが設定されているので、不在の時にも荷物を受け取ることができます。
お金・契約の情報
※「-」と表示されているものは、実際は料金が発生するものもございます。詳細はお問い合わせください。
| 家賃 | 12.5万円 | 管理費・共益費 | 1.2万円 |
|---|---|---|---|
| 敷金 | なし | 礼金 | なし |
| 入居決定でお祝い金最大100,000円 | |||
| 保証金 | - | 償却・敷引 | - |
| 住宅保険料 | - | 更新料 | - |
| 保証会社利用 | 必須 | 保証会社名 | 日本セーフティー |
| 保証会社費用 | - | 保証会社備考 | 日本セーフティー利用必 初回50%~、月額800円 |
| 契約形態 | - | 契約期間 | - |
| 入居・引渡期間 | 即時 | 現況 | - |
| 契約備考 | 【業界新システム】正直不動産公式副読本掲載の話題沸騰店舗☆ 合計6.6万円(内訳:24時間サポート1.65万円書類作成費用1.1万円鍵交換代3.85万円) 更新料 賃料1.00ヶ月分 1K 子供不可/事務所利用不可/ルームシェア不可 普通借家2年 損保【1.8万円2年】 バストイレ別、バルコニー、エアコン、ガスコンロ対応、クロゼット、フローリング、TVインターホン、オートロック、室内洗濯置、シューズボックス、システムキッチン、温水洗浄便座、脱衣所、エレベーター、洗面所独立、2口コンロ、宅配ボックス、敷金不要、分譲賃貸、保証人不要、2沿線利用可、ディンプルキー、24時間換気システム、学生相談、2駅利用可、駅徒歩5分以内、駅徒歩10分以内、敷地内ごみ置き場、都市ガス、保証会社利用可 | ||
部屋の情報
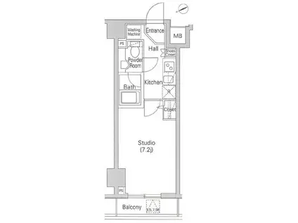
| 間取り | 1K | 専有面積 | 22.8m2 |
|---|---|---|---|
| 所在階 / 向き | 7階 / 北西 | バルコニー面積 | 2m2 |
| 水道 / ガス | - | ||
| 設備 | バス・トイレ別、2階以上、オートロック、テレビドアホン、宅配ボックス、システムキッチン、エアコン、エレベーター、温水洗浄便座、バルコニー、フローリング、洗髪洗面化粧台、2口コンロ、コンロ:ガス、洗濯機:室内 | ||
| 当社物件ID | 16578794 | ||
建物の情報
| 建物名 | カーサスプレンディッド虎ノ門エスト | ||
|---|---|---|---|
| 所在地 | 東京都港区新橋 | ||
| 交通 | 都営三田線 御成門駅 徒歩2分 都営大江戸線 大門駅(東京) 徒歩10分 | ||
| 階数 | 15階建 | 総戸数 | 52戸 |
| 築年月 | 2006年01月 / 築21年 | エレベーター | あり |
| 駐車場 | なし | バイク置き場 | - |
| 駐輪場 | - | 管理人/管理会社 | - |
| 建物種別 | マンション | 建物構造 | RC(鉄筋コンクリート) |
この部屋の取扱い不動産会社
| 会社名 | 神宮前不動産(株)公園前店(SUUMO経由) | ||
|---|---|---|---|
| 所在地 | 東京都渋谷区神宮前6-23-11 J-SIXビル6階 | 交通 | - |
| 営業時間 | 10:00~19:00 | 定休日 | 水 |
| 免許番号 | 東京都知事105473 | 取引態様 | 仲介 |
| 不動産会社管理番号 | 100484158290 | 当社管理番号 | 89 |
| 所属団体 | (公社)全日本不動産協会東京都本部会員 | ||
| 公正取引協議会 | (公社)首都圏不動産公正取引協議会加盟 | ||
| 取扱い物件情報 | 物件詳細へ | ||
※各種情報と現状に差異がある場合は、現状優先となります。問い合わせをすることで、より詳しい条件、情報を確認する事ができます。
提供:神宮前不動産(株)公園前店(SUUMO経由)
この物件が気になったら掲載期限まであと10日
カーサスプレンディッド虎ノ門エストに条件(家賃・エリア)が近い物件一覧
| 写真 | 家賃 管理費等 | 敷金 礼金 | 間取り 専有面積 | 築年数 | 最寄り駅 所在地 | キープ | 詳細 |
|---|---|---|---|---|---|---|---|
マンション ルフォンプログレ神田プレミア(1DK/3階) | |||||||
![]() | 16.3万円 1.5万円 | 16.3万円 16.3万円 | 1DK 24.54m2 | 築3年 | 東京地下鉄銀座線 神田駅(東京) 徒歩3分 山手線 神田駅(東京) 徒歩4分 中央本線 神田駅(東京) 徒歩4分 東京都千代田区神田須田町1丁目 | 詳細を見る | |
マンション 品川シーサイドビュータワー2(1K/17階) | |||||||
![]() | 15.1万円 1万円 | なし 22.65万円 | 1K 42.38m2 | 築23年 | 東京臨海高速鉄道 品川シーサイド駅 徒歩2分 東京都品川区東品川4丁目 | 詳細を見る | |
マンション ONE ROOF FLAT TSUKISHIMA(1K/2階) | |||||||
![]() | 12.9万円 1.5万円 | 12.9万円 12.9万円 | 1K 25.02m2 | 築11年 | 東京地下鉄有楽町線 月島駅 徒歩4分 東京都大江戸線 月島駅 徒歩4分 東京都大江戸線 勝どき駅 徒歩6分 東京都中央区月島4丁目 | 詳細を見る | |
マンション カペラⅡ(1K/3階) | |||||||
![]() | 8.7万円 5,000円 | 8.7万円 8.7万円 | 1K 18.75m2 | 築24年 | 東急池上線 戸越銀座駅 徒歩5分 東京都浅草線 戸越駅 徒歩7分 東急目黒線 武蔵小山駅 徒歩11分 東京都品川区荏原2丁目 | 詳細を見る | |
マンション アーバネックス森下ウエスト(1DK/10階) | |||||||
![]() | 14.2万円 1万円 | 14.2万円 なし | 1DK 25.77m2 | 築3年 | 東京都新宿線 森下駅(東京) 徒歩6分 東京都江東区新大橋2丁目 | 詳細を見る | |
マンション レジディア大手町北(1K/4階) | |||||||
![]() | 16.6万円 1.5万円 | なし なし | 1K 25.02m2 | 築7年 | 山手線 神田駅(東京) 徒歩5分 東京地下鉄丸ノ内線 大手町駅(東京) 徒歩7分 東京地下鉄銀座線 神田駅(東京) 徒歩7分 東京都千代田区内神田1丁目 | 詳細を見る | |
マンション プレール・ドゥーク東京CANAL(1K/6階) | |||||||
![]() | 10.6万円 1.1万円 | なし 10.6万円 | 1K 22.34m2 | 築20年 | 京葉線 潮見駅 徒歩7分 東京地下鉄有楽町線 豊洲駅 徒歩22分 東京地下鉄東西線 木場駅 徒歩23分 東京都江東区枝川3丁目 | 詳細を見る | |
マンション クロスレジデンス神田神保町(1DK/10階) | |||||||
![]() | 15.9万円 1.2万円 | 15.9万円 15.9万円 | 1DK 25.03m2 | 築2年 | 東京地下鉄半蔵門線 神保町駅 徒歩1分 東京地下鉄丸ノ内線 淡路町駅 徒歩8分 東京地下鉄東西線 九段下駅 徒歩9分 東京都千代田区神田神保町1丁目 | 詳細を見る | |








