賃貸マンション
ビレッジハウス斐川2号棟の賃貸物件情報(3DK/1階)
| 家賃 | 管理費等 | 敷金 | 礼金 | 間取り | 専有面積 |
|---|---|---|---|---|---|
| 5.03万円 | なし | なし | なし | 3DK | 53.08m2 |
入居決定でお祝い金最大100,000円
- 保証金
- -
- 償却・敷引
- -
- 築年数
- 築36年
- 所在階
- 1階
- 向き
- 南
Point
まずはお問い合わせ!
不動産会社は街のプロ、あなたに合った物件がきっと見つかります。
提供:ビレッジハウス・マネジメント株式会社 住まい相談センター

詳細情報 ビレッジハウス斐川2号棟
物件紹介
ビレッジハウス斐川2号棟は山陰本線荘原駅から徒歩11分にあるマンションです。
人気の南向きのお部屋。角部屋でもあるため、周囲の居住者の生活音も気になりにくい場所です。バス・トイレ別の仕様で、のんびりお風呂タイムも楽しめます。
人気の南向きのお部屋。角部屋でもあるため、周囲の居住者の生活音も気になりにくい場所です。バス・トイレ別の仕様で、のんびりお風呂タイムも楽しめます。
お金・契約の情報
※「-」と表示されているものは、実際は料金が発生するものもございます。詳細はお問い合わせください。
| 家賃 | 5.03万円 | 管理費・共益費 | なし |
|---|---|---|---|
| 敷金 | なし | 礼金 | なし |
| フリーレント | 1ヶ月 | ||
| 入居決定でお祝い金最大100,000円 | |||
| 保証金 | - | 償却・敷引 | - |
| 住宅保険料 | 1万円(2年) | 更新料 | - |
| 保証会社利用 | - | 保証会社名 | - |
| 保証会社費用 | - | 保証会社備考 | - |
| 契約形態 | - | 契約期間 | - |
| 入居・引渡期間 | - | 現況 | 空室 |
| 入居可能条件 | 2人入居可、高齢者相談、学生可 | ||
| 契約備考 | 契約種類:普通契約、24時間緊急対応、洗面台 | ||
部屋の情報
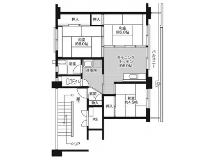
| 間取り | 3DK | 専有面積 | 53.08m2 |
|---|---|---|---|
| 所在階 / 向き | 1階 / 南 | バルコニー面積 | - |
| 水道 / ガス | - | ||
| 設備 | バス・トイレ別、追い焚き、エアコン、角部屋、バルコニー、2口コンロ、給湯、洗濯機:室内 | ||
| 当社物件ID | 25390841 | ||
建物の情報
| 建物名 | ビレッジハウス斐川2号棟 | ||
|---|---|---|---|
| 所在地 | 島根県出雲市斐川町荘原3899 | ||
| 交通 | 山陰本線 荘原駅 徒歩11分 山陰本線 直江駅 徒歩61分 山陰本線 宍道駅 徒歩67分 | ||
| 階数 | 5階建 | 総戸数 | - |
| 築年月 | 1991年04月 / 築36年 | エレベーター | - |
| 駐車場 | 空有 円 | バイク置き場 | - |
| 駐輪場 | - | 管理人/管理会社 | 日勤 |
| 建物種別 | マンション | 建物構造 | RC(鉄筋コンクリート) |
この部屋の取扱い不動産会社
| 会社名 | ビレッジハウス・マネジメント株式会社 住まい相談センター | ||
|---|---|---|---|
| 所在地 | 東京都港区六本木6-10-1 六本木ヒルズ森タワー44階 | 交通 | 東京メトロ日比谷線「六本木駅」 直結 |
| 営業時間 | 平日:9:00-18:30/土日祝:9:00-18:00 | 定休日 | 年中無休(年末年始を除く) |
| 免許番号 | 東京都知事(2)第100758号 | 取引態様 | 貸主 |
| 不動産会社管理番号 | 00009329308 | 当社管理番号 | 459 |
| 所属団体 | 公益社団法人東京都宅地建物取引業協会会員 日本賃貸住宅管理協会会員 | ||
| 取扱い物件情報 | 物件詳細へ | ||
※各種情報と現状に差異がある場合は、現状優先となります。問い合わせをすることで、より詳しい条件、情報を確認する事ができます。
提供:ビレッジハウス・マネジメント株式会社 住まい相談センター
この物件が気になったら掲載期限まであと13日
ビレッジハウス斐川2号棟に条件(家賃・エリア)が近い物件一覧
| 写真 | 家賃 管理費等 | 敷金 礼金 | 間取り 専有面積 | 築年数 | 最寄り駅 所在地 | キープ | 詳細 |
|---|---|---|---|---|---|---|---|
アパート ジュネスエスポワールB(1LDK/2階) | |||||||
![]() | 6万円 2,000円 | なし 6万円 | 1LDK 43.75m2 | 築36年 | JR山陰本線 乃木駅 徒歩21分 JR山陰本線 松江駅 徒歩32分 一畑電車北松江線 松江しんじ湖温泉駅 徒歩48分 島根県松江市上乃木 | 詳細を見る | |
アパート セレスティアル学園(1DK/3階) | |||||||
![]() | 6.7万円 5,000円 | 6.7万円 6.7万円 | 1DK 36.9m2 | 築6年 | JR山陰本線 松江駅 徒歩30分 島根県松江市学園 | 詳細を見る | |
アパート コーポ布野III(2LDK/1階) | |||||||
![]() | 5万円 なし | 10万円 なし | 2LDK 61.48m2 | 築38年 | JR山陰本線 出雲市駅 徒歩16分 島根県出雲市塩冶町 | 詳細を見る | |
アパート ラ・レーヌ下古志(2DK/2階) | |||||||
![]() | 5万円 なし | 10万円 5万円 | 2DK 46.8m2 | 築26年 | JR山陰本線 西出雲駅 徒歩23分 JR山陰本線 出雲市駅 徒歩43分 一畑電車北松江線 電鉄出雲市駅 徒歩45分 島根県出雲市下古志町 | 詳細を見る | |
マンション スカイハイツ(2LDK/4階) | |||||||
![]() | 6.9万円 4,000円 | なし 6.9万円 | 2LDK 63.2m2 | 築41年 | JR山陰本線 乃木駅 徒歩6分 島根県松江市浜乃木 | 詳細を見る | |
アパート シルキーIII(2DK/1階) | |||||||
![]() | 3.9万円 なし | 7.8万円 3.9万円 | 2DK 42.8m2 | 築36年 | JR山陰本線 出雲市駅 徒歩45分 島根県出雲市高松町 | 詳細を見る | |
アパート メルディア竹矢(1K/1階) | |||||||
![]() | 5.25万円 2,300円 | なし 6.25万円 | 1K 35m2 | 築2年 | 山陰本線 東松江駅(島根) 徒歩17分 島根県松江市竹矢町 | 詳細を見る | |
マンション サンティーヌ・G(1K/3階) | |||||||
![]() | 4.4万円 なし | なし なし | 1K 24.8m2 | 築29年 | JR山陰本線 松江駅 徒歩18分 島根県松江市西津田 | 詳細を見る | |









