賃貸マンション
アクロス大濠公園プレミアフォートの賃貸物件情報(1LDK/8階)
| 家賃 | 管理費等 | 敷金 | 礼金 | 間取り | 専有面積 |
|---|---|---|---|---|---|
| 12万円 | なし | なし | 24万円 | 1LDK | 34.18m2 |
入居決定でお祝い金最大100,000円
- 保証金
- -
- 償却・敷引
- -
- 築年数
- 築4年
- 所在階
- 8階
- 向き
- 南東
Point
空港線唐人町駅まで徒歩3分の好立地。近隣にコンビニ、スーパー、複合商業施設等があり、生活環境良好。追焚機能、浴室乾燥機、システムキッチンなど設備充実。南当仁小学・当仁中校区。ぜひ、トーマスリビングへ
提供:(株)トーマスリビング天神店(SUUMO経由)

詳細情報 アクロス大濠公園プレミアフォート
物件紹介
アクロス大濠公園プレミアフォートは地下鉄空港線唐人町駅から徒歩3分にあり、駅近で通勤通学に便利なマンションです。
このお部屋は2階以上に位置しているので通行人や周囲の住人からの視線が気になりにくく、建物のエントランスはオートロックがついているので防犯性が高くなっています。
人気の南向き・フローリングのお部屋。角部屋でもあるため、周囲の居住者の生活音も気になりにくい場所です。キッチンはシステムキッチン仕様になっていますので、お料理好きの方にもぴったり。バス・トイレは別なので、のんびりお風呂タイムも楽しめるでしょう。また、雨の日でも浴室乾燥機を使えば、お洗濯も問題ありません。
床暖房があり、冬も足元から暖かく快適に過ごすことができます。建物にはエレベーターがついているので、重い荷物があっても安心。
このお部屋は2階以上に位置しているので通行人や周囲の住人からの視線が気になりにくく、建物のエントランスはオートロックがついているので防犯性が高くなっています。
人気の南向き・フローリングのお部屋。角部屋でもあるため、周囲の居住者の生活音も気になりにくい場所です。キッチンはシステムキッチン仕様になっていますので、お料理好きの方にもぴったり。バス・トイレは別なので、のんびりお風呂タイムも楽しめるでしょう。また、雨の日でも浴室乾燥機を使えば、お洗濯も問題ありません。
床暖房があり、冬も足元から暖かく快適に過ごすことができます。建物にはエレベーターがついているので、重い荷物があっても安心。
お金・契約の情報
※「-」と表示されているものは、実際は料金が発生するものもございます。詳細はお問い合わせください。
| 家賃 | 12万円 | 管理費・共益費 | なし |
|---|---|---|---|
| 敷金 | なし | 礼金 | 24万円 |
| 入居決定でお祝い金最大100,000円 | |||
| 保証金 | - | 償却・敷引 | - |
| 住宅保険料 | - | 更新料 | - |
| 保証会社利用 | 必須 | 保証会社名 | - |
| 保証会社費用 | - | 保証会社備考 | 保証会社利用必 要確認 |
| 契約形態 | - | 契約期間 | - |
| 入居・引渡期間 | 相談 | 現況 | - |
| 契約備考 | 店内の換気・消毒をしてお客様のご来店をお待ちしています。初期費用のクレジットカード払い可(分割可能)です。他の会社様が掲載している物件でもご紹介可能です。◆公共交通機関をご利用して来られる方は、駅までの送迎サービスを行っています。◆仲介手数料0円の物件も取り扱っております。◆電話・Line・メールにて対応可能です。お急ぎの方はお電話下さい。メールの場合お返事に1日頂く場合も御座います。 合計4.4万円(内訳:鍵交換代44000円) プラスライフ24990円/月 1LDK 単身者可/二人入居可 普通借家1年 損保【要】 バストイレ別、バルコニー、フローリング、シャワー付洗面台、浴室乾燥機、オートロック、室内洗濯置、陽当り良好、システムキッチン、追焚機能浴室、角住戸、脱衣所、エレベーター、洗面所独立、洗面化粧台、2口コンロ、敷金不要、防犯カメラ、駅まで平坦、床暖房、平坦地、3駅以上利用可、駅徒歩5分以内、敷地内ごみ置き場、築5年以内、東南向き、プロパンガス、礼金2ヶ月、IT重説対応物件、初期費用カード決済可 | ||
部屋の情報
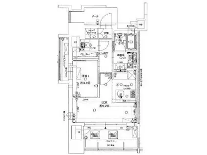
| 間取り | 1LDK | 専有面積 | 34.18m2 |
|---|---|---|---|
| 所在階 / 向き | 8階 / 南東 | バルコニー面積 | 7m2 |
| 水道 / ガス | - | ||
| 設備 | バス・トイレ別、2階以上、オートロック、浴室乾燥機、追い焚き、システムキッチン、エレベーター、南向き、角部屋、バルコニー、フローリング、洗髪洗面化粧台、床暖房、2口コンロ、洗濯機:室内 | ||
| 当社物件ID | 128330050 | ||
建物の情報
| 建物名 | アクロス大濠公園プレミアフォート | ||
|---|---|---|---|
| 所在地 | 福岡県福岡市中央区地行 | ||
| 交通 | 地下鉄空港線 唐人町駅 徒歩3分 地下鉄空港線 西新駅 徒歩13分 地下鉄空港線 大濠公園駅 徒歩14分 | ||
| 階数 | 13階建 | 総戸数 | - |
| 築年月 | 2022年12月 / 築4年 | エレベーター | あり |
| 駐車場 | なし | バイク置き場 | - |
| 駐輪場 | - | 管理人/管理会社 | - |
| 周辺環境 | その他 Maxvalu Express(マックスバリュ エクスプレス(スーパー)まで310m その他 セブンイレブン 福岡唐人町駅前店(コンビニ)まで68m その他 大賀薬局 地行店(ドラッグストア)まで454m その他 福岡今川郵便局(郵便局)まで434m その他 福岡記念病院(病院)まで766m その他 MARK IS fukuoka-momochi(マークイズ福(ショッピングセンター)まで840m | ||
| 建物種別 | マンション | 建物構造 | RC(鉄筋コンクリート) |
この部屋の取扱い不動産会社
| 会社名 | (株)トーマスリビング天神店(SUUMO経由) | ||
|---|---|---|---|
| 所在地 | 福岡県福岡市中央区天神2-3-5 | 交通 | - |
| 営業時間 | 10:00~19:00 | 定休日 | 毎週火曜・年末年始 |
| 免許番号 | 国土交通大臣8479 | 取引態様 | 仲介 |
| 不動産会社管理番号 | 100493369571 | 当社管理番号 | 89 |
| 所属団体 | (公社)全日本不動産協会福岡県本部会員 | ||
| 公正取引協議会 | (一社)九州不動産公正取引協議会加盟 | ||
| 取扱い物件情報 | 物件詳細へ | ||
※各種情報と現状に差異がある場合は、現状優先となります。問い合わせをすることで、より詳しい条件、情報を確認する事ができます。
提供:(株)トーマスリビング天神店(SUUMO経由)
この物件が気になったら掲載期限まであと12日
アクロス大濠公園プレミアフォートに条件(家賃・エリア)が近い物件一覧
| 写真 | 家賃 管理費等 | 敷金 礼金 | 間取り 専有面積 | 築年数 | 最寄り駅 所在地 | キープ | 詳細 |
|---|---|---|---|---|---|---|---|
マンション MODERN PALAZZO天神南Ⅱ(3LDK/10階) | |||||||
| 18万円 5,000円 | なし なし | 3LDK 54m2 | 築5年 | 福岡市七隈線 渡辺通駅 徒歩11分 西鉄天神大牟田線 西鉄平尾駅 徒歩13分 福岡市七隈線 薬院駅 徒歩15分 福岡県福岡市中央区清川2丁目 | 詳細を見る | ||
マンション アーサー春日原センティオ(2LDK/5階) | |||||||
![]() | 12.5万円 5,000円 | 12.5万円 25万円 | 2LDK 70.17m2 | 築26年 | 西鉄天神大牟田線 春日原駅 徒歩4分 JR鹿児島本線 春日駅(福岡) 徒歩4分 JR鹿児島本線 南福岡駅 徒歩16分 福岡県春日市春日原北町 | 詳細を見る | |
マンション レジデンス宮原(2LDK/2階) | |||||||
![]() | 7.3万円 3,000円 | なし 14.6万円 | 2LDK 62.13m2 | 築39年 | 西鉄天神大牟田線 下大利駅 徒歩8分 鹿児島本線 大野城駅 徒歩9分 西鉄天神大牟田線 白木原駅 徒歩10分 福岡県大野城市中央2丁目 | 詳細を見る | |
アパート D-ROOM平田台4丁目(2LDK/1階) | |||||||
![]() | 9.9万円 5,000円 | なし 19.8万円 | 2LDK 55.68m2 | 新築 | 鹿児島本線 大野城駅 徒歩25分 鹿児島本線 水城駅 徒歩27分 西鉄天神大牟田線 下大利駅 徒歩28分 福岡県春日市平田台4丁目 | 詳細を見る | |
アパート シャーメゾン原町(1LDK/1階) | |||||||
![]() | 8.4万円 3,800円 | なし 12.6万円 | 1LDK 41.17m2 | 築20年 | 鹿児島本線 大野城駅 徒歩18分 福岡県春日市原町1丁目 | 詳細を見る | |
マンション グランドゥール・オニクラ(2LDK/4階) | |||||||
![]() | 7.4万円 4,000円 | なし 14.8万円 | 2LDK 65.07m2 | 築28年 | 西鉄天神大牟田線 井尻駅 徒歩25分 鹿児島本線 南福岡駅 徒歩27分 西鉄天神大牟田線 雑餉隈駅 徒歩32分 福岡県春日市須玖南5丁目 | 詳細を見る | |
マンション アンピール天神東(2LDK/8階) | |||||||
| 18万円 なし | 18万円 36万円 | 2LDK 59.97m2 | 築23年 | 福岡市七隈線 天神南駅 徒歩8分 福岡市七隈線 渡辺通駅 徒歩9分 福岡市箱崎線 中洲川端駅 徒歩13分 福岡県福岡市中央区春吉2丁目 | 詳細を見る | ||
マンション CAVANA天神(1K/11階) | |||||||
| 7.3万円 4,000円 | なし なし | 1K 24.68m2 | 築20年 | 福岡市七隈線 天神南駅 徒歩3分 福岡市七隈線 渡辺通駅 徒歩4分 福岡市七隈線 薬院駅 徒歩8分 福岡県福岡市中央区渡辺通5丁目15-33 | 詳細を見る | ||






