賃貸マンション
京阪電気鉄道鴨東線 神宮丸太町駅 徒歩10分 5階建 築56年の賃貸物件情報(1K/2階)
| 家賃 | 管理費等 | 敷金 | 礼金 | 間取り | 専有面積 |
|---|---|---|---|---|---|
| 7.2万円 | 8,000円 | 7万円 | 10万円 | 1K | 31.89m2 |
入居決定でお祝い金最大100,000円
Point
琵琶湖疎水が目の前です 琵琶湖疎水の通り、岡崎冷泉通に面したマンションが登場・
提供:株式会社 京都ライフ 北大路店(賃貸スモッカ経由)

詳細情報 京阪電気鉄道鴨東線 神宮丸太町駅 徒歩10分 5階建 築56年
物件紹介
京阪電気鉄道鴨東線神宮丸太町駅から徒歩10分にあり、駅近で通勤通学に便利なマンションです。
このお部屋は2階以上に位置しているので通行人や周囲の住人からの視線が気になりにくく、建物のエントランスはオートロックがついているので防犯性が高くなっています。
おしゃれなデザイナーズ物件!フローリングのお部屋なのでお掃除もラクラク。室内には多目的に利用できる人気のロフトもあり、お部屋のアレンジも自在です。キッチンはシステムキッチン仕様になっていますので、お料理好きの方にもぴったり。バス・トイレは別なので、のんびりお風呂タイムも楽しめるでしょう。また、雨の日でも浴室乾燥機を使えば、お洗濯も問題ありません。
通信設備面では、インターネット接続が可能です。また、BSアンテナ・CSアンテナもありますので、おうち時間も充実するでしょう(別途工事、契約料が必要な場合あり)。
建物にはエレベーターがついているので、重い荷物があっても安心。
このお部屋は2階以上に位置しているので通行人や周囲の住人からの視線が気になりにくく、建物のエントランスはオートロックがついているので防犯性が高くなっています。
おしゃれなデザイナーズ物件!フローリングのお部屋なのでお掃除もラクラク。室内には多目的に利用できる人気のロフトもあり、お部屋のアレンジも自在です。キッチンはシステムキッチン仕様になっていますので、お料理好きの方にもぴったり。バス・トイレは別なので、のんびりお風呂タイムも楽しめるでしょう。また、雨の日でも浴室乾燥機を使えば、お洗濯も問題ありません。
通信設備面では、インターネット接続が可能です。また、BSアンテナ・CSアンテナもありますので、おうち時間も充実するでしょう(別途工事、契約料が必要な場合あり)。
建物にはエレベーターがついているので、重い荷物があっても安心。
お金・契約の情報
※「-」と表示されているものは、実際は料金が発生するものもございます。詳細はお問い合わせください。
| 家賃 | 7.2万円 | 管理費・共益費 | 8,000円 |
|---|---|---|---|
| 敷金 | 7万円 | 礼金 | 10万円 |
| 入居決定でお祝い金最大100,000円 | |||
| 保証金 | - | 償却・敷引 | - |
| 住宅保険料 | 住宅保険料あり | 更新料 | - |
| 契約形態 | - | 契約期間 | 2年 |
| 入居・引渡期間 | 即時 | 現況 | 空室 |
| 契約備考 | 〜左京区 デザイナーズ〜 琵琶湖疎水の通り、岡崎冷泉通に面したデザイナーズマンションが登場です。 近隣には平安神宮・国立近代美術館・京都市美術館・府立図書館がありそれぞれ徒歩5分圏内です。お休みの日には京都らしい文化に触れてみてはいかがでしょう。 更新料:1ヶ月 その他設備/条件:コンロ2口以上、即入居可 | ||
部屋の情報
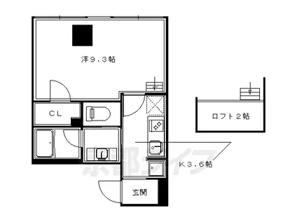
| 間取り | 1K | 専有面積 | 31.89m2 |
|---|---|---|---|
| 間取り詳細 | 洋室(9.3帖)、K(3.6帖)、その他(2帖) | ||
| 所在階 / 向き | 2階 / 北 | バルコニー面積 | - |
| 水道 / ガス | ガス【都市】 | ||
| 設備 | バス・トイレ別、2階以上、オートロック、浴室乾燥機、インターネット対応、システムキッチン、エレベーター、温水洗浄便座、フローリング、ロフトあり、コンロ:IH、デザイナーズ、CSアンテナ、BSアンテナ、洗濯機:室内 | ||
| 当社物件ID | 160809600 | ||
建物の情報
| 建物名 | 京阪電気鉄道鴨東線 神宮丸太町駅 徒歩10分 5階建 築56年 | ||
|---|---|---|---|
| 所在地 | 京都府京都市左京区岡崎西天王町 | ||
| 交通 | 京阪電気鉄道鴨東線 神宮丸太町駅 徒歩10分 京阪電気鉄道京阪線 三条駅(京都) 徒歩15分 | ||
| 階数 | 5階建 | 総戸数 | - |
| 築年月 | 1971年01月 / 築56年 | エレベーター | あり |
| 駐車場 | - | バイク置き場 | - |
| 駐輪場 | あり | 管理人/管理会社 | - |
| 建物種別 | マンション | 建物構造 | RC(鉄筋コンクリート) |
この部屋の取扱い不動産会社
| 会社名 | 株式会社 京都ライフ 北大路店(賃貸スモッカ経由) | ||
|---|---|---|---|
| 所在地 | 京都市北区小山上総町11 | 交通 | - |
| 営業時間 | - | 定休日 | - |
| 免許番号 | 京都府知事(11)第6353号 | 取引態様 | 仲介 |
| 不動産会社管理番号 | kyotolife_52731-202-22 | 当社管理番号 | 463 |
| 所属団体 | 京都府宅地建物取引業協会\n公益社団法人近畿地区不動産公正取引協議会 | ||
| 公正取引協議会 | 全国宅地建物取引業保証協会 | ||
| 取扱い物件情報 | 物件詳細へ | ||
※各種情報と現状に差異がある場合は、現状優先となります。問い合わせをすることで、より詳しい条件、情報を確認する事ができます。
提供:株式会社 京都ライフ 北大路店(賃貸スモッカ経由)
この物件が気になったら掲載期限まであと5日
京阪電気鉄道鴨東線 神宮丸太町駅 徒歩10分 5階建 築56年に条件(家賃・エリア)が近い物件一覧
| 写真 | 家賃 管理費等 | 敷金 礼金 | 間取り 専有面積 | 築年数 | 最寄り駅 所在地 | キープ | 詳細 |
|---|---|---|---|---|---|---|---|
マンション 叡山電鉄 元田中駅 徒歩12分 築34年(ワンルーム/2階) | |||||||
![]() | 5.4万円 1万円 | なし 5.4万円 | ワンルーム 12.62m2 | 築34年 | 叡山電鉄 元田中駅 徒歩12分 京阪電気鉄道鴨東線 出町柳駅 徒歩25分 京都府京都市左京区北白川山田町 | 詳細を見る | |
一戸建て 山陰本線 馬堀駅 徒歩18分 築52年(4SLDK) | |||||||
![]() | 6.5万円 なし | 15万円 なし | 4SLDK 115.95m2 | 築52年 | 山陰本線 馬堀駅 徒歩18分 山陰本線 亀岡駅 徒歩43分 京都府亀岡市篠町篠八幡裏 | 詳細を見る | |
アパート セジュール神楽田(1LDK/1階) | |||||||
![]() | 9.2万円 8,500円 | なし 15万円 | 1LDK 45.31m2 | 築8年 | 近鉄京都線 小倉駅(京都) 徒歩2分 JR奈良線 JR小倉駅 徒歩13分 近鉄京都線 伊勢田駅 徒歩23分 京都府宇治市小倉町神楽田 | 詳細を見る | |
一戸建て 京都府亀岡市 築44年(5LDK) | |||||||
![]() | 5万円 3,000円 | なし なし | 5LDK 100.09m2 | 築44年 | 京都府亀岡市東別院町鎌倉見立 | 詳細を見る | |
マンション 京阪電気鉄道京阪線 樟葉駅 徒歩28分 築36年(3LDK/1階) | |||||||
![]() | 7.5万円 なし | 7.5万円 15万円 | 3LDK 62.68m2 | 築36年 | 京阪電気鉄道京阪線 樟葉駅 徒歩28分 京阪電気鉄道京阪線 橋本駅(京都) 徒歩44分 京都府八幡市男山金振 | 詳細を見る | |
アパート SEJOUR YUTOHA(1LDK/1階) | |||||||
![]() | 8.8万円 8,500円 | なし 15万円 | 1LDK 40.07m2 | 築2年 | JR奈良線 六地蔵駅(JR) 徒歩6分 地下鉄東西線 六地蔵駅(京都市営) 徒歩6分 京阪宇治線 六地蔵駅(京阪) 徒歩10分 京都府宇治市木幡正中 | 詳細を見る | |
マンション 阪急電鉄京都線 長岡天神駅 徒歩5分 築29年(2LDK/1階) | |||||||
![]() | 9.3万円 4,000円 | なし なし | 2LDK 55.02m2 | 築29年 | 阪急電鉄京都線 長岡天神駅 徒歩5分 東海道本線 長岡京駅 徒歩7分 京都府長岡京市開田4丁目 | 詳細を見る | |
マンション ロイヤルメゾン長岡京(2DK/4階) | |||||||
![]() | 4.5万円 3,500円 | 5万円 10万円 | 2DK 33m2 | 築38年 | 阪急京都線 西山天王山駅 徒歩15分 JR東海道本線 長岡京駅 徒歩25分 阪急京都線 長岡天神駅 徒歩37分 京都府長岡京市久貝 | 詳細を見る | |









