賃貸アパート
ハイツ花田の賃貸物件情報(1LDK/2階)
| 家賃 | 管理費等 | 敷金 | 礼金 | 間取り | 専有面積 |
|---|---|---|---|---|---|
| 6.7万円 | 4,000円 | 6.7万円 | 6.7万円 | 1LDK | 48.28m2 |
入居決定でお祝い金最大100,000円
Point
ご来店でPONTAポイントプレゼント!
提供:いい部屋ネット大東建託リーシング(株)藤沢店(SUUMO経由)

詳細情報 ハイツ花田
物件紹介
ハイツ花田は東海道本線国府津駅から徒歩14分にあるアパートです。
このお部屋は2階以上に位置しているので、通行人や周囲の住人からの視線が気になりにくく、防犯面でも安心。インターホンにはTVモニタもついているため、相手の顔を確認してから来客対応することができます。
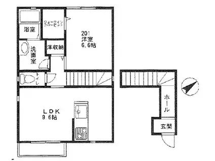
人気の南向き・フローリングのお部屋。角部屋でもあるため、周囲の居住者の生活音も気になりにくい場所です。室内にはウォークインクローゼットがありますので、たくさんの荷物も効率的に収納ができます。キッチンはシステムキッチン仕様になっていますので、お料理好きの方にもぴったり。また、バス・トイレは別で、のんびりお風呂タイムも楽しめるでしょう。
通信設備面では、インターネット接続が可能です。また、BSアンテナがありCATVにも対応しているので、おうち時間も充実するでしょう(別途工事、契約料が必要な場合あり)。
このお部屋は2階以上に位置しているので、通行人や周囲の住人からの視線が気になりにくく、防犯面でも安心。インターホンにはTVモニタもついているため、相手の顔を確認してから来客対応することができます。
人気の南向き・フローリングのお部屋。角部屋でもあるため、周囲の居住者の生活音も気になりにくい場所です。室内にはウォークインクローゼットがありますので、たくさんの荷物も効率的に収納ができます。キッチンはシステムキッチン仕様になっていますので、お料理好きの方にもぴったり。また、バス・トイレは別で、のんびりお風呂タイムも楽しめるでしょう。
通信設備面では、インターネット接続が可能です。また、BSアンテナがありCATVにも対応しているので、おうち時間も充実するでしょう(別途工事、契約料が必要な場合あり)。
お金・契約の情報
※「-」と表示されているものは、実際は料金が発生するものもございます。詳細はお問い合わせください。
| 家賃 | 6.7万円 | 管理費・共益費 | 4,000円 |
|---|---|---|---|
| 敷金 | 6.7万円 | 礼金 | 6.7万円 |
| 入居決定でお祝い金最大100,000円 | |||
| 保証金 | - | 償却・敷引 | - |
| 住宅保険料 | - | 更新料 | - |
| 保証会社利用 | 必須 | 保証会社名 | PH賃貸サポート |
| 保証会社費用 | - | 保証会社備考 | 初回保証料:賃料等の50% 事務手数料:月払総額2% |
| 契約形態 | - | 契約期間 | 2年 |
| 入居・引渡期間 | 相談 | 現況 | - |
| 入居可能条件 | 2人入居可 | ||
| 契約備考 | 保険加入18,190円〜/2年(更新可)法人契約の場合敷金2ヶ月 安心入居サポート代 1100円/鍵交換 27500円 | ||
部屋の情報
| 間取り | 1LDK | 専有面積 | 48.28m2 |
|---|---|---|---|
| 所在階 / 向き | 2階 / 南東 | バルコニー面積 | - |
| 水道 / ガス | ガス【プロパン】 | ||
| 設備 | コンロ:IH、冷房、洗濯機:室内 | ||
| 当社物件ID | 16936197 | ||
建物の情報
| 建物名 | ハイツ花田 | ||
|---|---|---|---|
| 所在地 | 神奈川県小田原市国府津1丁目 | ||
| 交通 | 東海道本線 国府津駅 徒歩14分 | ||
| 階数 | 2階建 | 総戸数 | - |
| 築年月 | 2014年12月 / 築12年 | エレベーター | - |
| 駐車場 | 空有 5,500円/月 敷金、礼金各1ヶ月 2年毎更新手続き有 | バイク置き場 | - |
| 駐輪場 | - | 管理人/管理会社 | - |
| 建物種別 | アパート | 建物構造 | 軽量鉄骨造 |
この部屋の取扱い不動産会社
| 会社名 | アパマンショップ小田原店 | ||
|---|---|---|---|
| 所在地 | 神奈川県小田原市栄町1丁目 14-4第2中川ビル1F | 交通 | 東海道本線小田原から徒歩3分 |
| 営業時間 | 10:00〜18:30 | 定休日 | 水曜日 |
| 免許番号 | 神奈川県知事(4)27699 | 取引態様 | 仲介 |
| 不動産会社管理番号 | 105400567 | 当社管理番号 | 4 |
| 所属団体 | (公社)神奈川県宅地建物取引業協会 | ||
| 公正取引協議会 | (公社) 首都圏不動産公正取引協議会加盟 | ||
| 取扱い物件情報 | 物件詳細へ | ||
※各種情報と現状に差異がある場合は、現状優先となります。問い合わせをすることで、より詳しい条件、情報を確認する事ができます。
提供:アパマンショップ小田原店
この物件が気になったら掲載期限まであと12日
ハイツ花田に条件(家賃・エリア)が近い物件一覧
| 写真 | 家賃 管理費等 | 敷金 礼金 | 間取り 専有面積 | 築年数 | 最寄り駅 所在地 | キープ | 詳細 |
|---|---|---|---|---|---|---|---|
アパート レオパレスエル(1K/2階) | |||||||
![]() | 5.5万円 5,000円 | なし 5.5万円 | 1K 19.87m2 | 築25年 | 小田急電鉄小田原線 足柄駅(神奈川) 徒歩12分 神奈川県小田原市扇町5丁目 | 詳細を見る | |
アパート コーポ光孝(ワンルーム/2階) | |||||||
![]() | 4.3万円 なし | 4.3万円 なし | ワンルーム 22.36m2 | 築34年 | 箱根登山鉄道 箱根板橋駅 徒歩10分 JR東海道本線 早川駅 徒歩16分 神奈川県小田原市早川 | 詳細を見る | |
アパート ラパンアジルA(2DK/1階) | |||||||
![]() | 5.5万円 なし | なし なし | 2DK 36m2 | 築36年 | JR東海道本線 湯河原駅 徒歩5分 神奈川県足柄下郡湯河原町城堀 | 詳細を見る | |
アパート クレスト塚原(3DK/1階) | |||||||
![]() | 4.5万円 3,000円 | なし なし | 3DK 55.07m2 | 築34年 | 伊豆箱根大雄山線 塚原駅(神奈川) 徒歩10分 神奈川県南足柄市塚原 | 詳細を見る | |
アパート ファンシー・ココ(1LDK/2階) | |||||||
![]() | 8.2万円 4,100円 | なし 8.2万円 | 1LDK 46.25m2 | 新築 | 小田急小田原線 栢山駅 徒歩4分 小田急小田原線 富水駅 徒歩20分 神奈川県小田原市栢山 | 詳細を見る | |
アパート すみれ野舘I・II(1K/2階) | |||||||
![]() | 5.2万円 4,000円 | なし なし | 1K 23.19m2 | 築29年 | 小田急小田原線 螢田駅 徒歩1分 伊豆箱根大雄山線 五百羅漢駅 徒歩13分 JR東海道本線 小田原駅 徒歩47分 神奈川県小田原市蓮正寺 | 詳細を見る | |
アパート 南鴨宮サニーハイツ(2DK/1階) | |||||||
![]() | 6.7万円 3,000円 | 13.4万円 なし | 2DK 46.37m2 | 築35年 | 東海道本線 鴨宮駅 徒歩5分 神奈川県小田原市南鴨宮3丁目 | 詳細を見る | |
アパート レオパレスのぞみ(2DK/1階) | |||||||
![]() | 5.7万円 5,000円 | なし 5.7万円 | 2DK 49.68m2 | 築24年 | JR東海道本線 二宮駅 徒歩20分 神奈川県中郡二宮町富士見が丘 | 詳細を見る | |








