賃貸マンション
トーシンフェニックス池袋の賃貸物件情報(1K/6階)
| 家賃 | 管理費等 | 敷金 | 礼金 | 間取り | 専有面積 |
|---|---|---|---|---|---|
| 11万円 | 9,000円 | なし | 16.5万円 | 1K | 20.8m2 |
入居決定でお祝い金最大100,000円
- 保証金
- -
- 償却・敷引
- -
- 築年数
- 築20年
- 所在階
- 6階
- 向き
- 西
Point
当物件は初期費用分割払い可(クレジットカード決済も可)/お客様のご希望に合わせた方法(店頭、オンライン等)で物件をご提案いたします。初期費用のお見積りや入居希望日のご相談もお気軽にお問い合わせください
提供:(株)リライフ池袋店(SUUMO経由)

詳細情報 トーシンフェニックス池袋
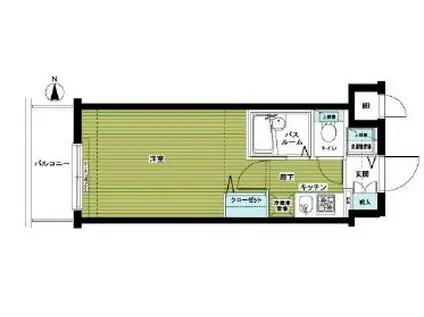
物件紹介
トーシンフェニックス池袋は東京メトロ丸ノ内線池袋駅から徒歩7分にあり、駅近で通勤通学に便利なマンションです。
このお部屋は2階以上に位置しているので、通行人や周囲の住人からの視線が気になりにくく、防犯面でも安心。建物のエントランスはオートロックがついており、インターホンにはTVモニタもついているため、相手の顔を確認してから来客対応することができます。
フローリングのお部屋なのでお掃除もラクラク。キッチンはシステムキッチン仕様になっていますので、お料理好きの方にもぴったり。バス・トイレは別なので、のんびりお風呂タイムも楽しめるでしょう。また、雨の日でも浴室乾燥機を使えば、お洗濯も問題ありません。
通信設備面では、インターネットが無料で使えるので、月々の出費を抑えられるのも魅力です。また、CATVにも対応しているので、おうち時間も充実するでしょう(別途工事、CATVの契約料等が必要な場合あり)。
建物にはエレベーターがついているので、重い荷物があっても安心。共用部には宅配ボックスが設定されているので、不在の時にも荷物を受け取ることができます。
このお部屋は2階以上に位置しているので、通行人や周囲の住人からの視線が気になりにくく、防犯面でも安心。建物のエントランスはオートロックがついており、インターホンにはTVモニタもついているため、相手の顔を確認してから来客対応することができます。
フローリングのお部屋なのでお掃除もラクラク。キッチンはシステムキッチン仕様になっていますので、お料理好きの方にもぴったり。バス・トイレは別なので、のんびりお風呂タイムも楽しめるでしょう。また、雨の日でも浴室乾燥機を使えば、お洗濯も問題ありません。
通信設備面では、インターネットが無料で使えるので、月々の出費を抑えられるのも魅力です。また、CATVにも対応しているので、おうち時間も充実するでしょう(別途工事、CATVの契約料等が必要な場合あり)。
建物にはエレベーターがついているので、重い荷物があっても安心。共用部には宅配ボックスが設定されているので、不在の時にも荷物を受け取ることができます。
お金・契約の情報
※「-」と表示されているものは、実際は料金が発生するものもございます。詳細はお問い合わせください。
| 家賃 | 11万円 | 管理費・共益費 | 9,000円 |
|---|---|---|---|
| 敷金 | なし | 礼金 | 16.5万円 |
| 入居決定でお祝い金最大100,000円 | |||
| 保証金 | - | 償却・敷引 | - |
| 住宅保険料 | - | 更新料 | - |
| 保証会社利用 | 必須 | 保証会社名 | - |
| 保証会社費用 | - | 保証会社備考 | 保証会社利用必 賃料等の50~100%(法人契約相談可) |
| 契約形態 | - | 契約期間 | - |
| 入居・引渡期間 | 相談 | 現況 | - |
| 契約備考 | 東武鉄道東上線北池袋駅徒歩19分/長汐病院まで1052m/高橋内科医院まで79m/保険等加入加入要/火災保険2年間15000円鍵交換代借主負担 合計4.95万円(内訳:室内清掃費用49500円) 1K 普通借家2年 損保【要】 バストイレ別、バルコニー、エアコン、ガスコンロ対応、フローリング、TVインターホン、浴室乾燥機、オートロック、室内洗濯置、システムキッチン、温水洗浄便座、エレベーター、2口コンロ、宅配ボックス、光ファイバー、外壁タイル張り、敷金不要、防犯カメラ、分譲賃貸、冷蔵庫、ネット使用料不要、乾燥機、保証金不要、外壁コンクリート、人感照明センサー、ベッド、始発駅、3駅以上利用可、3沿線以上利用可、駅徒歩10分以内、都市ガス、高速ネット対応、初期費用カード決済可 | ||
部屋の情報
| 間取り | 1K | 専有面積 | 20.8m2 |
|---|---|---|---|
| 所在階 / 向き | 6階 / 西 | バルコニー面積 | - |
| 水道 / ガス | - | ||
| 設備 | バス・トイレ別、2階以上、オートロック、テレビドアホン、宅配ボックス、浴室乾燥機、インターネット対応、システムキッチン、エアコン、エレベーター、温水洗浄便座、バルコニー、フローリング、2口コンロ、コンロ:ガス、インターネット使用料無料、洗濯機:室内 | ||
| 当社物件ID | 102646 | ||
建物の情報
| 建物名 | トーシンフェニックス池袋 | ||
|---|---|---|---|
| 所在地 | 東京都豊島区東池袋 | ||
| 交通 | JR山手線 池袋駅 徒歩8分 東京メトロ有楽町線 東池袋駅 徒歩11分 JR山手線 大塚駅(東京) 徒歩17分 | ||
| 階数 | 10階建 | 総戸数 | 28戸 |
| 築年月 | 2006年11月 / 築20年 | エレベーター | あり |
| 駐車場 | 近隣 258m16500円 | バイク置き場 | - |
| 駐輪場 | - | 管理人/管理会社 | - |
| 周辺環境 | その他 WACCA池袋(ショッピングセンター)まで354m その他 マルエツプチ東池袋三丁目店(スーパー)まで364m その他 セブン-イレブン 東池袋3丁目南店(コンビニ)まで159m その他 トモズ 東池袋店(ドラッグストア)まで188m その他 麺場七人の侍(飲食店)まで151m その他 帝京平成大学 池袋キャンパス(大学・短大)まで362m | ||
| 建物種別 | マンション | 建物構造 | RC(鉄筋コンクリート) |
この部屋の取扱い不動産会社
| 会社名 | アエラス駒込店 (株)アエラス.FR(SUUMO経由) | ||
|---|---|---|---|
| 所在地 | 東京都豊島区駒込1-42-5 EK駒込ビル 1階・2階 | 交通 | - |
| 営業時間 | 10:00~19:00(時間外対応出来る場合有り) | 定休日 | 毎週水曜日 |
| 免許番号 | 国土交通大臣10206 | 取引態様 | 仲介 |
| 不動産会社管理番号 | 100473368220 | 当社管理番号 | 89 |
| 所属団体 | (公社)全日本不動産協会東京都本部会員 | ||
| 公正取引協議会 | (公社)首都圏不動産公正取引協議会加盟 | ||
| 取扱い物件情報 | 物件詳細へ | ||
※各種情報と現状に差異がある場合は、現状優先となります。問い合わせをすることで、より詳しい条件、情報を確認する事ができます。
提供:アエラス駒込店 (株)アエラス.FR(SUUMO経由)
この物件が気になったら掲載期限まであと10日
トーシンフェニックス池袋に条件(家賃・エリア)が近い物件一覧
| 写真 | 家賃 管理費等 | 敷金 礼金 | 間取り 専有面積 | 築年数 | 最寄り駅 所在地 | キープ | 詳細 |
|---|---|---|---|---|---|---|---|
マンション ヒルサイドテラス文京湯島(ワンルーム/4階) | |||||||
![]() | 9.2万円 5,000円 | なし なし | ワンルーム 17.07m2 | 築5年 | 東京地下鉄千代田線 湯島駅 徒歩2分 東京地下鉄銀座線 末広町駅(東京) 徒歩9分 山手線 御徒町駅 徒歩9分 東京都文京区湯島3丁目 | 詳細を見る | |
マンション 日神パレステージ御茶ノ水(ワンルーム/6階) | |||||||
![]() | 7.9万円 9,000円 | 7.9万円 7.9万円 | ワンルーム 20.93m2 | 築31年 | 東京地下鉄千代田線 湯島駅 徒歩6分 中央本線 御茶ノ水駅 徒歩8分 東京地下鉄銀座線 末広町駅(東京) 徒歩8分 東京都文京区湯島2丁目 | 詳細を見る | |
マンション ヴァンクール(1K/4階) | |||||||
![]() | 10.5万円 7,000円 | 10.5万円 10.5万円 | 1K 26.25m2 | 築19年 | 東京地下鉄丸ノ内線 茗荷谷駅 徒歩9分 東京都三田線 千石駅 徒歩12分 東京地下鉄有楽町線 護国寺駅 徒歩14分 東京都文京区大塚3丁目 | 詳細を見る | |
マンション レジディア文京千石(1DK/12階) | |||||||
![]() | 15.2万円 1万円 | 15.2万円 なし | 1DK 30.2m2 | 築23年 | 東京都三田線 千石駅 徒歩3分 山手線 巣鴨駅 徒歩7分 東京地下鉄南北線 駒込駅 徒歩12分 東京都文京区千石4丁目 | 詳細を見る | |
マンション ガラ・シティ茗荷谷(1K/10階) | |||||||
![]() | 8.8万円 9,000円 | 8.8万円 17.6万円 | 1K 22.41m2 | 築25年 | 東京地下鉄丸ノ内線 茗荷谷駅 徒歩6分 東京地下鉄丸ノ内線 新大塚駅 徒歩9分 東京地下鉄有楽町線 護国寺駅 徒歩9分 東京都文京区大塚3丁目 | 詳細を見る | |
マンション モンレーヴ本駒込(1DK/2階) | |||||||
![]() | 13.2万円 5,000円 | 13.2万円 13.2万円 | 1DK 32.89m2 | 新築 | 山手線 駒込駅 徒歩8分 東京都三田線 千石駅 徒歩10分 東京地下鉄南北線 本駒込駅 徒歩12分 東京都文京区本駒込5丁目 | 詳細を見る | |
マンション プライマル小石川(1DK/7階) | |||||||
![]() | 14.7万円 1万円 | 14.7万円 なし | 1DK 31.26m2 | 築20年 | 東京都大江戸線 飯田橋駅 徒歩9分 総武・中央緩行線 飯田橋駅 徒歩9分 東京地下鉄丸ノ内線 後楽園駅 徒歩11分 東京都文京区水道1丁目 | 詳細を見る | |
マンション イクス・ピア(1K/2階) | |||||||
![]() | 7.5万円 3,000円 | 7.5万円 7.5万円 | 1K 16.05m2 | 築18年 | 東京地下鉄南北線 本駒込駅 徒歩6分 山手線 駒込駅 徒歩12分 東京都三田線 白山駅(東京) 徒歩12分 東京都文京区本駒込3丁目 | 詳細を見る | |








