賃貸マンション
ファーストフィオーレ神戸元町ディモーラの賃貸物件情報(1K/1階)
| 家賃 | 管理費等 | 敷金 | 礼金 | 間取り | 専有面積 |
|---|---|---|---|---|---|
| 6.4万円 | 1万円 | なし | なし | 1K | 24.82m2 |
入居決定でお祝い金最大100,000円
- 保証金
- -
- 償却・敷引
- -
- 築年数
- 築4年
- 所在階
- 1階
- 向き
- 東
Point
「ファーストフィオーレ神戸元町ディモーラ」のここがイチオシ。徒歩10分の場所に神戸市立山の手小学校があります。収納はシューズボックス・ウォークインクロゼット・全居室収納など豊富なので、広々と空間を利用することも可能です。神戸市中央区での住まい探しをCHINTAI ROOM 六甲本店 キュリアがサポー
提供:(株)プラン・ドゥ・シー西宮北口店(SUUMO経由)

詳細情報 ファーストフィオーレ神戸元町ディモーラ
物件紹介
ファーストフィオーレ神戸元町ディモーラは神戸高速鉄道東西線花隈駅から徒歩1分にあり、駅近で通勤通学に便利なマンションです。
建物のエントランスはオートロックがついており、インターホンにはTVモニタもついているため、相手の顔を確認してから来客対応することができます。
こちらは楽器相談が可能な物件。楽器演奏をお考えの方はぜひ相談してみてください。人気の角部屋で周囲の居住者の生活音も気になりにくく、また、フローリングのお部屋なのでお掃除もラクラク。室内にはウォークインクローゼットがありますので、たくさんの荷物も効率的に収納ができます。キッチンはシステムキッチン仕様になっていますので、お料理好きの方にもぴったり。バス・トイレは別なので、のんびりお風呂タイムも楽しめるでしょう。また、雨の日でも浴室乾燥機を使えば、お洗濯も問題ありません。
通信設備面では、インターネットが無料で使えるので、月々の出費を抑えられるのも魅力です。また、BSアンテナ・CSアンテナがありCATVにも対応しているので、おうち時間も充実するでしょう(別途工事、BS・CS・CATVの契約料等が必要な場合あり)。
建物にはエレベーターがついているので、重い荷物があっても安心。共用部には宅配ボックスが設定されているので、不在の時にも荷物を受け取ることができます。
建物のエントランスはオートロックがついており、インターホンにはTVモニタもついているため、相手の顔を確認してから来客対応することができます。
こちらは楽器相談が可能な物件。楽器演奏をお考えの方はぜひ相談してみてください。人気の角部屋で周囲の居住者の生活音も気になりにくく、また、フローリングのお部屋なのでお掃除もラクラク。室内にはウォークインクローゼットがありますので、たくさんの荷物も効率的に収納ができます。キッチンはシステムキッチン仕様になっていますので、お料理好きの方にもぴったり。バス・トイレは別なので、のんびりお風呂タイムも楽しめるでしょう。また、雨の日でも浴室乾燥機を使えば、お洗濯も問題ありません。
通信設備面では、インターネットが無料で使えるので、月々の出費を抑えられるのも魅力です。また、BSアンテナ・CSアンテナがありCATVにも対応しているので、おうち時間も充実するでしょう(別途工事、BS・CS・CATVの契約料等が必要な場合あり)。
建物にはエレベーターがついているので、重い荷物があっても安心。共用部には宅配ボックスが設定されているので、不在の時にも荷物を受け取ることができます。
お金・契約の情報
※「-」と表示されているものは、実際は料金が発生するものもございます。詳細はお問い合わせください。
| 家賃 | 6.4万円 | 管理費・共益費 | 1万円 |
|---|---|---|---|
| 敷金 | なし | 礼金 | なし |
| 入居決定でお祝い金最大100,000円 | |||
| 保証金 | - | 償却・敷引 | - |
| 住宅保険料 | 住宅保険料あり(2年) | 更新料 | - |
| その他費用 | 退去時クリーニング費用:2.2万円 | ||
| 保証会社利用 | 必須 | 保証会社名 | - |
| 保証会社費用 | - | 保証会社備考 | 初回25%、830円/月 |
| 契約形態 | - | 契約期間 | 2年 |
| 入居・引渡期間 | 即時 | 現況 | 空室 |
| 入居可能条件 | 高齢者可、学生可、ペット不可 | ||
| 契約備考 | 「ファーストフィオーレ神戸元町ディモーラ」:神戸市中央区エリアの新居にピッタリ。徒歩10分の場所に神戸市立山の手小学校があります。室内設備は洗面化粧台・浴室乾燥機などが揃っているので、快適に過ごしやすいお部屋になります。住まいを探すにあたって、神戸市中央区へお引っ越しを検討しているのであれば、CHINTAI ROOM 六甲本店 キュリアにお任せください。 | ||
部屋の情報
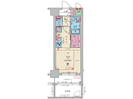
| 間取り | 1K | 専有面積 | 24.82m2 |
|---|---|---|---|
| 間取り詳細 | 洋室(9帖) | ||
| 所在階 / 向き | 1階 / 東 | バルコニー面積 | - |
| 水道 / ガス | 水道【公営】、ガス【都市】 | ||
| 設備 | バス・トイレ別、オートロック、テレビドアホン、宅配ボックス、浴室乾燥機、ウォークインクローゼット、光ファイバー対応、システムキッチン、エアコン、エレベーター、温水洗浄便座、角部屋、バルコニー、フローリング、洗髪洗面化粧台、家具家電付き、2口コンロ、コンロ:ガス、CATV、CSアンテナ、BSアンテナ、シャワー、冷蔵庫あり、給湯、洗濯機:室内 | ||
| 当社物件ID | 125662505 | ||
建物の情報
| 建物名 | ファーストフィオーレ神戸元町ディモーラ | ||
|---|---|---|---|
| 所在地 | 兵庫県神戸市中央区花隈町 18-10 | ||
| 交通 | 神戸高速鉄道東西線 花隈駅 徒歩2分 神戸市海岸線 みなと元町駅 徒歩5分 | ||
| 階数 | 8階建 | 総戸数 | - |
| 築年月 | 2022年11月 / 築4年 | エレベーター | あり |
| 駐車場 | 近隣 徒歩5分(400m) | バイク置き場 | あり |
| 駐輪場 | あり | 管理人/管理会社 | 巡回 |
| 周辺環境 | 中学校 神戸市立神戸生田中学校 徒歩9分(675m) 小学校 神戸市立山の手小学校 徒歩10分(793m) | ||
| 建物種別 | マンション | 建物構造 | RC(鉄筋コンクリート) |
この部屋の取扱い不動産会社
| 会社名 | CHINTAI ROOM 六甲本店 | ||
|---|---|---|---|
| 所在地 | 兵庫県 神戸市灘区森後町1丁目4番10号 フレグランス六甲1F | 交通 | JR東海道本線「六甲道駅」徒歩1分 |
| 営業時間 | 10:00-19:30 | 定休日 | なし |
| 免許番号 | 兵庫県知事(2)第11891号 | 取引態様 | 仲介 |
| 不動産会社管理番号 | 1800979 | 当社管理番号 | 377 |
| 取扱い物件情報 | 物件詳細へ | ||
※各種情報と現状に差異がある場合は、現状優先となります。問い合わせをすることで、より詳しい条件、情報を確認する事ができます。
提供:CHINTAI ROOM 六甲本店
この物件が気になったら掲載期限まであと4日
ファーストフィオーレ神戸元町ディモーラに条件(家賃・エリア)が近い物件一覧
| 写真 | 家賃 管理費等 | 敷金 礼金 | 間取り 専有面積 | 築年数 | 最寄り駅 所在地 | キープ | 詳細 |
|---|---|---|---|---|---|---|---|
マンション ビレッジハウス志染(2LDK/5階) | |||||||
![]() | 5.59万円 なし | なし なし | 2LDK 54.38m2 | 築46年 | 神戸電鉄粟生線 志染駅 徒歩19分 神戸電鉄粟生線 恵比須駅 徒歩29分 神戸電鉄粟生線 広野ゴルフ場前駅 徒歩29分 兵庫県三木市志染町西自由が丘2丁目 | 詳細を見る | |
アパート ヒカルサ稲美天満Ⅰ(2LDK/2階) | |||||||
![]() | 8.05万円 3,900円 | なし 8.05万円 | 2LDK 56.44m2 | 新築 | 兵庫県加古郡稲美町六分一 | 詳細を見る | |
アパート SUNLIT 三木(1LDK/3階) | |||||||
![]() | 8.35万円 4,600円 | なし 8.35万円 | 1LDK 40.13m2 | 新築 | 神戸電鉄粟生線 大村駅(兵庫) 徒歩8分 神戸電鉄粟生線 三木駅(神戸電鉄) 徒歩20分 兵庫県三木市大村 | 詳細を見る | |
アパート 山陽本線 西明石駅 徒歩5分 築5年(ワンルーム/1階) | |||||||
![]() | 5.5万円 3,000円 | なし なし | ワンルーム 18.5m2 | 築5年 | 山陽本線 西明石駅 徒歩5分 兵庫県明石市西明石西町2丁目 | 詳細を見る | |
アパート べアーレ(ワンルーム/2階) | |||||||
![]() | 4.4万円 3,000円 | なし 5万円 | ワンルーム 21.56m2 | 築20年 | 神戸電鉄粟生線 緑が丘駅(兵庫) 徒歩9分 神戸電鉄粟生線 広野ゴルフ場前駅 徒歩15分 神戸電鉄粟生線 押部谷駅 徒歩28分 兵庫県三木市緑が丘町中1 | 詳細を見る | |
マンション ビレッジハウス朝日ヶ丘(2K/2階) | |||||||
![]() | 3.84万円 なし | なし なし | 2K 28.98m2 | 築61年 | 神戸電鉄粟生線 三木駅(神戸電鉄) 徒歩31分 神戸電鉄粟生線 三木上の丸駅 徒歩41分 兵庫県三木市別所町朝日ケ丘 | 詳細を見る | |
アパート サニーハイツ青山B棟(1LDK/3階) | |||||||
![]() | 7.2万円 5,000円 | なし 14.4万円 | 1LDK 40.68m2 | 築14年 | 兵庫県三木市志染町青山5 | 詳細を見る | |







