賃貸マンション
ゼスティ駒沢大学2の賃貸物件情報(1K/1階)
| 家賃 | 管理費等 | 敷金 | 礼金 | 間取り | 専有面積 |
|---|---|---|---|---|---|
| 10.5万円 | 1万円 | なし | なし | 1K | 24.06m2 |
入居決定でお祝い金最大100,000円
- 保証金
- -
- 償却・敷引
- -
- 築年数
- 築20年
- 所在階
- 1階
- 向き
- 北東
Point
インターネットが使い放題♪宅配BOX付き。不在時の受け取りがとても便利で防犯にも役立ちます。オートロック付き物件です。浴室暖房あり。洗濯物を乾かしたり、冬場の浴室でも快適に過ごせます。
提供:恵比寿不動産 (株)ライフアドバンス(SUUMO経由)

詳細情報 ゼスティ駒沢大学2
物件紹介
ゼスティ駒沢大学2は東急田園都市線駒沢大学駅から徒歩4分にあり、駅近で通勤通学に便利なマンションです。
建物のエントランスはオートロックがついており、インターホンにはTVモニタもついているため、相手の顔を確認してから来客対応することができます。
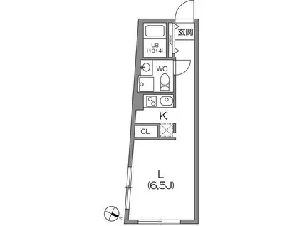
フローリングのお部屋なのでお掃除もラクラク。キッチンはシステムキッチン仕様になっていますので、お料理好きの方にもぴったり。また、バス・トイレは別で、のんびりお風呂タイムも楽しめるでしょう。
通信設備面では、インターネットが無料で使えるので、月々の出費を抑えられるのも魅力です。また、CATVにも対応しているので、おうち時間も充実するでしょう(別途工事、CATVの契約料等が必要な場合あり)。
共用部には宅配ボックスが設定されているので、不在の時にも荷物を受け取ることができます。
建物のエントランスはオートロックがついており、インターホンにはTVモニタもついているため、相手の顔を確認してから来客対応することができます。
フローリングのお部屋なのでお掃除もラクラク。キッチンはシステムキッチン仕様になっていますので、お料理好きの方にもぴったり。また、バス・トイレは別で、のんびりお風呂タイムも楽しめるでしょう。
通信設備面では、インターネットが無料で使えるので、月々の出費を抑えられるのも魅力です。また、CATVにも対応しているので、おうち時間も充実するでしょう(別途工事、CATVの契約料等が必要な場合あり)。
共用部には宅配ボックスが設定されているので、不在の時にも荷物を受け取ることができます。
お金・契約の情報
※「-」と表示されているものは、実際は料金が発生するものもございます。詳細はお問い合わせください。
| 家賃 | 10.5万円 | 管理費・共益費 | 1万円 |
|---|---|---|---|
| 敷金 | なし | 礼金 | なし |
| 入居決定でお祝い金最大100,000円 | |||
| 保証金 | - | 償却・敷引 | - |
| 住宅保険料 | - | 更新料 | - |
| 保証会社利用 | 必須 | 保証会社名 | - |
| 保証会社費用 | - | 保証会社備考 | 保証会社利用必 株式会社(東京) ROOM iD(個人)保証料:保証人有30% 無40% (法人)40% |
| 契約形態 | - | 契約期間 | - |
| 入居・引渡期間 | 即時 | 現況 | - |
| 契約備考 | 更新料新賃料(ヶ月):1.00ヶ月 1K 普通借家2年 損保【1.8万円2年】 バストイレ別、エアコン、クロゼット、フローリング、TVインターホン、オートロック、室内洗濯置、シューズボックス、システムキッチン、温水洗浄便座、洗面所独立、2口コンロ、宅配ボックス、CATV、即入居可、礼金不要、敷金不要、照明付、オートバス、ディンプルキー、ネット使用料不要、保証金不要、駅徒歩5分以内、都市ガス、敷金・礼金不要、初期費用カード決済可 | ||
部屋の情報
| 間取り | 1K | 専有面積 | 24.06m2 |
|---|---|---|---|
| 所在階 / 向き | 1階 / 北東 | バルコニー面積 | - |
| 水道 / ガス | - | ||
| 設備 | バス・トイレ別、オートロック、テレビドアホン、宅配ボックス、追い焚き、インターネット対応、システムキッチン、エアコン、温水洗浄便座、フローリング、洗髪洗面化粧台、2口コンロ、CATV、インターネット使用料無料、洗濯機:室内 | ||
| 当社物件ID | 159789461 | ||
建物の情報
| 建物名 | ゼスティ駒沢大学2 | ||
|---|---|---|---|
| 所在地 | 東京都目黒区東が丘 | ||
| 交通 | 東急田園都市線 駒沢大学駅 徒歩4分 東急世田谷線 西太子堂駅 徒歩25分 東急東横線 都立大学駅 徒歩29分 | ||
| 階数 | 4階建 | 総戸数 | - |
| 築年月 | 2006年02月 / 築20年 | エレベーター | - |
| 駐車場 | なし | バイク置き場 | - |
| 駐輪場 | - | 管理人/管理会社 | - |
| 周辺環境 | その他 コルモピア野沢店(ショッピングセンター)まで870m その他 マルエツ真中店(スーパー)まで210m その他 セブンイレブン目黒東が丘2丁目店(コンビニ)まで200m その他 ココカラファイン駒沢大学駅前店(ドラッグストア)まで180m その他 ユニクロ駒沢自由通り店(ショッピングセンター)まで190m その他 イオンスタイル碑文谷(ショッピングセンター)まで2570m | ||
| 建物種別 | マンション | 建物構造 | RC(鉄筋コンクリート) |
この部屋の取扱い不動産会社
| 会社名 | 恵比寿不動産 都心チーム(株)ライフアドバンス(SUUMO経由) | ||
|---|---|---|---|
| 所在地 | 東京都渋谷区東3-25-11 TOKYUREIT恵比寿ビル4階 | 交通 | - |
| 営業時間 | 10時~19時 | 定休日 | 水曜日 |
| 免許番号 | 東京都知事97301 | 取引態様 | 仲介 |
| 不動産会社管理番号 | 100470481940 | 当社管理番号 | 89 |
| 所属団体 | (公社)全日本不動産協会東京都本部会員 | ||
| 公正取引協議会 | (公社)首都圏不動産公正取引協議会加盟 | ||
| 取扱い物件情報 | 物件詳細へ | ||
※各種情報と現状に差異がある場合は、現状優先となります。問い合わせをすることで、より詳しい条件、情報を確認する事ができます。
提供:恵比寿不動産 都心チーム(株)ライフアドバンス(SUUMO経由)
この物件が気になったら掲載期限まであと10日
ゼスティ駒沢大学2に条件(家賃・エリア)が近い物件一覧
| 写真 | 家賃 管理費等 | 敷金 礼金 | 間取り 専有面積 | 築年数 | 最寄り駅 所在地 | キープ | 詳細 |
|---|---|---|---|---|---|---|---|
マンション ビバリーホームズ中延Ⅱ(1K/4階) | |||||||
![]() | 9.5万円 1万円 | 9.5万円 なし | 1K 18.65m2 | 築17年 | 東京都浅草線 馬込駅 徒歩7分 埼京線 西大井駅 徒歩9分 東京都浅草線 中延駅 徒歩9分 東京都品川区西大井6丁目 | 詳細を見る | |
マンション ステージグランデ蒲田(1K/2階) | |||||||
![]() | 9.2万円 5,000円 | なし 9.2万円 | 1K 22.55m2 | 築20年 | 東急池上線 蓮沼駅 徒歩5分 JR京浜東北線 蒲田駅 徒歩7分 東急多摩川線 矢口渡駅 徒歩12分 東京都大田区西蒲田 | 詳細を見る | |
アパート タカマルハイム(1LDK/1階) | |||||||
![]() | 11.1万円 3,000円 | 11.1万円 22.2万円 | 1LDK 34m2 | 築11年 | 東急多摩川線 武蔵新田駅 徒歩8分 東急多摩川線 下丸子駅 徒歩9分 東京都大田区下丸子2丁目 | 詳細を見る | |
マンション アルタイル 等々力(1LDK/3階) | |||||||
![]() | 16万円 8,000円 | 32万円 11.2万円 | 1LDK 41.25m2 | 築4年 | 東急大井町線 等々力駅 徒歩12分 東急大井町線 尾山台駅 徒歩13分 東急大井町線 上野毛駅 徒歩17分 東京都世田谷区等々力 | 詳細を見る | |
マンション RJRプレシア大森北(1DK/2階) | |||||||
![]() | 14.1万円 1万円 | 14.1万円 なし | 1DK 29.62m2 | 築2年 | 京浜東北・根岸線 大森駅(東京) 徒歩11分 東京都大田区大森北5丁目 | 詳細を見る | |
マンション SEED JUST B-BASE Ⅱ(1LDK/2階) | |||||||
![]() | 9.9万円 1.5万円 | 9.9万円 9.9万円 | 1LDK 25.41m2 | 新築 | 東京モノレール羽田 昭和島駅 徒歩11分 京浜急行電鉄本線 梅屋敷駅(東京) 徒歩19分 東京都大田区大森南4丁目 | 詳細を見る | |
マンション 上池台コータスⅡ(2DK/1階) | |||||||
![]() | 12万円 1万円 | なし なし | 2DK 40.95m2 | 築30年 | 東京都浅草線 西馬込駅 徒歩12分 東急池上線 洗足池駅 徒歩17分 東急池上線 長原駅(東京) 徒歩18分 東京都大田区上池台5丁目 | 詳細を見る | |
マンション カペラⅡ(1K/3階) | |||||||
![]() | 8.7万円 5,000円 | 8.7万円 8.7万円 | 1K 18.75m2 | 築24年 | 東急池上線 戸越銀座駅 徒歩5分 東京都浅草線 戸越駅 徒歩7分 東急目黒線 武蔵小山駅 徒歩11分 東京都品川区荏原2丁目 | 詳細を見る | |









