賃貸マンション
アイ・テラスの賃貸物件情報(1K/2階)
| 家賃 | 管理費等 | 敷金 | 礼金 | 間取り | 専有面積 |
|---|---|---|---|---|---|
| 5.2万円 | 3,000円 | 5.2万円 | 5.2万円 | 1K | 16.4m2 |
入居決定でお祝い金最大100,000円
Point
室内設備はエアコン・24時間換気システムなど充実した設備を備え付けています。
提供:アエラス川口店 (株)アエラス.FR(SUUMO経由)

詳細情報 アイ・テラス
物件紹介
アイ・テラスはJR武蔵野線東浦和駅から徒歩5分にあり、駅近で通勤通学に便利なマンションです。
このお部屋は2階以上に位置しているので通行人や周囲の住人からの視線が気になりにくく、建物のエントランスはオートロックがついているので防犯性が高くなっています。
フローリングのお部屋なのでお掃除もラクラク。バス・トイレ別の仕様で、のんびりお風呂タイムも楽しめます。
通信設備面では、インターネット接続が可能です。また、CATVにも対応しているので、おうち時間も充実するでしょう(別途工事、契約料が必要な場合あり)。
コンビニまで徒歩14分の場所にあり、日用品や食料品のお買い物にも便利です。
このお部屋は2階以上に位置しているので通行人や周囲の住人からの視線が気になりにくく、建物のエントランスはオートロックがついているので防犯性が高くなっています。
フローリングのお部屋なのでお掃除もラクラク。バス・トイレ別の仕様で、のんびりお風呂タイムも楽しめます。
通信設備面では、インターネット接続が可能です。また、CATVにも対応しているので、おうち時間も充実するでしょう(別途工事、契約料が必要な場合あり)。
コンビニまで徒歩14分の場所にあり、日用品や食料品のお買い物にも便利です。
お金・契約の情報
※「-」と表示されているものは、実際は料金が発生するものもございます。詳細はお問い合わせください。
| 家賃 | 5.2万円 | 管理費・共益費 | 3,000円 |
|---|---|---|---|
| 敷金 | 5.2万円 | 礼金 | 5.2万円 |
| 入居決定でお祝い金最大100,000円 | |||
| 保証金 | - | 償却・敷引 | - |
| 住宅保険料 | 1円 | 更新料 | - |
| その他費用 | 契約事務手数料:5,500円 | ||
| 保証会社利用 | 必須 | 保証会社名 | - |
| 保証会社費用 | - | 保証会社備考 | 初回保証料50% 年10000円 |
| 契約形態 | - | 契約期間 | 2年 |
| 入居・引渡期間 | 相談 | 現況 | - |
| 入居可能条件 | 楽器不可、ペット不可 | ||
| 契約備考 | 事業用途の場合条件が変わります。事業用許可料別途3,300円 鍵交換費用:16500 | ||
部屋の情報
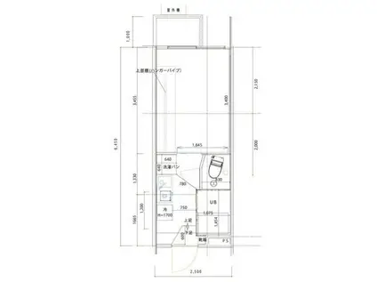
| 間取り | 1K | 専有面積 | 16.4m2 |
|---|---|---|---|
| 所在階 / 向き | 2階 / - | バルコニー面積 | - |
| 水道 / ガス | 水道【公営】、ガス【都市】 | ||
| 設備 | オートロック、エアコン、バルコニー、フローリング、CATV、シャワー、タイル張り | ||
| 当社物件ID | 159833725 | ||
建物の情報
| 建物名 | アイ・テラス | ||
|---|---|---|---|
| 所在地 | 埼玉県さいたま市緑区東浦和4丁目 | ||
| 交通 | 武蔵野線 東浦和駅 徒歩8分 | ||
| 階数 | 地下1地上4階建 | 総戸数 | - |
| 築年月 | 1992年07月 / 築34年 | エレベーター | - |
| 駐車場 | - | バイク置き場 | - |
| 駐輪場 | あり | 管理人/管理会社 | - |
| 周辺環境 | コンビニ 徒歩14分(1085m) その他 ドラッグストア その他 公園 その他 銀行 その他 * | ||
| 建物種別 | マンション | 建物構造 | 鉄骨造 |
この部屋の取扱い不動産会社
| 会社名 | ハウスコム埼玉株式会社 浦和東口店 | ||
|---|---|---|---|
| 所在地 | 埼玉県さいたま市浦和区3-151階 | 交通 | - |
| 営業時間 | 10:00~18:00 | 定休日 | - |
| 免許番号 | 埼玉県知事(1)第24888号 | 取引態様 | 仲介 |
| 不動産会社管理番号 | HC2-5254553-208-0218 | 当社管理番号 | 468 |
| 所属団体 | 、 | ||
| 取扱い物件情報 | 物件詳細へ | ||
※各種情報と現状に差異がある場合は、現状優先となります。問い合わせをすることで、より詳しい条件、情報を確認する事ができます。
提供:ハウスコム埼玉株式会社 浦和東口店
この物件が気になったら掲載期限まであと5日
アイ・テラスに条件(家賃・エリア)が近い物件一覧
| 写真 | 家賃 管理費等 | 敷金 礼金 | 間取り 専有面積 | 築年数 | 最寄り駅 所在地 | キープ | 詳細 |
|---|---|---|---|---|---|---|---|
アパート FLOWERHILLII(1K/1階) | |||||||
![]() | 5.7万円 7,000円 | なし 5.7万円 | 1K 20.28m2 | 築27年 | JR武蔵野線 北朝霞駅 徒歩14分 東武東上線 朝霞台駅 徒歩16分 東武東上線 志木駅 徒歩31分 埼玉県朝霞市 | 詳細を見る | |
アパート あんずハウス(ワンルーム/1階) | |||||||
![]() | 4.5万円 4,000円 | なし なし | ワンルーム 17.4m2 | 築36年 | 武蔵野線 東浦和駅 徒歩10分 埼玉県さいたま市緑区東浦和4丁目 | 詳細を見る | |
アパート レオネクストメーシア公園台II(1K/1階) | |||||||
![]() | 7万円 5,000円 | なし 7万円 | 1K 21.9m2 | 築16年 | JR埼京線 戸田駅(埼玉) 徒歩12分 JR埼京線 戸田公園駅 徒歩13分 JR埼京線 北戸田駅 徒歩29分 埼玉県戸田市 | 詳細を見る | |
マンション プレシア(1K/3階) | |||||||
![]() | 8.4万円 4,000円 | なし 12.6万円 | 1K 31.88m2 | 築9年 | JR京浜東北線 川口駅 徒歩11分 埼玉高速鉄道 川口元郷駅 徒歩21分 JR京浜東北線 西川口駅 徒歩24分 埼玉県川口市幸町 | 詳細を見る | |
アパート メゾン・ド・ロワール戸田(ワンルーム/1階) | |||||||
![]() | 5万円 5,000円 | 5万円 なし | ワンルーム 11.7m2 | 築34年 | 埼京線 戸田駅(埼玉) 徒歩7分 埼玉県戸田市大字新曽 | 詳細を見る | |
マンション クレイノシャルム(1K/2階) | |||||||
![]() | 6.7万円 7,000円 | なし 6.7万円 | 1K 21.81m2 | 築7年 | 埼玉県川口市芝宮根町 | 詳細を見る | |
アパート REGALEST 北越谷(1LDK/2階) | |||||||
![]() | 8万円 3,000円 | なし なし | 1LDK 30.3m2 | 新築 | 東武伊勢崎線 北越谷駅 徒歩10分 東武伊勢崎線 越谷駅 徒歩29分 埼玉県越谷市北越谷 | 詳細を見る | |
アパート 新河岸共同(1LDK/2階) | |||||||
![]() | 7.6万円 3,000円 | 7.6万円 なし | 1LDK 30.43m2 | 築1年 | 東武東上線 新河岸駅 徒歩3分 東武東上線 川越駅 徒歩30分 東武東上線 上福岡駅 徒歩36分 埼玉県川越市大字砂 | 詳細を見る | |






/105x80-f1-q70-wp1)


