賃貸アパート
京阪電気鉄道京阪線 藤森駅 徒歩8分 3階建 築11年の賃貸物件情報(1K/3階)
| 家賃 | 管理費等 | 敷金 | 礼金 | 間取り | 専有面積 |
|---|---|---|---|---|---|
| 6.4万円 | 4,100円 | なし | 6.4万円 | 1K | 29.17m2 |
入居決定でお祝い金最大100,000円
Point
龍谷大学生へ。 追い焚き機能付きなどの充実する生活が可能です。
提供:株式会社 京都ライフ 小倉店(賃貸スモッカ経由)

詳細情報 京阪電気鉄道京阪線 藤森駅 徒歩8分 3階建 築11年
物件紹介
京阪電気鉄道京阪線藤森駅から徒歩8分にあり、駅近で通勤通学に便利なアパートです。
このお部屋は2階以上に位置しているので通行人や周囲の住人からの視線が気になりにくく、建物のエントランスはオートロックがついているので防犯性が高くなっています。
人気の角部屋で周囲の居住者の生活音も気になりにくく、また、フローリングのお部屋なのでお掃除もラクラク。室内にはウォークインクローゼットがありますので、たくさんの荷物も効率的に収納ができます。バス・トイレ別の仕様で、のんびりお風呂タイムも楽しめます。また、浴室乾燥機を使えば、雨の日でもお洗濯は問題ありません。
通信設備面では、インターネット接続が可能です。また、BSアンテナ・CSアンテナもありますので、おうち時間も充実するでしょう(別途工事、契約料が必要な場合あり)。
このお部屋は2階以上に位置しているので通行人や周囲の住人からの視線が気になりにくく、建物のエントランスはオートロックがついているので防犯性が高くなっています。
人気の角部屋で周囲の居住者の生活音も気になりにくく、また、フローリングのお部屋なのでお掃除もラクラク。室内にはウォークインクローゼットがありますので、たくさんの荷物も効率的に収納ができます。バス・トイレ別の仕様で、のんびりお風呂タイムも楽しめます。また、浴室乾燥機を使えば、雨の日でもお洗濯は問題ありません。
通信設備面では、インターネット接続が可能です。また、BSアンテナ・CSアンテナもありますので、おうち時間も充実するでしょう(別途工事、契約料が必要な場合あり)。
お金・契約の情報
※「-」と表示されているものは、実際は料金が発生するものもございます。詳細はお問い合わせください。
| 家賃 | 6.4万円 | 管理費・共益費 | 4,100円 |
|---|---|---|---|
| 敷金 | なし | 礼金 | 6.4万円 |
| 入居決定でお祝い金最大100,000円 | |||
| 保証金 | - | 償却・敷引 | - |
| 住宅保険料 | 住宅保険料あり | 更新料 | - |
| 契約形態 | - | 契約期間 | 2年 |
| 入居・引渡期間 | 2026年04月上旬 | 現況 | 賃貸中 |
| 契約備考 | 京阪藤森駅まで徒歩8分の1Kです。京阪、近鉄、地下鉄のトリプルアクセス。敷金、更新料ナシです。嬉しい3点セパレートに浴室乾燥機、追い焚き機能付浴室、温水洗浄便座など充実の設備。オートロック、TVホンでセキュリティも安心です。コンビニ、スーパーなど近くにあって便利ですよ。インターネットは光対応、無料でご利用いただけます。 24時間サポート:330円 更新料:無し 保証会社:利用必須 初回:2.2万円、月額:保証料として月額賃料等の2%(ハウスクリーニング代退去時支払いの場合、月額保証料は総賃料の5% ペット可の場合、初回保証料25000円/月額保証料は総賃料の2.5%) その他設備/条件:最上階の物件、TVドアホン | ||
部屋の情報
| 間取り | 1K | 専有面積 | 29.17m2 |
|---|---|---|---|
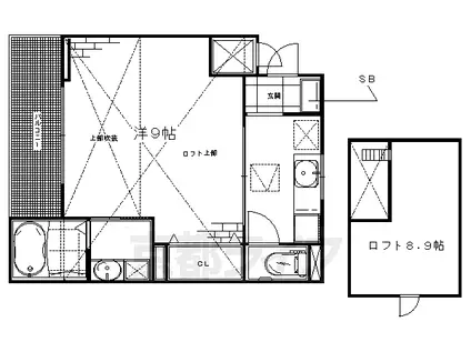
| 間取り詳細 | 洋室(9帖)、K(2.5帖)、その他(8.9帖) | ||
| 所在階 / 向き | 3階 / 北 | バルコニー面積 | - |
| 水道 / ガス | ガス【都市】 | ||
| 設備 | バス・トイレ別、2階以上、オートロック、浴室乾燥機、インターネット対応、エアコン、温水洗浄便座、角部屋、バルコニー、フローリング、ロフトあり、CSアンテナ、BSアンテナ、洗濯機:室内 | ||
| 当社物件ID | 160164584 | ||
建物の情報
| 建物名 | 京阪電気鉄道京阪線 藤森駅 徒歩8分 3階建 築11年 | ||
|---|---|---|---|
| 所在地 | 京都府京都市伏見区 | ||
| 交通 | 京阪電気鉄道京阪線 藤森駅 徒歩8分 京都市烏丸線 くいな橋駅 徒歩10分 | ||
| 階数 | 3階建 | 総戸数 | - |
| 築年月 | 2016年03月 / 築11年 | エレベーター | - |
| 駐車場 | - | バイク置き場 | - |
| 駐輪場 | あり | 管理人/管理会社 | - |
| 建物種別 | アパート | 建物構造 | 木造 |
この部屋の取扱い不動産会社
| 会社名 | 株式会社 京都ライフ 小倉店(賃貸スモッカ経由) | ||
|---|---|---|---|
| 所在地 | 宇治市小倉町神楽田21-5 | 交通 | - |
| 営業時間 | - | 定休日 | - |
| 免許番号 | 京都府知事(11)第6353号 | 取引態様 | 仲介 |
| 不動産会社管理番号 | kyotolife_68239-301-11 | 当社管理番号 | 463 |
| 所属団体 | 京都府宅地建物取引業協会\n公益社団法人近畿地区不動産公正取引協議会 | ||
| 公正取引協議会 | 全国宅地建物取引業保証協会 | ||
| 取扱い物件情報 | 物件詳細へ | ||
※各種情報と現状に差異がある場合は、現状優先となります。問い合わせをすることで、より詳しい条件、情報を確認する事ができます。
提供:株式会社 京都ライフ 小倉店(賃貸スモッカ経由)
この物件が気になったら掲載期限まであと5日
京阪電気鉄道京阪線 藤森駅 徒歩8分 3階建 築11年に条件(家賃・エリア)が近い物件一覧
| 写真 | 家賃 管理費等 | 敷金 礼金 | 間取り 専有面積 | 築年数 | 最寄り駅 所在地 | キープ | 詳細 |
|---|---|---|---|---|---|---|---|
マンション 近鉄京都線 伊勢田駅 徒歩30分 築32年(1LDK/4階) | |||||||
![]() | 6.1万円 3,500円 | なし なし | 1LDK 48.06m2 | 築32年 | 近鉄京都線 伊勢田駅 徒歩30分 近鉄京都線 大久保駅(京都) 徒歩34分 京都府久世郡久御山町佐古 | 詳細を見る | |
マンション ソラーナ長岡京(1K/1階) | |||||||
![]() | 4.2万円 3,000円 | なし 8.4万円 | 1K 17.72m2 | 築41年 | 阪急電鉄京都線 長岡天神駅 徒歩5分 京都府長岡京市開田4丁目 | 詳細を見る | |
マンション 石清水ビューハイツA棟(2DK/4階) | |||||||
![]() | 5万円 5,000円 | 5.5万円 5.5万円 | 2DK 43.22m2 | 築50年 | 京阪電気鉄道京阪線 石清水八幡宮駅 徒歩11分 京阪電気鉄道京阪線 橋本駅(京都) 徒歩35分 京都府八幡市八幡北浦 | 詳細を見る | |
マンション ビッグバーンズ両替町(ワンルーム/1階) | |||||||
![]() | 5.9万円 なし | なし 10万円 | ワンルーム 23.69m2 | 築37年 | 京阪電気鉄道京阪線 伏見桃山駅 徒歩6分 京都府京都市伏見区 | 詳細を見る | |
マンション レジデンス向島(3LDK/1階) | |||||||
![]() | 8.5万円 1万円 | なし なし | 3LDK 90m2 | 築35年 | 近鉄京都線 向島駅 徒歩10分 京阪電気鉄道宇治線 観月橋駅 徒歩28分 京都府宇治市槇島町 | 詳細を見る | |
マンション 阪急電鉄京都線 東向日駅 徒歩14分 築30年(2LDK/3階) | |||||||
![]() | 7万円 8,000円 | なし なし | 2LDK 55.05m2 | 築30年 | 阪急電鉄京都線 東向日駅 徒歩14分 東海道本線 向日町駅 徒歩19分 京都府向日市寺戸町北野 | 詳細を見る | |
アパート 阪急電鉄京都線 長岡天神駅 徒歩14分 築8年(1K/2階) | |||||||
![]() | 6.55万円 4,100円 | なし 9万円 | 1K 27m2 | 築8年 | 阪急電鉄京都線 長岡天神駅 徒歩14分 東海道本線 長岡京駅 徒歩23分 京都府長岡京市今里1丁目 | 詳細を見る | |
アパート 奈良線 新田駅(京都) 徒歩3分 築1年(1DK/3階) | |||||||
![]() | 7.7万円 6,000円 | なし なし | 1DK 27.5m2 | 築1年 | 奈良線 新田駅(京都) 徒歩3分 近鉄京都線 大久保駅(京都) 徒歩10分 京都府宇治市広野町 | 詳細を見る | |









