賃貸マンション
マーロ弘明寺の賃貸物件情報(1DK/5階)
| 家賃 | 管理費等 | 敷金 | 礼金 | 間取り | 専有面積 |
|---|---|---|---|---|---|
| 9.45万円 | 1.4万円 | なし | なし | 1DK | 29.14m2 |
入居決定でお祝い金最大100,000円
- 保証金
- -
- 償却・敷引
- -
- 築年数
- 築1年
- 所在階
- 5階
- 向き
- 西
- 交通
- ブルーライン 弘明寺駅(横浜市営) 徒歩4分
ブルーライン 蒔田駅 徒歩18分
京急本線 上大岡駅 徒歩19分
- 所在地
- 神奈川県横浜市南区大岡
マーロ弘明寺
[地図を表示]
Point
【チャットで気軽にご相談可能】都心にアクセス良好でON/OFF充実♪女性も安心できるオートロック・こだわり設備のお部屋★日常生活に便利なロケーション★オンライン相談や現地待ち合わせなどもご相談下さい!
提供:(株)クレアスレント横浜店(SUUMO経由)

詳細情報 マーロ弘明寺
物件紹介
マーロ弘明寺はブルーライン弘明寺駅から徒歩4分にあり、駅近で通勤通学に便利なマンションです。
このお部屋は2階以上に位置しているので、通行人や周囲の住人からの視線が気になりにくく、防犯面でも安心。建物のエントランスはオートロックがついており、インターホンにはTVモニタもついているため、相手の顔を確認してから来客対応することができます。
おしゃれなデザイナーズ物件!フローリングのお部屋なのでお掃除もラクラク。キッチンはシステムキッチン仕様になっていますので、お料理好きの方にもぴったり。バス・トイレは別なので、のんびりお風呂タイムも楽しめるでしょう。また、雨の日でも浴室乾燥機を使えば、お洗濯も問題ありません。
建物にはエレベーターがついているので、重い荷物があっても安心。共用部には宅配ボックスが設定されているので、不在の時にも荷物を受け取ることができます。また、ペット飼育の相談ができますので、あなたの大切な家族の一員も快適に暮らせるか、ぜひ確認してみてください。
このお部屋は2階以上に位置しているので、通行人や周囲の住人からの視線が気になりにくく、防犯面でも安心。建物のエントランスはオートロックがついており、インターホンにはTVモニタもついているため、相手の顔を確認してから来客対応することができます。
おしゃれなデザイナーズ物件!フローリングのお部屋なのでお掃除もラクラク。キッチンはシステムキッチン仕様になっていますので、お料理好きの方にもぴったり。バス・トイレは別なので、のんびりお風呂タイムも楽しめるでしょう。また、雨の日でも浴室乾燥機を使えば、お洗濯も問題ありません。
建物にはエレベーターがついているので、重い荷物があっても安心。共用部には宅配ボックスが設定されているので、不在の時にも荷物を受け取ることができます。また、ペット飼育の相談ができますので、あなたの大切な家族の一員も快適に暮らせるか、ぜひ確認してみてください。
お金・契約の情報
※「-」と表示されているものは、実際は料金が発生するものもございます。詳細はお問い合わせください。
| 家賃 | 9.45万円 | 管理費・共益費 | 1.4万円 |
|---|---|---|---|
| 敷金 | なし | 礼金 | なし |
| 入居決定でお祝い金最大100,000円 | |||
| 保証金 | - | 償却・敷引 | - |
| 住宅保険料 | - | 更新料 | - |
| 保証会社利用 | 必須 | 保証会社名 | - |
| 保証会社費用 | - | 保証会社備考 | 保証会社利用必 初回保証料50% 月額保証料800円 |
| 契約形態 | - | 契約期間 | - |
| 入居・引渡期間 | 即時 | 現況 | - |
| 入居可能条件 | ペット相談 | ||
| 契約備考 | 退去時清掃費&エアコン清掃費有、短期解約違約金有、ペット飼育時諸条件有※仕様・図面・写真等に相違があった場合は現況を優先します 合計6.05万円(内訳:室内抗菌費用1.65万円契約事務手数料1.1万円24時間サポート1.65万円鍵交換代1.65万円) 更新料 新賃料1.50ヶ月分 室内清掃費用 55000円 1DK ペット相談 普通借家2年 損保【2万円2年】 バストイレ別、バルコニー、エアコン、ガスコンロ対応、クロゼット、フローリング、TVインターホン、浴室乾燥機、オートロック、室内洗濯置、シューズボックス、システムキッチン、温水洗浄便座、脱衣所、エレベーター、洗面所独立、洗面化粧台、2口コンロ、駐輪場、宅配ボックス、即入居可、礼金不要、敷金不要、防犯カメラ、ペット相談、分譲賃貸、デザイナーズ、3駅以上利用可、24時間ゴミ出し可、敷地内ごみ置き場、都市ガス、敷金・礼金不要 | ||
部屋の情報
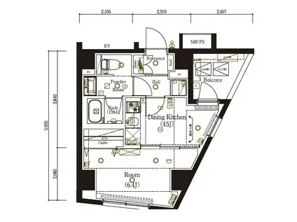
| 間取り | 1DK | 専有面積 | 29.14m2 |
|---|---|---|---|
| 所在階 / 向き | 5階 / 西 | バルコニー面積 | - |
| 水道 / ガス | - | ||
| 設備 | バス・トイレ別、2階以上、オートロック、テレビドアホン、宅配ボックス、浴室乾燥機、システムキッチン、エアコン、エレベーター、温水洗浄便座、バルコニー、フローリング、洗髪洗面化粧台、2口コンロ、コンロ:ガス、デザイナーズ、洗濯機:室内 | ||
| 当社物件ID | 160515979 | ||
建物の情報
| 建物名 | マーロ弘明寺 | ||
|---|---|---|---|
| 所在地 | 神奈川県横浜市南区大岡 | ||
| 交通 | ブルーライン 弘明寺駅(横浜市営) 徒歩4分 ブルーライン 蒔田駅 徒歩18分 京急本線 上大岡駅 徒歩19分 | ||
| 階数 | 7階建 | 総戸数 | - |
| 築年月 | 2025年09月 / 築1年 | エレベーター | あり |
| 駐車場 | なし | バイク置き場 | - |
| 駐輪場 | あり | 管理人/管理会社 | - |
| 周辺環境 | その他 サミットストア 井土ヶ谷店(スーパー)まで1680m その他 VIERRA蒔田(ショッピングセンター)まで1448m その他 ファミリーマート 蒔田駅前店(コンビニ)まで1438m その他 マツモトキヨシ matsukiyoLAB 井土ケ谷駅前店(ドラッグストア)まで1750m その他 キッチンオリジン 井土ヶ谷店(その他)まで1666m その他 マクドナルド 井土ヶ谷店(飲食店)まで1785m | ||
| 建物種別 | マンション | 建物構造 | RC(鉄筋コンクリート) |
この部屋の取扱い不動産会社
| 会社名 | (株)クレアスレント横浜店(SUUMO経由) | ||
|---|---|---|---|
| 所在地 | 神奈川県横浜市神奈川区台町 17-1 マストビル7階 | 交通 | - |
| 営業時間 | 10時~19時 | 定休日 | 毎週水曜日・GW・夏季・年末年 |
| 免許番号 | 国土交通大臣10473 | 取引態様 | 仲介 |
| 不動産会社管理番号 | 100492221367 | 当社管理番号 | 89 |
| 所属団体 | (公社)東京都宅地建物取引業協会会員 | ||
| 公正取引協議会 | (公社)首都圏不動産公正取引協議会加盟 | ||
| 取扱い物件情報 | 物件詳細へ | ||
※各種情報と現状に差異がある場合は、現状優先となります。問い合わせをすることで、より詳しい条件、情報を確認する事ができます。
提供:(株)クレアスレント横浜店(SUUMO経由)
この物件が気になったら掲載期限まであと11日
マーロ弘明寺に条件(家賃・エリア)が近い物件一覧
| 写真 | 家賃 管理費等 | 敷金 礼金 | 間取り 専有面積 | 築年数 | 最寄り駅 所在地 | キープ | 詳細 |
|---|---|---|---|---|---|---|---|
アパート ミーム矢向(ワンルーム/3階) | |||||||
![]() | 6.6万円 4,000円 | なし なし | ワンルーム 18.52m2 | 築2年 | JR南武線 矢向駅 徒歩15分 神奈川県川崎市幸区紺屋町 | 詳細を見る | |
マンション 大山ビル(1K/2階) | |||||||
![]() | 6万円 3,000円 | 6万円 6万円 | 1K 32.91m2 | 築29年 | 相鉄本線 相模大塚駅 徒歩5分 相鉄本線 さがみ野駅 徒歩11分 小田急江ノ島線 大和駅(神奈川) 徒歩28分 神奈川県大和市桜森 | 詳細を見る | |
アパート キャッスルホワイト柳橋(1K/2階) | |||||||
![]() | 6.5万円 4,000円 | なし なし | 1K 21.76m2 | 築1年 | 小田急江ノ島線 桜ケ丘駅 徒歩9分 小田急江ノ島線 大和駅(神奈川) 徒歩22分 相鉄本線 大和駅(神奈川) 徒歩22分 神奈川県大和市柳橋 | 詳細を見る | |
マンション ARCOBALENO KAWASAKI ウエスト(1K/3階) | |||||||
![]() | 9.5万円 1.5万円 | なし 14.25万円 | 1K 20.77m2 | 築1年 | JR東海道本線 川崎駅 徒歩10分 京急本線 京急川崎駅 徒歩11分 JR南武線 尻手駅 徒歩17分 神奈川県川崎市幸区中幸町 | 詳細を見る | |
テラスハウス ハイム西鎌倉(3LDK) | |||||||
![]() | 14万円 なし | なし なし | 3LDK 74.52m2 | 築21年 | 湘南モノレール 片瀬山駅 徒歩7分 神奈川県鎌倉市西鎌倉4丁目 | 詳細を見る | |
マンション リブェール松柏(1K/2階) | |||||||
![]() | 8万円 6,000円 | 8万円 8万円 | 1K 25.5m2 | 築24年 | 東急田園都市線 溝の口駅 徒歩7分 JR南武線 武蔵溝ノ口駅 徒歩9分 神奈川県川崎市高津区下作延 | 詳細を見る | |
マンション リブリ・プモリ鵠沼(1K/1階) | |||||||
![]() | 7.9万円 4,000円 | なし 15.8万円 | 1K 22.35m2 | 築9年 | JR東海道本線 藤沢駅 徒歩6分 湘南新宿ライン高海 藤沢駅 徒歩6分 小田急江ノ島線 藤沢駅 徒歩6分 神奈川県藤沢市鵠沼花沢町 | 詳細を見る | |
マンション YUZU LINE(2LDK/2階) | |||||||
![]() | 12万円 9,500円 | 12万円 18万円 | 2LDK 59.34m2 | 築6年 | JR根岸線 根岸駅(神奈川) 徒歩19分 ブルーライン 蒔田駅 徒歩26分 JR京浜東北線 磯子駅 徒歩27分 神奈川県横浜市磯子区岡村 | 詳細を見る | |









