賃貸マンション
ファミールスクエア中野坂上 1階の賃貸物件情報(1SLDK/1階)
| 家賃 | 管理費等 | 敷金 | 礼金 | 間取り | 専有面積 |
|---|---|---|---|---|---|
| 25万円 | 8,000円 | 50万円 | 25万円 | 1SLDK | 66.64m2 |
入居決定でお祝い金最大100,000円
- 保証金
- -
- 償却・敷引
- -
- 築年数
- 築25年
- 所在階
- 1階
- 向き
- 南
Point
まずはお問い合わせ!
不動産会社は街のプロ、あなたに合った物件がきっと見つかります。
提供:JTR不動産(株)(SUUMO経由)

詳細情報 ファミールスクエア中野坂上 1階
物件紹介
ファミールスクエア中野坂上 1階は東京メトロ丸ノ内線中野坂上駅から徒歩7分にあり、駅近で通勤通学に便利なマンションです。
建物のエントランスはオートロックがついており、防犯性が高くなっています。
人気の南向きのお部屋。室内にはウォークインクローゼットがありますので、たくさんの荷物も効率的に収納ができます。キッチンはシステムキッチン仕様になっていますので、お料理好きの方にもぴったり。バス・トイレは別なので、のんびりお風呂タイムも楽しめるでしょう。また、雨の日でも浴室乾燥機を使えば、お洗濯も問題ありません。
建物にはエレベーターがついているので、重い荷物があっても安心。共用部には宅配ボックスが設定されているので、不在の時にも荷物を受け取ることができます。
建物のエントランスはオートロックがついており、防犯性が高くなっています。
人気の南向きのお部屋。室内にはウォークインクローゼットがありますので、たくさんの荷物も効率的に収納ができます。キッチンはシステムキッチン仕様になっていますので、お料理好きの方にもぴったり。バス・トイレは別なので、のんびりお風呂タイムも楽しめるでしょう。また、雨の日でも浴室乾燥機を使えば、お洗濯も問題ありません。
建物にはエレベーターがついているので、重い荷物があっても安心。共用部には宅配ボックスが設定されているので、不在の時にも荷物を受け取ることができます。
お金・契約の情報
※「-」と表示されているものは、実際は料金が発生するものもございます。詳細はお問い合わせください。
| 家賃 | 25万円 | 管理費・共益費 | 8,000円 |
|---|---|---|---|
| 敷金 | 50万円 | 礼金 | 25万円 |
| 入居決定でお祝い金最大100,000円 | |||
| 保証金 | - | 償却・敷引 | - |
| 住宅保険料 | - | 更新料 | - |
| 保証会社利用 | 必須 | 保証会社名 | - |
| 保証会社費用 | - | 保証会社備考 | 保証会社利用必 初回50% 更新料10,000円 決済手数料550円 |
| 契約形態 | - | 契約期間 | - |
| 入居・引渡期間 | 即時 | 現況 | - |
| 契約備考 | *更新料:新賃料1ヶ月 *解約予告1ヶ月前 *ペット・楽器不可 *駐輪場:月額550円 *機械式駐車場:月額23,000円 *鍵交換(任意) *契約事務手数料:5,500円 1SLDK 普通借家2年 損保【2.2万円2年】 バストイレ別、バルコニー、エアコン、浴室乾燥機、オートロック、室内洗濯置、システムキッチン、南向き、追焚機能浴室、温水洗浄便座、エレベーター、洗面所独立、駐輪場、宅配ボックス、即入居可、3口以上コンロ、ウォークインクロゼット、2沿線利用可、敷金2ヶ月、平面駐車場、礼金1ヶ月 | ||
部屋の情報
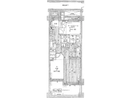
| 間取り | 1SLDK | 専有面積 | 66.64m2 |
|---|---|---|---|
| 所在階 / 向き | 1階 / 南 | バルコニー面積 | - |
| 水道 / ガス | - | ||
| 設備 | バス・トイレ別、オートロック、宅配ボックス、浴室乾燥機、ウォークインクローゼット、追い焚き、システムキッチン、エアコン、エレベーター、温水洗浄便座、南向き、バルコニー、洗髪洗面化粧台、2口コンロ、洗濯機:室内 | ||
| 当社物件ID | 159893738 | ||
建物の情報
| 建物名 | ファミールスクエア中野坂上 1階 | ||
|---|---|---|---|
| 所在地 | 東京都中野区中央 | ||
| 交通 | 東京メトロ丸ノ内線 中野坂上駅 徒歩7分 東京メトロ丸ノ内線 西新宿駅 徒歩15分 都営大江戸線 西新宿五丁目駅 徒歩17分 | ||
| 階数 | 地下1地上5階建 | 総戸数 | - |
| 築年月 | 2001年02月 / 築25年 | エレベーター | あり |
| 駐車場 | なし | バイク置き場 | - |
| 駐輪場 | あり | 管理人/管理会社 | - |
| 建物種別 | マンション | 建物構造 | RC(鉄筋コンクリート) |
この部屋の取扱い不動産会社
| 会社名 | JTR不動産(株)(SUUMO経由) | ||
|---|---|---|---|
| 所在地 | 東京都渋谷区恵比寿南1-2-12 | 交通 | - |
| 営業時間 | 10時~19時 | 定休日 | 土日祝(内見ご相談可能です) |
| 免許番号 | 東京都知事93907 | 取引態様 | 仲介 |
| 不動産会社管理番号 | 100473022263 | 当社管理番号 | 89 |
| 取扱い物件情報 | 物件詳細へ | ||
※各種情報と現状に差異がある場合は、現状優先となります。問い合わせをすることで、より詳しい条件、情報を確認する事ができます。
提供:JTR不動産(株)(SUUMO経由)
この物件が気になったら掲載期限まであと10日
ファミールスクエア中野坂上 1階に条件(家賃・エリア)が近い物件一覧
| 写真 | 家賃 管理費等 | 敷金 礼金 | 間取り 専有面積 | 築年数 | 最寄り駅 所在地 | キープ | 詳細 |
|---|---|---|---|---|---|---|---|
マンション ジオ西新宿ツインレジデンス ウエスト棟(2LDK/10階) | |||||||
![]() | 24.9万円 1万円 | 24.9万円 24.9万円 | 2LDK 54.76m2 | 築14年 | 東京メトロ丸ノ内線 西新宿駅 徒歩6分 都営大江戸線 新宿西口駅 徒歩9分 JR山手線 新宿駅 徒歩13分 東京都新宿区北新宿 | 詳細を見る | |
マンション ライオンズ早稲田ミレス(2DK/12階) | |||||||
![]() | 22万円 なし | 22万円 22万円 | 2DK 45m2 | 築9年 | 東京メトロ東西線 早稲田駅(メトロ) 徒歩7分 東京メトロ副都心線 西早稲田駅 徒歩17分 JR山手線 高田馬場駅 徒歩23分 東京都新宿区西早稲田 | 詳細を見る | |
マンション エルミ上落合(1K/2階) | |||||||
![]() | 15.5万円 1万円 | 15.5万円 15.5万円 | 1K 31.68m2 | 新築 | 東京地下鉄東西線 落合駅 徒歩3分 東京都新宿区上落合3丁目 | 詳細を見る | |
マンション ザ・パークハビオ中野富士見町ガーデン(2LDK/14階) | |||||||
![]() | 28万円 2.5万円 | 28万円 28万円 | 2LDK 51.84m2 | 築3年 | 東京メトロ丸ノ内線 中野富士見町駅 徒歩4分 東京メトロ丸ノ内線 新中野駅 徒歩11分 都営大江戸線 西新宿五丁目駅 徒歩20分 東京都中野区弥生町 | 詳細を見る | |
マンション ブランシエスタ荻窪(2LDK/9階) | |||||||
![]() | 22.2万円 1.8万円 | なし なし | 2LDK 51.18m2 | 築1年 | JR総武線 荻窪駅 徒歩15分 東京メトロ丸ノ内線 荻窪駅 徒歩15分 京王井の頭線 高井戸駅 徒歩17分 東京都杉並区荻窪 | 詳細を見る | |
マンション レピュア北池袋駅前レジデンス(1LDK/2階) | |||||||
![]() | 18万円 1.5万円 | なし なし | 1LDK 30.06m2 | 築2年 | 東武東上線 北池袋駅 徒歩3分 JR埼京線 板橋駅 徒歩8分 都営三田線 新板橋駅 徒歩14分 東京都豊島区上池袋 | 詳細を見る | |
アパート 阿佐谷北5丁目B棟(2LDK/1階) | |||||||
![]() | 18.2万円 3,000円 | 18.2万円 36.4万円 | 2LDK 47.51m2 | 新築 | JR総武線 阿佐ケ谷駅 徒歩10分 東京メトロ丸ノ内線 南阿佐ケ谷駅 徒歩15分 JR総武線 高円寺駅 徒歩15分 東京都杉並区阿佐谷北 | 詳細を見る | |
マンション BRILLIA TOWER 池袋 ウエスト(1LDK/16階) | |||||||
![]() | 20.5万円 2万円 | 20.5万円 20.5万円 | 1LDK 41.37m2 | 築2年 | 東京メトロ有楽町線 要町駅 徒歩3分 JR山手線 池袋駅 徒歩10分 西武池袋線 椎名町駅 徒歩16分 東京都豊島区池袋 | 詳細を見る | |









