賃貸マンション
近鉄京都線 富野荘駅 徒歩3分 3階建 築27年の賃貸物件情報(3LDK/1階)
| 家賃 | 管理費等 | 敷金 | 礼金 | 間取り | 専有面積 |
|---|---|---|---|---|---|
| 7.1万円 | 4,000円 | なし | なし | 3LDK | 66.21m2 |
入居決定でお祝い金最大100,000円
Point
富野荘駅が近くに。 敷金ナシ、保証人ナシプランをご活用下さい。
提供:株式会社 京都ライフ 京田辺店(賃貸スモッカ経由)

詳細情報 近鉄京都線 富野荘駅 徒歩3分 3階建 築27年
物件紹介
近鉄京都線富野荘駅から徒歩3分にあり、駅近で通勤通学に便利なマンションです。
人気の南向きのお部屋。また、フローリングなのでお掃除もラクラク。バス・トイレ別の仕様で、のんびりお風呂タイムも楽しめます。
通信設備面ではBSアンテナがありますので、おうち時間も充実するでしょう(別途工事、契約料が必要な場合あり)。
人気の南向きのお部屋。また、フローリングなのでお掃除もラクラク。バス・トイレ別の仕様で、のんびりお風呂タイムも楽しめます。
通信設備面ではBSアンテナがありますので、おうち時間も充実するでしょう(別途工事、契約料が必要な場合あり)。
お金・契約の情報
※「-」と表示されているものは、実際は料金が発生するものもございます。詳細はお問い合わせください。
| 家賃 | 7.1万円 | 管理費・共益費 | 4,000円 |
|---|---|---|---|
| 敷金 | なし | 礼金 | なし |
| 入居決定でお祝い金最大100,000円 | |||
| 保証金 | - | 償却・敷引 | - |
| 住宅保険料 | 住宅保険料あり | 更新料 | - |
| 契約形態 | - | 契約期間 | 2年 |
| 入居・引渡期間 | 2026年05月下旬 | 現況 | 賃貸中 |
| 契約備考 | 近鉄富野荘駅まですぐの3LDKマンションです(徒歩3分)。敷金、更新料ナシです。嬉しい3点セパレートなど充実の設備。コンビニ、スーパーなど近くにあって便利ですよ。 入居者サポート:330円 口座振替手数料:170円 害虫駆除費:22,000円 更新料:無し 保証会社:利用必須 初回:2.2万円/2年、月額:保証料として月額賃料等の2%(ハウスクリーニング代退去時支払いの場合、月額保証料は総賃料の5% ペット可の場合、初回保証料25000円/月額保証料は総賃料の2.5%) その他設備/条件:1階の物件 | ||
部屋の情報
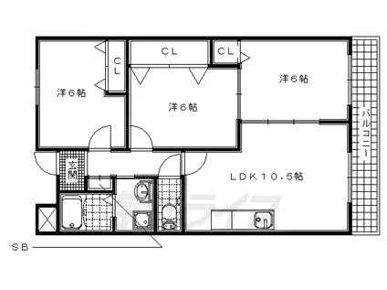
| 間取り | 3LDK | 専有面積 | 66.21m2 |
|---|---|---|---|
| 間取り詳細 | 洋室(6帖)、洋室(6帖)、洋室(6帖)、LDK(10.5帖) | ||
| 所在階 / 向き | 1階 / 南 | バルコニー面積 | - |
| 水道 / ガス | ガス【プロパン】 | ||
| 設備 | バス・トイレ別、追い焚き、南向き、バルコニー、フローリング、BSアンテナ、洗濯機:室内 | ||
| 当社物件ID | 160822852 | ||
建物の情報
| 建物名 | 近鉄京都線 富野荘駅 徒歩3分 3階建 築27年 | ||
|---|---|---|---|
| 所在地 | 京都府城陽市枇杷庄 | ||
| 交通 | 近鉄京都線 富野荘駅 徒歩3分 近鉄京都線 寺田駅(京都) 徒歩24分 | ||
| 階数 | 3階建 | 総戸数 | - |
| 築年月 | 2000年03月 / 築27年 | エレベーター | - |
| 駐車場 | - | バイク置き場 | - |
| 駐輪場 | あり | 管理人/管理会社 | - |
| 建物種別 | マンション | 建物構造 | 鉄骨造 |
この部屋の取扱い不動産会社
| 会社名 | 株式会社 京都ライフ 京田辺店(賃貸スモッカ経由) | ||
|---|---|---|---|
| 所在地 | 京都府京田辺市田辺中央1丁目7-11 | 交通 | - |
| 営業時間 | - | 定休日 | - |
| 免許番号 | 京都府知事(11)第6353号 | 取引態様 | 仲介 |
| 不動産会社管理番号 | kyotolife_25011-105-24 | 当社管理番号 | 463 |
| 所属団体 | 京都府宅地建物取引業協会\n公益社団法人近畿地区不動産公正取引協議会 | ||
| 公正取引協議会 | 全国宅地建物取引業保証協会 | ||
| 取扱い物件情報 | 物件詳細へ | ||
※各種情報と現状に差異がある場合は、現状優先となります。問い合わせをすることで、より詳しい条件、情報を確認する事ができます。
提供:株式会社 京都ライフ 京田辺店(賃貸スモッカ経由)
この物件が気になったら掲載期限まであと6日
近鉄京都線 富野荘駅 徒歩3分 3階建 築27年に条件(家賃・エリア)が近い物件一覧
| 写真 | 家賃 管理費等 | 敷金 礼金 | 間取り 専有面積 | 築年数 | 最寄り駅 所在地 | キープ | 詳細 |
|---|---|---|---|---|---|---|---|
マンション 近鉄京都線 久津川駅 徒歩6分 築31年(2LDK/1階) | |||||||
![]() | 7万円 1万円 | 6万円 13万円 | 2LDK 55.45m2 | 築31年 | 近鉄京都線 久津川駅 徒歩6分 近鉄京都線 大久保駅(京都) 徒歩8分 京都府城陽市平川 | 詳細を見る | |
アパート 京阪電気鉄道京阪線 石清水八幡宮駅 徒歩14分 築15年(1K/1階) | |||||||
![]() | 7.3万円 7,000円 | なし なし | 1K 26.08m2 | 築15年 | 京阪電気鉄道京阪線 石清水八幡宮駅 徒歩14分 京阪電気鉄道京阪線 橋本駅(京都) 徒歩38分 京都府八幡市八幡森 | 詳細を見る | |
アパート 京阪電気鉄道宇治線 三室戸駅 徒歩10分 築32年(2LDK/2階) | |||||||
![]() | 6.5万円 5,000円 | なし 6.5万円 | 2LDK 52.5m2 | 築32年 | 京阪電気鉄道宇治線 三室戸駅 徒歩10分 奈良線 黄檗駅(JR) 徒歩19分 京都府宇治市莵道西中 | 詳細を見る | |
アパート 京阪電気鉄道京阪線 橋本駅(京都) 徒歩12分 築29年(3LDK/1階) | |||||||
![]() | 7.4万円 3,000円 | なし 14.8万円 | 3LDK 65.83m2 | 築29年 | 京阪電気鉄道京阪線 橋本駅(京都) 徒歩12分 京阪電気鉄道京阪線 石清水八幡宮駅 徒歩32分 京都府八幡市橋本向山 | 詳細を見る | |
アパート エーデルハイム南端(2LDK/2階) | |||||||
![]() | 9.4万円 8,000円 | なし 15万円 | 2LDK 57.5m2 | 築9年 | 奈良線 木幡駅(JR) 徒歩11分 京阪電気鉄道宇治線 木幡駅(京阪) 徒歩14分 京都府宇治市木幡南端 | 詳細を見る | |
マンション MSKビル(1K/2階) | |||||||
![]() | 4.7万円 5,000円 | 4.7万円 なし | 1K 30m2 | 築36年 | 近鉄京都線 小倉駅(京都) 徒歩1分 JR奈良線 JR小倉駅 徒歩13分 近鉄京都線 伊勢田駅 徒歩22分 京都府宇治市小倉町神楽田 | 詳細を見る | |
アパート レオネクストサザンガーデン寺田(1K/2階) | |||||||
![]() | 7.3万円 7,000円 | なし なし | 1K 25.34m2 | 築16年 | JR奈良線 長池駅 徒歩13分 JR奈良線 城陽駅 徒歩14分 近鉄京都線 寺田駅(京都) 徒歩18分 京都府城陽市寺田新池 | 詳細を見る | |
アパート 近鉄京都線 大久保駅(京都) 徒歩10分 築22年(1K/1階) | |||||||
![]() | 7.1万円 7,000円 | なし 7.1万円 | 1K 20.28m2 | 築22年 | 近鉄京都線 大久保駅(京都) 徒歩10分 近鉄京都線 小倉駅(京都) 徒歩19分 京都府宇治市大久保町久保 | 詳細を見る | |









