賃貸マンション
トレステーラDUVAの賃貸物件情報(1K/1階)
| 家賃 | 管理費等 | 敷金 | 礼金 | 間取り | 専有面積 |
|---|---|---|---|---|---|
| 4.5万円 | 3,000円 | なし | なし | 1K | 30.69m2 |
入居決定でお祝い金最大100,000円
- 保証金
- -
- 償却・敷引
- -
- 築年数
- 築8年
- 所在階
- 1階
- 向き
- -
Point
築浅で学生が多く住むマンションです。電車にバス、駐車場も複数台完備しているため、通勤や通学に便利で綺麗な物件です。
提供:海月不動産(株)(SUUMO経由)

詳細情報 トレステーラDUVA
物件紹介
トレステーラDUVAはJR日豊本線亀川駅から徒歩4分にあり、駅近で通勤通学に便利なマンションです。
建物のエントランスはオートロックがついており、防犯性が高くなっています。
フローリングのお部屋なのでお掃除もラクラク。室内には人気のウォークインクローゼットがありますので、たくさんの荷物も効率的に収納ができます。バス・トイレ別の仕様で、のんびりお風呂タイムも楽しめます。
通信設備面では、インターネットが無料で使えるので、月々の出費を抑えられるのも魅力です(別途工事等が必要な場合あり)。
建物にはエレベーターがついているので、重い荷物があっても安心。
建物のエントランスはオートロックがついており、防犯性が高くなっています。
フローリングのお部屋なのでお掃除もラクラク。室内には人気のウォークインクローゼットがありますので、たくさんの荷物も効率的に収納ができます。バス・トイレ別の仕様で、のんびりお風呂タイムも楽しめます。
通信設備面では、インターネットが無料で使えるので、月々の出費を抑えられるのも魅力です(別途工事等が必要な場合あり)。
建物にはエレベーターがついているので、重い荷物があっても安心。
お金・契約の情報
※「-」と表示されているものは、実際は料金が発生するものもございます。詳細はお問い合わせください。
| 家賃 | 4.5万円 | 管理費・共益費 | 3,000円 |
|---|---|---|---|
| 敷金 | なし | 礼金 | なし |
| フリーレント | あり | ||
| 入居決定でお祝い金最大100,000円 | |||
| 保証金 | - | 償却・敷引 | - |
| 住宅保険料 | - | 更新料 | - |
| 保証会社利用 | 必須 | 保証会社名 | - |
| 保証会社費用 | - | 保証会社備考 | 保証会社利用必 ジェイリース 初回80% ジェイリース初回50%(連帯保証人要) |
| 契約形態 | - | 契約期間 | - |
| 入居・引渡期間 | 相談 | 現況 | - |
| 契約備考 | 巡回管理 町内会費500円水道料定額3,300円くらしーど24(かけつけサービス)660円退去時清掃費33,000円 1K フリーレント1ヶ月 普通借家2年 損保【要】 バストイレ別、バルコニー、エアコン、ガスコンロ対応、クロゼット、フローリング、オートロック、陽当り良好、シューズボックス、温水洗浄便座、脱衣所、エレベーター、洗面所独立、2口コンロ、駐輪場、押入、礼金不要、敷金不要、3口以上コンロ、独立型キッチン、ウォークインクロゼット、駐車2台可、バイク置場、駅まで平坦、ネット使用料不要、緑豊かな住宅地、眺望良好、外壁コンクリート、平坦地、リバーサイド、学生相談、オーシャンビュー、耐震構造、駐車3台可、駐車5台以上、駅前、車寄せ、敷地内ごみ置き場、平面駐車場、当社管理物件、プロパンガス、洗面所にドア、玄関収納、年内入居可、年度内入居可、敷金・礼金不要、保証会社利用可、IT重説対応物件、通風良好 | ||
部屋の情報
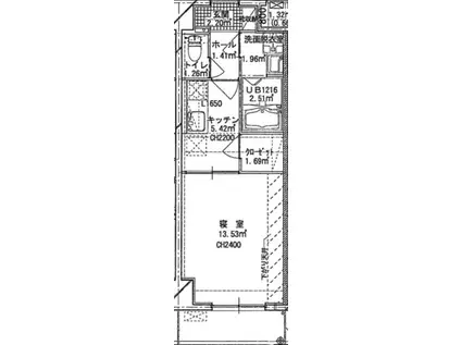
| 間取り | 1K | 専有面積 | 30.69m2 |
|---|---|---|---|
| 所在階 / 向き | 1階 / - | バルコニー面積 | - |
| 水道 / ガス | - | ||
| 設備 | バス・トイレ別、オートロック、ウォークインクローゼット、インターネット対応、エアコン、エレベーター、温水洗浄便座、バルコニー、フローリング、洗髪洗面化粧台、2口コンロ、コンロ:ガス、インターネット使用料無料 | ||
| 当社物件ID | 29218777 | ||
建物の情報
| 建物名 | トレステーラDUVA | ||
|---|---|---|---|
| 所在地 | 大分県別府市亀川浜田町 | ||
| 交通 | JR日豊本線 亀川駅 徒歩4分 JR日豊本線 別府大学駅 徒歩29分 JR日豊本線 豊後豊岡駅 徒歩48分 | ||
| 階数 | 8階建 | 総戸数 | - |
| 築年月 | 2018年12月 / 築8年 | エレベーター | あり |
| 駐車場 | 空有 5500円 | バイク置き場 | あり |
| 駐輪場 | あり | 管理人/管理会社 | - |
| 周辺環境 | その他 マルショク関の江店(スーパー)まで1726m その他 ファミリーマートJR亀川駅前店(コンビニ)まで262m その他 ジョイフル亀川店(飲食店)まで925m その他 独立行政法人国立病院機構別府医療センター(病院)まで859m その他 別府平田郵便局(郵便局)まで1442m | ||
| 建物種別 | マンション | 建物構造 | RC(鉄筋コンクリート) |
この部屋の取扱い不動産会社
| 会社名 | 海月不動産(株)(SUUMO経由) | ||
|---|---|---|---|
| 所在地 | 大分県大分市長浜町3-15-40 | 交通 | - |
| 営業時間 | - | 定休日 | - |
| 免許番号 | 大分県知事3401 | 取引態様 | 仲介 |
| 不動産会社管理番号 | 100494210559 | 当社管理番号 | 89 |
| 所属団体 | (公社)大分県宅地建物取引業協会会員 | ||
| 公正取引協議会 | (一社)九州不動産公正取引協議会加盟 | ||
| 取扱い物件情報 | 物件詳細へ | ||
※各種情報と現状に差異がある場合は、現状優先となります。問い合わせをすることで、より詳しい条件、情報を確認する事ができます。
提供:海月不動産(株)(SUUMO経由)
この物件が気になったら掲載期限まであと10日
トレステーラDUVAに条件(家賃・エリア)が近い物件一覧
| 写真 | 家賃 管理費等 | 敷金 礼金 | 間取り 専有面積 | 築年数 | 最寄り駅 所在地 | キープ | 詳細 |
|---|---|---|---|---|---|---|---|
アパート ファーツリーガーデン I(2LDK/2階) | |||||||
![]() | 6.65万円 2,900円 | なし 6.65万円 | 2LDK 53.75m2 | 築4年 | 大分県大分市大字猪野 | 詳細を見る | |
アパート みますコーポ(1DK/2階) | |||||||
![]() | 3.8万円 なし | なし なし | 1DK 33.5m2 | 築29年 | JR日豊本線 亀川駅 徒歩10分 大分県別府市 | 詳細を見る | |
マンション PURE GOLD(1K/5階) | |||||||
![]() | 4.7万円 5,000円 | なし 4.7万円 | 1K 27.2m2 | 築6年 | JR日豊本線 高城駅 徒歩12分 大分県大分市高松 | 詳細を見る | |
アパート シャンローゼかめがわ(1K/2階) | |||||||
![]() | 2.9万円 4,000円 | なし なし | 1K 23.55m2 | 築26年 | JR日豊本線 亀川駅 徒歩1分 大分県別府市亀川浜田町 | 詳細を見る | |
アパート アンシャンテ(2LDK/2階) | |||||||
![]() | 4.9万円 3,500円 | なし なし | 2LDK 53.28m2 | 築22年 | JR日豊本線 柳ケ浦駅 徒歩19分 大分県宇佐市大字江須賀 | 詳細を見る | |
マンション アムール羽屋(1K/2階) | |||||||
![]() | 4.4万円 3,000円 | なし 4.4万円 | 1K 26.94m2 | 築17年 | JR久大本線 古国府駅 徒歩26分 大分県大分市 | 詳細を見る | |
アパート JR日豊本線 牧駅(大分) 徒歩18分 築58年(1LDK/4階) | |||||||
![]() | 4.8万円 3,000円 | なし なし | 1LDK 55m2 | 築58年 | JR日豊本線 牧駅(大分) 徒歩18分 JR日豊本線 高城駅 徒歩36分 JR日豊本線 大分駅 徒歩42分 大分県大分市花津留 | 詳細を見る | |
アパート サンライズ小池原(2DK/1階) | |||||||
![]() | 3.8万円 3,000円 | なし なし | 2DK 43.33m2 | 築28年 | JR日豊本線 高城駅 徒歩23分 大分県大分市大字千歳 | 詳細を見る | |









