賃貸マンション
第二中村ビルの賃貸物件情報(2LDK/2階)
| 家賃 | 管理費等 | 敷金 | 礼金 | 間取り | 専有面積 |
|---|---|---|---|---|---|
| 14.8万円 | 5,000円 | なし | なし | 2LDK | 75m2 |
入居決定でお祝い金最大100,000円
- 保証金
- -
- 償却・敷引
- -
- 築年数
- 築43年
- 所在階
- 2階
- 向き
- -
Point
バストイレ別♪収納スペース♪シューズボックス♪独立洗面台♪温水洗浄便座♪追い炊き機能付きバス♪
提供:(株)ホームエステート(SUUMO経由)

詳細情報 第二中村ビル
物件紹介
第二中村ビルはJR東海道本線横浜駅から徒歩15分にあるマンションです。
このお部屋は2階以上に位置しているので、通行人や周囲の住人からの視線が気になりにくく、防犯面でも安心です。
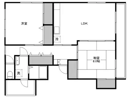
人気の南向き・フローリングのお部屋。角部屋でもあるため、周囲の居住者の生活音も気になりにくい場所です。キッチンはシステムキッチン仕様になっていますので、お料理好きの方にもぴったり。また、バス・トイレは別で、のんびりお風呂タイムも楽しめるでしょう。
通信設備面では、インターネット接続が可能です(別途工事、契約料が必要な場合あり)。
このお部屋は2階以上に位置しているので、通行人や周囲の住人からの視線が気になりにくく、防犯面でも安心です。
人気の南向き・フローリングのお部屋。角部屋でもあるため、周囲の居住者の生活音も気になりにくい場所です。キッチンはシステムキッチン仕様になっていますので、お料理好きの方にもぴったり。また、バス・トイレは別で、のんびりお風呂タイムも楽しめるでしょう。
通信設備面では、インターネット接続が可能です(別途工事、契約料が必要な場合あり)。
お金・契約の情報
※「-」と表示されているものは、実際は料金が発生するものもございます。詳細はお問い合わせください。
| 家賃 | 14.8万円 | 管理費・共益費 | 5,000円 |
|---|---|---|---|
| 敷金 | なし | 礼金 | なし |
| 入居決定でお祝い金最大100,000円 | |||
| 保証金 | - | 償却・敷引 | - |
| 住宅保険料 | - | 更新料 | - |
| 保証会社利用 | 必須 | 保証会社名 | - |
| 保証会社費用 | - | 保証会社備考 | 保証会社利用必 初回:総賃料の100%、総賃料の2%/月、15,000円/2年 |
| 契約形態 | - | 契約期間 | - |
| 入居・引渡期間 | - | 現況 | - |
| 契約備考 | CiertoClub:1,500円/月、 2LDK 損保【要】 バストイレ別、バルコニー、エアコン、ガスコンロ対応、クロゼット、フローリング、室内洗濯置、陽当り良好、シューズボックス、追焚機能浴室、角住戸、温水洗浄便座、脱衣所、洗面所独立、洗面化粧台、押入、光ファイバー、礼金不要、2面採光、敷金不要、全居室収納、オートバス、振分、保証人不要、二人入居相談、3面採光、ネット専用回線、駅まで平坦、1フロア1住戸、平坦地、全室2面採光、始発駅、3駅以上利用可、3沿線以上利用可、LDK12畳以上、和室、全居室8畳以上、都市ガス、玄関収納、高速ネット対応、通風良好 入居日:'26年3月中旬 | ||
部屋の情報
| 間取り | 2LDK | 専有面積 | 75m2 |
|---|---|---|---|
| 所在階 / 向き | 2階 / - | バルコニー面積 | - |
| 水道 / ガス | - | ||
| 設備 | バス・トイレ別、2階以上、追い焚き、インターネット対応、エアコン、温水洗浄便座、角部屋、バルコニー、フローリング、洗髪洗面化粧台、コンロ:ガス、洗濯機:室内 | ||
| 当社物件ID | 157918021 | ||
建物の情報
| 建物名 | 第二中村ビル | ||
|---|---|---|---|
| 所在地 | 神奈川県横浜市西区宮ケ谷 | ||
| 交通 | JR京浜東北線 横浜駅 徒歩15分 相鉄本線 平沼橋駅 徒歩15分 ブルーライン 三ツ沢下町駅 徒歩26分 | ||
| 階数 | 3階建 | 総戸数 | - |
| 築年月 | 1983年10月 / 築43年 | エレベーター | - |
| 駐車場 | なし | バイク置き場 | - |
| 駐輪場 | - | 管理人/管理会社 | - |
| 周辺環境 | その他 まいばすけっと横浜楠町店(スーパー)まで468m その他 セブンイレブン横浜浅間下店(コンビニ)まで311m その他 ハックドラッグCeeU Yokohama店(ドラッグストア)まで934m その他 まいばすけっと横浜駅西店(スーパー)まで593m その他 イオンフードスタイル横浜西口店(スーパー)まで933m その他 全日食チェーン横浜浅間台店(スーパー)まで250m | ||
| 建物種別 | マンション | 建物構造 | 鉄骨造 |
この部屋の取扱い不動産会社
| 会社名 | (株)All Round(SUUMO経由) | ||
|---|---|---|---|
| 所在地 | 神奈川県横浜市神奈川区西神奈川1-7-8 ことぶきビル6階 | 交通 | - |
| 営業時間 | 10時~18時 | 定休日 | 水曜日 |
| 免許番号 | 神奈川県知事29680 | 取引態様 | 仲介 |
| 不動産会社管理番号 | 100410621404 | 当社管理番号 | 89 |
| 所属団体 | (公社)全日本不動産協会神奈川県本部会員 | ||
| 公正取引協議会 | (公社)首都圏不動産公正取引協議会加盟 | ||
| 取扱い物件情報 | 物件詳細へ | ||
※各種情報と現状に差異がある場合は、現状優先となります。問い合わせをすることで、より詳しい条件、情報を確認する事ができます。
提供:(株)All Round(SUUMO経由)
この物件が気になったら掲載期限まであと10日
第二中村ビルに条件(家賃・エリア)が近い物件一覧
| 写真 | 家賃 管理費等 | 敷金 礼金 | 間取り 専有面積 | 築年数 | 最寄り駅 所在地 | キープ | 詳細 |
|---|---|---|---|---|---|---|---|
タウンハウス ドッグウッド宮前B棟(2LDK) | |||||||
![]() | 10.7万円 5,000円 | なし なし | 2LDK 65.62m2 | 築24年 | 神奈川県川崎市宮前区平5丁目 | 詳細を見る | |
アパート ドエルパル(2LDK/2階) | |||||||
![]() | 11.9万円 6,000円 | なし 5万円 | 2LDK 60.45m2 | 築9年 | 小田急江ノ島線 大和駅(神奈川) 徒歩14分 小田急江ノ島線 桜ケ丘駅 徒歩18分 相鉄本線 瀬谷駅 徒歩28分 神奈川県大和市中央 | 詳細を見る | |
アパート メヌエット高津(1LDK/1階) | |||||||
![]() | 12.5万円 3,000円 | 12.5万円 12.5万円 | 1LDK 40.2m2 | 築2年 | 東急田園都市線 高津駅(神奈川) 徒歩12分 東急田園都市線 溝の口駅 徒歩16分 JR南武線 武蔵溝ノ口駅 徒歩18分 神奈川県川崎市高津区溝口 | 詳細を見る | |
アパート ハイツ・バーディ(2DK/2階) | |||||||
![]() | 9万円 なし | 9万円 なし | 2DK 39.6m2 | 築26年 | JR南武線 武蔵中原駅 徒歩8分 東急東横線 武蔵小杉駅 徒歩20分 東急東横線 新丸子駅 徒歩22分 神奈川県川崎市中原区上小田中 | 詳細を見る | |
マンション クレドール江ノ島(2LDK/1階) | |||||||
![]() | 17.9万円 6,000円 | なし なし | 2LDK 47m2 | 築3年 | 小田急電鉄江ノ島線 片瀬江ノ島駅 徒歩3分 江ノ島電鉄 江ノ島駅 徒歩10分 神奈川県藤沢市片瀬海岸2丁目 | 詳細を見る | |
マンション フローラルガーデン(1SLDK/2階) | |||||||
![]() | 22万円 なし | 22万円 22万円 | 1SLDK 57.43m2 | 築17年 | 東急東横線 武蔵小杉駅 徒歩4分 東急東横線 新丸子駅 徒歩9分 JR南武線 向河原駅 徒歩10分 神奈川県川崎市中原区新丸子東 | 詳細を見る | |
マンション グランド・ガーラ川崎西口(1K/12階) | |||||||
![]() | 8.9万円 9,000円 | 8.9万円 17.8万円 | 1K 20.21m2 | 築10年 | JR京浜東北線 川崎駅 徒歩10分 JR南武線 尻手駅 徒歩12分 京急本線 京急川崎駅 徒歩13分 神奈川県川崎市幸区南幸町 | 詳細を見る | |
アパート GRADUS藤沢(1LDK/1階) | |||||||
![]() | 10.5万円 4,500円 | なし 10.5万円 | 1LDK 37.96m2 | 築1年 | JR東海道本線 藤沢駅 徒歩10分 小田急江ノ島線 藤沢本町駅 徒歩16分 江ノ島電鉄線 石上駅 徒歩18分 神奈川県藤沢市鵠沼 | 詳細を見る | |








