賃貸マンション
メゾン・ド・ヴィレ麻布台の賃貸物件情報(1K/10階)
| 家賃 | 管理費等 | 敷金 | 礼金 | 間取り | 専有面積 |
|---|---|---|---|---|---|
| 22.5万円 | 1.5万円 | なし | 22.5万円 | 1K | 36.49m2 |
入居決定でお祝い金最大100,000円
- 保証金
- -
- 償却・敷引
- -
- 築年数
- 築25年
- 所在階
- 10階
- 向き
- 北東
Point
セキュリティ面は、オートロック・TVインターホンなど充実しているので、防犯対策もばっちりです。港区での住まい探しを当社スタッフがサポート致します。まずはご希望条件などをお申しつけください。
提供:NAVI HOME(株)目黒店(SUUMO経由)

詳細情報 メゾン・ド・ヴィレ麻布台
物件紹介
メゾン・ド・ヴィレ麻布台は東京メトロ日比谷線神谷町駅から徒歩5分にあり、駅近で通勤通学に便利なマンションです。
このお部屋は2階以上に位置しているので、通行人や周囲の住人からの視線が気になりにくく、防犯面でも安心。建物のエントランスはオートロックがついており、インターホンにはTVモニタもついているため、相手の顔を確認してから来客対応することができます。
おしゃれなデザイナーズ物件!フローリングのお部屋なのでお掃除もラクラク。キッチンはシステムキッチン仕様になっていますので、お料理好きの方にもぴったり。バス・トイレは別なので、のんびりお風呂タイムも楽しめるでしょう。また、雨の日でも浴室乾燥機を使えば、お洗濯も問題ありません。
通信設備面では、インターネットが無料で使えるので、月々の出費を抑えられるのも魅力です。また、BSアンテナ・CSアンテナがありCATVにも対応しているので、おうち時間も充実するでしょう(別途工事、BS・CS・CATVの契約料等が必要な場合あり)。
建物にはエレベーターがついているので、重い荷物があっても安心。共用部には宅配ボックスが設定されているので、不在の時にも荷物を受け取ることができます。
このお部屋は2階以上に位置しているので、通行人や周囲の住人からの視線が気になりにくく、防犯面でも安心。建物のエントランスはオートロックがついており、インターホンにはTVモニタもついているため、相手の顔を確認してから来客対応することができます。
おしゃれなデザイナーズ物件!フローリングのお部屋なのでお掃除もラクラク。キッチンはシステムキッチン仕様になっていますので、お料理好きの方にもぴったり。バス・トイレは別なので、のんびりお風呂タイムも楽しめるでしょう。また、雨の日でも浴室乾燥機を使えば、お洗濯も問題ありません。
通信設備面では、インターネットが無料で使えるので、月々の出費を抑えられるのも魅力です。また、BSアンテナ・CSアンテナがありCATVにも対応しているので、おうち時間も充実するでしょう(別途工事、BS・CS・CATVの契約料等が必要な場合あり)。
建物にはエレベーターがついているので、重い荷物があっても安心。共用部には宅配ボックスが設定されているので、不在の時にも荷物を受け取ることができます。
お金・契約の情報
※「-」と表示されているものは、実際は料金が発生するものもございます。詳細はお問い合わせください。
| 家賃 | 22.5万円 | 管理費・共益費 | 1.5万円 |
|---|---|---|---|
| 敷金 | なし | 礼金 | 22.5万円 |
| 入居決定でお祝い金最大100,000円 | |||
| 保証金 | - | 償却・敷引 | - |
| 住宅保険料 | - | 更新料 | - |
| 保証会社利用 | 必須 | 保証会社名 | - |
| 保証会社費用 | - | 保証会社備考 | 保証会社利用必 初回:総賃料の40%、月額:980円 |
| 契約形態 | - | 契約期間 | - |
| 入居・引渡期間 | 即時 | 現況 | - |
| 契約備考 | 更新料 新賃料1.00ヶ月分 1K 普通借家2年 損保【2.4万円2年】 バルコニー、エアコン、クロゼット、フローリング、TVインターホン、浴室乾燥機、オートロック、システムキッチン、温水洗浄便座、エレベーター、洗面所独立、洗面化粧台、駐輪場、宅配ボックス、CATV、光ファイバー、BS・CS、敷金不要、防犯カメラ、IHクッキングヒーター、全居室収納、全居室洋室、保証人不要、CATVインターネット、バイク置場、全居室フローリング、2沿線利用可、CS、ネット専用回線、洗濯機、ネット使用料不要、眺望良好、エアコン全室、乾燥機、24時間換気システム、家電付、耐震構造、2駅利用可、3駅以上利用可、3沿線以上利用可、駅徒歩10分以内、高層階、敷地内ごみ置き場、寝室8畳以上、全居室6畳以上、全居室8畳以上、都市ガス、洗面所にドア、天井高シューズクロゼット、玄関収納、BS、年内入居可、年度内入居可、礼金1ヶ月、通風良好 | ||
部屋の情報
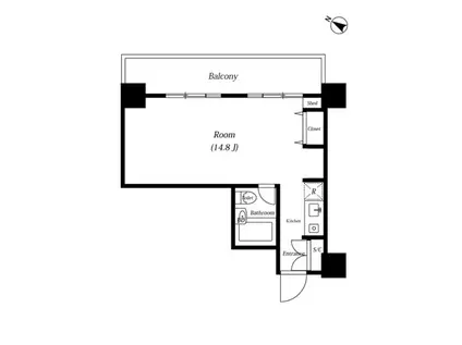
| 間取り | 1K | 専有面積 | 36.49m2 |
|---|---|---|---|
| 所在階 / 向き | 10階 / 北東 | バルコニー面積 | - |
| 水道 / ガス | - | ||
| 設備 | 2階以上、オートロック、テレビドアホン、宅配ボックス、浴室乾燥機、インターネット対応、システムキッチン、エアコン、エレベーター、温水洗浄便座、バルコニー、フローリング、洗髪洗面化粧台、コンロ:IH、CATV、CSアンテナ、BSアンテナ、インターネット使用料無料 | ||
| 当社物件ID | 18748676 | ||
建物の情報
| 建物名 | メゾン・ド・ヴィレ麻布台 | ||
|---|---|---|---|
| 所在地 | 東京都港区麻布台 | ||
| 交通 | 東京メトロ日比谷線 神谷町駅 徒歩6分 都営大江戸線 赤羽橋駅 徒歩7分 東京メトロ南北線 麻布十番駅 徒歩14分 | ||
| 階数 | 地下1地上15階建 | 総戸数 | - |
| 築年月 | 2001年05月 / 築25年 | エレベーター | あり |
| 駐車場 | なし | バイク置き場 | あり |
| 駐輪場 | あり | 管理人/管理会社 | - |
| 周辺環境 | その他 マルエツ プチ 東麻布店(スーパー)まで268m その他 ローソン 芝公園四丁目店(コンビニ)まで220m その他 どらっぐぱぱす赤羽橋駅前店(ドラッグストア)まで569m その他 成城石井 東麻布店(スーパー)まで430m その他 ファミリーマート 東麻布一丁目店(コンビニ)まで632m その他 くすりの福太郎 東麻布店(ドラッグストア)まで736m | ||
| 建物種別 | マンション | 建物構造 | SRC(鉄骨鉄筋コンクリート) |
この部屋の取扱い不動産会社
| 会社名 | NAVI HOME(株)恵比寿2nd(SUUMO経由) | ||
|---|---|---|---|
| 所在地 | 東京都渋谷区広尾1-1-39 恵比寿プライムスクエアタワー3階 | 交通 | - |
| 営業時間 | 9:00~21:00 | 定休日 | 定休日なし |
| 免許番号 | 東京都知事107196 | 取引態様 | 仲介 |
| 不動産会社管理番号 | 100473092695 | 当社管理番号 | 89 |
| 所属団体 | (公社)東京都宅地建物取引業協会会員 | ||
| 公正取引協議会 | (公社)首都圏不動産公正取引協議会加盟 | ||
| 取扱い物件情報 | 物件詳細へ | ||
※各種情報と現状に差異がある場合は、現状優先となります。問い合わせをすることで、より詳しい条件、情報を確認する事ができます。
提供:NAVI HOME(株)恵比寿2nd(SUUMO経由)
この物件が気になったら掲載期限まであと10日
メゾン・ド・ヴィレ麻布台に条件(家賃・エリア)が近い物件一覧
| 写真 | 家賃 管理費等 | 敷金 礼金 | 間取り 専有面積 | 築年数 | 最寄り駅 所在地 | キープ | 詳細 |
|---|---|---|---|---|---|---|---|
マンション ハイツ髙沢(1LDK/2階) | |||||||
![]() | 13.5万円 5,000円 | 13.5万円 27万円 | 1LDK 32.89m2 | 築7年 | 東急池上線 旗の台駅 徒歩5分 東急大井町線 荏原町駅 徒歩6分 横須賀線 西大井駅 徒歩21分 東京都品川区旗の台4丁目 | 詳細を見る | |
マンション レジディア大井町Ⅱ(ワンルーム/9階) | |||||||
![]() | 15.6万円 2万円 | なし なし | ワンルーム 30.24m2 | 築19年 | 東急大井町線 大井町駅 徒歩5分 東京都品川区大井1丁目 | 詳細を見る | |
マンション レジディア神田岩本町(ワンルーム/4階) | |||||||
![]() | 16.2万円 2万円 | 16.2万円 16.2万円 | ワンルーム 30.97m2 | 築22年 | 東京都新宿線 岩本町駅 徒歩3分 東京地下鉄日比谷線 秋葉原駅 徒歩5分 中央本線 神田駅(東京) 徒歩7分 東京都千代田区岩本町2丁目 | 詳細を見る | |
マンション パークキューブ神田(1K/10階) | |||||||
![]() | 15.3万円 1万円 | 15.3万円 なし | 1K 30.7m2 | 築21年 | 東京都新宿線 岩本町駅 徒歩3分 中央本線 神田駅(東京) 徒歩3分 山手線 秋葉原駅 徒歩6分 東京都千代田区神田須田町2丁目 | 詳細を見る | |
マンション ライジングプレイス秋葉原(1K/4階) | |||||||
![]() | 13.5万円 1.5万円 | なし 13.5万円 | 1K 30.29m2 | 築19年 | 東京都新宿線 岩本町駅 徒歩4分 山手線 秋葉原駅 徒歩9分 総武本線 馬喰町駅 徒歩9分 東京都千代田区東神田2丁目 | 詳細を見る | |
マンション アーバネックス森下ウエスト(1DK/10階) | |||||||
![]() | 14.2万円 1万円 | 14.2万円 なし | 1DK 25.77m2 | 築3年 | 東京都新宿線 森下駅(東京) 徒歩6分 東京都江東区新大橋2丁目 | 詳細を見る | |
一戸建て 東京都新宿線 大島駅(東京) 徒歩7分 築77年(1DK) | |||||||
![]() | 15.8万円 1万円 | 15.8万円 15.8万円 | 1DK 27.91m2 | 築77年 | 東京都新宿線 大島駅(東京) 徒歩7分 東京都新宿線 西大島駅 徒歩7分 総武・中央緩行線 亀戸駅 徒歩11分 東京都江東区大島3丁目 | 詳細を見る | |
マンション レジディア神田東(ワンルーム/3階) | |||||||
![]() | 15.5万円 2万円 | なし なし | ワンルーム 30.13m2 | 築23年 | 東京地下鉄日比谷線 小伝馬町駅 徒歩5分 山手線 神田駅(東京) 徒歩6分 東京都新宿線 岩本町駅 徒歩6分 東京都千代田区岩本町1丁目 | 詳細を見る | |








