賃貸マンション
タイホープラザ千駄木の賃貸物件情報(1K/2階)
| 家賃 | 管理費等 | 敷金 | 礼金 | 間取り | 専有面積 |
|---|---|---|---|---|---|
| 6万円 | なし | 6万円 | 6万円 | 1K | 17.41m2 |
入居決定でお祝い金最大100,000円
- 保証金
- -
- 償却・敷引
- 6万円
- 築年数
- 築29年
- 所在階
- 2階
- 向き
- -
Point
◎クリエイト池袋店≪池袋駅徒歩1分≫弊社では初期費用クレジット決済・分割支払い可能です!★私たちはお客様側に立って最大限にお手伝いをさせていただきます。審査等ご不安な方もお気軽にお問い合わせください!
提供:(株)クリエイト池袋店(SUUMO経由)

詳細情報 タイホープラザ千駄木
物件紹介
タイホープラザ千駄木はJR山手線西日暮里駅から徒歩9分にあり、駅近で通勤通学に便利なマンションです。
このお部屋は2階以上に位置しているので、通行人や周囲の住人からの視線が気になりにくく、防犯面でも安心。建物のエントランスはオートロックがついており、インターホンにはTVモニタもついているため、相手の顔を確認してから来客対応することができます。
フローリングのお部屋なのでお掃除もラクラク。
通信設備面では、インターネット接続が可能です。また、CATVにも対応しているので、おうち時間も充実するでしょう(別途工事、契約料が必要な場合あり)。
建物にはエレベーターがついているので、重い荷物があっても安心。共用部には宅配ボックスが設定されているので、不在の時にも荷物を受け取ることができます。
このお部屋は2階以上に位置しているので、通行人や周囲の住人からの視線が気になりにくく、防犯面でも安心。建物のエントランスはオートロックがついており、インターホンにはTVモニタもついているため、相手の顔を確認してから来客対応することができます。
フローリングのお部屋なのでお掃除もラクラク。
通信設備面では、インターネット接続が可能です。また、CATVにも対応しているので、おうち時間も充実するでしょう(別途工事、契約料が必要な場合あり)。
建物にはエレベーターがついているので、重い荷物があっても安心。共用部には宅配ボックスが設定されているので、不在の時にも荷物を受け取ることができます。
お金・契約の情報
※「-」と表示されているものは、実際は料金が発生するものもございます。詳細はお問い合わせください。
| 家賃 | 6万円 | 管理費・共益費 | なし |
|---|---|---|---|
| 敷金 | 6万円 | 礼金 | 6万円 |
| 入居決定でお祝い金最大100,000円 | |||
| 保証金 | - | 償却・敷引 | 6万円 |
| 住宅保険料 | - | 更新料 | - |
| 保証会社利用 | 必須 | 保証会社名 | - |
| 保証会社費用 | - | 保証会社備考 | 保証会社利用必 詳細はお問い合わせください。 |
| 契約形態 | - | 契約期間 | - |
| 入居・引渡期間 | 相談 | 現況 | - |
| 契約備考 | ファミリーマート田端一丁目店まで261m/ユニバーサルドラッグ動坂店まで248m/◎クリエイト池袋店(池袋駅東口1分)。分譲賃貸・オートロック・全自動洗濯機・ミニ冷蔵庫・2口ガスコンロ・宅配ボックス・駐輪場。退去時の清掃費用、原状回復費用は借主負担。 合計5.17万円(内訳:契約事務手数料11000円/カギ交換費用24200円/24サポート16500円) 1K 普通借家2年 損保【2.05万円2年】 バルコニー、エアコン、ガスコンロ対応、クロゼット、フローリング、TVインターホン、オートロック、室内洗濯置、シューズボックス、エレベーター、2口コンロ、駐輪場、宅配ボックス、CATV、外壁タイル張り、防犯カメラ、照明付、分譲賃貸、保証人不要、冷蔵庫、敷金1ヶ月、2沿線利用可、ネット専用回線、洗濯機、エアコン全室、保証金不要、24時間換気システム、家電付、3駅以上利用可、駅徒歩10分以内、24時間ゴミ出し可、敷地内ごみ置き場、都市ガス、玄関収納、高速ネット対応、礼金1ヶ月、初期費用カード決済可 | ||
部屋の情報
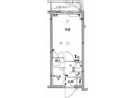
| 間取り | 1K | 専有面積 | 17.41m2 |
|---|---|---|---|
| 所在階 / 向き | 2階 / - | バルコニー面積 | - |
| 水道 / ガス | - | ||
| 設備 | 2階以上、オートロック、テレビドアホン、宅配ボックス、インターネット対応、エアコン、エレベーター、バルコニー、フローリング、2口コンロ、コンロ:ガス、CATV、洗濯機:室内 | ||
| 当社物件ID | 160109985 | ||
建物の情報
| 建物名 | タイホープラザ千駄木 | ||
|---|---|---|---|
| 所在地 | 東京都文京区千駄木 | ||
| 交通 | JR山手線 西日暮里駅 徒歩9分 JR山手線 田端駅 徒歩9分 東京メトロ千代田線 千駄木駅 徒歩9分 | ||
| 階数 | 14階建 | 総戸数 | 86戸 |
| 築年月 | 1997年07月 / 築29年 | エレベーター | あり |
| 駐車場 | 近隣 500m30000円 | バイク置き場 | - |
| 駐輪場 | あり | 管理人/管理会社 | - |
| 周辺環境 | その他 アトレヴィ田端(ショッピングセンター)まで792m その他 肉のハナマサ動坂店(スーパー)まで157m その他 コープ田端店(スーパー)まで203m その他 サミットストア千駄木店(スーパー)まで322m その他 まいばすけっと千駄木3丁目店(スーパー)まで505m その他 セブンイレブン文京本駒込4丁目店(コンビニ)まで265m | ||
| 建物種別 | マンション | 建物構造 | SRC(鉄骨鉄筋コンクリート) |
この部屋の取扱い不動産会社
| 会社名 | (株)クリエイト池袋店(SUUMO経由) | ||
|---|---|---|---|
| 所在地 | 東京都豊島区南池袋1-21-7 10階 | 交通 | - |
| 営業時間 | 10:00~19:00 | 定休日 | 定休日なし、年末年始 |
| 免許番号 | 東京都知事102042 | 取引態様 | 仲介 |
| 不動産会社管理番号 | 100479872703 | 当社管理番号 | 89 |
| 所属団体 | (公社)東京都宅地建物取引業協会会員 | ||
| 公正取引協議会 | (公社)首都圏不動産公正取引協議会加盟 | ||
| 取扱い物件情報 | 物件詳細へ | ||
※各種情報と現状に差異がある場合は、現状優先となります。問い合わせをすることで、より詳しい条件、情報を確認する事ができます。
提供:(株)クリエイト池袋店(SUUMO経由)
この物件が気になったら掲載期限まであと10日
タイホープラザ千駄木に条件(家賃・エリア)が近い物件一覧
| 写真 | 家賃 管理費等 | 敷金 礼金 | 間取り 専有面積 | 築年数 | 最寄り駅 所在地 | キープ | 詳細 |
|---|---|---|---|---|---|---|---|
マンション RIENROHMANSION(1K/5階) | |||||||
![]() | 8.4万円 6,000円 | 4.73万円 8.4万円 | 1K 27.02m2 | 築5年 | 東武伊勢崎・大師線 浅草駅(東武・都営・メトロ) 徒歩16分 東京地下鉄銀座線 浅草駅(東武・都営・メトロ) 徒歩18分 東京都台東区今戸2丁目 | 詳細を見る | |
マンション メゾンド町屋(1K/4階) | |||||||
![]() | 9.3万円 5,000円 | なし なし | 1K 18.03m2 | 築1年 | 京成電鉄本線 新三河島駅 徒歩2分 東京地下鉄千代田線 町屋駅 徒歩7分 常磐線 三河島駅 徒歩9分 東京都荒川区荒川5丁目 | 詳細を見る | |
マンション エスコート東大前(1K/6階) | |||||||
![]() | 8.4万円 9,000円 | 8.4万円 8.4万円 | 1K 20.68m2 | 築26年 | 東京メトロ南北線 本駒込駅 徒歩2分 都営三田線 白山駅(東京) 徒歩5分 東京メトロ南北線 東大前駅 徒歩7分 東京都文京区向丘 | 詳細を見る | |
マンション アーバイル文京白山(1K/2階) | |||||||
![]() | 9.4万円 5,000円 | なし なし | 1K 17.28m2 | 築22年 | 東京都三田線 千石駅 徒歩2分 東京地下鉄南北線 本駒込駅 徒歩11分 山手線 巣鴨駅 徒歩12分 東京都文京区白山5丁目 | 詳細を見る | |
マンション VIDA017(1K/3階) | |||||||
![]() | 9.7万円 1万円 | 9.7万円 9.7万円 | 1K 24.77m2 | 築24年 | 総武・中央緩行線 浅草橋駅 徒歩5分 東京都新宿線 岩本町駅 徒歩6分 山手線 秋葉原駅 徒歩7分 東京都千代田区東神田2丁目 | 詳細を見る | |
マンション BASE東上野(ワンルーム/2階) | |||||||
![]() | 8.5万円 5,000円 | 8.5万円 8.5万円 | ワンルーム 18.76m2 | 築9年 | 京浜東北・根岸線 上野駅 徒歩8分 東京地下鉄銀座線 上野駅 徒歩8分 東京都台東区東上野6丁目 | 詳細を見る | |
マンション ヴェルステージ秋葉原イースト(1K/2階) | |||||||
![]() | 9万円 1万円 | 9万円 9万円 | 1K 25.5m2 | 築18年 | 総武・中央緩行線 浅草橋駅 徒歩7分 東京都浅草線 蔵前駅 徒歩9分 山手線 秋葉原駅 徒歩14分 東京都台東区鳥越2丁目 | 詳細を見る | |
マンション 日神パレステージ御徒町Ⅱ(1K/6階) | |||||||
![]() | 8.6万円 9,000円 | 8.6万円 8.6万円 | 1K 24.98m2 | 築27年 | 東京都大江戸線 新御徒町駅 徒歩5分 東京地下鉄銀座線 稲荷町駅(東京) 徒歩6分 山手線 上野駅 徒歩13分 東京都台東区元浅草3丁目 | 詳細を見る | |









