賃貸マンション
アビテ曙橋の賃貸物件情報(ワンルーム/7階)
| 家賃 | 管理費等 | 敷金 | 礼金 | 間取り | 専有面積 |
|---|---|---|---|---|---|
| 12.7万円 | 1.5万円 | 12.7万円 | 25.4万円 | ワンルーム | 31.13m2 |
入居決定でお祝い金最大100,000円
- 保証金
- -
- 償却・敷引
- 12.7万円
- 築年数
- 築25年
- 所在階
- 7階
- 向き
- 南東
Point
【お部屋探しはクレアスレント】★日常生活に便利なコンビニ・スーパーも近く生活環境良好★インターネットで紹介していない類似物件も多数ご案内!お客様の要望にお応えし、快適で素敵なお部屋をご紹介いたします!
提供:(株)クレアスレント横浜店(SUUMO経由)

詳細情報 アビテ曙橋
物件紹介
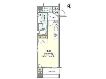
アビテ曙橋は都営新宿線曙橋駅から徒歩4分にあり、駅近で通勤通学に便利なマンションです。
このお部屋は2階以上に位置しているので、通行人や周囲の住人からの視線が気になりにくく、防犯面でも安心。建物のエントランスはオートロックがついており、インターホンにはTVモニタもついているため、相手の顔を確認してから来客対応することができます。
人気の南向き・フローリングのお部屋。角部屋でもあるため、周囲の居住者の生活音も気になりにくい場所です。キッチンはシステムキッチン仕様になっていますので、お料理好きの方にもぴったり。バス・トイレは別なので、のんびりお風呂タイムも楽しめるでしょう。また、雨の日でも浴室乾燥機を使えば、お洗濯も問題ありません。
建物にはエレベーターがついているので、重い荷物があっても安心。共用部には宅配ボックスが設定されているので、不在の時にも荷物を受け取ることができます。
このお部屋は2階以上に位置しているので、通行人や周囲の住人からの視線が気になりにくく、防犯面でも安心。建物のエントランスはオートロックがついており、インターホンにはTVモニタもついているため、相手の顔を確認してから来客対応することができます。
人気の南向き・フローリングのお部屋。角部屋でもあるため、周囲の居住者の生活音も気になりにくい場所です。キッチンはシステムキッチン仕様になっていますので、お料理好きの方にもぴったり。バス・トイレは別なので、のんびりお風呂タイムも楽しめるでしょう。また、雨の日でも浴室乾燥機を使えば、お洗濯も問題ありません。
建物にはエレベーターがついているので、重い荷物があっても安心。共用部には宅配ボックスが設定されているので、不在の時にも荷物を受け取ることができます。
お金・契約の情報
※「-」と表示されているものは、実際は料金が発生するものもございます。詳細はお問い合わせください。
| 家賃 | 12.7万円 | 管理費・共益費 | 1.5万円 |
|---|---|---|---|
| 敷金 | 12.7万円 | 礼金 | 25.4万円 |
| 入居決定でお祝い金最大100,000円 | |||
| 保証金 | - | 償却・敷引 | 12.7万円 |
| 住宅保険料 | - | 更新料 | - |
| 保証会社利用 | 必須 | 保証会社名 | - |
| 保証会社費用 | - | 保証会社備考 | 保証会社利用必 初回50% ※1年毎10 000円※別途収納手数料がかかる場合あり |
| 契約形態 | - | 契約期間 | - |
| 入居・引渡期間 | 相談 | 現況 | - |
| 契約備考 | 仕様・図面・写真等に相違があった場合は現況を優先します。短期違約金:1年未満の解約は総賃料2ヶ月分 合計6.27万円(内訳:抗菌費用1.32万円駆付けサポート241.65万円鍵交換代3.3万円) 更新料 新賃料1.00ヶ月分 ワンルーム 普通借家2年 損保【要】 バストイレ別、バルコニー、エアコン、ガスコンロ対応、クロゼット、フローリング、TVインターホン、浴室乾燥機、オートロック、室内洗濯置、シューズボックス、システムキッチン、角住戸、脱衣所、エレベーター、洗面所独立、洗面化粧台、駐輪場、宅配ボックス、2面採光、3口以上コンロ、防犯カメラ、分譲賃貸、グリル付、保証人不要、浴室に窓、3駅以上利用可、3沿線以上利用可、24時間ゴミ出し可、敷地内ごみ置き場、都市ガス | ||
部屋の情報
| 間取り | ワンルーム | 専有面積 | 31.13m2 |
|---|---|---|---|
| 所在階 / 向き | 7階 / 南東 | バルコニー面積 | - |
| 水道 / ガス | - | ||
| 設備 | バス・トイレ別、2階以上、オートロック、テレビドアホン、宅配ボックス、浴室乾燥機、システムキッチン、エアコン、エレベーター、南向き、角部屋、バルコニー、フローリング、洗髪洗面化粧台、2口コンロ、コンロ:ガス、洗濯機:室内 | ||
| 当社物件ID | 22042290 | ||
建物の情報
| 建物名 | アビテ曙橋 | ||
|---|---|---|---|
| 所在地 | 東京都新宿区住吉町 | ||
| 交通 | 都営新宿線 曙橋駅 徒歩4分 東京メトロ丸ノ内線 四谷三丁目駅 徒歩7分 都営大江戸線 若松河田駅 徒歩16分 | ||
| 階数 | 14階建 | 総戸数 | 40戸 |
| 築年月 | 2001年12月 / 築25年 | エレベーター | あり |
| 駐車場 | なし | バイク置き場 | - |
| 駐輪場 | あり | 管理人/管理会社 | - |
| 周辺環境 | その他 セブンイレブン 新宿曙橋駅北店(コンビニ)まで296m その他 まいばすけっと 曙橋駅前店(スーパー)まで327m その他 ローソンストア100 LS新宿住吉町店(コンビニ)まで331m その他 三徳住吉店(スーパー)まで270m その他 てんや 曙橋店(飲食店)まで268m その他 すき家 曙橋店(飲食店)まで363m | ||
| 建物種別 | マンション | 建物構造 | SRC(鉄骨鉄筋コンクリート) |
この部屋の取扱い不動産会社
| 会社名 | (株)クレアスレント横浜店(SUUMO経由) | ||
|---|---|---|---|
| 所在地 | 神奈川県横浜市神奈川区台町 17-1 マストビル7階 | 交通 | - |
| 営業時間 | 10時~19時 | 定休日 | 毎週水曜日・GW・夏季・年末年 |
| 免許番号 | 国土交通大臣10473 | 取引態様 | 仲介 |
| 不動産会社管理番号 | 100486529925 | 当社管理番号 | 89 |
| 所属団体 | (公社)東京都宅地建物取引業協会会員 | ||
| 公正取引協議会 | (公社)首都圏不動産公正取引協議会加盟 | ||
| 取扱い物件情報 | 物件詳細へ | ||
※各種情報と現状に差異がある場合は、現状優先となります。問い合わせをすることで、より詳しい条件、情報を確認する事ができます。
提供:(株)クレアスレント横浜店(SUUMO経由)
この物件が気になったら掲載期限まであと11日
アビテ曙橋に条件(家賃・エリア)が近い物件一覧
| 写真 | 家賃 管理費等 | 敷金 礼金 | 間取り 専有面積 | 築年数 | 最寄り駅 所在地 | キープ | 詳細 |
|---|---|---|---|---|---|---|---|
マンション ザ・パークハビオ新宿(ワンルーム/4階) | |||||||
![]() | 15.3万円 1万円 | 15.3万円 なし | ワンルーム 25.12m2 | 築9年 | 東京メトロ副都心線 新宿三丁目駅 徒歩7分 東京メトロ丸ノ内線 新宿御苑前駅 徒歩8分 JR山手線 新宿駅 徒歩13分 東京都新宿区新宿 | 詳細を見る | |
マンション プライムメゾン早稲田通(ワンルーム/9階) | |||||||
![]() | 15.5万円 1万円 | 15.5万円 なし | ワンルーム 25m2 | 築6年 | 東京メトロ東西線 早稲田駅(メトロ) 徒歩3分 東京メトロ東西線 神楽坂駅 徒歩11分 東京メトロ有楽町線 江戸川橋駅 徒歩13分 東京都新宿区早稲田町 | 詳細を見る | |
マンション アトリオフラッツ西池袋(ワンルーム/2階) | |||||||
![]() | 11.2万円 1万円 | 11.2万円 なし | ワンルーム 21.3m2 | 築1年 | 西武池袋・豊島線 椎名町駅 徒歩8分 山手線 池袋駅 徒歩15分 東京都豊島区西池袋4丁目 | 詳細を見る | |
マンション 妙義坂マンション(1LDK/12階) | |||||||
![]() | 18万円 なし | 18万円 18万円 | 1LDK 41.49m2 | 築54年 | JR山手線 駒込駅 徒歩4分 JR山手線 巣鴨駅 徒歩12分 東京都豊島区駒込 | 詳細を見る | |
マンション レジディア中落合(ワンルーム/2階) | |||||||
![]() | 10.4万円 1.5万円 | なし なし | ワンルーム 24.09m2 | 築18年 | 西武新宿線 下落合駅(東京) 徒歩5分 都営大江戸線 中井駅 徒歩7分 東京メトロ東西線 落合駅 徒歩11分 東京都新宿区中落合 | 詳細を見る | |
マンション ZOOM信濃町(1DK/7階) | |||||||
![]() | 18.6万円 1.5万円 | 18.6万円 18.6万円 | 1DK 31.14m2 | 築1年 | 東京地下鉄丸ノ内線 四谷三丁目駅 徒歩5分 東京都新宿区左門町 | 詳細を見る | |
アパート CE LA VI 中落合(1LDK/1階) | |||||||
![]() | 12.2万円 3,000円 | なし 12.2万円 | 1LDK 34.19m2 | 築4年 | 西武新宿線 下落合駅(東京) 徒歩9分 西武池袋線 椎名町駅 徒歩11分 西武新宿線 中井駅 徒歩14分 東京都新宿区中落合 | 詳細を見る | |







/105x80-f1-q70-wp1)
