賃貸アパート
ブランドール小日向Iの賃貸物件情報(1DK/2階)
| 家賃 | 管理費等 | 敷金 | 礼金 | 間取り | 専有面積 |
|---|---|---|---|---|---|
| 6.5万円 | なし | 6.5万円 | 6.5万円 | 1DK | 20m2 |
入居決定でお祝い金最大100,000円
- 保証金
- -
- 償却・敷引
- -
- 築年数
- 築43年
- 所在階
- 2階
- 向き
- 西
Point
当物件は初期費用分割払い可(クレジットカード決済も可)/お客様のご希望に合わせた方法(店頭、オンライン等)で物件をご提案いたします。初期費用のお見積りや入居希望日のご相談もお気軽にお問い合わせください
提供:アエラス駒込店 (株)アエラス.FR(SUUMO経由)

詳細情報 ブランドール小日向I
物件紹介
ブランドール小日向Iは東京メトロ丸ノ内線茗荷谷駅から徒歩6分にあり、駅近で通勤通学に便利なアパートです。
このお部屋は2階以上に位置しているので、通行人や周囲の住人からの視線が気になりにくく、防犯面でも安心です。
フローリングのお部屋なのでお掃除もラクラク。
通信設備面では、インターネット接続が可能です(別途工事、契約料が必要な場合あり)。
このお部屋は2階以上に位置しているので、通行人や周囲の住人からの視線が気になりにくく、防犯面でも安心です。
フローリングのお部屋なのでお掃除もラクラク。
通信設備面では、インターネット接続が可能です(別途工事、契約料が必要な場合あり)。
お金・契約の情報
※「-」と表示されているものは、実際は料金が発生するものもございます。詳細はお問い合わせください。
| 家賃 | 6.5万円 | 管理費・共益費 | なし |
|---|---|---|---|
| 敷金 | 6.5万円 | 礼金 | 6.5万円 |
| 入居決定でお祝い金最大100,000円 | |||
| 保証金 | - | 償却・敷引 | - |
| 住宅保険料 | - | 更新料 | - |
| 保証会社利用 | 必須 | 保証会社名 | - |
| 保証会社費用 | - | 保証会社備考 | 保証会社利用必 初回:賃料等の50%、1年毎に保証委託更新料:1.2万円 |
| 契約形態 | - | 契約期間 | - |
| 入居・引渡期間 | 相談 | 現況 | - |
| 契約備考 | 東京地下鉄有楽町線護国寺駅徒歩19分/石原医院まで567m/文京水道郵便局まで501m/住宅総合保険(2年分22000円) 要加入/24時間緊急サポート (2年分16500円)要加入/駐輪場代借主負担(使用時)/鍵交換代借主負担/室内清掃費用借主負担/月額引落送金手数料 月額660円 合計1.65万円(内訳:24時間緊急サポート(2年分)16500円) 1DK 普通借家2年 損保【要】 バルコニー、エアコン、ガスコンロ対応、フローリング、駐輪場、光ファイバー、敷金1ヶ月、保証金不要、3駅以上利用可、3沿線以上利用可、駅徒歩10分以内、都市ガス、高速ネット対応、礼金1ヶ月、初期費用カード決済可 | ||
部屋の情報
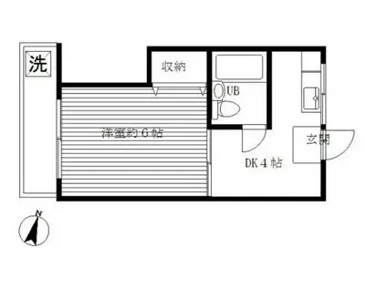
| 間取り | 1DK | 専有面積 | 20m2 |
|---|---|---|---|
| 所在階 / 向き | 2階 / 西 | バルコニー面積 | - |
| 水道 / ガス | - | ||
| 設備 | 2階以上、インターネット対応、エアコン、バルコニー、フローリング、コンロ:ガス | ||
| 当社物件ID | 159753884 | ||
建物の情報
| 建物名 | ブランドール小日向I | ||
|---|---|---|---|
| 所在地 | 東京都文京区小日向 | ||
| 交通 | 東京メトロ丸ノ内線 茗荷谷駅 徒歩6分 東京メトロ有楽町線 江戸川橋駅 徒歩8分 東京メトロ東西線 神楽坂駅 徒歩15分 | ||
| 階数 | 2階建 | 総戸数 | - |
| 築年月 | 1983年01月 / 築43年 | エレベーター | - |
| 駐車場 | 近隣 136m33000円 | バイク置き場 | - |
| 駐輪場 | あり | 管理人/管理会社 | - |
| 周辺環境 | その他 まいばすけっと 茗荷谷駅東店(スーパー)まで551m その他 ヤマザキショップ小日向三河屋店(コンビニ)まで65m その他 スギ薬局 茗荷谷店(ドラッグストア)まで800m その他 TSUTAYA茗荷谷店(レンタルビデオ)まで635m その他 マイカリー食堂 茗荷谷店(飲食店)まで632m その他 貞静学園短期大学(大学・短大)まで347m | ||
| 建物種別 | アパート | 建物構造 | 木造 |
この部屋の取扱い不動産会社
| 会社名 | アエラス駒込店 (株)アエラス.FR(SUUMO経由) | ||
|---|---|---|---|
| 所在地 | 東京都豊島区駒込1-42-5 EK駒込ビル 1階・2階 | 交通 | - |
| 営業時間 | 10:00~19:00(時間外対応出来る場合有り) | 定休日 | 毎週水曜日 |
| 免許番号 | 国土交通大臣10206 | 取引態様 | 仲介 |
| 不動産会社管理番号 | 100473367696 | 当社管理番号 | 89 |
| 所属団体 | (公社)全日本不動産協会東京都本部会員 | ||
| 公正取引協議会 | (公社)首都圏不動産公正取引協議会加盟 | ||
| 取扱い物件情報 | 物件詳細へ | ||
※各種情報と現状に差異がある場合は、現状優先となります。問い合わせをすることで、より詳しい条件、情報を確認する事ができます。
提供:アエラス駒込店 (株)アエラス.FR(SUUMO経由)
この物件が気になったら掲載期限まであと10日
ブランドール小日向Iに条件(家賃・エリア)が近い物件一覧
| 写真 | 家賃 管理費等 | 敷金 礼金 | 間取り 専有面積 | 築年数 | 最寄り駅 所在地 | キープ | 詳細 |
|---|---|---|---|---|---|---|---|
マンション ヒルサイドテラス文京湯島(ワンルーム/4階) | |||||||
![]() | 9.2万円 5,000円 | なし なし | ワンルーム 17.07m2 | 築5年 | 東京地下鉄千代田線 湯島駅 徒歩2分 東京地下鉄銀座線 末広町駅(東京) 徒歩9分 山手線 御徒町駅 徒歩9分 東京都文京区湯島3丁目 | 詳細を見る | |
マンション 菱和パレス御茶ノ水駿河台(1K/9階) | |||||||
![]() | 10.5万円 9,000円 | 10.5万円 10.5万円 | 1K 22.41m2 | 築26年 | 東京都新宿線 神保町駅 徒歩5分 東京都新宿線 小川町駅(東京) 徒歩5分 東京地下鉄丸ノ内線 淡路町駅 徒歩5分 東京都千代田区神田錦町3丁目 | 詳細を見る | |
マンション ワンリーフ(1K/1階) | |||||||
![]() | 8.8万円 4,600円 | なし 13.2万円 | 1K 25.5m2 | 築10年 | 東京地下鉄日比谷線 三ノ輪駅 徒歩4分 東京地下鉄日比谷線 入谷駅(東京) 徒歩10分 つくばエクスプレス 浅草駅(つくばEXP) 徒歩17分 東京都台東区竜泉2丁目 | 詳細を見る | |
マンション ガラステーション岩本町ノース(1K/11階) | |||||||
![]() | 9.5万円 9,000円 | 9.5万円 19万円 | 1K 22.8m2 | 築20年 | 東京都新宿線 岩本町駅 徒歩2分 山手線 秋葉原駅 徒歩5分 東京地下鉄日比谷線 小伝馬町駅 徒歩8分 東京都千代田区岩本町3丁目 | 詳細を見る | |
マンション インペリアルお茶の水(ワンルーム/3階) | |||||||
![]() | 7.6万円 8,000円 | なし 7.6万円 | ワンルーム 14.84m2 | 築46年 | 東京都新宿線 小川町駅(東京) 徒歩5分 東京都三田線 神保町駅 徒歩5分 東京地下鉄半蔵門線 神保町駅 徒歩6分 東京都千代田区神田小川町3丁目 | 詳細を見る | |
マンション 浅草参番館(1K/3階) | |||||||
![]() | 9.9万円 1万円 | 9.9万円 9.9万円 | 1K 34.26m2 | 築26年 | 東京地下鉄銀座線 稲荷町駅(東京) 徒歩1分 つくばエクスプレス 新御徒町駅 徒歩7分 山手線 上野駅 徒歩9分 東京都台東区元浅草2丁目 | 詳細を見る | |
マンション ヴァンクール(1K/4階) | |||||||
![]() | 10.5万円 7,000円 | 10.5万円 10.5万円 | 1K 26.25m2 | 築19年 | 東京地下鉄丸ノ内線 茗荷谷駅 徒歩9分 東京都三田線 千石駅 徒歩12分 東京地下鉄有楽町線 護国寺駅 徒歩14分 東京都文京区大塚3丁目 | 詳細を見る | |
マンション クレイシア入谷(1K/9階) | |||||||
![]() | 9.8万円 1.5万円 | 9.8万円 9.8万円 | 1K 25.94m2 | 築8年 | 東京地下鉄日比谷線 入谷駅(東京) 徒歩6分 東京地下鉄日比谷線 三ノ輪駅 徒歩6分 東京都台東区竜泉2丁目 | 詳細を見る | |









