賃貸マンション
エンクレスト博多駅南GRACEの賃貸物件情報(ワンルーム/10階)
| 家賃 | 管理費等 | 敷金 | 礼金 | 間取り | 専有面積 |
|---|---|---|---|---|---|
| 8.5万円 | なし | なし | 17万円 | ワンルーム | 24.76m2 |
入居決定でお祝い金最大100,000円
- 保証金
- -
- 償却・敷引
- -
- 築年数
- 築3年
- 所在階
- 10階
- 向き
- 北西
Point
築浅分譲マンションです★設備も充実しています☆ぜひお早めにお問合せください♪
提供:(株)アクタス(SUUMO経由)

詳細情報 エンクレスト博多駅南GRACE
物件紹介
エンクレスト博多駅南GRACEはJR鹿児島本線博多駅から徒歩14分にあるマンションです。
このお部屋は2階以上に位置しているので、通行人や周囲の住人からの視線が気になりにくく、防犯面でも安心。建物のエントランスはオートロックがついており、インターホンにはTVモニタもついているため、相手の顔を確認してから来客対応することができます。
フローリングのお部屋なのでお掃除もラクラク。室内には人気のウォークインクローゼットがありますので、たくさんの荷物も効率的に収納ができます。キッチンはシステムキッチン仕様になっていますので、お料理好きの方にもぴったり。バス・トイレは別なので、のんびりお風呂タイムも楽しめるでしょう。また、雨の日でも浴室乾燥機を使えば、お洗濯も問題ありません。
通信設備面では、インターネットが無料で使えるので、月々の出費を抑えられるのも魅力です(別途工事等が必要な場合あり)。
建物にはエレベーターがついているので、重い荷物があっても安心。共用部には宅配ボックスが設定されているので、不在の時にも荷物を受け取ることができます。
このお部屋は2階以上に位置しているので、通行人や周囲の住人からの視線が気になりにくく、防犯面でも安心。建物のエントランスはオートロックがついており、インターホンにはTVモニタもついているため、相手の顔を確認してから来客対応することができます。
フローリングのお部屋なのでお掃除もラクラク。室内には人気のウォークインクローゼットがありますので、たくさんの荷物も効率的に収納ができます。キッチンはシステムキッチン仕様になっていますので、お料理好きの方にもぴったり。バス・トイレは別なので、のんびりお風呂タイムも楽しめるでしょう。また、雨の日でも浴室乾燥機を使えば、お洗濯も問題ありません。
通信設備面では、インターネットが無料で使えるので、月々の出費を抑えられるのも魅力です(別途工事等が必要な場合あり)。
建物にはエレベーターがついているので、重い荷物があっても安心。共用部には宅配ボックスが設定されているので、不在の時にも荷物を受け取ることができます。
お金・契約の情報
※「-」と表示されているものは、実際は料金が発生するものもございます。詳細はお問い合わせください。
| 家賃 | 8.5万円 | 管理費・共益費 | なし |
|---|---|---|---|
| 敷金 | なし | 礼金 | 17万円 |
| 入居決定でお祝い金最大100,000円 | |||
| 保証金 | - | 償却・敷引 | - |
| 住宅保険料 | - | 更新料 | - |
| 契約形態 | - | 契約期間 | - |
| 入居・引渡期間 | - | 現況 | - |
| 契約備考 | サニー駅南店まで121m/ファミリーマート博多駅南三丁目まで99m/※間取り・一部写真反転です。写真と現況が異なる場合、現況優先となります。また、同一物件における他の部屋の写真をイメージとして使用している場合があります。 町費:250円 えんくらぶ会費:1100円 ワンルーム 損保【要】 バストイレ別、バルコニー、エアコン、フローリング、TVインターホン、浴室乾燥機、オートロック、室内洗濯置、シューズボックス、システムキッチン、温水洗浄便座、脱衣所、洗面所独立、洗面化粧台、2口コンロ、駐輪場、宅配ボックス、光ファイバー、敷金不要、対面式キッチン、防犯カメラ、ウォークインクロゼット、仲介手数料不要、バイク置場、カードキー、駅まで平坦、ネット使用料不要、眺望良好、24時間換気システム、築3年以内、人感照明センサー、エレベーター2基、3駅以上利用可、3沿線以上利用可、バス停徒歩3分以内、高層階、敷地内ごみ置き場、築5年以内、プロパンガス、洗面所にドア、通風良好 入居日:'26年3月上旬 | ||
部屋の情報
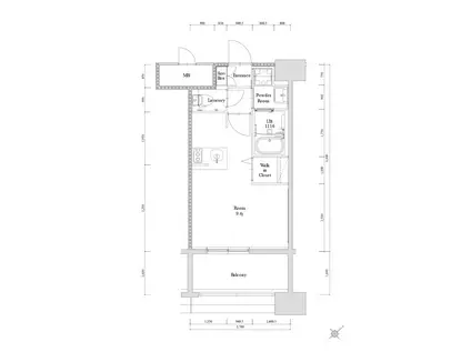
| 間取り | ワンルーム | 専有面積 | 24.76m2 |
|---|---|---|---|
| 所在階 / 向き | 10階 / 北西 | バルコニー面積 | 5m2 |
| 水道 / ガス | - | ||
| 設備 | バス・トイレ別、2階以上、オートロック、テレビドアホン、宅配ボックス、浴室乾燥機、ウォークインクローゼット、インターネット対応、システムキッチン、エアコン、エレベーター、温水洗浄便座、バルコニー、フローリング、洗髪洗面化粧台、2口コンロ、インターネット使用料無料、洗濯機:室内 | ||
| 当社物件ID | 140065368 | ||
建物の情報
| 建物名 | エンクレスト博多駅南GRACE | ||
|---|---|---|---|
| 所在地 | 福岡県福岡市博多区博多駅南 | ||
| 交通 | JR鹿児島本線 博多駅 徒歩14分 地下鉄空港線 東比恵駅 徒歩17分 | ||
| 階数 | 14階建 | 総戸数 | - |
| 築年月 | 2023年10月 / 築3年 | エレベーター | あり |
| 駐車場 | なし | バイク置き場 | あり |
| 駐輪場 | あり | 管理人/管理会社 | - |
| 周辺環境 | その他 サニー駅南店(スーパー)まで121m その他 マルショク駅南店(スーパー)まで194m その他 ファミリーマート博多駅南三丁目店(コンビニ)まで99m その他 セブンイレブン博多瑞穂南店(コンビニ)まで212m その他 ドラッグイレブン博多駅南店(ドラッグストア)まで112m その他 MrMax Select美野島店(ホームセンター)まで618m | ||
| 建物種別 | マンション | 建物構造 | RC(鉄筋コンクリート) |
この部屋の取扱い不動産会社
| 会社名 | (株)アクタス(SUUMO経由) | ||
|---|---|---|---|
| 所在地 | 福岡県福岡市中央区天神3-9-26 アクタス天神セントラルタワー2階 | 交通 | - |
| 営業時間 | 10:00~19:00 | 定休日 | 毎日営業 |
| 免許番号 | 福岡県知事15125 | 取引態様 | 仲介 |
| 不動産会社管理番号 | 100490662762 | 当社管理番号 | 89 |
| 所属団体 | (公社)福岡県宅地建物取引業協会会員 | ||
| 公正取引協議会 | (一社)九州不動産公正取引協議会加盟 | ||
| 取扱い物件情報 | 物件詳細へ | ||
※各種情報と現状に差異がある場合は、現状優先となります。問い合わせをすることで、より詳しい条件、情報を確認する事ができます。
提供:(株)アクタス(SUUMO経由)
この物件が気になったら掲載期限まであと4日
エンクレスト博多駅南GRACEに条件(家賃・エリア)が近い物件一覧
| 写真 | 家賃 管理費等 | 敷金 礼金 | 間取り 専有面積 | 築年数 | 最寄り駅 所在地 | キープ | 詳細 |
|---|---|---|---|---|---|---|---|
アパート 博多南線 博多南駅 徒歩24分 築23年(2LDK/2階) | |||||||
![]() | 6.1万円 なし | なし 6.1万円 | 2LDK 53.5m2 | 築23年 | 博多南線 博多南駅 徒歩24分 鹿児島本線 南福岡駅 徒歩29分 西鉄天神大牟田線 春日原駅 徒歩36分 福岡県春日市大谷3丁目 | 詳細を見る | |
マンション プレスタイル博多サウス(1K/6階) | |||||||
| 6.5万円 3,000円 | なし 6.5万円 | 1K 24.76m2 | 築16年 | 福岡市空港線 博多駅 徒歩10分 福岡市空港線 東比恵駅 徒歩13分 福岡市空港線 祇園駅(福岡) 徒歩20分 福岡県福岡市博多区博多駅南2丁目 | 詳細を見る | ||
アパート セジュールリカーC棟(3LDK/2階) | |||||||
![]() | 6.5万円 なし | なし 6.5万円 | 3LDK 53.73m2 | 築37年 | JR鹿児島本線 大野城駅 徒歩15分 西鉄天神大牟田線 白木原駅 徒歩20分 西鉄天神大牟田線 下大利駅 徒歩33分 福岡県春日市 | 詳細を見る | |
マンション オープンレジデンシャル春日公園(1LDK/6階) | |||||||
![]() | 8.5万円 5,000円 | なし 12.75万円 | 1LDK 34.71m2 | 築1年 | 西鉄天神大牟田線 白木原駅 徒歩14分 JR鹿児島本線 大野城駅 徒歩16分 西鉄天神大牟田線 下大利駅 徒歩20分 福岡県春日市春日公園 | 詳細を見る | |
アパート D-RESIDENCE光丘町A棟 A棟(2LDK/2階) | |||||||
![]() | 12.9万円 6,000円 | なし 25.8万円 | 2LDK 56.85m2 | 新築 | 鹿児島本線 春日駅(福岡) 徒歩8分 鹿児島本線 南福岡駅 徒歩11分 西鉄天神大牟田線 春日原駅 徒歩11分 福岡県福岡市博多区光丘町2丁目 | 詳細を見る | |
マンション スピカ恒星(2LDK/3階) | |||||||
![]() | 6.9万円 2,000円 | なし 13.8万円 | 2LDK 57.75m2 | 築22年 | 博多南線 博多南駅 徒歩23分 鹿児島本線 春日駅(福岡) 徒歩30分 福岡県春日市昇町7丁目 | 詳細を見る | |
マンション レジデンス20(2DK/6階) | |||||||
| 9.95万円 6,500円 | なし なし | 2DK 45.24m2 | 築20年 | 福岡市空港線 東比恵駅 徒歩7分 福岡市空港線 博多駅 徒歩21分 福岡市空港線 福岡空港駅 徒歩31分 福岡県福岡市博多区豊1丁目 | 詳細を見る | ||
マンション LANDIC K104(1LDK/12階) | |||||||
| 10.1万円 1.1万円 | なし 10.1万円 | 1LDK 34.95m2 | 築8年 | 福岡市箱崎線 呉服町駅(福岡) 徒歩10分 福岡市空港線 中洲川端駅 徒歩13分 福岡市空港線 天神駅 徒歩16分 福岡県福岡市博多区神屋町 | 詳細を見る | ||






