賃貸マンション
コンフォリア・リヴ大崎の賃貸物件情報(1DK/3階)
| 家賃 | 管理費等 | 敷金 | 礼金 | 間取り | 専有面積 |
|---|---|---|---|---|---|
| 15.7万円 | 1万円 | 15.7万円 | なし | 1DK | 25.11m2 |
入居決定でお祝い金最大100,000円
- 保証金
- -
- 償却・敷引
- -
- 築年数
- 築1年
- 所在階
- 3階
- 向き
- 東
Point
室内見学承ります・お客様のご都合に合わせてオンラインまたはお近くの店舗でご提案可・初期費用分割払い可・クレジットカード利用可・引越業者割引・初期費用のお見積や入居日のご相談もお気軽にお問合せください
提供:NAVI HOME(株)恵比寿店(SUUMO経由)

詳細情報 コンフォリア・リヴ大崎
物件紹介
コンフォリア・リヴ大崎は東急大井町線下神明駅から徒歩8分にあり、駅近で通勤通学に便利なマンションです。
このお部屋は2階以上に位置しているので、通行人や周囲の住人からの視線が気になりにくく、防犯面でも安心。建物のエントランスはオートロックがついており、インターホンにはTVモニタもついているため、相手の顔を確認してから来客対応することができます。
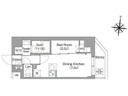
フローリングのお部屋なのでお掃除もラクラク。室内には人気のウォークインクローゼットがありますので、たくさんの荷物も効率的に収納ができます。キッチンはシステムキッチン仕様になっていますので、お料理好きの方にもぴったり。バス・トイレは別なので、のんびりお風呂タイムも楽しめるでしょう。また、雨の日でも浴室乾燥機を使えば、お洗濯も問題ありません。
通信設備面では、インターネットが無料で使えるので、月々の出費を抑えられるのも魅力です。また、BSアンテナ・CSアンテナもありますので、おうち時間も充実するでしょう(別途工事、BS・CSの契約料等が必要な場合あり)。
建物にはエレベーターがついているので、重い荷物があっても安心。共用部には宅配ボックスが設定されているので、不在の時にも荷物を受け取ることができます。また、ペット飼育の相談ができますので、あなたの大切な家族の一員も快適に暮らせるか、ぜひ確認してみてください。
このお部屋は2階以上に位置しているので、通行人や周囲の住人からの視線が気になりにくく、防犯面でも安心。建物のエントランスはオートロックがついており、インターホンにはTVモニタもついているため、相手の顔を確認してから来客対応することができます。
フローリングのお部屋なのでお掃除もラクラク。室内には人気のウォークインクローゼットがありますので、たくさんの荷物も効率的に収納ができます。キッチンはシステムキッチン仕様になっていますので、お料理好きの方にもぴったり。バス・トイレは別なので、のんびりお風呂タイムも楽しめるでしょう。また、雨の日でも浴室乾燥機を使えば、お洗濯も問題ありません。
通信設備面では、インターネットが無料で使えるので、月々の出費を抑えられるのも魅力です。また、BSアンテナ・CSアンテナもありますので、おうち時間も充実するでしょう(別途工事、BS・CSの契約料等が必要な場合あり)。
建物にはエレベーターがついているので、重い荷物があっても安心。共用部には宅配ボックスが設定されているので、不在の時にも荷物を受け取ることができます。また、ペット飼育の相談ができますので、あなたの大切な家族の一員も快適に暮らせるか、ぜひ確認してみてください。
お金・契約の情報
※「-」と表示されているものは、実際は料金が発生するものもございます。詳細はお問い合わせください。
| 家賃 | 15.7万円 | 管理費・共益費 | 1万円 |
|---|---|---|---|
| 敷金 | 15.7万円 | 礼金 | なし |
| 入居決定でお祝い金最大100,000円 | |||
| 保証金 | - | 償却・敷引 | - |
| 住宅保険料 | - | 更新料 | - |
| 保証会社利用 | 必須 | 保証会社名 | - |
| 保証会社費用 | - | 保証会社備考 | 保証会社利用必 エポスカード(RP)保証料:賃料等の50%(最低2万)、月額保証料:賃料等の1%(更新料無) |
| 契約形態 | - | 契約期間 | - |
| 入居・引渡期間 | 即時 | 現況 | - |
| 入居可能条件 | ペット相談 | ||
| 契約備考 | 当物件はオンラインまたはお近くの店舗でご相談お申込を承ります。リライフは首都圏23店舗のネットワークで豊富な物件情報をご提供いたします。当物件に類似した未公開物件のご提案も可能です。お気軽にお問い合わせください。違約金有:詳細はお問い合わせください 1DK ペット相談 損保【要】 バストイレ別、エアコン、フローリング、TVインターホン、浴室乾燥機、オートロック、室内洗濯置、シューズボックス、温水洗浄便座、エレベーター、洗面所独立、駐輪場、宅配ボックス、BS・CS、防犯カメラ、ペット相談、バイク置場、ネット使用料不要、24時間換気システム、3駅以上利用可、3沿線以上利用可 | ||
部屋の情報
| 間取り | 1DK | 専有面積 | 25.11m2 |
|---|---|---|---|
| 所在階 / 向き | 3階 / 東 | バルコニー面積 | - |
| 水道 / ガス | - | ||
| 設備 | バス・トイレ別、2階以上、オートロック、テレビドアホン、宅配ボックス、浴室乾燥機、インターネット対応、エアコン、エレベーター、温水洗浄便座、フローリング、洗髪洗面化粧台、CSアンテナ、BSアンテナ、インターネット使用料無料、洗濯機:室内 | ||
| 当社物件ID | 160645334 | ||
建物の情報
| 建物名 | コンフォリア・リヴ大崎 | ||
|---|---|---|---|
| 所在地 | 東京都品川区西品川 | ||
| 交通 | 東急大井町線 下神明駅 徒歩10分 JR埼京線 大崎駅 徒歩10分 都営浅草線 戸越駅 徒歩14分 | ||
| 階数 | 6階建 | 総戸数 | 35戸 |
| 築年月 | 2026年03月 / 築1年 | エレベーター | あり |
| 駐車場 | なし | バイク置き場 | あり |
| 駐輪場 | あり | 管理人/管理会社 | - |
| 周辺環境 | その他 文化堂 戸越銀座店(スーパー)まで737m その他 ドラッグストアスマイル 戸越銀座店(ドラッグストア)まで608m その他 ライフ 大崎ニューシティ店(スーパー)まで878m その他 セブンイレブン 西品川2丁目店(コンビニ)まで206m その他 ローソン 西品川三ツ木通店(コンビニ)まで235m その他 ポニークリーニング 大崎ウィズシティ店(その他)まで521m | ||
| 建物種別 | マンション | 建物構造 | RC(鉄筋コンクリート) |
この部屋の取扱い不動産会社
| 会社名 | (株)リライフ三軒茶屋店(SUUMO経由) | ||
|---|---|---|---|
| 所在地 | 東京都世田谷区太子堂4-3-3 クレアーレ三軒茶屋6階 | 交通 | - |
| 営業時間 | 10:00~18:30 | 定休日 | 毎週火曜日、水曜日(祝日を除く |
| 免許番号 | 国土交通大臣10792 | 取引態様 | 仲介 |
| 不動産会社管理番号 | 100499877955 | 当社管理番号 | 89 |
| 所属団体 | (公社)東京都宅地建物取引業協会会員 | ||
| 公正取引協議会 | (公社)首都圏不動産公正取引協議会加盟 | ||
| 取扱い物件情報 | 物件詳細へ | ||
※各種情報と現状に差異がある場合は、現状優先となります。問い合わせをすることで、より詳しい条件、情報を確認する事ができます。
提供:(株)リライフ三軒茶屋店(SUUMO経由)
この物件が気になったら掲載期限まであと10日
コンフォリア・リヴ大崎の空き部屋一覧
全部で22の空き部屋があります。
コンフォリア・リヴ大崎に条件(家賃・エリア)が近い物件一覧
| 写真 | 家賃 管理費等 | 敷金 礼金 | 間取り 専有面積 | 築年数 | 最寄り駅 所在地 | キープ | 詳細 |
|---|---|---|---|---|---|---|---|
マンション ヴェローナ錦糸町(1K/5階) | |||||||
![]() | 10.7万円 1.1万円 | なし 10.7万円 | 1K 20.13m2 | 築20年 | 総武本線 錦糸町駅 徒歩9分 東京地下鉄半蔵門線 錦糸町駅 徒歩9分 総武・中央緩行線 亀戸駅 徒歩10分 東京都江東区亀戸1丁目 | 詳細を見る | |
アパート AGRANDE OJIMA(1LDK/2階) | |||||||
![]() | 10.3万円 6,000円 | なし なし | 1LDK 28.82m2 | 新築 | 都営新宿線 大島駅(東京) 徒歩13分 都営新宿線 西大島駅 徒歩22分 都営新宿線 東大島駅 徒歩24分 東京都江東区北砂 | 詳細を見る | |
マンション サンライズマンション(2LDK/2階) | |||||||
![]() | 16.5万円 3,000円 | 12.7万円 なし | 2LDK 55.31m2 | 築26年 | 京急本線 梅屋敷駅(東京) 徒歩13分 京急本線 大森町駅 徒歩14分 東京モノレール 昭和島駅 徒歩16分 東京都大田区大森南 | 詳細を見る | |
マンション グランカーサ住吉III(1DK/7階) | |||||||
![]() | 14.4万円 1万円 | なし なし | 1DK 25.37m2 | 築1年 | 東京都新宿線 住吉駅(東京) 徒歩11分 東京地下鉄半蔵門線 住吉駅(東京) 徒歩11分 東京地下鉄東西線 東陽町駅 徒歩18分 東京都江東区千田 | 詳細を見る | |
アパート SEED SAVE PETIRASU BREEZE(1LDK/1階) | |||||||
![]() | 10.4万円 1万円 | 20.8万円 10.4万円 | 1LDK 32.95m2 | 築1年 | 東京モノレール羽田 昭和島駅 徒歩12分 京浜急行電鉄本線 大森町駅 徒歩18分 東京都大田区大森東5丁目 | 詳細を見る | |
マンション クオリタス住吉(1DK/2階) | |||||||
![]() | 12.5万円 1.5万円 | なし 6.25万円 | 1DK 26m2 | 築4年 | 東京メトロ半蔵門線 住吉駅(東京) 徒歩2分 都営新宿線 住吉駅(東京) 徒歩2分 JR総武線快速 錦糸町駅 徒歩14分 東京都江東区住吉 | 詳細を見る | |
マンション ジェノヴィア押上スカイガーデン(1K/4階) | |||||||
![]() | 11.9万円 1.5万円 | なし なし | 1K 25.95m2 | 築5年 | 東京メトロ半蔵門線 押上駅 徒歩11分 都営浅草線 押上駅 徒歩11分 JR総武線 錦糸町駅 徒歩14分 東京都江東区亀戸 | 詳細を見る | |







