賃貸マンション
レジェンド大山の賃貸物件情報(2DK/4階)
| 家賃 | 管理費等 | 敷金 | 礼金 | 間取り | 専有面積 |
|---|---|---|---|---|---|
| 13.2万円 | 8,000円 | 13.2万円 | 13.2万円 | 2DK | 40.31m2 |
入居決定でお祝い金最大100,000円
- 保証金
- -
- 償却・敷引
- -
- 築年数
- 築41年
- 所在階
- 4階
- 向き
- 東
Point
まずはお問い合わせ!
不動産会社は街のプロ、あなたに合った物件がきっと見つかります。
提供:合同会社椿エステート(SUUMO経由)

詳細情報 レジェンド大山
物件紹介
レジェンド大山は東武東上線大山駅から徒歩9分にあり、駅近で通勤通学に便利なマンションです。
このお部屋は2階以上に位置しているので、通行人や周囲の住人からの視線が気になりにくく、防犯面でも安心です。
人気の角部屋で周囲の居住者の生活音も気になりにくく、また、フローリングのお部屋なのでお掃除もラクラク。キッチンはシステムキッチン仕様になっていますので、お料理好きの方にもぴったり。バス・トイレは別なので、のんびりお風呂タイムも楽しめるでしょう。また、雨の日でも浴室乾燥機を使えば、お洗濯も問題ありません。
建物にはエレベーターがついているので、重い荷物があっても安心。
このお部屋は2階以上に位置しているので、通行人や周囲の住人からの視線が気になりにくく、防犯面でも安心です。
人気の角部屋で周囲の居住者の生活音も気になりにくく、また、フローリングのお部屋なのでお掃除もラクラク。キッチンはシステムキッチン仕様になっていますので、お料理好きの方にもぴったり。バス・トイレは別なので、のんびりお風呂タイムも楽しめるでしょう。また、雨の日でも浴室乾燥機を使えば、お洗濯も問題ありません。
建物にはエレベーターがついているので、重い荷物があっても安心。
お金・契約の情報
※「-」と表示されているものは、実際は料金が発生するものもございます。詳細はお問い合わせください。
| 家賃 | 13.2万円 | 管理費・共益費 | 8,000円 |
|---|---|---|---|
| 敷金 | 13.2万円 | 礼金 | 13.2万円 |
| 入居決定でお祝い金最大100,000円 | |||
| 保証金 | - | 償却・敷引 | - |
| 住宅保険料 | - | 更新料 | - |
| 保証会社利用 | 必須 | 保証会社名 | - |
| 保証会社費用 | - | 保証会社備考 | 保証会社利用必 保証会社初回保証料:賃料総額50%~ |
| 契約形態 | - | 契約期間 | - |
| 入居・引渡期間 | 即時 | 現況 | - |
| 契約備考 | 合計2.2万円(内訳:鍵交換代:22000円~) 2DK 二人入居可/子供可 普通借家2年 損保【2万円2年】 バストイレ別、バルコニー、エアコン、ガスコンロ対応、クロゼット、フローリング、浴室乾燥機、室内洗濯置、シューズボックス、システムキッチン、角住戸、温水洗浄便座、脱衣所、エレベーター、洗面所独立、外壁タイル張り、即入居可、閑静な住宅地、3口以上コンロ、照明付、全居室洋室、保証人不要、二人入居相談、全居室フローリング、3面採光、2沿線利用可、エアコン2台、駅まで平坦、内装リフォーム済、眺望良好、保証金不要、耐震構造、2駅利用可、駅徒歩10分以内、全居室6畳以上、玄関収納、リノベーション、保証会社利用可、通風良好 | ||
部屋の情報
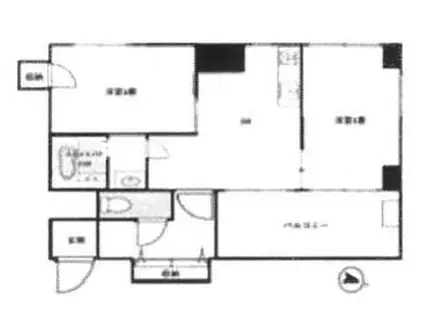
| 間取り | 2DK | 専有面積 | 40.31m2 |
|---|---|---|---|
| 所在階 / 向き | 4階 / 東 | バルコニー面積 | - |
| 水道 / ガス | - | ||
| 設備 | バス・トイレ別、2階以上、浴室乾燥機、システムキッチン、エアコン、エレベーター、温水洗浄便座、角部屋、バルコニー、フローリング、洗髪洗面化粧台、2口コンロ、コンロ:ガス、洗濯機:室内 | ||
| 当社物件ID | 159257012 | ||
建物の情報
| 建物名 | レジェンド大山 | ||
|---|---|---|---|
| 所在地 | 東京都板橋区大山金井町 | ||
| 交通 | 東武東上線 大山駅(東京) 徒歩9分 東武東上線 下板橋駅 徒歩9分 都営三田線 板橋区役所前駅 徒歩13分 | ||
| 階数 | 9階建 | 総戸数 | - |
| 築年月 | 1986年02月 / 築41年 | エレベーター | あり |
| 駐車場 | なし | バイク置き場 | - |
| 駐輪場 | - | 管理人/管理会社 | - |
| 周辺環境 | その他 まいばすけっと熊野町山手通り店(スーパー)まで296m その他 やよい軒大山店(飲食店)まで773m その他 板橋区立板橋第七小学校(小学校)まで408m その他 アスク池袋本町保育園(幼稚園・保育園)まで318m その他 谷端川北緑道(公園)まで471m その他 ファミリーマート金井窪山手通り店(コンビニ)まで109m | ||
| 建物種別 | マンション | 建物構造 | SRC(鉄骨鉄筋コンクリート) |
この部屋の取扱い不動産会社
| 会社名 | 合同会社椿エステート(SUUMO経由) | ||
|---|---|---|---|
| 所在地 | 東京都豊島区池袋2-68-5 ハイツオーエド403 | 交通 | - |
| 営業時間 | 10:00 ~ 19:00 | 定休日 | 毎週水曜日 |
| 免許番号 | 東京都知事112910 | 取引態様 | 仲介 |
| 不動産会社管理番号 | 100489111633 | 当社管理番号 | 89 |
| 所属団体 | (公社)全日本不動産協会東京都本部会員 | ||
| 公正取引協議会 | (公社)首都圏不動産公正取引協議会加盟 | ||
| 取扱い物件情報 | 物件詳細へ | ||
※各種情報と現状に差異がある場合は、現状優先となります。問い合わせをすることで、より詳しい条件、情報を確認する事ができます。
提供:合同会社椿エステート(SUUMO経由)
この物件が気になったら掲載期限まであと9日
レジェンド大山に条件(家賃・エリア)が近い物件一覧
| 写真 | 家賃 管理費等 | 敷金 礼金 | 間取り 専有面積 | 築年数 | 最寄り駅 所在地 | キープ | 詳細 |
|---|---|---|---|---|---|---|---|
マンション ファミールシティ武蔵関Ⅱ番館(3LDK/2階) | |||||||
![]() | 15.8万円 7,000円 | 15.8万円 15.8万円 | 3LDK 73.4m2 | 築30年 | 西武鉄道新宿線 武蔵関駅 徒歩15分 西武鉄道新宿線 東伏見駅 徒歩16分 東京都練馬区関町北5丁目 | 詳細を見る | |
マンション メインステージ赤羽北Ⅱ(1K/6階) | |||||||
![]() | 10万円 1.5万円 | なし 10万円 | 1K 25.38m2 | 築14年 | 埼京線 北赤羽駅 徒歩7分 京浜東北・根岸線 赤羽駅 徒歩19分 東京都北区赤羽北1丁目 | 詳細を見る | |
マンション ハーモニーレジデンス大塚山手(1K/13階) | |||||||
![]() | 10万円 1.5万円 | なし 10万円 | 1K 27.31m2 | 築8年 | JR山手線 大塚駅(東京) 徒歩6分 東京メトロ丸ノ内線 新大塚駅 徒歩6分 東京メトロ有楽町線 東池袋駅 徒歩18分 東京都豊島区南大塚 | 詳細を見る | |
マンション アンゲネームラオーム(1K/2階) | |||||||
![]() | 8.5万円 5,000円 | 8.5万円 8.5万円 | 1K 26.43m2 | 築20年 | JR山手線 池袋駅 徒歩4分 東京メトロ有楽町線 要町駅 徒歩9分 東武東上線 北池袋駅 徒歩18分 東京都豊島区池袋 | 詳細を見る | |
マンション ルーブル大塚伍番館(1K/3階) | |||||||
![]() | 9.4万円 7,500円 | なし 9.4万円 | 1K 21.69m2 | 築12年 | JR山手線 大塚駅(東京) 徒歩6分 東京メトロ有楽町線 東池袋駅 徒歩15分 JR山手線 巣鴨駅 徒歩15分 東京都豊島区北大塚 | 詳細を見る | |
マンション LYNN(1LDK/3階) | |||||||
![]() | 13.7万円 8,000円 | なし 20.55万円 | 1LDK 36.05m2 | 築4年 | 東武東上線 北池袋駅 徒歩6分 JR山手線 池袋駅 徒歩14分 東京都豊島区池袋本町 | 詳細を見る | |
マンション B CITY 東池袋(1K/3階) | |||||||
![]() | 8.5万円 1万円 | 8.5万円 8.5万円 | 1K 21.52m2 | 築12年 | JR山手線 大塚駅(東京) 徒歩6分 東京メトロ丸ノ内線 新大塚駅 徒歩8分 東京メトロ有楽町線 東池袋駅 徒歩10分 東京都豊島区東池袋 | 詳細を見る | |








