賃貸マンション
ASTILE世田谷松原の賃貸物件情報(ワンルーム/2階)
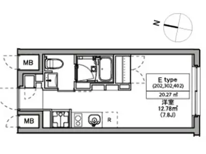
| 家賃 | 管理費等 | 敷金 | 礼金 | 間取り | 専有面積 |
|---|---|---|---|---|---|
| 10万円 | 1万円 | 10万円 | なし | ワンルーム | 20.27m2 |
入居決定でお祝い金最大100,000円
- 保証金
- -
- 償却・敷引
- -
- 築年数
- 築1年
- 所在階
- 2階
- 向き
- 南
Point
【お部屋探しはクレアスレント】★日常生活に便利なコンビニ・スーパーも近く生活環境良好★インターネットで紹介していない類似物件も多数ご案内!お客様の要望にお応えし、快適で素敵なお部屋をご紹介いたします!
提供:(株)クレアスレント横浜店(SUUMO経由)

詳細情報 ASTILE世田谷松原
物件紹介
ASTILE世田谷松原は京王線下高井戸駅から徒歩2分にあり、駅近で通勤通学に便利なマンションです。
このお部屋は2階以上に位置しているので、通行人や周囲の住人からの視線が気になりにくく、防犯面でも安心。建物のエントランスはオートロックがついており、インターホンにはTVモニタもついているため、相手の顔を確認してから来客対応することができます。
人気の南向きのお部屋。また、フローリングなのでお掃除もラクラク。キッチンはシステムキッチン仕様になっていますので、お料理好きの方にもぴったり。バス・トイレは別なので、のんびりお風呂タイムも楽しめるでしょう。また、雨の日でも浴室乾燥機を使えば、お洗濯も問題ありません。
通信設備面では、インターネットが無料で使えるので、月々の出費を抑えられるのも魅力です(別途工事等が必要な場合あり)。
建物にはエレベーターがついているので、重い荷物があっても安心。共用部には宅配ボックスが設定されているので、不在の時にも荷物を受け取ることができます。
このお部屋は2階以上に位置しているので、通行人や周囲の住人からの視線が気になりにくく、防犯面でも安心。建物のエントランスはオートロックがついており、インターホンにはTVモニタもついているため、相手の顔を確認してから来客対応することができます。
人気の南向きのお部屋。また、フローリングなのでお掃除もラクラク。キッチンはシステムキッチン仕様になっていますので、お料理好きの方にもぴったり。バス・トイレは別なので、のんびりお風呂タイムも楽しめるでしょう。また、雨の日でも浴室乾燥機を使えば、お洗濯も問題ありません。
通信設備面では、インターネットが無料で使えるので、月々の出費を抑えられるのも魅力です(別途工事等が必要な場合あり)。
建物にはエレベーターがついているので、重い荷物があっても安心。共用部には宅配ボックスが設定されているので、不在の時にも荷物を受け取ることができます。
お金・契約の情報
※「-」と表示されているものは、実際は料金が発生するものもございます。詳細はお問い合わせください。
| 家賃 | 10万円 | 管理費・共益費 | 1万円 |
|---|---|---|---|
| 敷金 | 10万円 | 礼金 | なし |
| 入居決定でお祝い金最大100,000円 | |||
| 保証金 | - | 償却・敷引 | - |
| 住宅保険料 | - | 更新料 | - |
| 保証会社利用 | 必須 | 保証会社名 | - |
| 保証会社費用 | - | 保証会社備考 | 保証会社利用必 初回保証料総賃料50%1年更新ごと1万円口座振替手数料440円/月 |
| 契約形態 | - | 契約期間 | - |
| 入居・引渡期間 | - | 現況 | - |
| 契約備考 | 仕様・図面・写真等に相違があった場合は現況を優先します。短期違約金:1年未満の解約は総賃料1ヶ月分 更新料 新賃料1.00ヶ月分 入居サポート 月額1100円 ワンルーム 普通借家2年 損保【要】 バストイレ別、エアコン、クロゼット、フローリング、TVインターホン、浴室乾燥機、オートロック、室内洗濯置、シューズボックス、システムキッチン、南向き、温水洗浄便座、脱衣所、エレベーター、洗面所独立、洗面化粧台、2口コンロ、宅配ボックス、礼金不要、閑静な住宅地、保証人不要、仲介手数料不要、ネット使用料不要、24時間換気システム、未入居、3駅以上利用可、駅前、敷地内ごみ置き場、都市ガス、室内物干機 入居日:'26年3月下旬 | ||
部屋の情報
| 間取り | ワンルーム | 専有面積 | 20.27m2 |
|---|---|---|---|
| 所在階 / 向き | 2階 / 南 | バルコニー面積 | - |
| 水道 / ガス | - | ||
| 設備 | バス・トイレ別、2階以上、オートロック、テレビドアホン、宅配ボックス、浴室乾燥機、インターネット対応、システムキッチン、エアコン、エレベーター、温水洗浄便座、南向き、フローリング、洗髪洗面化粧台、2口コンロ、インターネット使用料無料、洗濯機:室内 | ||
| 当社物件ID | 160470690 | ||
建物の情報
| 建物名 | ASTILE世田谷松原 | ||
|---|---|---|---|
| 所在地 | 東京都世田谷区松原 | ||
| 交通 | 京王線 下高井戸駅 徒歩2分 京王線 明大前駅 徒歩11分 東急世田谷線 松原駅(東京) 徒歩13分 | ||
| 階数 | 5階建 | 総戸数 | - |
| 築年月 | 2026年02月 / 築1年 | エレベーター | あり |
| 駐車場 | なし | バイク置き場 | - |
| 駐輪場 | - | 管理人/管理会社 | - |
| 周辺環境 | その他 ファミリーマート 杉並下高井戸二丁目店(コンビニ)まで484m その他 月見湯温泉(その他)まで711m その他 マクドナルド 20号桜上水店(飲食店)まで684m その他 ピカソ桜上水店(その他)まで749m その他 マクドナルド 明大前店(飲食店)まで804m その他 スターバックスコーヒー 明大前店(飲食店)まで835m | ||
| 建物種別 | マンション | 建物構造 | RC(鉄筋コンクリート) |
この部屋の取扱い不動産会社
| 会社名 | (株)クレアスレント横浜店(SUUMO経由) | ||
|---|---|---|---|
| 所在地 | 神奈川県横浜市神奈川区台町 17-1 マストビル7階 | 交通 | - |
| 営業時間 | 10時~19時 | 定休日 | 毎週水曜日・GW・夏季・年末年 |
| 免許番号 | 国土交通大臣10473 | 取引態様 | 仲介 |
| 不動産会社管理番号 | 100490482931 | 当社管理番号 | 89 |
| 所属団体 | (公社)東京都宅地建物取引業協会会員 | ||
| 公正取引協議会 | (公社)首都圏不動産公正取引協議会加盟 | ||
| 取扱い物件情報 | 物件詳細へ | ||
※各種情報と現状に差異がある場合は、現状優先となります。問い合わせをすることで、より詳しい条件、情報を確認する事ができます。
提供:(株)クレアスレント横浜店(SUUMO経由)
この物件が気になったら掲載期限まであと11日
ASTILE世田谷松原に条件(家賃・エリア)が近い物件一覧
| 写真 | 家賃 管理費等 | 敷金 礼金 | 間取り 専有面積 | 築年数 | 最寄り駅 所在地 | キープ | 詳細 |
|---|---|---|---|---|---|---|---|
マンション メゾンド・シャンテ(1LDK/1階) | |||||||
![]() | 15万円 3,000円 | 15万円 15万円 | 1LDK 40.05m2 | 築4年 | 京浜急行電鉄本線 梅屋敷駅(東京) 徒歩6分 京浜急行電鉄本線 京急蒲田駅 徒歩13分 東京都大田区蒲田2丁目 | 詳細を見る | |
一戸建て 京浜急行電鉄本線 大森町駅 徒歩14分 築38年(3LDK) | |||||||
![]() | 14.8万円 なし | 14.8万円 14.8万円 | 3LDK 62.09m2 | 築38年 | 京浜急行電鉄本線 大森町駅 徒歩14分 京浜急行電鉄本線 平和島駅 徒歩19分 東京都大田区大森東3丁目 | 詳細を見る | |
アパート エフプレスト大森東(ワンルーム/1階) | |||||||
![]() | 6.8万円 5,000円 | 6.8万円 6.8万円 | ワンルーム 16.04m2 | 築4年 | 東京モノレール羽田 昭和島駅 徒歩11分 京浜急行電鉄本線 大森町駅 徒歩18分 東京都大田区大森東5丁目 | 詳細を見る | |
アパート ビレッジひの木B棟(1LDK/2階) | |||||||
![]() | 13.2万円 2,000円 | 13.2万円 13.2万円 | 1LDK 39.66m2 | 築31年 | 京浜急行電鉄本線 梅屋敷駅(東京) 徒歩7分 京浜急行電鉄本線 京急蒲田駅 徒歩9分 東京都大田区蒲田2丁目 | 詳細を見る | |
アパート SEED SAVE PETIRASU BREEZE(1LDK/3階) | |||||||
![]() | 10.7万円 1万円 | 21.4万円 10.7万円 | 1LDK 30.55m2 | 築1年 | 東京モノレール羽田 昭和島駅 徒歩12分 京浜急行電鉄本線 大森町駅 徒歩18分 東京都大田区大森東5丁目 | 詳細を見る | |
マンション グランディール(1K/2階) | |||||||
![]() | 8.8万円 5,000円 | 8.8万円 17.6万円 | 1K 25.2m2 | 築22年 | 京浜急行電鉄本線 大森町駅 徒歩5分 京浜急行電鉄本線 梅屋敷駅(東京) 徒歩9分 東京都大田区大森中1丁目 | 詳細を見る | |
アパート PARK MAISON ISHIKAWADAI(ワンルーム/2階) | |||||||
![]() | 7.6万円 5,000円 | なし なし | ワンルーム 16.08m2 | 築3年 | 東急池上線 石川台駅 徒歩2分 東急池上線 洗足池駅 徒歩10分 東京都大田区東雪谷2丁目4-22 | 詳細を見る | |








