賃貸アパート
ソルナクレイシア荻窪IIIの賃貸物件情報(1DK/1階)
| 家賃 | 管理費等 | 敷金 | 礼金 | 間取り | 専有面積 |
|---|---|---|---|---|---|
| 14.9万円 | 1.5万円 | なし | 14.9万円 | 1DK | 36.88m2 |
入居決定でお祝い金最大100,000円
- 保証金
- -
- 償却・敷引
- -
- 築年数
- 築1年
- 所在階
- 1階
- 向き
- 北
Point
この条件でこの立地は希少。まずはご確認を!
提供:(株)ルートリィ リジョイス賃貸(SUUMO経由)

詳細情報 ソルナクレイシア荻窪III
物件紹介
ソルナクレイシア荻窪IIIはJR中央線荻窪駅から徒歩5分にあり、駅近で通勤通学に便利なアパートです。
このお部屋のインターホンにはTVモニタがついているため、相手の顔を確認してから来客対応することができます。
フローリングのお部屋なのでお掃除もラクラク。キッチンはシステムキッチン仕様になっていますので、お料理好きの方にもぴったり。また、バス・トイレは別で、のんびりお風呂タイムも楽しめるでしょう。
通信設備面では、インターネットが無料で使えるので、月々の出費を抑えられるのも魅力です。また、BSアンテナ・CSアンテナもありますので、おうち時間も充実するでしょう(別途工事、BS・CSの契約料等が必要な場合あり)。
このお部屋のインターホンにはTVモニタがついているため、相手の顔を確認してから来客対応することができます。
フローリングのお部屋なのでお掃除もラクラク。キッチンはシステムキッチン仕様になっていますので、お料理好きの方にもぴったり。また、バス・トイレは別で、のんびりお風呂タイムも楽しめるでしょう。
通信設備面では、インターネットが無料で使えるので、月々の出費を抑えられるのも魅力です。また、BSアンテナ・CSアンテナもありますので、おうち時間も充実するでしょう(別途工事、BS・CSの契約料等が必要な場合あり)。
お金・契約の情報
※「-」と表示されているものは、実際は料金が発生するものもございます。詳細はお問い合わせください。
| 家賃 | 14.9万円 | 管理費・共益費 | 1.5万円 |
|---|---|---|---|
| 敷金 | なし | 礼金 | 14.9万円 |
| 入居決定でお祝い金最大100,000円 | |||
| 保証金 | - | 償却・敷引 | - |
| 住宅保険料 | - | 更新料 | - |
| 保証会社利用 | 必須 | 保証会社名 | 全保連 |
| 保証会社費用 | - | 保証会社備考 | 全保連利用必 初回保証料:総賃料の60%~、年間保証料:13000円、口座振替手数料:月額330円 |
| 契約形態 | - | 契約期間 | - |
| 入居・引渡期間 | - | 現況 | - |
| 契約備考 | 退去時クリーニング費用6.6万(退去時) 1DK 事務所利用不可/ルームシェア不可 損保【2万円2年】 バストイレ別、エアコン、クロゼット、フローリング、TVインターホン、シューズボックス、システムキッチン、温水洗浄便座、脱衣所、洗面所独立、2口コンロ、IHクッキングヒーター、全居室洋室、全居室フローリング、CS、ネット使用料不要、ダブルロックキー、築2年以内、築3年以内、駅徒歩5分以内、駅徒歩10分以内、築5年以内、都市ガス、BS、礼金1ヶ月、保証会社利用可 入居日:'26年1月中旬 | ||
部屋の情報
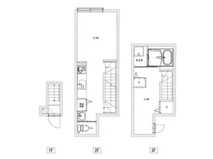
| 間取り | 1DK | 専有面積 | 36.88m2 |
|---|---|---|---|
| 所在階 / 向き | 1階 / 北 | バルコニー面積 | - |
| 水道 / ガス | - | ||
| 設備 | バス・トイレ別、テレビドアホン、インターネット対応、システムキッチン、エアコン、温水洗浄便座、フローリング、洗髪洗面化粧台、2口コンロ、コンロ:IH、CSアンテナ、BSアンテナ、インターネット使用料無料 | ||
| 当社物件ID | 160127838 | ||
建物の情報
| 建物名 | ソルナクレイシア荻窪III | ||
|---|---|---|---|
| 所在地 | 東京都杉並区天沼 | ||
| 交通 | JR中央線 荻窪駅 徒歩5分 JR中央線 阿佐ケ谷駅 徒歩19分 東京メトロ丸ノ内線 南阿佐ケ谷駅 徒歩21分 | ||
| 階数 | 3階建 | 総戸数 | - |
| 築年月 | 2025年12月 / 築1年 | エレベーター | - |
| 駐車場 | なし | バイク置き場 | - |
| 駐輪場 | - | 管理人/管理会社 | - |
| 建物種別 | アパート | 建物構造 | 鉄骨造 |
この部屋の取扱い不動産会社
| 会社名 | (株)ルートリィ リジョイス賃貸(SUUMO経由) | ||
|---|---|---|---|
| 所在地 | 東京都新宿区西新宿7-3-10 21山京ビル301 | 交通 | - |
| 営業時間 | 10~18時 | 定休日 | 水曜日 |
| 免許番号 | 東京都知事106288 | 取引態様 | 仲介 |
| 不動産会社管理番号 | 100480352939 | 当社管理番号 | 89 |
| 所属団体 | (公社)東京都宅地建物取引業協会会員 | ||
| 公正取引協議会 | (公社)首都圏不動産公正取引協議会加盟 | ||
| 取扱い物件情報 | 物件詳細へ | ||
※各種情報と現状に差異がある場合は、現状優先となります。問い合わせをすることで、より詳しい条件、情報を確認する事ができます。
提供:(株)ルートリィ リジョイス賃貸(SUUMO経由)
この物件が気になったら掲載期限まであと10日
ソルナクレイシア荻窪IIIに条件(家賃・エリア)が近い物件一覧
| 写真 | 家賃 管理費等 | 敷金 礼金 | 間取り 専有面積 | 築年数 | 最寄り駅 所在地 | キープ | 詳細 |
|---|---|---|---|---|---|---|---|
マンション CIDER HOUSE SOUWA(1LDK/5階) | |||||||
![]() | 21万円 3,000円 | 42万円 21万円 | 1LDK 58.45m2 | 築24年 | 京王線 千歳烏山駅 徒歩7分 京王線 芦花公園駅 徒歩15分 東京都世田谷区粕谷 | 詳細を見る | |
マンション ソルナクレイシア荻窪III(3LDK/2階) | |||||||
![]() | 17.4万円 1.5万円 | なし 17.4万円 | 3LDK 43.55m2 | 築1年 | JR総武線 荻窪駅 徒歩3分 JR中央線 荻窪駅 徒歩3分 JR総武線 阿佐ケ谷駅 徒歩18分 東京都杉並区天沼 | 詳細を見る | |
マンション ウィルテラス奥沢(1K/4階) | |||||||
![]() | 12.6万円 7,000円 | 12.6万円 12.6万円 | 1K 25.17m2 | 築17年 | 東急大井町線 九品仏駅 徒歩3分 東急東横線 自由が丘駅(東京) 徒歩13分 東京都世田谷区奥沢6丁目 | 詳細を見る | |
マンション クレヴィスタ練馬桜台Ⅱ(1K/5階) | |||||||
![]() | 11.2万円 1.1万円 | なし 11.2万円 | 1K 26.66m2 | 築7年 | 西武池袋・豊島線 桜台駅(東京) 徒歩10分 西武池袋・豊島線 練馬駅 徒歩15分 東京都練馬区豊玉北3丁目 | 詳細を見る | |
アパート TFハウス杉並(1LDK/3階) | |||||||
![]() | 12.3万円 3,000円 | 12.3万円 12.3万円 | 1LDK 41.09m2 | 築12年 | 東京地下鉄方南支線 方南町駅 徒歩12分 東京都杉並区堀ノ内2丁目 | 詳細を見る | |
アパート 東急田園都市線 池尻大橋駅 徒歩5分 築1年(1LDK/2階) | |||||||
![]() | 16.2万円 1万円 | 24.3万円 16.2万円 | 1LDK 39.74m2 | 築1年 | 東急田園都市線 池尻大橋駅 徒歩5分 東急田園都市線 三軒茶屋駅 徒歩16分 京王井の頭線 駒場東大前駅 徒歩22分 東京都世田谷区池尻 | 詳細を見る | |
マンション フラットケーツー(2LDK/2階) | |||||||
![]() | 11万円 8,000円 | 11万円 11万円 | 2LDK 64m2 | 築35年 | 西武池袋線 大泉学園駅 徒歩23分 東京都練馬区大泉町 | 詳細を見る | |
マンション フロンティア鷺宮(1K/1階) | |||||||
![]() | 9.5万円 3,000円 | なし 9.5万円 | 1K 30.43m2 | 築5年 | 西武鉄道新宿線 鷺ノ宮駅 徒歩2分 東京都中野区鷺宮3丁目 | 詳細を見る | |






/105x80-f1-q70-wp1)


