賃貸マンション
KDXレジデンス横濱紅葉坂の賃貸物件情報(3SLDK/2階)
| 家賃 | 管理費等 | 敷金 | 礼金 | 間取り | 専有面積 |
|---|---|---|---|---|---|
| 36.5万円 | 2万円 | 36.5万円 | 54.75万円 | 3SLDK | 80.78m2 |
入居決定でお祝い金最大100,000円
- 保証金
- -
- 償却・敷引
- -
- 築年数
- 築5年
- 所在階
- 2階
- 向き
- 南東
Point
利便性と住環境を両立したい方にお勧めの桜木町・紅葉坂エリア♪多彩な収納が嬉しい80.78平米の3SLDKタイプ!先行申込受付中★人気物件につきお問い合わせはお早めに!
提供:ピタットハウス桜木町店(株)関東住宅流通(SUUMO経由)

詳細情報 KDXレジデンス横濱紅葉坂
物件紹介
KDXレジデンス横濱紅葉坂はブルーライン桜木町駅から徒歩7分にあり、駅近で通勤通学に便利なマンションです。
このお部屋は2階以上に位置しているので、通行人や周囲の住人からの視線が気になりにくく、防犯面でも安心。建物のエントランスはオートロックがついており、インターホンにはTVモニタもついているため、相手の顔を確認してから来客対応することができます。
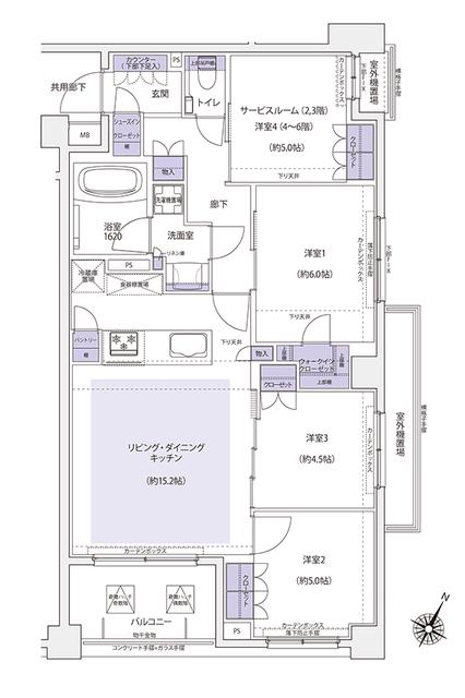
人気の南向き・フローリングのお部屋。角部屋でもあるため、周囲の居住者の生活音も気になりにくい場所です。室内にはウォークインクローゼットがありますので、たくさんの荷物も効率的に収納ができます。キッチンはシステムキッチン仕様になっていますので、お料理好きの方にもぴったり。バス・トイレは別なので、のんびりお風呂タイムも楽しめるでしょう。また、雨の日でも浴室乾燥機を使えば、お洗濯も問題ありません。
通信設備面では、インターネットが無料で使えるので、月々の出費を抑えられるのも魅力です。また、BSアンテナ・CSアンテナがありCATVにも対応しているので、おうち時間も充実するでしょう(別途工事、BS・CS・CATVの契約料等が必要な場合あり)。
床暖房があり、冬も足元から暖かく快適に過ごすことができます。建物にはエレベーターがついているので、重い荷物があっても安心。共用部には宅配ボックスが設定されているので、不在の時にも荷物を受け取ることができます。また、ペット飼育の相談ができますので、あなたの大切な家族の一員も快適に暮らせるか、ぜひ確認してみてください。
このお部屋は2階以上に位置しているので、通行人や周囲の住人からの視線が気になりにくく、防犯面でも安心。建物のエントランスはオートロックがついており、インターホンにはTVモニタもついているため、相手の顔を確認してから来客対応することができます。
人気の南向き・フローリングのお部屋。角部屋でもあるため、周囲の居住者の生活音も気になりにくい場所です。室内にはウォークインクローゼットがありますので、たくさんの荷物も効率的に収納ができます。キッチンはシステムキッチン仕様になっていますので、お料理好きの方にもぴったり。バス・トイレは別なので、のんびりお風呂タイムも楽しめるでしょう。また、雨の日でも浴室乾燥機を使えば、お洗濯も問題ありません。
通信設備面では、インターネットが無料で使えるので、月々の出費を抑えられるのも魅力です。また、BSアンテナ・CSアンテナがありCATVにも対応しているので、おうち時間も充実するでしょう(別途工事、BS・CS・CATVの契約料等が必要な場合あり)。
床暖房があり、冬も足元から暖かく快適に過ごすことができます。建物にはエレベーターがついているので、重い荷物があっても安心。共用部には宅配ボックスが設定されているので、不在の時にも荷物を受け取ることができます。また、ペット飼育の相談ができますので、あなたの大切な家族の一員も快適に暮らせるか、ぜひ確認してみてください。
お金・契約の情報
※「-」と表示されているものは、実際は料金が発生するものもございます。詳細はお問い合わせください。
| 家賃 | 36.5万円 | 管理費・共益費 | 2万円 |
|---|---|---|---|
| 敷金 | 36.5万円 | 礼金 | 54.75万円 |
| 入居決定でお祝い金最大100,000円 | |||
| 保証金 | - | 償却・敷引 | - |
| 住宅保険料 | - | 更新料 | - |
| 保証会社利用 | 必須 | 保証会社名 | - |
| 保証会社費用 | - | 保証会社備考 | 保証会社利用必 その他 初回保証料:総賃料等の50% 継続保証料:10000円/年 法人契約の場合は応相談 |
| 契約形態 | - | 契約期間 | - |
| 入居・引渡期間 | 相談 | 現況 | - |
| 入居可能条件 | ペット相談 | ||
| 契約備考 | 通勤管理/ペット飼育時:敷金+1ヶ月 退去時清掃費用借主負担 合計2.2万円(内訳:鍵交換代2.2万円) 口座振替手数料110円 3SLDK 二人入居可/ペット相談 損保【要】 バストイレ別、バルコニー、エアコン、クロゼット、フローリング、シャワー付洗面台、TVインターホン、浴室乾燥機、オートロック、室内洗濯置、陽当り良好、シューズボックス、システムキッチン、追焚機能浴室、角住戸、温水洗浄便座、脱衣所、エレベーター、洗面所独立、駐輪場、宅配ボックス、CATV、外壁タイル張り、閑静な住宅地、2面採光、3口以上コンロ、対面式キッチン、防犯カメラ、ペット相談、全居室収納、グリル付、全居室洋室、ウォークインクロゼット、保証人不要、二人入居相談、全居室フローリング、エアコン2台、ディンプルキー、CS、ネット使用料不要、床暖房、食器洗乾燥機、エアコン全室、ダブルロックキー、複層ガラス、3沿線以上利用可、駅徒歩10分以内、24時間ゴミ出し可、敷地内ごみ置き場、築5年以内、東南向き、日勤管理、洗面所にドア、三面鏡付洗面化粧台、シューズWIC、玄関収納、BS、保証会社利用可、初期費用カード決済可、通風良好 敷金積み増し【ペット飼育の場合敷金73万円(総額)】 | ||
部屋の情報
| 間取り | 3SLDK | 専有面積 | 80.78m2 |
|---|---|---|---|
| 所在階 / 向き | 2階 / 南東 | バルコニー面積 | - |
| 水道 / ガス | - | ||
| 設備 | バス・トイレ別、2階以上、オートロック、テレビドアホン、宅配ボックス、浴室乾燥機、ウォークインクローゼット、追い焚き、インターネット対応、システムキッチン、エアコン、エレベーター、温水洗浄便座、南向き、角部屋、バルコニー、フローリング、洗髪洗面化粧台、床暖房、2口コンロ、CATV、CSアンテナ、BSアンテナ、インターネット使用料無料、洗濯機:室内 | ||
| 当社物件ID | 148590823 | ||
建物の情報
| 建物名 | KDXレジデンス横濱紅葉坂 | ||
|---|---|---|---|
| 所在地 | 神奈川県横浜市西区紅葉ケ丘 | ||
| 交通 | ブルーライン 桜木町駅 徒歩7分 京急本線 日ノ出町駅 徒歩13分 みなとみらい線 馬車道駅 徒歩15分 | ||
| 階数 | 地下1地上6階建 | 総戸数 | - |
| 築年月 | 2021年03月 / 築5年 | エレベーター | あり |
| 駐車場 | 近隣 280m25000円 | バイク置き場 | - |
| 駐輪場 | あり | 管理人/管理会社 | - |
| 周辺環境 | その他 横浜市立本町小学校(小学校)まで364m その他 横浜市役所(役所)まで1043m その他 神奈川県立図書館(図書館)まで313m その他 北野エースCIAL桜木町店(スーパー)まで697m その他 ローソン横浜戸部町三丁目店(コンビニ)まで363m その他 クイーンズスクエア横浜(ショッピングセンター)まで1004m | ||
| 建物種別 | マンション | 建物構造 | RC(鉄筋コンクリート) |
この部屋の取扱い不動産会社
| 会社名 | ピタットハウス桜木町店(株)関東住宅流通(SUUMO経由) | ||
|---|---|---|---|
| 所在地 | 神奈川県横浜市中区花咲町1-53-1 | 交通 | - |
| 営業時間 | 9:30~19:30 | 定休日 | なし |
| 免許番号 | 神奈川県知事24582 | 取引態様 | 仲介 |
| 不動産会社管理番号 | 100479060397 | 当社管理番号 | 89 |
| 所属団体 | (公社)神奈川県宅地建物取引業協会会員 | ||
| 公正取引協議会 | (公社)首都圏不動産公正取引協議会加盟 | ||
| 取扱い物件情報 | 物件詳細へ | ||
※各種情報と現状に差異がある場合は、現状優先となります。問い合わせをすることで、より詳しい条件、情報を確認する事ができます。
提供:ピタットハウス桜木町店(株)関東住宅流通(SUUMO経由)
この物件が気になったら掲載期限まであと11日
KDXレジデンス横濱紅葉坂に条件(家賃・エリア)が近い物件一覧
| 写真 | 家賃 管理費等 | 敷金 礼金 | 間取り 専有面積 | 築年数 | 最寄り駅 所在地 | キープ | 詳細 |
|---|---|---|---|---|---|---|---|
マンション アヴェニール宮崎台(2LDK/3階) | |||||||
![]() | 21.4万円 9,000円 | 21.4万円 21.4万円 | 2LDK 66.09m2 | 築1年 | 東急田園都市線 宮崎台駅 徒歩8分 東急田園都市線 宮前平駅 徒歩19分 東急田園都市線 梶が谷駅 徒歩24分 神奈川県川崎市宮前区宮崎 | 詳細を見る | |
マンション 羽鳥5丁目ヘーベルハウス(2SLDK/1階) | |||||||
![]() | 22万円 なし | なし なし | 2SLDK 96.21m2 | 築3年 | 小田急江ノ島線 藤沢本町駅 徒歩20分 湘南新宿ライン高海 辻堂駅 徒歩29分 神奈川県藤沢市羽鳥 | 詳細を見る | |
マンション フローラルガーデン(1SLDK/2階) | |||||||
![]() | 22万円 なし | 22万円 22万円 | 1SLDK 57.43m2 | 築17年 | 東急東横線 武蔵小杉駅 徒歩4分 東急東横線 新丸子駅 徒歩9分 JR南武線 向河原駅 徒歩10分 神奈川県川崎市中原区新丸子東 | 詳細を見る | |
マンション FK&Y(3LDK/6階) | |||||||
![]() | 24.9万円 1.35万円 | 24.9万円 49.8万円 | 3LDK 75.98m2 | 新築 | 京急本線 戸部駅 徒歩1分 ブルーライン 高島町駅 徒歩6分 相鉄本線 平沼橋駅 徒歩8分 神奈川県横浜市西区戸部本町 | 詳細を見る | |
一戸建て 神奈川県横須賀市 築3年(3LDK) | |||||||
![]() | 23万円 なし | 46万円 23万円 | 3LDK 98.28m2 | 築3年 | 神奈川県横須賀市西浦賀5丁目 | 詳細を見る | |
マンション 4階建千年ヘーベルメゾン(2LDK/2階) | |||||||
![]() | 23.5万円 1.2万円 | 23.5万円 23.5万円 | 2LDK 70.79m2 | 新築 | JR南武線 武蔵新城駅 徒歩10分 JR南武線 武蔵中原駅 徒歩24分 東急田園都市線 梶が谷駅 徒歩30分 神奈川県川崎市高津区千年 | 詳細を見る | |
マンション ミサワホームズ藤沢(3LDK/13階) | |||||||
![]() | 23.5万円 1万円 | 23.5万円 23.5万円 | 3LDK 84.62m2 | 築27年 | JR東海道本線 藤沢駅 徒歩7分 小田急江ノ島線 藤沢駅 徒歩7分 神奈川県藤沢市藤沢 | 詳細を見る | |
マンション ブリリアイスト武蔵小杉(2LDK/10階) | |||||||
![]() | 24.4万円 1万円 | 24.4万円 なし | 2LDK 40.3m2 | 新築 | 東急東横線 新丸子駅 徒歩4分 東急東横線 武蔵小杉駅 徒歩5分 JR南武線 向河原駅 徒歩10分 神奈川県川崎市中原区新丸子東 | 詳細を見る | |









