賃貸テラスハウス
グランレトアの賃貸物件情報(3LDK)
| 家賃 | 管理費等 | 敷金 | 礼金 | 間取り | 専有面積 |
|---|---|---|---|---|---|
| 12.5万円 | 3,000円 | なし | 25万円 | 3LDK | 74.06m2 |
入居決定でお祝い金最大100,000円
Point
★福岡の賃貸・管理・売買は当社にお任せください★
提供:アパマンショップ博多駅東店

詳細情報 グランレトア
物件紹介
グランレトアは博多南線博多南駅から徒歩13分にあるテラスハウスです。
このお部屋のインターホンにはTVモニタがついているため、相手の顔を確認してから来客対応することができます。
人気の角部屋で周囲の居住者の生活音も気になりにくく、また、フローリングのお部屋なのでお掃除もラクラク。室内にはウォークインクローゼットがありますので、たくさんの荷物も効率的に収納ができます。バス・トイレ別の仕様で、のんびりお風呂タイムも楽しめます。
通信設備面ではBSアンテナ・CSアンテナがありますので、おうち時間も充実するでしょう(別途工事、契約料が必要な場合あり)。
このお部屋のインターホンにはTVモニタがついているため、相手の顔を確認してから来客対応することができます。
人気の角部屋で周囲の居住者の生活音も気になりにくく、また、フローリングのお部屋なのでお掃除もラクラク。室内にはウォークインクローゼットがありますので、たくさんの荷物も効率的に収納ができます。バス・トイレ別の仕様で、のんびりお風呂タイムも楽しめます。
通信設備面ではBSアンテナ・CSアンテナがありますので、おうち時間も充実するでしょう(別途工事、契約料が必要な場合あり)。
お金・契約の情報
※「-」と表示されているものは、実際は料金が発生するものもございます。詳細はお問い合わせください。
| 家賃 | 12.5万円 | 管理費・共益費 | 3,000円 |
|---|---|---|---|
| 敷金 | なし | 礼金 | 25万円 |
| 入居決定でお祝い金最大100,000円 | |||
| 保証金 | - | 償却・敷引 | - |
| 住宅保険料 | 890円(2年) | 更新料 | - |
| 保証会社利用 | 必須 | 保証会社名 | ふれんず宅建保証 |
| 保証会社費用 | - | 保証会社備考 | 初回のみ月額賃料等合計の50パーセント |
| 契約形態 | - | 契約期間 | 2年 |
| 入居・引渡期間 | 2026年01月中旬 | 現況 | - |
| 入居可能条件 | 2人入居可 | ||
| 契約備考 | ライフサポート24 880円/口座振替手数料 200円 | ||
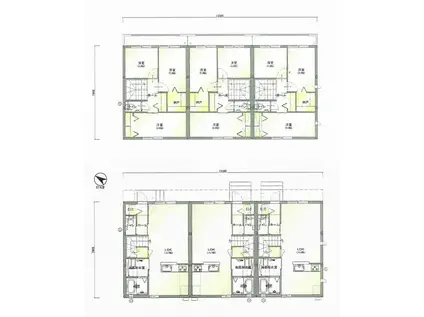
部屋の情報
| 間取り | 3LDK | 専有面積 | 74.06m2 |
|---|---|---|---|
| 所在階 / 向き | 1階 / 東 | バルコニー面積 | - |
| 水道 / ガス | ガス【都市】 | ||
| 設備 | バス・トイレ別、テレビドアホン、ウォークインクローゼット、追い焚き、温水洗浄便座、角部屋、フローリング、CSアンテナ、BSアンテナ、シャワー、給湯、洗濯機:室内、閑静な住宅街 | ||
| 当社物件ID | 159680072 | ||
建物の情報
| 建物名 | グランレトア | ||
|---|---|---|---|
| 所在地 | 福岡県福岡市南区弥永3丁目 | ||
| 交通 | 博多南線 博多南駅 徒歩13分 | ||
| 階数 | 2階建 | 総戸数 | - |
| 築年月 | 2026年01月 / 築1年 | エレベーター | - |
| 駐車場 | 空有 駐車場2台分無料 | バイク置き場 | - |
| 駐輪場 | - | 管理人/管理会社 | - |
| 周辺環境 | 小学校 福岡市立小学校弥永西小学校 徒歩6分(409m) 小学校 福岡市立小学校弥永小学校 徒歩10分(728m) その他 ファミリーマート福岡弥永三丁目店 徒歩4分(272m) その他 セブン−イレブン那珂川今光1丁目店 徒歩7分(497m) その他 ローソン今光二丁目店 徒歩6分(447m) その他 ファミリーマート福岡弥永4丁目店 徒歩8分(615m) その他 セブンイレブン春日下白水店 徒歩10分(749m) その他 マルショク那珂川店 徒歩11分(803m) | ||
| 建物種別 | テラスハウス | 建物構造 | 木造 |
この部屋の取扱い不動産会社
| 会社名 | アパマンショップ井尻店 | ||
|---|---|---|---|
| 所在地 | 福岡県福岡市南区井尻1丁目 40-10野上ビル2階 | 交通 | 西鉄天神大牟田線井尻から徒歩1分 |
| 営業時間 | 09:30〜18:00 | 定休日 | - |
| 免許番号 | 国土交通大臣(3)8462 | 取引態様 | 仲介 |
| 不動産会社管理番号 | 111156870 | 当社管理番号 | 4 |
| 所属団体 | (公社)全日本不動産協会福岡県本部 | ||
| 公正取引協議会 | (一社) 九州不動産公正取引協議会加盟 | ||
| 取扱い物件情報 | 物件詳細へ | ||
※各種情報と現状に差異がある場合は、現状優先となります。問い合わせをすることで、より詳しい条件、情報を確認する事ができます。
提供:アパマンショップ井尻店
この物件が気になったら掲載期限まであと6日
グランレトアに条件(家賃・エリア)が近い物件一覧
| 写真 | 家賃 管理費等 | 敷金 礼金 | 間取り 専有面積 | 築年数 | 最寄り駅 所在地 | キープ | 詳細 |
|---|---|---|---|---|---|---|---|
マンション LASANTE大橋リバーサイドテラス(2LDK/2階) | |||||||
![]() | 14.2万円 1万円 | 14.2万円 14.2万円 | 2LDK 58.84m2 | 築1年 | 西鉄天神大牟田線 井尻駅 徒歩12分 西鉄天神大牟田線 大橋駅(福岡) 徒歩16分 鹿児島本線 笹原駅 徒歩21分 福岡県福岡市南区折立町 | 詳細を見る | |
アパート D-ROOM野間大池(1LDK/3階) | |||||||
![]() | 8.5万円 6,000円 | なし 11万円 | 1LDK 42.93m2 | 築2年 | 西鉄天神大牟田線 大橋駅(福岡) 徒歩34分 西鉄天神大牟田線 西鉄平尾駅 徒歩40分 福岡県福岡市南区柳河内2丁目 | 詳細を見る | |
アパート トリシア野多目Ⅱ(2LDK/3階) | |||||||
![]() | 10.5万円 6,000円 | なし 20万円 | 2LDK 50.19m2 | 新築 | 博多南線 博多南駅 徒歩41分 福岡県福岡市南区野多目2丁目 | 詳細を見る | |
マンション サンライズN(2LDK/1階) | |||||||
![]() | 7.5万円 3,000円 | なし 15万円 | 2LDK 60.03m2 | 築14年 | 博多南線 博多南駅 徒歩22分 西鉄天神大牟田線 井尻駅 徒歩67分 鹿児島本線 南福岡駅 徒歩71分 福岡県那珂川市 | 詳細を見る | |
アパート クレシア井尻(1LDK/1階) | |||||||
![]() | 7.8万円 3,000円 | なし 7.8万円 | 1LDK 43.07m2 | 新築 | 西鉄天神大牟田線 井尻駅 徒歩7分 福岡県福岡市南区井尻1丁目 | 詳細を見る | |
アパート VRANZ博多南Ⅱ(3LDK/2階) | |||||||
![]() | 9.8万円 2,000円 | なし 24.5万円 | 3LDK 67.39m2 | 新築 | 博多南線 博多南駅 徒歩10分 鹿児島本線 南福岡駅 徒歩60分 鹿児島本線 春日駅(福岡) 徒歩61分 福岡県那珂川市 | 詳細を見る | |
マンション プレジデント春日(3LDK/2階) | |||||||
![]() | 9.4万円 3,500円 | なし 18.8万円 | 3LDK 57.02m2 | 築38年 | 鹿児島本線 春日駅(福岡) 徒歩4分 西鉄天神大牟田線 春日原駅 徒歩4分 鹿児島本線 南福岡駅 徒歩19分 福岡県春日市春日原北町4丁目 | 詳細を見る | |








