賃貸アパート
オクタビアの賃貸物件情報(2LDK/3階)
| 家賃 | 管理費等 | 敷金 | 礼金 | 間取り | 専有面積 |
|---|---|---|---|---|---|
| 23.2万円 | 5,000円 | 23.2万円 | 23.2万円 | 2LDK | 59.62m2 |
入居決定でお祝い金最大100,000円
Point
「未来基準の住まいで、今を心地よく。」 ゼロエミ2024対応・高断熱・省エネ仕様。忙しい日々に、安心と快適をプラスする新築2LDK。 ご内見予約お待ちしております。
提供:(株)リルセダー(SUUMO経由)

詳細情報 オクタビア
物件紹介
オクタビアは東急池上線大崎広小路駅から徒歩9分にあり、駅近で通勤通学に便利なアパートです。
このお部屋は2階以上に位置しているので、通行人や周囲の住人からの視線が気になりにくく、防犯面でも安心。インターホンにはTVモニタもついているため、相手の顔を確認してから来客対応することができます。
人気の南向きのお部屋。また、フローリングなのでお掃除もラクラク。キッチンはシステムキッチン仕様になっていますので、お料理好きの方にもぴったり。バス・トイレは別なので、のんびりお風呂タイムも楽しめるでしょう。また、雨の日でも浴室乾燥機を使えば、お洗濯も問題ありません。
通信設備面では、インターネット接続が可能です。また、CATVにも対応しているので、おうち時間も充実するでしょう(別途工事、契約料が必要な場合あり)。
共用部には宅配ボックスが設定されているので、不在の時にも荷物を受け取ることができます。
このお部屋は2階以上に位置しているので、通行人や周囲の住人からの視線が気になりにくく、防犯面でも安心。インターホンにはTVモニタもついているため、相手の顔を確認してから来客対応することができます。
人気の南向きのお部屋。また、フローリングなのでお掃除もラクラク。キッチンはシステムキッチン仕様になっていますので、お料理好きの方にもぴったり。バス・トイレは別なので、のんびりお風呂タイムも楽しめるでしょう。また、雨の日でも浴室乾燥機を使えば、お洗濯も問題ありません。
通信設備面では、インターネット接続が可能です。また、CATVにも対応しているので、おうち時間も充実するでしょう(別途工事、契約料が必要な場合あり)。
共用部には宅配ボックスが設定されているので、不在の時にも荷物を受け取ることができます。
お金・契約の情報
※「-」と表示されているものは、実際は料金が発生するものもございます。詳細はお問い合わせください。
| 家賃 | 23.2万円 | 管理費・共益費 | 5,000円 |
|---|---|---|---|
| 敷金 | 23.2万円 | 礼金 | 23.2万円 |
| 入居決定でお祝い金最大100,000円 | |||
| 保証金 | - | 償却・敷引 | - |
| 住宅保険料 | - | 更新料 | - |
| 保証会社利用 | 必須 | 保証会社名 | - |
| 保証会社費用 | - | 保証会社備考 | 保証会社利用必 ジェイリース株式会社 保証会社に加入いただきますが連帯保証人は必須です。初回保証料月額賃料等の50%・次年度以降10,000円・月次保証料月額500円 |
| 契約形態 | 定期借家 | 契約期間 | 2年 |
| 入居・引渡期間 | 即時 | 現況 | - |
| 契約備考 | 巡回管理/再契約時、新賃料の1か月分相当および33,000円がかかります/退去時、室内クリーニング費用は借主負担とします。 合計11.85万円(内訳:保証委託料11.85万円) 2LDK 二人入居可/ルームシェア相談 定期借家2年 損保【2万円2年】 バストイレ別、バルコニー、エアコン、クロゼット、フローリング、シャワー付洗面台、TVインターホン、浴室乾燥機、室内洗濯置、システムキッチン、追焚機能浴室、温水洗浄便座、駐輪場、宅配ボックス、CATV、光ファイバー、即入居可、閑静な住宅地、最上階、3口以上コンロ、グリル付、二人入居相談、全居室フローリング、2沿線利用可、築2年以内、24時間換気システム、ルームシェア相談、駅徒歩10分以内、敷地内ごみ置き場、南西向き、LDK12畳以上、都市ガス、IT重説対応物件 | ||
部屋の情報
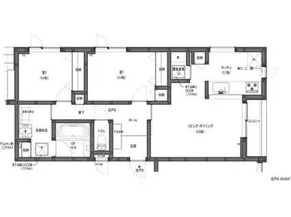
| 間取り | 2LDK | 専有面積 | 59.62m2 |
|---|---|---|---|
| 所在階 / 向き | 3階 / - | バルコニー面積 | - |
| 水道 / ガス | - | ||
| 設備 | バス・トイレ別、2階以上、テレビドアホン、宅配ボックス、浴室乾燥機、追い焚き、インターネット対応、システムキッチン、エアコン、温水洗浄便座、南向き、バルコニー、フローリング、2口コンロ、CATV、洗濯機:室内 | ||
| 当社物件ID | 159134927 | ||
建物の情報
| 建物名 | オクタビア | ||
|---|---|---|---|
| 所在地 | 東京都品川区大崎 | ||
| 交通 | 東急池上線 大崎広小路駅 徒歩9分 JR山手線 大崎駅 徒歩11分 | ||
| 階数 | 3階建 | 総戸数 | - |
| 築年月 | 2025年06月 / 築1年 | エレベーター | - |
| 駐車場 | なし | バイク置き場 | - |
| 駐輪場 | あり | 管理人/管理会社 | - |
| 周辺環境 | その他 品川区立大崎中学校(中学校)まで439m その他 大崎幼稚園(幼稚園・保育園)まで268m その他 品川区役所(役所)まで1547m その他 大崎三郵便局(郵便局)まで278m その他 大崎警察署(警察署・交番)まで576m その他 品川区立芳水小学校(小学校)まで424m | ||
| 建物種別 | アパート | 建物構造 | 木造 |
この部屋の取扱い不動産会社
| 会社名 | (株)リルセダー(SUUMO経由) | ||
|---|---|---|---|
| 所在地 | 東京都目黒区柿の木坂3-2-1 | 交通 | - |
| 営業時間 | AM9:00~PM18:00 | 定休日 | 年中無休 |
| 免許番号 | 東京都知事84571 | 取引態様 | 仲介 |
| 不動産会社管理番号 | 100437598997 | 当社管理番号 | 89 |
| 所属団体 | (公社)東京都宅地建物取引業協会会員 | ||
| 公正取引協議会 | (公社)首都圏不動産公正取引協議会加盟 | ||
| 取扱い物件情報 | 物件詳細へ | ||
※各種情報と現状に差異がある場合は、現状優先となります。問い合わせをすることで、より詳しい条件、情報を確認する事ができます。
提供:(株)リルセダー(SUUMO経由)
この物件が気になったら掲載期限まであと10日
オクタビアに条件(家賃・エリア)が近い物件一覧
| 写真 | 家賃 管理費等 | 敷金 礼金 | 間取り 専有面積 | 築年数 | 最寄り駅 所在地 | キープ | 詳細 |
|---|---|---|---|---|---|---|---|
マンション クレストコート門前仲町(1DK/10階) | |||||||
![]() | 15.5万円 1.2万円 | 15.5万円 なし | 1DK 26.14m2 | 築1年 | 東京都大江戸線 門前仲町駅 徒歩7分 東京地下鉄東西線 門前仲町駅 徒歩7分 東京地下鉄日比谷線 茅場町駅 徒歩15分 東京都江東区永代1丁目 | 詳細を見る | |
アパート イーストテラス大森東(2SLDK/1階) | |||||||
![]() | 19.7万円 3,000円 | 19.7万円 19.7万円 | 2SLDK 79.91m2 | 築1年 | 京急本線 梅屋敷駅(東京) 徒歩14分 京急本線 大森町駅 徒歩16分 東京都大田区大森東 | 詳細を見る | |
マンション ウエスト315(1SLDK/1階) | |||||||
![]() | 18.2万円 3,000円 | 18.2万円 18.2万円 | 1SLDK 54.07m2 | 築9年 | 京急本線 大森町駅 徒歩4分 京急本線 梅屋敷駅(東京) 徒歩11分 京急本線 京急蒲田駅 徒歩22分 東京都大田区大森西 | 詳細を見る | |
マンション PLUMERIA BLANE プルメリアブラン(1LDK/1階) | |||||||
![]() | 14.9万円 3,000円 | 14.9万円 14.9万円 | 1LDK 48.99m2 | 築9年 | 京浜急行電鉄本線 大森町駅 徒歩5分 京浜急行電鉄本線 平和島駅 徒歩12分 東京都大田区大森西3丁目 | 詳細を見る | |
一戸建て 東京都新宿線 大島駅(東京) 徒歩7分 築76年(1DK) | |||||||
![]() | 15.8万円 1万円 | 15.8万円 15.8万円 | 1DK 27.91m2 | 築76年 | 東京都新宿線 大島駅(東京) 徒歩7分 東京都新宿線 西大島駅 徒歩7分 総武・中央緩行線 亀戸駅 徒歩11分 東京都江東区大島3丁目 | 詳細を見る | |
マンション ドゥーエ西馬込2(2LDK/1階) | |||||||
![]() | 17.5万円 2万円 | 17.5万円 なし | 2LDK 45.34m2 | 築2年 | 東京都浅草線 西馬込駅 徒歩10分 東京都大田区仲池上1丁目 | 詳細を見る | |
マンション オーベルグランディオ萩中(2DK/12階) | |||||||
![]() | 18万円 1万円 | 18万円 18万円 | 2DK 50m2 | 築20年 | 京急空港線 糀谷駅 徒歩6分 京急空港線 大鳥居駅 徒歩15分 京急空港線 京急蒲田駅 徒歩17分 東京都大田区萩中 | 詳細を見る | |








