賃貸マンション
フェニックス目黒碑文谷の賃貸物件情報(1K/2階)
| 家賃 | 管理費等 | 敷金 | 礼金 | 間取り | 専有面積 |
|---|---|---|---|---|---|
| 8.6万円 | 1万円 | なし | 8.6万円 | 1K | 21.17m2 |
入居決定でお祝い金最大100,000円
- 保証金
- -
- 償却・敷引
- -
- 築年数
- 築21年
- 所在階
- 2階
- 向き
- 南東
Point
創業46周年。首都圏135店舗以上のネットワークでお部屋探しをサポート。自由が丘周辺や城南エリアなどの都心部から郊外まで豊富な物件情報をお客様へ提供いたします。
提供:(株)ランドワーク不動産(SUUMO経由)

詳細情報 フェニックス目黒碑文谷
物件紹介
フェニックス目黒碑文谷は東急東横線都立大学駅から徒歩9分にあり、駅近で通勤通学に便利なマンションです。
このお部屋は2階以上に位置しているので、通行人や周囲の住人からの視線が気になりにくく、防犯面でも安心。建物のエントランスはオートロックがついており、インターホンにはTVモニタもついているため、相手の顔を確認してから来客対応することができます。
人気の南向きのお部屋。また、フローリングなのでお掃除もラクラク。キッチンはシステムキッチン仕様になっていますので、お料理好きの方にもぴったり。バス・トイレは別なので、のんびりお風呂タイムも楽しめるでしょう。また、雨の日でも浴室乾燥機を使えば、お洗濯も問題ありません。
通信設備面では、インターネット接続が可能です。また、BSアンテナ・CSアンテナがありCATVにも対応しているので、おうち時間も充実するでしょう(別途工事、契約料が必要な場合あり)。
建物にはエレベーターがついているので、重い荷物があっても安心。共用部には宅配ボックスが設定されているので、不在の時にも荷物を受け取ることができます。
このお部屋は2階以上に位置しているので、通行人や周囲の住人からの視線が気になりにくく、防犯面でも安心。建物のエントランスはオートロックがついており、インターホンにはTVモニタもついているため、相手の顔を確認してから来客対応することができます。
人気の南向きのお部屋。また、フローリングなのでお掃除もラクラク。キッチンはシステムキッチン仕様になっていますので、お料理好きの方にもぴったり。バス・トイレは別なので、のんびりお風呂タイムも楽しめるでしょう。また、雨の日でも浴室乾燥機を使えば、お洗濯も問題ありません。
通信設備面では、インターネット接続が可能です。また、BSアンテナ・CSアンテナがありCATVにも対応しているので、おうち時間も充実するでしょう(別途工事、契約料が必要な場合あり)。
建物にはエレベーターがついているので、重い荷物があっても安心。共用部には宅配ボックスが設定されているので、不在の時にも荷物を受け取ることができます。
お金・契約の情報
※「-」と表示されているものは、実際は料金が発生するものもございます。詳細はお問い合わせください。
| 家賃 | 8.6万円 | 管理費・共益費 | 1万円 |
|---|---|---|---|
| 敷金 | なし | 礼金 | 8.6万円 |
| 入居決定でお祝い金最大100,000円 | |||
| 保証金 | - | 償却・敷引 | - |
| 住宅保険料 | - | 更新料 | - |
| 保証会社利用 | 必須 | 保証会社名 | - |
| 保証会社費用 | - | 保証会社備考 | 保証会社利用必 賃貸保証料:0.50ヶ月 初回保証料:総賃料の50%、月額手数料:総賃料の1%、※学英プランs:初回10,000円 ※外国籍の方はGTN(初回:70%、月額1330円)も相談 |
| 契約形態 | - | 契約期間 | - |
| 入居・引渡期間 | 相談 | 現況 | - |
| 契約備考 | 創業46周年、直営135店舗以上の独自のネットワークで最適なマンション・アパートをお探しします!お部屋探しからご契約までをオンラインでご対応できます!タウンハウジングは2024年賃貸仲介件数全国第4位!首都圏メインで全国4位の実績です!安心してお問合せ下さい!※退去時清掃費用借主負担※短期解約の場合、違約金あり 合計9.35万円(内訳:鍵交換代:22000円/室内清掃費用:55000円/24時間サポート:16500円) 更新料新賃料(ヶ月):1.00ヶ月、駐輪場:空有:500円/月 1K 単身者可 普通借家2年 損保【2.05万円2年】 バストイレ別、バルコニー、エアコン、ガスコンロ対応、クロゼット、フローリング、浴室乾燥機、オートロック、室内洗濯置、陽当り良好、シューズボックス、システムキッチン、エレベーター、2口コンロ、駐輪場、宅配ボックス、光ファイバー、外壁タイル張り、敷金不要、防犯カメラ、独立型キッチン、照明付、分譲賃貸、全居室洋室、保証人不要、単身者相談、全居室フローリング、2沿線利用可、ディンプルキー、眺望良好、エアコン全室、ダブルロックキー、保証金不要、24時間換気システム、2駅利用可、3駅以上利用可、駅徒歩10分以内、東南向き、全居室6畳以上、都市ガス、南面バルコニー、玄関収納、高速ネット対応、礼金1ヶ月、IT重説対応物件、通風良好 | ||
部屋の情報
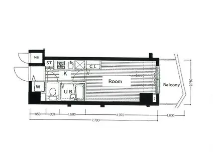
| 間取り | 1K | 専有面積 | 21.17m2 |
|---|---|---|---|
| 所在階 / 向き | 2階 / 南東 | バルコニー面積 | - |
| 水道 / ガス | - | ||
| 設備 | バス・トイレ別、2階以上、オートロック、宅配ボックス、浴室乾燥機、インターネット対応、システムキッチン、エアコン、エレベーター、南向き、バルコニー、フローリング、2口コンロ、コンロ:ガス、洗濯機:室内 | ||
| 当社物件ID | 160253092 | ||
建物の情報
| 建物名 | フェニックス目黒碑文谷 | ||
|---|---|---|---|
| 所在地 | 東京都目黒区碑文谷 | ||
| 交通 | 東急東横線 都立大学駅 徒歩9分 東急東横線 学芸大学駅 徒歩17分 東急目黒線 大岡山駅 徒歩18分 | ||
| 階数 | 8階建 | 総戸数 | - |
| 築年月 | 2005年04月 / 築21年 | エレベーター | あり |
| 駐車場 | なし | バイク置き場 | - |
| 駐輪場 | あり | 管理人/管理会社 | - |
| 周辺環境 | その他 スーパーオオゼキ(スーパー)まで417m その他 東急ストア(スーパー)まで667m その他 ローソン(コンビニ)まで234m その他 ツルハドラッグ(ドラッグストア)まで750m その他 ファミリーマート(コンビニ)まで660m その他 ココカラファイン(ドラッグストア)まで710m | ||
| 建物種別 | マンション | 建物構造 | RC(鉄筋コンクリート) |
この部屋の取扱い不動産会社
| 会社名 | (株)タウンハウジング東京 自由が丘店(SUUMO経由) | ||
|---|---|---|---|
| 所在地 | 東京都目黒区自由が丘1-31-10 AXビル2階 | 交通 | - |
| 営業時間 | AM10:00~PM7:00 | 定休日 | 水曜日 |
| 免許番号 | 国土交通大臣9926 | 取引態様 | 仲介 |
| 不動産会社管理番号 | 100484211894 | 当社管理番号 | 89 |
| 所属団体 | (公社)東京都宅地建物取引業協会会員 | ||
| 公正取引協議会 | (公社)首都圏不動産公正取引協議会加盟 | ||
| 取扱い物件情報 | 物件詳細へ | ||
※各種情報と現状に差異がある場合は、現状優先となります。問い合わせをすることで、より詳しい条件、情報を確認する事ができます。
提供:(株)タウンハウジング東京 自由が丘店(SUUMO経由)
この物件が気になったら掲載期限まであと10日
フェニックス目黒碑文谷に条件(家賃・エリア)が近い物件一覧
| 写真 | 家賃 管理費等 | 敷金 礼金 | 間取り 専有面積 | 築年数 | 最寄り駅 所在地 | キープ | 詳細 |
|---|---|---|---|---|---|---|---|
アパート エトワール(1LDK/2階) | |||||||
![]() | 12.9万円 6,000円 | なし 12.9万円 | 1LDK 32.59m2 | 築14年 | JR京浜東北線 大森駅(東京) 徒歩20分 都営浅草線 西馬込駅 徒歩21分 東急池上線 池上駅 徒歩21分 東京都大田区中央 | 詳細を見る | |
マンション ルーブル南馬込(1K/2階) | |||||||
![]() | 6.3万円 なし | なし 6.3万円 | 1K 16.44m2 | 築34年 | JR京浜東北線 大森駅(東京) 徒歩15分 都営浅草線 馬込駅 徒歩16分 都営浅草線 西馬込駅 徒歩18分 東京都大田区南馬込 | 詳細を見る | |
マンション ネオコート久が原(ワンルーム/1階) | |||||||
![]() | 7.8万円 4,000円 | なし 3.9万円 | ワンルーム 27.37m2 | 築29年 | 東急池上線 池上駅 徒歩13分 東急池上線 千鳥町駅 徒歩14分 東急多摩川線 武蔵新田駅 徒歩20分 東京都大田区久が原 | 詳細を見る | |
マンション フロレシオ(1LDK/1階) | |||||||
![]() | 13.3万円 3,000円 | 13.3万円 13.3万円 | 1LDK 47.85m2 | 築13年 | 京浜急行電鉄本線 大森町駅 徒歩12分 京浜急行電鉄本線 梅屋敷駅(東京) 徒歩16分 東京都大田区大森東3丁目 | 詳細を見る | |
アパート SEED SAVE PETIRASU Ⅲ(1LDK/3階) | |||||||
![]() | 10.7万円 1万円 | 21.4万円 10.7万円 | 1LDK 30.55m2 | 新築 | 東京モノレール羽田 昭和島駅 徒歩12分 京浜急行電鉄本線 大森町駅 徒歩18分 東京都大田区大森東5丁目 | 詳細を見る | |
マンション ジェノヴィア蒲田3スカイガーデン(1K/4階) | |||||||
![]() | 12万円 1.5万円 | なし なし | 1K 25.41m2 | 築5年 | 京浜急行電鉄本線 京急蒲田駅 徒歩6分 京浜急行電鉄空港線 糀谷駅 徒歩10分 京浜東北・根岸線 蒲田駅 徒歩15分 東京都大田区南蒲田2丁目 | 詳細を見る | |
マンション DEXTER PARK 多摩川(1K/3階) | |||||||
![]() | 8.2万円 4,000円 | 8.2万円 8.2万円 | 1K 25.08m2 | 築18年 | 京浜急行電鉄本線 六郷土手駅 徒歩3分 京浜急行電鉄大師線 港町駅 徒歩17分 東京都大田区仲六郷4丁目 | 詳細を見る | |







