賃貸マンション
坂本コーポの賃貸物件情報(2DK/4階)
| 家賃 | 管理費等 | 敷金 | 礼金 | 間取り | 専有面積 |
|---|---|---|---|---|---|
| 4.5万円 | 2,000円 | 9万円 | なし | 2DK | 43.57m2 |
入居決定でお祝い金最大100,000円
Point
宇野駅徒歩徒歩14分・ハピータウン徒歩1分・生活便利
提供:玉野地所(SUUMO経由)

詳細情報 坂本コーポ
物件紹介
坂本コーポはJR宇野線宇野駅から徒歩14分にあるマンションです。
このお部屋は2階以上に位置しているので、通行人や周囲の住人からの視線が気になりにくく、防犯面でも安心です。
人気の南向きのお部屋。角部屋でもあるため、周囲の居住者の生活音も気になりにくい場所です。バス・トイレ別の仕様で、のんびりお風呂タイムも楽しめます。
このお部屋は2階以上に位置しているので、通行人や周囲の住人からの視線が気になりにくく、防犯面でも安心です。
人気の南向きのお部屋。角部屋でもあるため、周囲の居住者の生活音も気になりにくい場所です。バス・トイレ別の仕様で、のんびりお風呂タイムも楽しめます。
お金・契約の情報
※「-」と表示されているものは、実際は料金が発生するものもございます。詳細はお問い合わせください。
| 家賃 | 4.5万円 | 管理費・共益費 | 2,000円 |
|---|---|---|---|
| 敷金 | 9万円 | 礼金 | なし |
| 入居決定でお祝い金最大100,000円 | |||
| 保証金 | - | 償却・敷引 | - |
| 住宅保険料 | - | 更新料 | - |
| 契約形態 | - | 契約期間 | - |
| 入居・引渡期間 | 相談 | 現況 | - |
| 契約備考 | 駐車場なし 2DK バストイレ別、エアコン、陽当り良好、南向き、角住戸、温水洗浄便座、脱衣所、洗面所独立、礼金不要、最上階、平坦地、前面棟無、始発駅、バス停徒歩3分以内、南面バルコニー、通風良好 | ||
部屋の情報
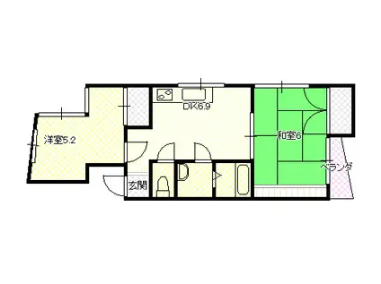
| 間取り | 2DK | 専有面積 | 43.57m2 |
|---|---|---|---|
| 所在階 / 向き | 4階 / 南 | バルコニー面積 | - |
| 水道 / ガス | - | ||
| 設備 | バス・トイレ別、2階以上、エアコン、温水洗浄便座、南向き、角部屋、バルコニー、洗髪洗面化粧台 | ||
| 当社物件ID | 42647063 | ||
建物の情報
| 建物名 | 坂本コーポ | ||
|---|---|---|---|
| 所在地 | 岡山県玉野市宇野 | ||
| 交通 | JR宇野線 宇野駅 徒歩14分 | ||
| 階数 | 4階建 | 総戸数 | - |
| 築年月 | 1990年02月 / 築37年 | エレベーター | - |
| 駐車場 | なし | バイク置き場 | - |
| 駐輪場 | - | 管理人/管理会社 | - |
| 周辺環境 | その他 セブンイレブン玉野宇野1丁目店(コンビニ)まで454m その他 天満屋ハピータウン玉野店(スーパー)まで167m その他 玉野市役所(役所)まで205m その他 玉野市立宇野中学校(中学校)まで1178m その他 玉野市立宇野小学校(小学校)まで818m その他 鮮Do!エブリイ玉野店(スーパー)まで847m | ||
| 建物種別 | マンション | 建物構造 | 鉄骨造 |
この部屋の取扱い不動産会社
| 会社名 | 玉野地所(SUUMO経由) | ||
|---|---|---|---|
| 所在地 | 岡山県玉野市宇野1-20-31-101 | 交通 | - |
| 営業時間 | 9:00~18:00 | 定休日 | 日曜・祝日 |
| 免許番号 | 岡山県知事4463 | 取引態様 | 仲介 |
| 不動産会社管理番号 | 100055962949 | 当社管理番号 | 89 |
| 所属団体 | (公社)岡山県宅地建物取引業協会会員 | ||
| 公正取引協議会 | 中国地区不動産公正取引協議会加盟 | ||
| 取扱い物件情報 | 物件詳細へ | ||
※各種情報と現状に差異がある場合は、現状優先となります。問い合わせをすることで、より詳しい条件、情報を確認する事ができます。
提供:玉野地所(SUUMO経由)
この物件が気になったら掲載期限まであと9日
坂本コーポに条件(家賃・エリア)が近い物件一覧
| 写真 | 家賃 管理費等 | 敷金 礼金 | 間取り 専有面積 | 築年数 | 最寄り駅 所在地 | キープ | 詳細 |
|---|---|---|---|---|---|---|---|
マンション アクティブイン高島(1K/1階) | |||||||
![]() | 2.7万円 3,000円 | なし なし | 1K 27.72m2 | 築36年 | JR山陽本線 高島駅(岡山) 徒歩9分 JR山陽本線 西川原駅 徒歩26分 JR津山線 法界院駅 徒歩42分 岡山県岡山市中区高島新屋敷 | 詳細を見る | |
マンション アルファレガロ南中央町(1K/9階) | |||||||
![]() | 6.2万円 5,000円 | 12.4万円 6.2万円 | 1K 27.45m2 | 築3年 | 岡山電軌清輝橋線 東中央町駅 徒歩3分 岡山電軌清輝橋線 大雲寺前駅 徒歩4分 岡山電軌清輝橋線 新西大寺町筋駅 徒歩7分 岡山県岡山市北区南中央町 | 詳細を見る | |
アパート RASA WAVE(1K/3階) | |||||||
![]() | 3.7万円 2,000円 | なし なし | 1K 20.5m2 | 築10年 | 山陽本線 高島駅(岡山) 徒歩25分 山陽本線 西川原駅 徒歩26分 岡山電軌東山本線 東山・おかでんミュージアム駅駅 徒歩26分 岡山県岡山市中区原尾島2丁目 | 詳細を見る | |
一戸建て 岡山電軌東山本線 東山・おかでんミュージアム駅駅 徒歩10分 築56年(3K) | |||||||
![]() | 4.4万円 1万円 | なし なし | 3K 55.87m2 | 築56年 | 岡山電軌東山本線 東山・おかでんミュージアム駅駅 徒歩10分 岡山電軌東山本線 門田屋敷駅 徒歩14分 岡山電軌東山本線 中納言駅 徒歩17分 岡山県岡山市中区門田文化町2丁目 | 詳細を見る | |
アパート あけぼの一世(1K/1階) | |||||||
![]() | 3万円 1,000円 | なし なし | 1K 24.42m2 | 築38年 | 岡山電軌東山本線 東山・おかでんミュージアム駅駅 徒歩13分 岡山電軌東山本線 門田屋敷駅 徒歩16分 岡山電軌東山本線 中納言駅 徒歩19分 岡山県岡山市中区門田本町2丁目 | 詳細を見る | |
アパート コンフォートD棟(2DK/2階) | |||||||
![]() | 6.1万円 4,000円 | なし なし | 2DK 52.8m2 | 築22年 | 岡山県岡山市中区平井 | 詳細を見る | |
マンション ハートフル医大西(1LDK/4階) | |||||||
![]() | 7万円 6,000円 | なし 7万円 | 1LDK 41.11m2 | 築15年 | 宇野線 大元駅 徒歩8分 岡山電軌清輝橋線 清輝橋駅 徒歩13分 岡山県岡山市北区東古松1丁目 | 詳細を見る | |
マンション エバーグリーン東古松(3LDK/3階) | |||||||
![]() | 6.5万円 4,000円 | なし 6.5万円 | 3LDK 59.63m2 | 築31年 | 宇野線 大元駅 徒歩7分 岡山電軌清輝橋線 清輝橋駅 徒歩18分 岡山電軌清輝橋線 東中央町駅 徒歩22分 岡山県岡山市北区東古松3丁目 | 詳細を見る | |








