賃貸マンション
ル・リオン大塚の賃貸物件情報(ワンルーム/5階)
| 家賃 | 管理費等 | 敷金 | 礼金 | 間取り | 専有面積 |
|---|---|---|---|---|---|
| 9万円 | 1万円 | 9万円 | 9万円 | ワンルーム | 20.47m2 |
入居決定でお祝い金最大100,000円
- 保証金
- -
- 償却・敷引
- 9万円
- 築年数
- 築12年
- 所在階
- 5階
- 向き
- 南東
Point
【業界新システム】正直不動産公式副読本掲載の話題沸騰店舗☆
提供:神宮前不動産(株)公園前店(SUUMO経由)

詳細情報 ル・リオン大塚
物件紹介
ル・リオン大塚はJR山手線大塚駅から徒歩5分にあり、駅近で通勤通学に便利なマンションです。
このお部屋は2階以上に位置しているので、通行人や周囲の住人からの視線が気になりにくく、防犯面でも安心。建物のエントランスはオートロックがついており、インターホンにはTVモニタもついているため、相手の顔を確認してから来客対応することができます。
人気の南向きのお部屋。また、フローリングなのでお掃除もラクラク。キッチンはシステムキッチン仕様になっていますので、お料理好きの方にもぴったり。バス・トイレは別なので、のんびりお風呂タイムも楽しめるでしょう。また、雨の日でも浴室乾燥機を使えば、お洗濯も問題ありません。
建物にはエレベーターがついているので、重い荷物があっても安心。共用部には宅配ボックスが設定されているので、不在の時にも荷物を受け取ることができます。また、ペット飼育の相談ができますので、あなたの大切な家族の一員も快適に暮らせるか、ぜひ確認してみてください。
このお部屋は2階以上に位置しているので、通行人や周囲の住人からの視線が気になりにくく、防犯面でも安心。建物のエントランスはオートロックがついており、インターホンにはTVモニタもついているため、相手の顔を確認してから来客対応することができます。
人気の南向きのお部屋。また、フローリングなのでお掃除もラクラク。キッチンはシステムキッチン仕様になっていますので、お料理好きの方にもぴったり。バス・トイレは別なので、のんびりお風呂タイムも楽しめるでしょう。また、雨の日でも浴室乾燥機を使えば、お洗濯も問題ありません。
建物にはエレベーターがついているので、重い荷物があっても安心。共用部には宅配ボックスが設定されているので、不在の時にも荷物を受け取ることができます。また、ペット飼育の相談ができますので、あなたの大切な家族の一員も快適に暮らせるか、ぜひ確認してみてください。
お金・契約の情報
※「-」と表示されているものは、実際は料金が発生するものもございます。詳細はお問い合わせください。
| 家賃 | 9万円 | 管理費・共益費 | 1万円 |
|---|---|---|---|
| 敷金 | 9万円 | 礼金 | 9万円 |
| 入居決定でお祝い金最大100,000円 | |||
| 保証金 | - | 償却・敷引 | 9万円 |
| 住宅保険料 | - | 更新料 | - |
| 保証会社利用 | 必須 | 保証会社名 | - |
| 保証会社費用 | - | 保証会社備考 | 保証会社利用必 エポスカード 初回保証料月額総賃料の50% 年間更新料15000円 |
| 契約形態 | - | 契約期間 | - |
| 入居・引渡期間 | 相談 | 現況 | - |
| 入居可能条件 | ペット相談 | ||
| 契約備考 | 巡回管理/【業界新システム】正直不動産公式副読本掲載の話題沸騰店舗☆ 合計6.05万円(内訳:Eリリーブ2.75万円鍵交換代3.3万円) 更新料 新賃料1.50ヶ月分 ワンルーム 単身者限定/ペット相談 普通借家2年 損保【2.3万円2年】 バストイレ別、バルコニー、エアコン、ガスコンロ対応、クロゼット、フローリング、TVインターホン、浴室乾燥機、オートロック、室内洗濯置、シューズボックス、システムキッチン、温水洗浄便座、エレベーター、洗面所独立、2口コンロ、宅配ボックス、防犯カメラ、ペット相談、全居室収納、分譲賃貸、保証人不要、敷金1ヶ月、全居室フローリング、ディンプルキー、ダブルロックキー、保証金不要、24時間ゴミ出し可、東南向き、都市ガス、礼金1ヶ月 | ||
部屋の情報
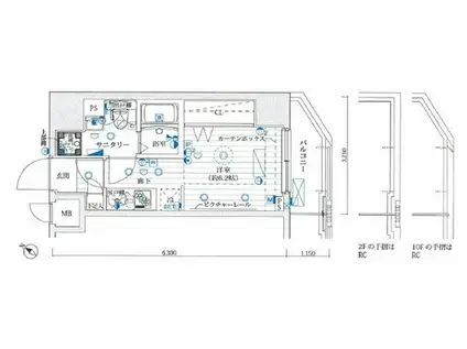
| 間取り | ワンルーム | 専有面積 | 20.47m2 |
|---|---|---|---|
| 所在階 / 向き | 5階 / 南東 | バルコニー面積 | - |
| 水道 / ガス | - | ||
| 設備 | バス・トイレ別、2階以上、オートロック、テレビドアホン、宅配ボックス、浴室乾燥機、システムキッチン、エアコン、エレベーター、温水洗浄便座、南向き、バルコニー、フローリング、洗髪洗面化粧台、2口コンロ、コンロ:ガス、洗濯機:室内 | ||
| 当社物件ID | 15083514 | ||
建物の情報
| 建物名 | ル・リオン大塚 | ||
|---|---|---|---|
| 所在地 | 東京都豊島区南大塚 | ||
| 交通 | JR山手線 大塚駅(東京) 徒歩5分 JR山手線 巣鴨駅 徒歩9分 東京メトロ丸ノ内線 新大塚駅 徒歩10分 | ||
| 階数 | 10階建 | 総戸数 | - |
| 築年月 | 2014年06月 / 築12年 | エレベーター | あり |
| 駐車場 | なし | バイク置き場 | - |
| 駐輪場 | - | 管理人/管理会社 | - |
| 建物種別 | マンション | 建物構造 | RC(鉄筋コンクリート) |
この部屋の取扱い不動産会社
| 会社名 | 神宮前不動産(株)公園前店(SUUMO経由) | ||
|---|---|---|---|
| 所在地 | 東京都渋谷区神宮前6-23-11 J-SIXビル6階 | 交通 | - |
| 営業時間 | 10:00~19:00 | 定休日 | 水 |
| 免許番号 | 東京都知事105473 | 取引態様 | 仲介 |
| 不動産会社管理番号 | 100487071338 | 当社管理番号 | 89 |
| 所属団体 | (公社)全日本不動産協会東京都本部会員 | ||
| 公正取引協議会 | (公社)首都圏不動産公正取引協議会加盟 | ||
| 取扱い物件情報 | 物件詳細へ | ||
※各種情報と現状に差異がある場合は、現状優先となります。問い合わせをすることで、より詳しい条件、情報を確認する事ができます。
提供:神宮前不動産(株)公園前店(SUUMO経由)
この物件が気になったら掲載期限まであと11日
ル・リオン大塚に条件(家賃・エリア)が近い物件一覧
| 写真 | 家賃 管理費等 | 敷金 礼金 | 間取り 専有面積 | 築年数 | 最寄り駅 所在地 | キープ | 詳細 |
|---|---|---|---|---|---|---|---|
アパート GLANZWING音羽(ワンルーム/2階) | |||||||
![]() | 7.5万円 3,000円 | 7.5万円 7.5万円 | ワンルーム 16.26m2 | 築6年 | 東京地下鉄有楽町線 江戸川橋駅 徒歩5分 東京地下鉄有楽町線 護国寺駅 徒歩8分 東京地下鉄丸ノ内線 茗荷谷駅 徒歩14分 東京都文京区音羽1丁目 | 詳細を見る | |
マンション サムティ京都西大路(1K/5階) | |||||||
![]() | 6.38万円 5,200円 | なし 6.9万円 | 1K 22.71m2 | 築11年 | 東海道本線 西大路駅 徒歩12分 阪急電鉄京都線 西京極駅 徒歩22分 京都府京都市下京区西七条南衣田町 | 詳細を見る | |
マンション ミリオンコート駒込(1K/5階) | |||||||
![]() | 6.5万円 8,000円 | 6.5万円 6.5万円 | 1K 16.51m2 | 築37年 | 山手線 駒込駅 徒歩7分 山手線 田端駅 徒歩11分 東京地下鉄南北線 駒込駅 徒歩12分 東京都北区中里3丁目 | 詳細を見る | |
アパート ヒルズ西片町(1K/1階) | |||||||
![]() | 8.6万円 3,000円 | 4.3万円 17.2万円 | 1K 21.53m2 | 築20年 | 東京地下鉄南北線 東大前駅 徒歩7分 東京都三田線 春日駅(東京) 徒歩9分 東京地下鉄丸ノ内線 後楽園駅 徒歩12分 東京都文京区西片2丁目 | 詳細を見る | |
マンション パレドール文京メトロプラザ1(ワンルーム/5階) | |||||||
![]() | 6.9万円 6,000円 | 6.9万円 6.9万円 | ワンルーム 18.36m2 | 築43年 | 東京地下鉄丸ノ内線 新大塚駅 徒歩1分 札幌市南北線 麻生駅 徒歩5分 東京都荒川線 向原駅(東京) 徒歩9分 東京地下鉄有楽町線 護国寺駅 徒歩10分 東京都文京区大塚5丁目 | 詳細を見る | |
マンション ガリシア グランデ 江戸川橋(1K/7階) | |||||||
![]() | 11万円 1.5万円 | 11万円 なし | 1K 25.83m2 | 築13年 | 札幌市南北線 麻生駅 徒歩2分 東京地下鉄有楽町線 江戸川橋駅 徒歩5分 東京地下鉄東西線 神楽坂駅 徒歩11分 東京都文京区水道2丁目 | 詳細を見る | |
マンション パークウェル千駄木弐番館(1K/9階) | |||||||
![]() | 8.9万円 4,000円 | なし 17.8万円 | 1K 20.16m2 | 築19年 | 山手線 田端駅 徒歩10分 東京地下鉄千代田線 千駄木駅 徒歩12分 東京地下鉄南北線 本駒込駅 徒歩12分 東京都文京区千駄木4丁目 | 詳細を見る | |
マンション SYNEX HON-KOMAGOME(1K/1階) | |||||||
![]() | 8.4万円 8,000円 | 8.4万円 8.4万円 | 1K 22.8m2 | 築19年 | 東京地下鉄南北線 本駒込駅 徒歩5分 東京都三田線 千石駅 徒歩10分 東京都三田線 白山駅(東京) 徒歩10分 東京都文京区本駒込1丁目 | 詳細を見る | |









