賃貸マンション
関西本線 平城山駅 徒歩31分 3階建 築23年の賃貸物件情報(2LDK/2階)
| 家賃 | 管理費等 | 敷金 | 礼金 | 間取り | 専有面積 |
|---|---|---|---|---|---|
| 6.3万円 | 5,000円 | 6.3万円 | なし | 2LDK | 60m2 |
入居決定でお祝い金最大100,000円
Point
ペット飼えます お問合せは京都ライフ京田辺店まで。
提供:株式会社 京都ライフ 小倉店(賃貸スモッカ経由)

詳細情報 関西本線 平城山駅 徒歩31分 3階建 築23年
物件紹介
関西本線平城山駅から徒歩31分にあるマンションです。
このお部屋は2階以上に位置しているので、通行人や周囲の住人からの視線が気になりにくく、防犯面でも安心です。
人気の南向き・フローリングのお部屋。角部屋でもあるため、周囲の居住者の生活音も気になりにくい場所です。バス・トイレ別の仕様で、のんびりお風呂タイムも楽しめます。また、浴室乾燥機を使えば、雨の日でもお洗濯は問題ありません。
通信設備面ではCATVに対応しているので、おうち時間も充実するでしょう(別途工事、契約料が必要な場合あり)。
このお部屋は2階以上に位置しているので、通行人や周囲の住人からの視線が気になりにくく、防犯面でも安心です。
人気の南向き・フローリングのお部屋。角部屋でもあるため、周囲の居住者の生活音も気になりにくい場所です。バス・トイレ別の仕様で、のんびりお風呂タイムも楽しめます。また、浴室乾燥機を使えば、雨の日でもお洗濯は問題ありません。
通信設備面ではCATVに対応しているので、おうち時間も充実するでしょう(別途工事、契約料が必要な場合あり)。
お金・契約の情報
※「-」と表示されているものは、実際は料金が発生するものもございます。詳細はお問い合わせください。
| 家賃 | 6.3万円 | 管理費・共益費 | 5,000円 |
|---|---|---|---|
| 敷金 | 6.3万円 | 礼金 | なし |
| 入居決定でお祝い金最大100,000円 | |||
| 保証金 | - | 償却・敷引 | - |
| 住宅保険料 | 住宅保険料あり | 更新料 | - |
| 契約形態 | - | 契約期間 | 2年 |
| 入居・引渡期間 | 2026年03月上旬 | 現況 | 賃貸中 |
| 契約備考 | ペット飼育可能アパート、連帯保証人不要物件。お問合せは京都ライフ京田辺店まで。 抗菌除菌処理代:17,050円 ファイテック消火剤:4,950円 更新料:無し 保証会社:利用必須 初回:1万円、月額:システム利用料として月額賃料等の1% その他設備/条件:独立洗面台 | ||
部屋の情報
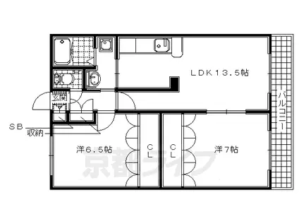
| 間取り | 2LDK | 専有面積 | 60m2 |
|---|---|---|---|
| 間取り詳細 | 洋室(6.5帖)、洋室(7帖)、LDK(13.5帖) | ||
| 所在階 / 向き | 2階 / 南西 | バルコニー面積 | - |
| 水道 / ガス | ガス【都市】 | ||
| 設備 | バス・トイレ別、2階以上、浴室乾燥機、追い焚き、エアコン、温水洗浄便座、南向き、角部屋、バルコニー、フローリング、CATV、洗濯機:室内 | ||
| 当社物件ID | 160378911 | ||
建物の情報
| 建物名 | 関西本線 平城山駅 徒歩31分 3階建 築23年 | ||
|---|---|---|---|
| 所在地 | 京都府木津川市州見台1丁目 | ||
| 交通 | 関西本線 平城山駅 徒歩31分 奈良線 木津駅(京都) 徒歩41分 | ||
| 階数 | 3階建 | 総戸数 | - |
| 築年月 | 2003年06月 / 築23年 | エレベーター | - |
| 駐車場 | - | バイク置き場 | - |
| 駐輪場 | あり | 管理人/管理会社 | - |
| 建物種別 | マンション | 建物構造 | 鉄骨造 |
この部屋の取扱い不動産会社
| 会社名 | 株式会社 京都ライフ 小倉店(賃貸スモッカ経由) | ||
|---|---|---|---|
| 所在地 | 宇治市小倉町神楽田21-5 | 交通 | - |
| 営業時間 | - | 定休日 | - |
| 免許番号 | 京都府知事(11)第6353号 | 取引態様 | 仲介 |
| 不動産会社管理番号 | kyotolife_04E12-206-11 | 当社管理番号 | 463 |
| 所属団体 | 京都府宅地建物取引業協会\n公益社団法人近畿地区不動産公正取引協議会 | ||
| 公正取引協議会 | 全国宅地建物取引業保証協会 | ||
| 取扱い物件情報 | 物件詳細へ | ||
※各種情報と現状に差異がある場合は、現状優先となります。問い合わせをすることで、より詳しい条件、情報を確認する事ができます。
提供:株式会社 京都ライフ 小倉店(賃貸スモッカ経由)
この物件が気になったら掲載期限まであと5日
関西本線 平城山駅 徒歩31分 3階建 築23年に条件(家賃・エリア)が近い物件一覧
| 写真 | 家賃 管理費等 | 敷金 礼金 | 間取り 専有面積 | 築年数 | 最寄り駅 所在地 | キープ | 詳細 |
|---|---|---|---|---|---|---|---|
アパート レオネクスト サウスウェイヴ(1LDK/1階) | |||||||
![]() | 6万円 7,500円 | なし 6万円 | 1LDK 42.72m2 | 築17年 | JR片町線 木津駅(京都) 徒歩41分 JR奈良線 木津駅(京都) 徒歩41分 JR関西本線 平城山駅 徒歩45分 京都府木津川市梅美台 | 詳細を見る | |
アパート バーベナ光台 EI棟(2DK/1階) | |||||||
![]() | 5.2万円 4,000円 | 2万円 6万円 | 2DK 44.28m2 | 築31年 | 片町線 祝園駅 徒歩63分 近鉄京都線 新祝園駅 徒歩63分 京都府相楽郡精華町光台 | 詳細を見る | |
アパート 近鉄京都線 山田川駅 徒歩18分 築22年(1K/1階) | |||||||
![]() | 4.8万円 2,900円 | なし なし | 1K 25.41m2 | 築22年 | 近鉄京都線 山田川駅 徒歩18分 近鉄京都線 高の原駅 徒歩20分 京都府相楽郡精華町桜が丘1丁目 | 詳細を見る | |
アパート 近鉄京都線 高の原駅 徒歩20分 築25年(3LDK/1階) | |||||||
![]() | 7万円 4,000円 | 7万円 7万円 | 3LDK 67.32m2 | 築25年 | 近鉄京都線 高の原駅 徒歩20分 近鉄京都線 山田川駅 徒歩23分 京都府相楽郡精華町桜が丘2丁目 | 詳細を見る | |
アパート フォレスト木津B(2LDK/1階) | |||||||
![]() | 8.5万円 5,000円 | なし 10万円 | 2LDK 62.79m2 | 新築 | 片町線 木津駅(京都) 徒歩7分 片町線 西木津駅 徒歩23分 京都府木津川市 | 詳細を見る | |
アパート 片町線 木津駅(京都) 徒歩7分 新築(2LDK/2階) | |||||||
![]() | 8.6万円 5,000円 | なし 10万円 | 2LDK 64.63m2 | 新築 | 片町線 木津駅(京都) 徒歩7分 片町線 西木津駅 徒歩23分 京都府木津川市 | 詳細を見る | |
アパート レオパレスビューヒルズテン(1K/3階) | |||||||
![]() | 5.2万円 7,000円 | なし 5.2万円 | 1K 26.08m2 | 築18年 | 関西本線 平城山駅 徒歩42分 奈良線 木津駅(京都) 徒歩43分 京都府木津川市梅美台 | 詳細を見る | |
アパート 片町線 木津駅(京都) 徒歩7分 新築(2LDK/1階) | |||||||
![]() | 8.5万円 5,000円 | なし 10万円 | 2LDK 64.63m2 | 新築 | 片町線 木津駅(京都) 徒歩7分 片町線 西木津駅 徒歩23分 京都府木津川市 | 詳細を見る | |







