賃貸マンション
メインステージ東武練馬の賃貸物件情報(1LDK/5階)
| 家賃 | 管理費等 | 敷金 | 礼金 | 間取り | 専有面積 |
|---|---|---|---|---|---|
| 14.75万円 | 1.5万円 | なし | 14.75万円 | 1LDK | 35.91m2 |
入居決定でお祝い金最大100,000円
Point
収納はシューズボックス・クロゼットなどが備え付けられているので、衣類や日用品の収納に重宝します。
提供:ハウスコム東東京株式会社 池袋西口店

詳細情報 メインステージ東武練馬
物件紹介
メインステージ東武練馬は東武鉄道東上線東武練馬駅から徒歩12分にあるマンションです。
このお部屋は2階以上に位置しているので、通行人や周囲の住人からの視線が気になりにくく、防犯面でも安心。建物のエントランスはオートロックがついており、インターホンにはTVモニタもついているため、相手の顔を確認してから来客対応することができます。
人気の角部屋で周囲の居住者の生活音も気になりにくく、また、フローリングのお部屋なのでお掃除もラクラク。キッチンはシステムキッチン仕様になっていますので、お料理好きの方にもぴったり。バス・トイレは別なので、のんびりお風呂タイムも楽しめるでしょう。また、雨の日でも浴室乾燥機を使えば、お洗濯も問題ありません。
通信設備面では、インターネットが無料で使えるので、月々の出費を抑えられるのも魅力です(別途工事等が必要な場合あり)。
建物にはエレベーターがついているので、重い荷物があっても安心。共用部には宅配ボックスが設定されているので、不在の時にも荷物を受け取ることができます。また、ペット飼育の相談ができますので、あなたの大切な家族の一員も快適に暮らせるか、ぜひ確認してみてください。
コンビニまで徒歩15分の場所にあり、日用品や食料品のお買い物にも便利です。
このお部屋は2階以上に位置しているので、通行人や周囲の住人からの視線が気になりにくく、防犯面でも安心。建物のエントランスはオートロックがついており、インターホンにはTVモニタもついているため、相手の顔を確認してから来客対応することができます。
人気の角部屋で周囲の居住者の生活音も気になりにくく、また、フローリングのお部屋なのでお掃除もラクラク。キッチンはシステムキッチン仕様になっていますので、お料理好きの方にもぴったり。バス・トイレは別なので、のんびりお風呂タイムも楽しめるでしょう。また、雨の日でも浴室乾燥機を使えば、お洗濯も問題ありません。
通信設備面では、インターネットが無料で使えるので、月々の出費を抑えられるのも魅力です(別途工事等が必要な場合あり)。
建物にはエレベーターがついているので、重い荷物があっても安心。共用部には宅配ボックスが設定されているので、不在の時にも荷物を受け取ることができます。また、ペット飼育の相談ができますので、あなたの大切な家族の一員も快適に暮らせるか、ぜひ確認してみてください。
コンビニまで徒歩15分の場所にあり、日用品や食料品のお買い物にも便利です。
お金・契約の情報
※「-」と表示されているものは、実際は料金が発生するものもございます。詳細はお問い合わせください。
| 家賃 | 14.75万円 | 管理費・共益費 | 1.5万円 |
|---|---|---|---|
| 敷金 | なし | 礼金 | 14.75万円 |
| 入居決定でお祝い金最大100,000円 | |||
| 保証金 | - | 償却・敷引 | - |
| 住宅保険料 | 1円 | 更新料 | - |
| その他費用 | AMLサポートクラブ:1.65万円、29700円: | ||
| 保証会社利用 | 必須 | 保証会社名 | クレディセゾン |
| 保証会社費用 | - | 保証会社備考 | 初回保証料:月額支払額の50%〜 |
| 契約形態 | - | 契約期間 | 2年 |
| 入居・引渡期間 | 2026年03月下旬 | 現況 | - |
| 入居可能条件 | 2人入居可 | ||
| 契約備考 | 短期解約違約金有:1年未満で賃料1ヶ月分、6ヶ月未満で2ヶ月分) エアコンクリーニング費用:16500円/1台(退去時請求) 退去時ルームクリーニング費用:55000円(退去時請求) バイク置き場:有料 駐輪場:有料 ペット飼育時敷金積み増し料金(償却)有り ペット飼育可(小型犬もしくは猫):敷金1ヶ月追加 その他設備/条件:室内洗濯機置き場、ごみ出し24時間OK、独立洗面台、防犯カメラ、クローゼット、シューズボックス、分譲賃貸 | ||
部屋の情報
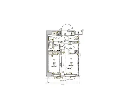
| 間取り | 1LDK | 専有面積 | 35.91m2 |
|---|---|---|---|
| 間取り詳細 | 洋室(4.7帖)、LDK(8.9帖) | ||
| 所在階 / 向き | 5階 / 西 | バルコニー面積 | - |
| 水道 / ガス | 水道【公営】、ガス【都市】 | ||
| 設備 | バス・トイレ別、オートロック、テレビドアホン、宅配ボックス、浴室乾燥機、追い焚き、インターネット対応、システムキッチン、カウンターキッチン、エアコン、エレベーター、温水洗浄便座、バルコニー、フローリング、2口コンロ、コンロ:ガス、インターネット使用料無料、シャワー、給湯、タイル張り | ||
| 当社物件ID | 160380389 | ||
建物の情報
| 建物名 | メインステージ東武練馬 | ||
|---|---|---|---|
| 所在地 | 東京都板橋区徳丸3丁目 | ||
| 交通 | 東武鉄道東上線 東武練馬駅 徒歩12分 | ||
| 階数 | 6階建 | 総戸数 | - |
| 築年月 | 2026年02月 / 新築(築1年) | エレベーター | あり |
| 駐車場 | - | バイク置き場 | あり |
| 駐輪場 | あり | 管理人/管理会社 | - |
| 周辺環境 | コンビニ 徒歩15分(1154m) 販売店 徒歩11分(857m) 病院 徒歩7分(557m) その他 ドラッグストア その他 公園 その他 銀行 その他 * | ||
| 建物種別 | マンション | 建物構造 | RC(鉄筋コンクリート) |
この部屋の取扱い不動産会社
| 会社名 | ハウスコム東東京株式会社 成増店 | ||
|---|---|---|---|
| 所在地 | 東京都板橋区3-11成増アクト2 1階 | 交通 | - |
| 営業時間 | 10:00~18:00 | 定休日 | - |
| 免許番号 | 東京都知事(1)第108283号 | 取引態様 | 仲介 |
| 不動産会社管理番号 | HC2-5377655-502-0109 | 当社管理番号 | 468 |
| 所属団体 | 、 | ||
| 取扱い物件情報 | 物件詳細へ | ||
※各種情報と現状に差異がある場合は、現状優先となります。問い合わせをすることで、より詳しい条件、情報を確認する事ができます。
提供:ハウスコム東東京株式会社 成増店
この物件が気になったら掲載期限まであと5日
メインステージ東武練馬に条件(家賃・エリア)が近い物件一覧
| 写真 | 家賃 管理費等 | 敷金 礼金 | 間取り 専有面積 | 築年数 | 最寄り駅 所在地 | キープ | 詳細 |
|---|---|---|---|---|---|---|---|
マンション サンライズ中十条II(1K/2階) | |||||||
![]() | 9.3万円 なし | 9.3万円 9.3万円 | 1K 23.76m2 | 築19年 | JR埼京線 十条駅(東京) 徒歩4分 JR京浜東北線 東十条駅 徒歩7分 東京都北区中十条 | 詳細を見る | |
マンション S-RESIDENCE王子ENABLE(2LDK/2階) | |||||||
![]() | 20.3万円 1.5万円 | なし なし | 2LDK 49.29m2 | 築1年 | 都電荒川線 王子駅前駅 徒歩9分 JR京浜東北線 王子駅 徒歩10分 東京メトロ南北線 王子神谷駅 徒歩16分 東京都北区豊島 | 詳細を見る | |
マンション グラントゥルース練馬III(1K/5階) | |||||||
![]() | 9.1万円 1万円 | なし 9.1万円 | 1K 20.3m2 | 築17年 | 西武有楽町線 練馬駅 徒歩5分 西武池袋線 桜台駅(東京) 徒歩11分 都営大江戸線 豊島園駅 徒歩14分 東京都練馬区豊玉北 | 詳細を見る | |
マンション ザ・パークハビオ駒込(1K/2階) | |||||||
![]() | 11.1万円 1.5万円 | 11.1万円 なし | 1K 25.14m2 | 築7年 | JR山手線 駒込駅 徒歩9分 JR京浜東北線 田端駅 徒歩11分 JR高崎線 尾久駅 徒歩21分 東京都北区中里 | 詳細を見る | |
アパート 前野町1丁目PJ(1LDK/1階) | |||||||
![]() | 13.8万円 5,000円 | なし 27.6万円 | 1LDK 39.06m2 | 新築 | 東武東上線 ときわ台駅(東京) 徒歩12分 東京都板橋区前野町 | 詳細を見る | |
マンション コンフォリア赤羽岩淵(1SLDK/7階) | |||||||
![]() | 16.9万円 1万円 | 16.9万円 なし | 1SLDK 51.35m2 | 築23年 | 東京メトロ南北線 赤羽岩淵駅 徒歩4分 JR京浜東北線 赤羽駅 徒歩14分 JR埼京線 北赤羽駅 徒歩22分 東京都北区岩淵町 | 詳細を見る | |
マンション ホワイトヒル清水(1LDK/5階) | |||||||
![]() | 11.8万円 なし | 11.8万円 11.8万円 | 1LDK 39m2 | 築53年 | JR山手線 駒込駅 徒歩8分 JR山手線 田端駅 徒歩9分 JR京浜東北線 上中里駅 徒歩11分 東京都北区中里 | 詳細を見る | |
マンション メゾンロアール(2LDK/2階) | |||||||
![]() | 16.8万円 5,000円 | 16.8万円 16.8万円 | 2LDK 50.72m2 | 築37年 | 西武池袋線 練馬駅 徒歩8分 西武池袋線 桜台駅(東京) 徒歩10分 東京都練馬区桜台 | 詳細を見る | |









