賃貸マンション
パシフィック湘南の賃貸物件情報(ワンルーム/2階)
| 家賃 | 管理費等 | 敷金 | 礼金 | 間取り | 専有面積 |
|---|---|---|---|---|---|
| 6.8万円 | 3,000円 | 7万円 | 6.8万円 | ワンルーム | 22.32m2 |
入居決定でお祝い金最大100,000円
- 保証金
- -
- 償却・敷引
- -
- 築年数
- 築40年
- 所在階
- 2階
- 向き
- 南東
Point
素敵な1R2F以上/角住戸/宅配BOXの物件で快適に暮らしませんか。ダブルロック/防犯カメラなので一人暮らしでも安心な物件です。ガスコンロ設置済設置でお料理らくらく。
提供:ユーミーらいふ秦野店(株)ユーミーネット西湘(SUUMO経由)

詳細情報 パシフィック湘南
物件紹介
パシフィック湘南はJR東海道本線平塚駅から徒歩15分にあるマンションです。
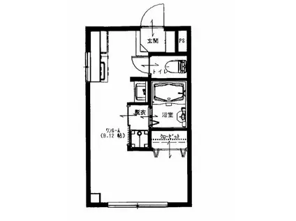
このお部屋は2階以上に位置しているので、通行人や周囲の住人からの視線が気になりにくく、防犯面でも安心。インターホンにはTVモニタもついているため、相手の顔を確認してから来客対応することができます。
人気の南向き・フローリングのお部屋。角部屋でもあるため、周囲の居住者の生活音も気になりにくい場所です。キッチンはシステムキッチン仕様になっていますので、お料理好きの方にもぴったり。また、バス・トイレは別で、のんびりお風呂タイムも楽しめるでしょう。
共用部には宅配ボックスが設定されているので、不在の時にも荷物を受け取ることができます。
このお部屋は2階以上に位置しているので、通行人や周囲の住人からの視線が気になりにくく、防犯面でも安心。インターホンにはTVモニタもついているため、相手の顔を確認してから来客対応することができます。
人気の南向き・フローリングのお部屋。角部屋でもあるため、周囲の居住者の生活音も気になりにくい場所です。キッチンはシステムキッチン仕様になっていますので、お料理好きの方にもぴったり。また、バス・トイレは別で、のんびりお風呂タイムも楽しめるでしょう。
共用部には宅配ボックスが設定されているので、不在の時にも荷物を受け取ることができます。
お金・契約の情報
※「-」と表示されているものは、実際は料金が発生するものもございます。詳細はお問い合わせください。
| 家賃 | 6.8万円 | 管理費・共益費 | 3,000円 |
|---|---|---|---|
| 敷金 | 7万円 | 礼金 | 6.8万円 |
| 入居決定でお祝い金最大100,000円 | |||
| 保証金 | - | 償却・敷引 | - |
| 住宅保険料 | - | 更新料 | - |
| 保証会社利用 | 必須 | 保証会社名 | 全保連 |
| 保証会社費用 | - | 保証会社備考 | 全保連利用必 日本セーフティー、全保連(初回保証料:総賃料の50%) |
| 契約形態 | - | 契約期間 | - |
| 入居・引渡期間 | 即時 | 現況 | - |
| 契約備考 | ワンルーム 普通借家2年 損保【要】 バストイレ別、エアコン、ガスコンロ対応、シャワー付洗面台、TVインターホン、室内洗濯置、シューズボックス、システムキッチン、追焚機能浴室、角住戸、温水洗浄便座、洗面所独立、洗面化粧台、宅配ボックス、即入居可、3口以上コンロ、防犯カメラ、ダブルロックキー、3駅以上利用可、3沿線以上利用可、東南向き、プロパンガス、ダウンライト、礼金1ヶ月、初期費用カード決済可 | ||
部屋の情報
| 間取り | ワンルーム | 専有面積 | 22.32m2 |
|---|---|---|---|
| 所在階 / 向き | 2階 / 南東 | バルコニー面積 | - |
| 水道 / ガス | - | ||
| 設備 | バス・トイレ別、2階以上、テレビドアホン、宅配ボックス、追い焚き、システムキッチン、エアコン、温水洗浄便座、南向き、角部屋、洗髪洗面化粧台、2口コンロ、コンロ:ガス、洗濯機:室内 | ||
| 当社物件ID | 159503074 | ||
建物の情報
| 建物名 | パシフィック湘南 | ||
|---|---|---|---|
| 所在地 | 神奈川県平塚市幸町 | ||
| 交通 | 湘南新宿ライン高海 平塚駅 徒歩17分 JR相模線 茅ケ崎駅 徒歩63分 JR東海道本線 大磯駅 徒歩65分 | ||
| 階数 | 3階建 | 総戸数 | 8戸 |
| 築年月 | 1987年03月 / 築40年 | エレベーター | - |
| 駐車場 | 空有 11000円 | バイク置き場 | - |
| 駐輪場 | - | 管理人/管理会社 | - |
| 建物種別 | マンション | 建物構造 | 鉄骨造 |
この部屋の取扱い不動産会社
| 会社名 | ユーミーらいふ平塚本店(株)ユーミーネット西湘(SUUMO経由) | ||
|---|---|---|---|
| 所在地 | 神奈川県平塚市河内1-2-1プロシード小池1F | 交通 | - |
| 営業時間 | AM09:30~PM6:00 | 定休日 | 水曜日 1月から3月は無休 |
| 免許番号 | 神奈川県知事32293 | 取引態様 | 仲介 |
| 不動産会社管理番号 | 100460035446 | 当社管理番号 | 89 |
| 所属団体 | (公社)神奈川県宅地建物取引業協会会員 | ||
| 公正取引協議会 | (公社)首都圏不動産公正取引協議会加盟 | ||
| 取扱い物件情報 | 物件詳細へ | ||
※各種情報と現状に差異がある場合は、現状優先となります。問い合わせをすることで、より詳しい条件、情報を確認する事ができます。
提供:ユーミーらいふ平塚本店(株)ユーミーネット西湘(SUUMO経由)
この物件が気になったら掲載期限まであと11日
パシフィック湘南に条件(家賃・エリア)が近い物件一覧
| 写真 | 家賃 管理費等 | 敷金 礼金 | 間取り 専有面積 | 築年数 | 最寄り駅 所在地 | キープ | 詳細 |
|---|---|---|---|---|---|---|---|
アパート 茅ヶ崎トラッドA(1LDK/1階) | |||||||
![]() | 5.3万円 1,000円 | なし なし | 1LDK 35m2 | 築40年 | JR東海道本線 辻堂駅 徒歩19分 神奈川県茅ヶ崎市出口町 | 詳細を見る | |
アパート KULA(ワンルーム/1階) | |||||||
![]() | 5.6万円 2,000円 | 5.6万円 なし | ワンルーム 32.97m2 | 築9年 | 小田急小田原線 渋沢駅 徒歩10分 神奈川県秦野市渋沢 | 詳細を見る | |
マンション エヌステージ秦野駅前(1K/12階) | |||||||
![]() | 5.9万円 1.8万円 | なし なし | 1K 23.2m2 | 築2年 | 小田急電鉄小田原線 秦野駅 徒歩1分 神奈川県秦野市今川町 | 詳細を見る | |
マンション VRD伊勢原(1LDK/4階) | |||||||
![]() | 9.7万円 1万円 | 9.7万円 なし | 1LDK 42.45m2 | 築1年 | 小田急電鉄小田原線 伊勢原駅 徒歩3分 神奈川県伊勢原市桜台1丁目 | 詳細を見る | |
マンション フレアⅠ(3LDK/3階) | |||||||
![]() | 8.3万円 6,500円 | なし なし | 3LDK 71.25m2 | 築26年 | 神奈川県平塚市長持 | 詳細を見る | |
アパート レオパレス卯月 2003(1K/2階) | |||||||
![]() | 5.6万円 5,000円 | なし なし | 1K 19.87m2 | 築23年 | 東海道本線 平塚駅 徒歩53分 神奈川県平塚市纒1丁目 | 詳細を見る | |
アパート パストラル湘南(1K/1階) | |||||||
![]() | 5.2万円 3,000円 | なし なし | 1K 20.6m2 | 築29年 | JR東海道本線 茅ケ崎駅 徒歩7分 JR相模線 北茅ケ崎駅 徒歩19分 JR東海道本線 辻堂駅 徒歩58分 神奈川県茅ヶ崎市十間坂 | 詳細を見る | |
アパート LSY-18 アドヴァンスI(2LDK/2階) | |||||||
![]() | 6.8万円 2,000円 | なし なし | 2LDK 55.69m2 | 築27年 | 神奈川県平塚市南原 | 詳細を見る | |








