賃貸一戸建て
京浜東北・根岸線 南浦和駅 徒歩13分 3階建 築1年の賃貸物件情報(3SLDK)
| 家賃 | 管理費等 | 敷金 | 礼金 | 間取り | 専有面積 |
|---|---|---|---|---|---|
| 22.5万円 | なし | 22.5万円 | なし | 3SLDK | 91.85m2 |
入居決定でお祝い金最大100,000円
Point
まずはお問い合わせ!
不動産会社は街のプロ、あなたに合った物件がきっと見つかります。
提供:アパマンショップ南浦和店

詳細情報 京浜東北・根岸線 南浦和駅 徒歩13分 3階建 築1年
物件紹介
京浜東北・根岸線南浦和駅から徒歩13分にある一戸建てです。
このお部屋のインターホンにはTVモニタがついているため、相手の顔を確認してから来客対応することができます。
こちらは楽器相談が可能な物件。楽器演奏をお考えの方はぜひ相談してみてください。人気の角部屋で周囲の居住者の生活音も気になりにくく、また、フローリングのお部屋なのでお掃除もラクラク。キッチンはシステムキッチン仕様になっていますので、お料理好きの方にもぴったり。バス・トイレは別なので、のんびりお風呂タイムも楽しめるでしょう。また、雨の日でも浴室乾燥機を使えば、お洗濯も問題ありません。
通信設備面ではCATVに対応しているので、おうち時間も充実するでしょう(別途工事、契約料が必要な場合あり)。
床暖房があり、冬も足元から暖かく快適に過ごすことができます。ペット飼育の相談ができますので、あなたの大切な家族の一員も快適に暮らせるか、ぜひ確認してみてください。
コンビニまで徒歩4分の場所にあり、日用品や食料品のお買い物にも便利です。
このお部屋のインターホンにはTVモニタがついているため、相手の顔を確認してから来客対応することができます。
こちらは楽器相談が可能な物件。楽器演奏をお考えの方はぜひ相談してみてください。人気の角部屋で周囲の居住者の生活音も気になりにくく、また、フローリングのお部屋なのでお掃除もラクラク。キッチンはシステムキッチン仕様になっていますので、お料理好きの方にもぴったり。バス・トイレは別なので、のんびりお風呂タイムも楽しめるでしょう。また、雨の日でも浴室乾燥機を使えば、お洗濯も問題ありません。
通信設備面ではCATVに対応しているので、おうち時間も充実するでしょう(別途工事、契約料が必要な場合あり)。
床暖房があり、冬も足元から暖かく快適に過ごすことができます。ペット飼育の相談ができますので、あなたの大切な家族の一員も快適に暮らせるか、ぜひ確認してみてください。
コンビニまで徒歩4分の場所にあり、日用品や食料品のお買い物にも便利です。
お金・契約の情報
※「-」と表示されているものは、実際は料金が発生するものもございます。詳細はお問い合わせください。
| 家賃 | 22.5万円 | 管理費・共益費 | なし |
|---|---|---|---|
| 敷金 | 22.5万円 | 礼金 | なし |
| 入居決定でお祝い金最大100,000円 | |||
| 保証金 | - | 償却・敷引 | - |
| 住宅保険料 | 1円 | 更新料 | - |
| 保証会社利用 | 必須 | 保証会社名 | - |
| 保証会社費用 | - | 保証会社備考 | 初回契約時:50%、更新時:10,000円 |
| 契約形態 | - | 契約期間 | 2年 |
| 入居・引渡期間 | 即時 | 現況 | - |
| 入居可能条件 | 楽器可、ペット相談 | ||
| 契約備考 | ペット飼育時敷金積み増し料金(償却)有り その他設備/条件:室内洗濯機置き場、独立洗面台、食器洗い乾燥機、クローゼット | ||
部屋の情報
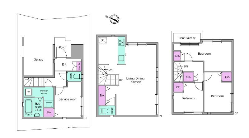
| 間取り | 3SLDK | 専有面積 | 91.85m2 |
|---|---|---|---|
| 所在階 / 向き | 1階 / 北東 | バルコニー面積 | - |
| 水道 / ガス | 水道【公営】、ガス【都市】 | ||
| 設備 | バス・トイレ別、テレビドアホン、浴室乾燥機、追い焚き、システムキッチン、カウンターキッチン、エアコン、温水洗浄便座、角部屋、バルコニー、フローリング、床暖房、3口コンロ、コンロ:ガス | ||
| 当社物件ID | 159372316 | ||
建物の情報
| 建物名 | 京浜東北・根岸線 南浦和駅 徒歩13分 3階建 築1年 | ||
|---|---|---|---|
| 所在地 | 埼玉県さいたま市南区 | ||
| 交通 | 京浜東北・根岸線 南浦和駅 徒歩13分 | ||
| 階数 | 3階建 | 総戸数 | - |
| 築年月 | 2025年03月 / 築1年 | エレベーター | - |
| 駐車場 | 空有 | バイク置き場 | - |
| 駐輪場 | - | 管理人/管理会社 | - |
| 周辺環境 | コンビニ 徒歩4分(320m) 中学校 さいたま市立大谷場中学校 徒歩8分(598m) 小学校 さいたま市立大谷場東小学校 徒歩7分(553m) その他 ドラッグストア その他 公園 その他 銀行 その他 * | ||
| 建物種別 | 一戸建て | 建物構造 | 木造 |
この部屋の取扱い不動産会社
| 会社名 | ハウスコム埼玉株式会社 大宮東口店 | ||
|---|---|---|---|
| 所在地 | 埼玉県さいたま市大宮区92-7ハイカラ堂ビル2階 | 交通 | - |
| 営業時間 | 10:00~18:00 | 定休日 | 水曜定休 |
| 免許番号 | 埼玉県知事(1)第24888号 | 取引態様 | 仲介 |
| 不動産会社管理番号 | HC2-5089219-1-0221 | 当社管理番号 | 468 |
| 所属団体 | 、 | ||
| 取扱い物件情報 | 物件詳細へ | ||
※各種情報と現状に差異がある場合は、現状優先となります。問い合わせをすることで、より詳しい条件、情報を確認する事ができます。
提供:ハウスコム埼玉株式会社 大宮東口店
この物件が気になったら掲載期限まであと4日
京浜東北・根岸線 南浦和駅 徒歩13分 3階建 築1年に条件(家賃・エリア)が近い物件一覧
| 写真 | 家賃 管理費等 | 敷金 礼金 | 間取り 専有面積 | 築年数 | 最寄り駅 所在地 | キープ | 詳細 |
|---|---|---|---|---|---|---|---|
一戸建て 東武鉄道東上線 鶴瀬駅 徒歩14分 築2年(3LDK) | |||||||
![]() | 16.2万円 なし | 16.2万円 16.2万円 | 3LDK 86.94m2 | 築2年 | 東武鉄道東上線 鶴瀬駅 徒歩14分 埼玉県富士見市上沢1丁目 | 詳細を見る | |
マンション プレミアメゾン戸田(1LDK/3階) | |||||||
![]() | 14.1万円 1.2万円 | なし 28.2万円 | 1LDK 48.47m2 | 新築 | 埼京線 戸田駅(埼玉) 徒歩10分 埼玉県戸田市大字新曽 | 詳細を見る | |
マンション ベル ピュアン(2LDK/2階) | |||||||
![]() | 15万円 9,000円 | なし 30万円 | 2LDK 59.24m2 | 新築 | 川越線 川越駅 徒歩7分 埼玉県川越市南通町 | 詳細を見る | |
マンション エクメーネ西川口駅前(2LDK/5階) | |||||||
![]() | 14万円 1万円 | 14万円 14万円 | 2LDK 60m2 | 築27年 | JR京浜東北線 西川口駅 徒歩3分 JR京浜東北線 川口駅 徒歩27分 JR埼京線 戸田公園駅 徒歩34分 埼玉県川口市西川口 | 詳細を見る | |
マンション エルザタワー55(2LDK/32階) | |||||||
![]() | 23万円 なし | 46万円 23万円 | 2LDK 90.6m2 | 築28年 | 埼玉高速鉄道 川口元郷駅 徒歩6分 埼玉県川口市元郷 | 詳細を見る | |
マンション ライオンズプラザ川口本町(2LDK/10階) | |||||||
![]() | 16.5万円 なし | 16.5万円 16.5万円 | 2LDK 64.18m2 | 築34年 | JR京浜東北線 川口駅 徒歩4分 埼玉高速鉄道 川口元郷駅 徒歩15分 埼玉県川口市鳩ヶ谷本町 | 詳細を見る | |
マンション MIMOSA北朝霞(1SLDK/2階) | |||||||
![]() | 14.7万円 1万円 | 14.7万円 14.7万円 | 1SLDK 53.19m2 | 築1年 | JR武蔵野線 北朝霞駅 徒歩6分 東武東上線 朝霞台駅 徒歩7分 東武東上線 志木駅 徒歩20分 埼玉県朝霞市北原 | 詳細を見る | |


/105x80-f1-q70-wp1)
/105x80-f1-q70-wp1)



